Espagne Urbain Espagne Urbain Malaga Urbain Mijas Terreno en Barrio Campo de Mijas

Terreno en Barrio Campo de Mijas

Malaga, Mijas, Campo de Mijas, Barrio Campo de Mijas
372 900 €
Laisser un commentaire
Urbain Type de bien
849 m² Superficie du terrain
Résidentiel Usage de la parcelle
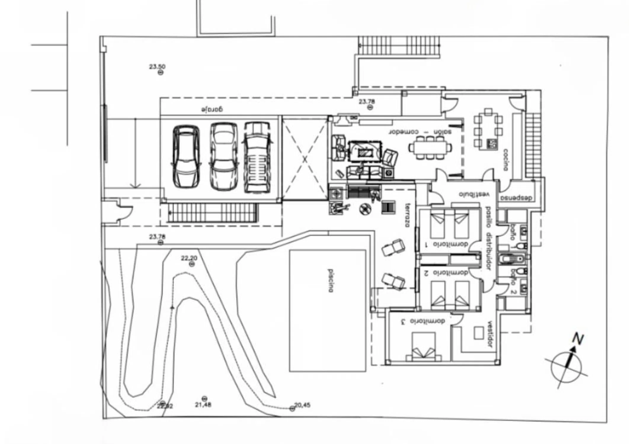
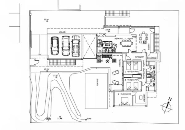
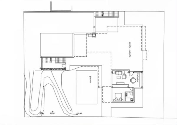
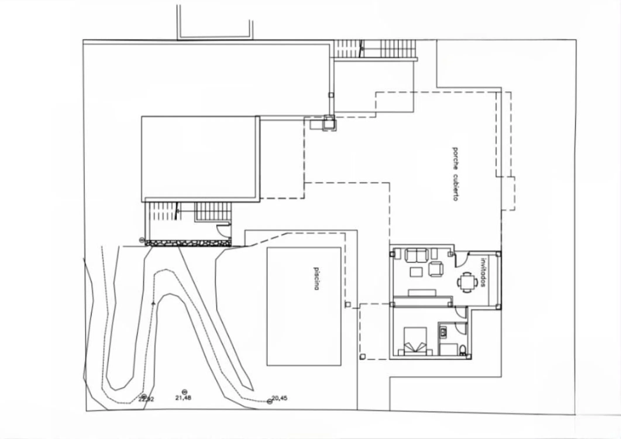
Tu casa soñada puede estar aquí! Solar urbano con más de 800 metros de parcela y calificado con 35% de edificabilidad, para construir una o dos viviendas de 280 metros cuadrados, con dos plantas, parking y piscina Ubicación inmejorable, a tan solo 2 km de la estación de tren y de la playa de Los Boliches, cerca de comercios, farmacias, colegios, estación de servicio, parada de autobús, restaurantes y grandes supermercados como Aldi, Lidl, Cash Fresh, The Food Co Supermarket, y además su fácil acceso a la autovía conecta Marbella y Málaga de forma rápida y sencilla Un privilegio de zona al alcance de toda la familia Imagina construir tu proyecto en un entorno tranquilo, rodeado de vecinos que valoran la calidad de vida Esta parcela soleada la mayor parte del día, con vistas despejadas, está rodeada de encantadoras viviendas, ofreciendo una atmósfera acogedora y un ambiente vecinal agradable ¿Te atreves a construir aquí tu próximo proyecto residencial y materializar tus ideas? Contáctame para explorar este espacio y descubrir el potencial que ofrece para tu próximo hogar.

Caractéristiques du bien

Complex information

  • Type de bien
    Urbain

Données de la propriété

  • Type de propriété
    Occasion

Surfaces

  • Superficie du terrain
    849 m²

Base

  • Terrain urbain
    Consolidé (Terrain)
  • Usage de la parcelle
    Résidentiel

Installations

Caractéristiques supplémentaires:

Terrain constructible

Plans

Statistiques des prix du marché pour Terreno en Barrio Campo de Mijas

Carte

Malaga, Mijas, Campo de Mijas, Barrio Campo de Mijas Aller à cet endroit
Laisser un commentaire sur Terreno en Barrio Campo de Mijas
0
0 revues
1
0% (0)
2
0% (0)
3
0% (0)
4
0% (0)
5
0% (0)
Strand Properties Marbella - Malaga - Fuengirola - Mallorca
372 900 €
Contacter l'annonceur

Pour plus d’informations, contactez la plateforme

REF: 242982

Critiques à propos de Terreno en Barrio Campo de Mijas
Loading...

No reviews have been left for this object yet

Propriétés les plus proches

Explorez les biens immobiliers que nous avons découverts à proximité de ce site

Terreno en venta en Urbanizacion Torreblanca del Sol

Malaga, Fuengirola, Los Pacos, Urbanizacion Torreblanca del Sol
175 000 €

¡Oportunidad única de inversión en la Costa del Sol! Se venden 6 Terrenos ubicad...

0
0 commentaires

Terreno en venta en calle Veleta s/n

Malaga, Benalmádena, Montealto, Calle Veleta s/n
3 000 000 €

Este terreno se encuentra en Calle Veleta, 29631, Benalmádena, Málaga. Es un sol...

0
0 commentaires

Terreno en Valtocado - La Alquería - La Atalaya

Malaga, Mijas, Valtocado - La Alquería - La Atalaya, Valtocado - La Alquería - La Atalaya
185 000 €

Parcela Rústica en El Hornillo Parcela rústica de aproximadamente 13.000 m2, muy...

0
0 commentaires

Terreno en calle las Palomas, 11

Malaga, Fuengirola, Torreblanca del Sol, Calle las Palomas, 11
185 000 €

Espectacular solar de 436 m2 con vista lateral al mar.

0
0 commentaires

Terreno en Los Pacos

Malaga, Fuengirola, Los Pacos, Los Pacos
4 500 000 €

Parcela Edificable en Venta en Los Pacos (Fuengirola) ¡Oportunidad única para pr...

0
0 commentaires

Terreno en calle Pensamiento, 3

Malaga, Benalmádena, Benalmádena Pueblo, Calle Pensamiento, 3
1 530 000 €

Oportunidad Exclusiva para Inversores en la Costa del Sol. Descubre una oportuni...

0
0 commentaires

Terreno en calle Jilguero

Malaga, Fuengirola, Torreblanca del Sol, Calle Jilguero
2 150 000 €

Parcela urbana en venta en Urb. Torreblanca del Sol, Fuengirola (Málaga). Tiene...

0
0 commentaires

Terreno en camino de los Rios

Malaga, Mijas, Valtocado - La Alquería - La Atalaya, Camino de los Rios
250 000 €

Excelente oportunidad en Valtocado Si lo que buscas es paz y naturaleza, esta pa...

0
0 commentaires

Terreno en Mijas s/n

Malaga, Mijas, Mijas Pueblo, Mijas s/n
250 000 €

Oportunidad Única de TERRENO con Proyecto Aprobado en la Prestigiosa Zona de Mij...

0
0 commentaires
Appeler

Nous utilisons nos propres cookies et ceux de tiers pour analyser l’utilisation du site Web et vous montrer des publicités en lien avec vos préférences, sur la base d’un profil établi à partir de vos habitudes de navigation (ex. : pages visitées). Plus d’informations. Acceptez-vous les cookies ?