Espagne Urbain Espagne Urbain Malaga Urbain Mijas Terreno en Barrio Las Cañadas

Terreno en Barrio Las Cañadas

Malaga, Mijas, Les Lagunes, Barrio Las Cañadas
775 000 €
Laisser un commentaire
Urbain Type de bien
155 m² Superficie du terrain
3 Terrains constructibles
540 Constructibilité
Résidentiel Usage de la parcelle
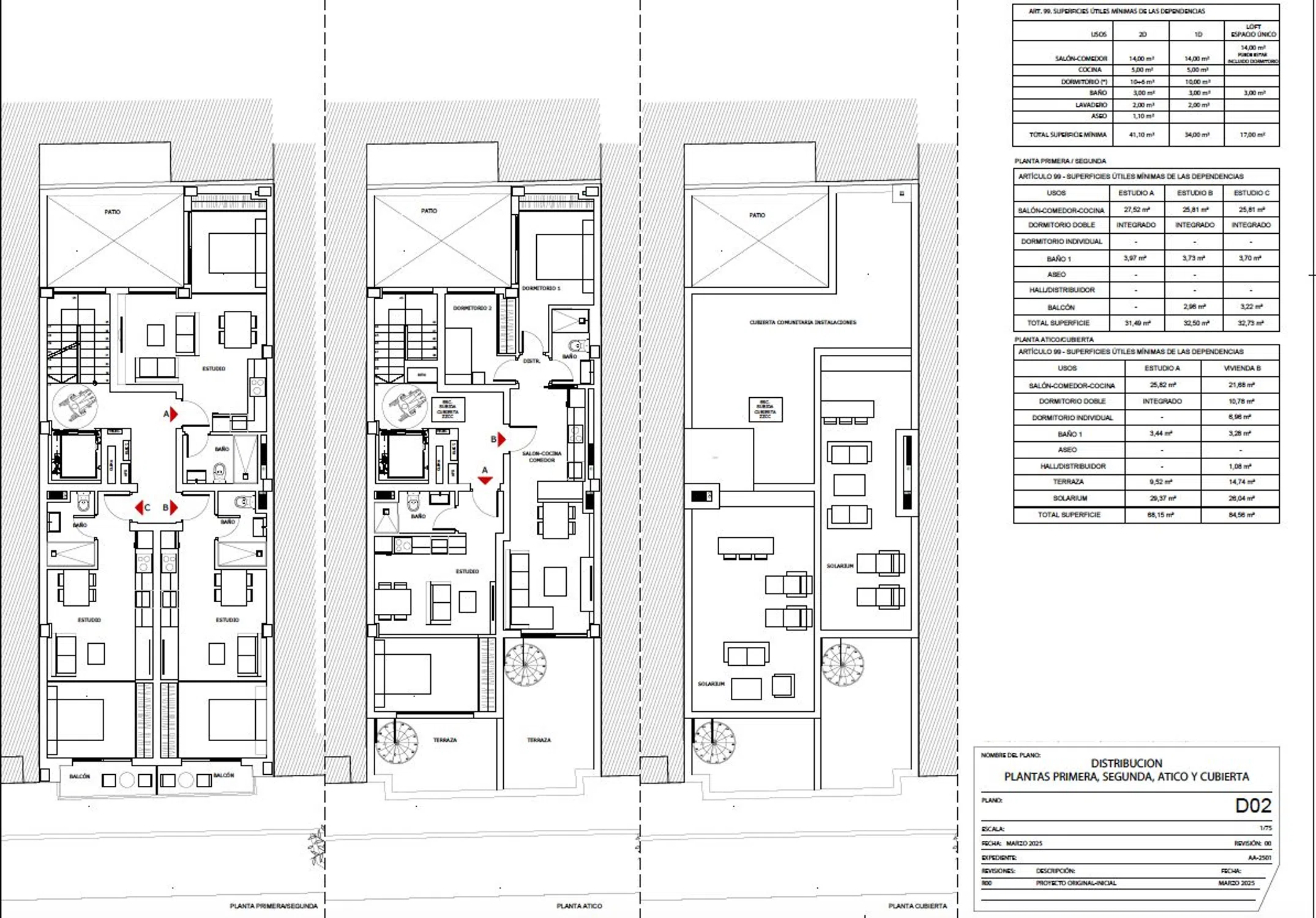
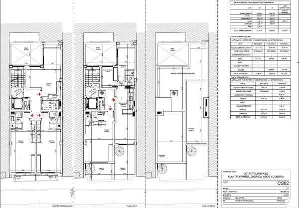
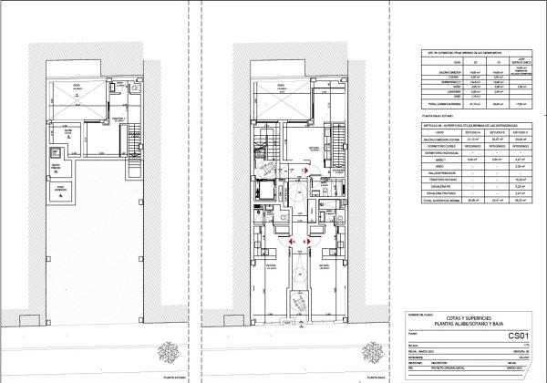
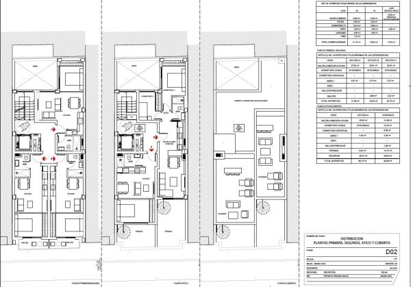
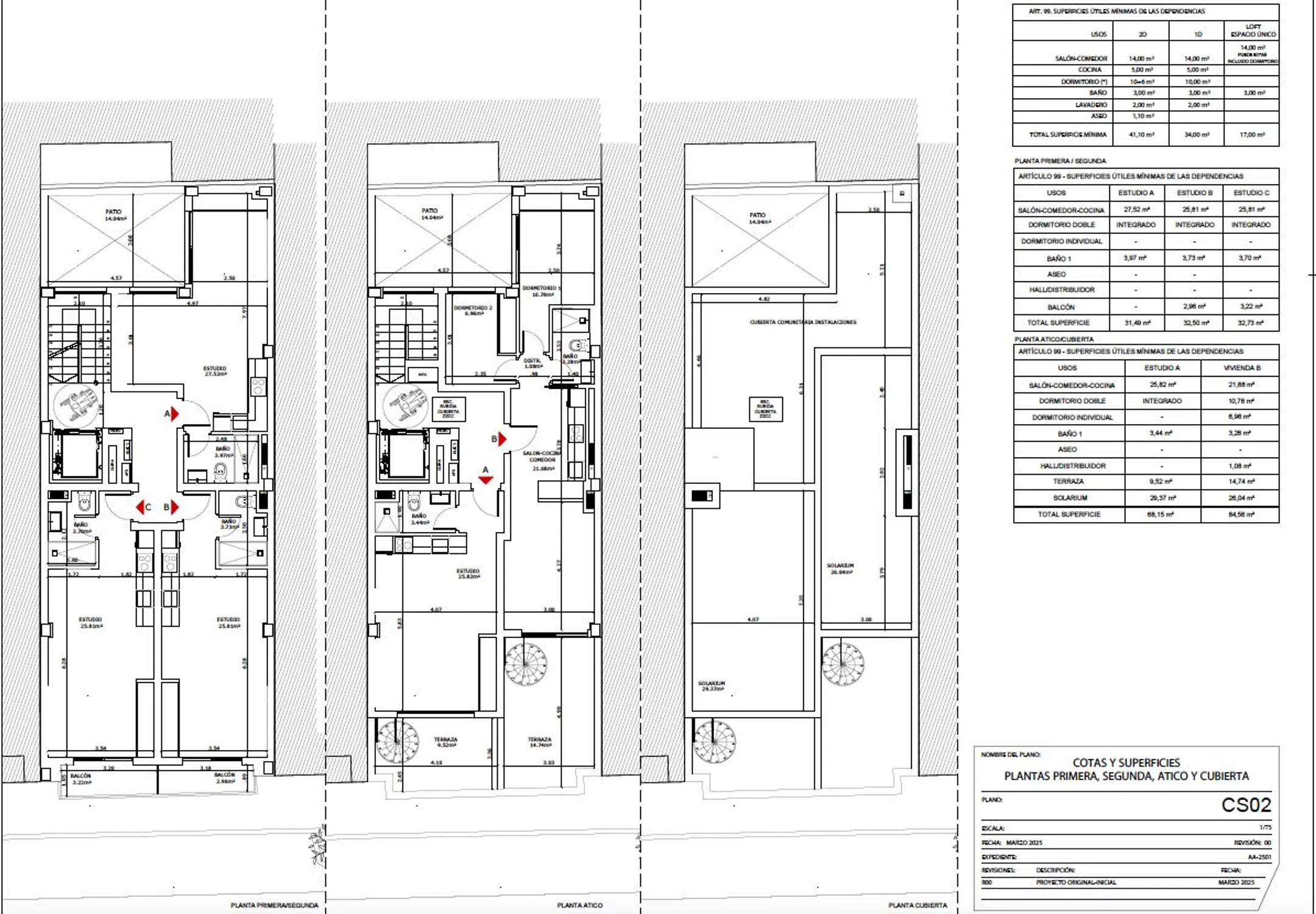
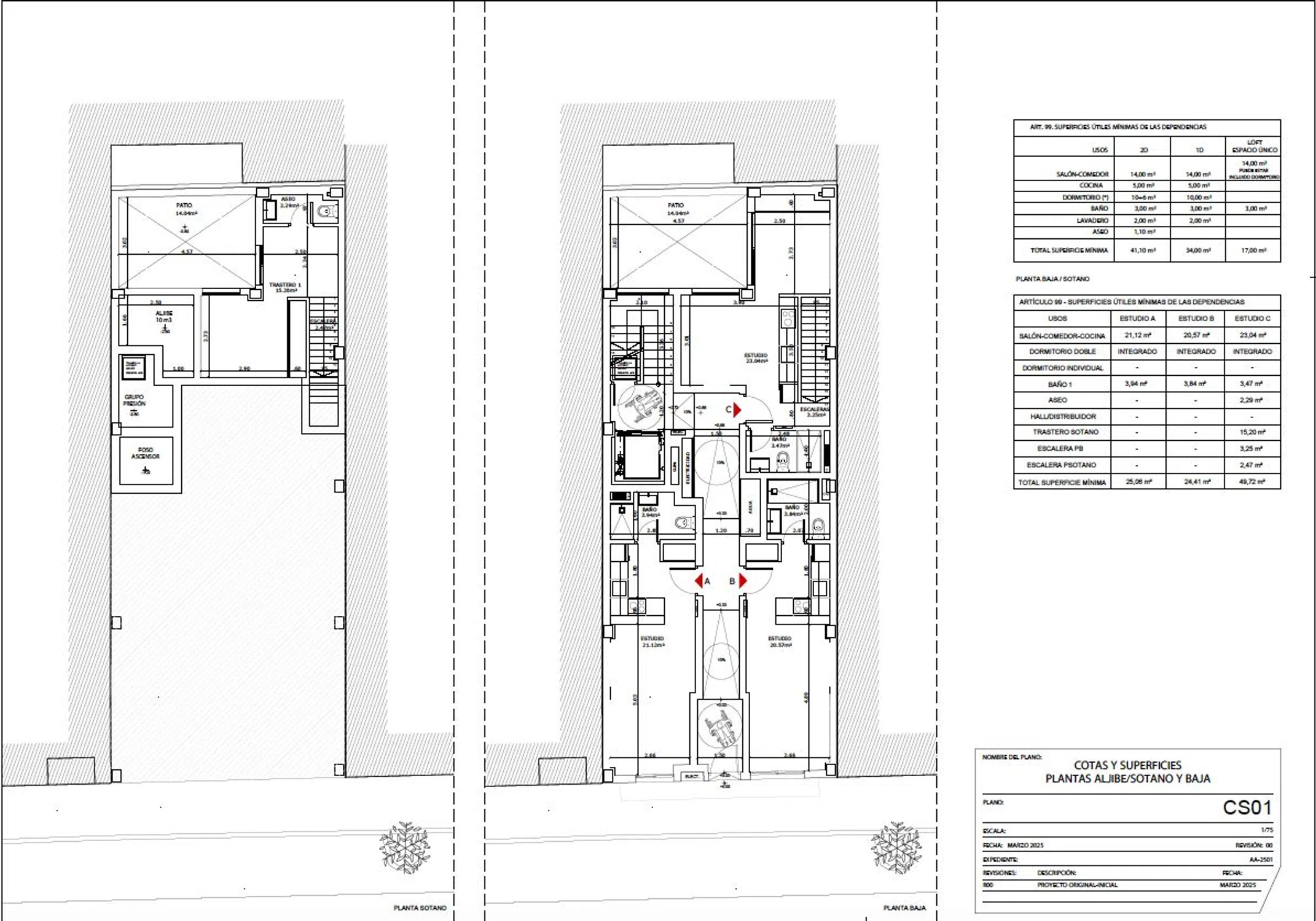
Parcela en venta con licencia en Las Lagunas de Mijas. La parcela se sitúa en Las Lagunas de Mijas, una de las áreas urbanas con mayor desarrollo residencial de la Costa del Sol. Este enclave destaca por su proximidad a todos los servicios esenciales y por la creciente demanda de vivienda en la zona, donde actualmente la oferta de apartamentos es limitada, lo que refuerza su atractivo comercial. En un radio de menos de dos kilómetros se encuentran centros educativos y zonas deportivas, lo que la convierte en una ubicación idónea para familias. A tan solo tres minutos en coche hay supermercados, y a una corta distancia a pie, el Centro Comercial Costa Mijas, con una amplia oferta de tiendas, restaurantes y servicios. Además, la parcela se encuentra a 10 minutos en coche de la playa de Los Boliches, una de las zonas costeras más valoradas del municipio, con fácil acceso a la autovía A-7 y conexión directa con Fuengirola y Marbella. Características del activo Superficie de parcela: 154,49 m². 578,44m2 de edificabilidad. Licencia de obra ya concedida y tasas municipales abonadas, lo que permite iniciar el desarrollo de forma inmediata. Clasificación urbana apta para uso residencial, proyecto realizado para la construcción de 11 apartamentos. Oportunidad para inversores Se trata de un producto inmobiliario con alta demanda potencial en una zona donde la oferta es actualmente limitada. La disponibilidad inmediata para iniciar obras reduce plazos y costes operativos (licencia concedida y tasas ya pagadas). Por su ubicación, accesibilidad y entorno consolidado, esta parcela en Las Lagunas de Mijas representa una excelente opción para promotores que buscan rentabilidad en desarrollos de pequeña escala en la Costa del Sol. Esta parcela en Las Lagunas de Mijas combina una ubicación estratégica, licencias listas para construir y un contexto urbano con alta demanda. Una oportunidad concreta para desarrolladores que buscan iniciar un proyecto de vivienda sin demoras administrativas y con potencial de rentabilidad. Aviso Legal y Confidencialidad: La información contenida en este documento es de carácter aproximado y se proporciona únicamente con fines informativos. Los datos pueden estar sujetos a modificaciones o errores de publicación. La empresa no se hace responsable de la exactitud de la información ni de cualquier interpretación derivada de la misma. Para acceder a información detallada, datos financieros y documentación adicional, será necesario formalizar un acuerdo de confidencialidad (NDA) y presentar una carta de intención de compra (LOI).

Caractéristiques du bien

Complex information

  • Type de bien
    Urbain

Données de la propriété

  • Type de propriété
    Occasion

Surfaces

  • Superficie du terrain
    155 m²

Base

  • Parcelle minimale à vendre
    155 m²
  • Terrains constructibles
    3
  • Constructibilité
    540
  • Usage de la parcelle
    Résidentiel

Installations

Caractéristiques supplémentaires:

Terrain constructible

Statistiques des prix du marché pour Terreno en Barrio Las Cañadas

Carte

Malaga, Mijas, Les Lagunes, Barrio Las Cañadas Aller à cet endroit
Laisser un commentaire sur Terreno en Barrio Las Cañadas
0
0 revues
1
0% (0)
2
0% (0)
3
0% (0)
4
0% (0)
5
0% (0)
SamsaraHomes Real Estate
775 000 €
Contacter l'annonceur

Pour plus d’informations, contactez la plateforme

REF: 366797

Critiques à propos de Terreno en Barrio Las Cañadas
Loading...

No reviews have been left for this object yet

Propriétés les plus proches

Explorez les biens immobiliers que nous avons découverts à proximité de ce site

Terreno en venta en Urbanizacion Torreblanca del Sol

Malaga, Fuengirola, Los Pacos, Urbanizacion Torreblanca del Sol
175 000 €

¡Oportunidad única de inversión en la Costa del Sol! Se venden 6 Terrenos ubicad...

0
0 commentaires

Terreno en Valtocado - La Alquería - La Atalaya

Malaga, Mijas, Valtocado - La Alquería - La Atalaya, Valtocado - La Alquería - La Atalaya
185 000 €

Parcela Rústica en El Hornillo Parcela rústica de aproximadamente 13.000 m2, muy...

0
0 commentaires

Terreno en calle las Palomas, 11

Malaga, Fuengirola, Torreblanca del Sol, Calle las Palomas, 11
185 000 €

Espectacular solar de 436 m2 con vista lateral al mar.

0
0 commentaires

Terreno en Los Pacos

Malaga, Fuengirola, Los Pacos, Los Pacos
4 500 000 €

Parcela Edificable en Venta en Los Pacos (Fuengirola) ¡Oportunidad única para pr...

0
0 commentaires

Terreno en calle Jilguero

Malaga, Fuengirola, Torreblanca del Sol, Calle Jilguero
2 150 000 €

Parcela urbana en venta en Urb. Torreblanca del Sol, Fuengirola (Málaga). Tiene...

0
0 commentaires

Terreno en camino de los Rios

Malaga, Mijas, Valtocado - La Alquería - La Atalaya, Camino de los Rios
250 000 €

Excelente oportunidad en Valtocado Si lo que buscas es paz y naturaleza, esta pa...

0
0 commentaires

Terreno en Mijas s/n

Malaga, Mijas, Mijas Pueblo, Mijas s/n
250 000 €

Oportunidad Única de TERRENO con Proyecto Aprobado en la Prestigiosa Zona de Mij...

0
0 commentaires

Terreno en calle María de las Mercedes, 10

Malaga, Fuengirola, Los Pacos, Calle María de las Mercedes, 10
135 000 €

Magnífica parcela de 445 metros a la venta en Los Pacos. Ideal para 1 vivienda u...

0
0 commentaires

Terreno en calle Maria de las Mercedes s/n

Malaga, Fuengirola, Los Pacos, Calle Maria de las Mercedes s/n
185 000 €

Magnífica parcela de 444 metros a la venta en Los Pacos, totalmente llana. Ideal...

0
0 commentaires
Appeler

Nous utilisons nos propres cookies et ceux de tiers pour analyser l’utilisation du site Web et vous montrer des publicités en lien avec vos préférences, sur la base d’un profil établi à partir de vos habitudes de navigation (ex. : pages visitées). Plus d’informations. Acceptez-vous les cookies ?