Espagne Urbain Espagne Urbain Malaga Urbain Mijas Terreno en Campo de Mijas

Terreno en Campo de Mijas

Malaga, Mijas, Campo de Mijas, Campo de Mijas
7 000 000 €
Laisser un commentaire
Urbain Type de bien
11 615 m² Superficie du terrain
4 Terrains constructibles
11615 Constructibilité
Résidentiel Usage de la parcelle
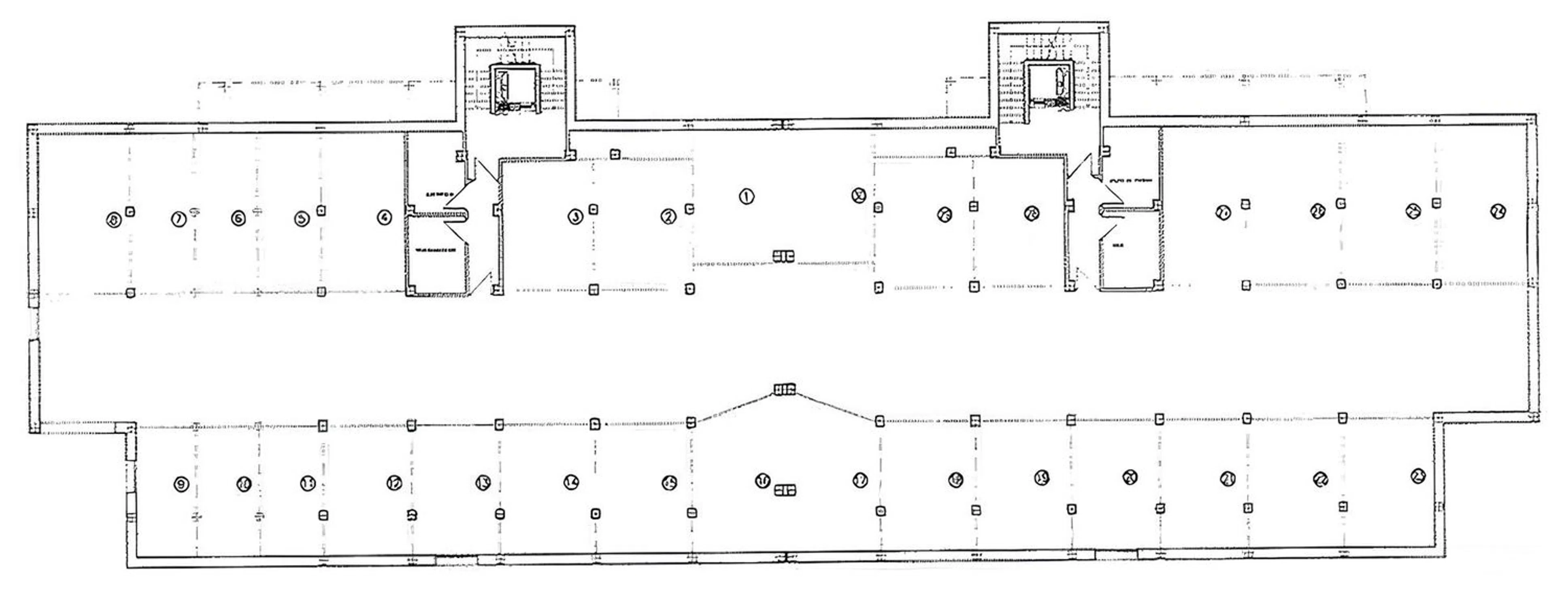
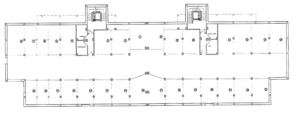
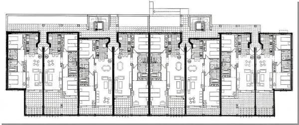
Atractiva oportunidad para inversores interesados en el desarrollo de un complejo residencial en la Costa del Sol Suelo finalista con proyecto y pendiente de licencia situado en La Costa del Sol, situado a 30 minutos del aeropuerto de Málaga y a poco más de 3 km de la costa. Se trata de un suelo que constituye las fases III y IV de una parcela consolidada. El suelo se encuentra colindante y bordeando el propio campo de golf de dos recorridos de 18 hoyos cada uno, que ha sido recientemente reformado y reinaugurado. Las fases I y II de la urbanización que constaban de 143 viviendas ya fueron construidas y vendidas en su totalidad con gran éxito y se encuentran totalmente consolidada. El proyecto pendiente de LICENCIA DEFINITIVA consta de los siguientes parámetros: TERCERA FASE: edificios con 60 viviendas, contando cada uno de ellos con 30 viviendas (en baja + 3 + ático) y 30 plazas de garaje bajo rasante (en primer sótano) y una edificabilidad total de 7.084, 48m². CUARTA FASE: edificios conectados entre sí, con 36 viviendas (en baja + 3 + ático), 36 plazas de garaje bajo rasante (en primer sótano) y 36 trasteros, con una edificabilidad total de 4.530, 46m². FASE III - 60 viviendas Edificabilidad edificios - 5.963, 64m² 50% terrazas cubiertas de los 863 m² - 431,5m² Zonas comunes - 689,34m² TOTAL - 7.084, 48m² FASE IV - 36 viviendas Edificabilidad edificios - 3.929, 56m² 50% terrazas cubiertas de los 405,65m² - 202,82m² Zonas comunes- 398,08m² TOTAL - 4.530, 46m² TOTAL EDIFICABILIDAD PROYECTO: 11.615. -m² más 1.337. -m² terrazas descubiertas. Aviso Legal El precio de venta no incluye los gastos e impuestos aplicables en España, ITP 7% en reventa, IVA 10%, así como honorarios y gastos legales, bancarios, notariales y registrales, entre otros. Esta información puede estar sujeta a errores, omisiones, modificaciones, venta previa o retirada del mercado. Decreto 2182005 de 11 de octubre.

Caractéristiques du bien

Complex information

  • Type de bien
    Urbain

Données de la propriété

  • Type de propriété
    Occasion

Surfaces

  • Superficie du terrain
    11 615 m²

Base

  • Parcelle minimale à vendre
    11 615 m²
  • Terrain urbain
    Consolidé (Terrain)
  • Terrains constructibles
    4
  • Constructibilité
    11615
  • Usage de la parcelle
    Résidentiel

Installations

Caractéristiques supplémentaires:

Terrain constructible

Dans l'immeuble:

Sous-sol

Statistiques des prix du marché pour Terreno en Campo de Mijas

Carte

Malaga, Mijas, Campo de Mijas, Campo de Mijas Aller à cet endroit
Laisser un commentaire sur Terreno en Campo de Mijas
0
0 revues
1
0% (0)
2
0% (0)
3
0% (0)
4
0% (0)
5
0% (0)
SamsaraHomes Real Estate
7 000 000 €
Contacter l'annonceur

Pour plus d’informations, contactez la plateforme

REF: 366734

Critiques à propos de Terreno en Campo de Mijas
Loading...

No reviews have been left for this object yet

Propriétés les plus proches

Explorez les biens immobiliers que nous avons découverts à proximité de ce site

Terreno en venta en Urbanizacion Torreblanca del Sol

Malaga, Fuengirola, Los Pacos, Urbanizacion Torreblanca del Sol
175 000 €

¡Oportunidad única de inversión en la Costa del Sol! Se venden 6 Terrenos ubicad...

0
0 commentaires

Terreno en Valtocado - La Alquería - La Atalaya

Malaga, Mijas, Valtocado - La Alquería - La Atalaya, Valtocado - La Alquería - La Atalaya
185 000 €

Parcela Rústica en El Hornillo Parcela rústica de aproximadamente 13.000 m2, muy...

0
0 commentaires

Terreno en calle las Palomas, 11

Malaga, Fuengirola, Torreblanca del Sol, Calle las Palomas, 11
185 000 €

Espectacular solar de 436 m2 con vista lateral al mar.

0
0 commentaires

Terreno en Los Pacos

Malaga, Fuengirola, Los Pacos, Los Pacos
4 500 000 €

Parcela Edificable en Venta en Los Pacos (Fuengirola) ¡Oportunidad única para pr...

0
0 commentaires

Terreno en calle Jilguero

Malaga, Fuengirola, Torreblanca del Sol, Calle Jilguero
2 150 000 €

Parcela urbana en venta en Urb. Torreblanca del Sol, Fuengirola (Málaga). Tiene...

0
0 commentaires

Terreno en camino de los Rios

Malaga, Mijas, Valtocado - La Alquería - La Atalaya, Camino de los Rios
250 000 €

Excelente oportunidad en Valtocado Si lo que buscas es paz y naturaleza, esta pa...

0
0 commentaires

Terreno en Mijas s/n

Malaga, Mijas, Mijas Pueblo, Mijas s/n
250 000 €

Oportunidad Única de TERRENO con Proyecto Aprobado en la Prestigiosa Zona de Mij...

0
0 commentaires

Terreno en calle María de las Mercedes, 10

Malaga, Fuengirola, Los Pacos, Calle María de las Mercedes, 10
135 000 €

Magnífica parcela de 445 metros a la venta en Los Pacos. Ideal para 1 vivienda u...

0
0 commentaires

Terreno en calle Maria de las Mercedes s/n

Malaga, Fuengirola, Los Pacos, Calle Maria de las Mercedes s/n
185 000 €

Magnífica parcela de 444 metros a la venta en Los Pacos, totalmente llana. Ideal...

0
0 commentaires
Appeler

Nous utilisons nos propres cookies et ceux de tiers pour analyser l’utilisation du site Web et vous montrer des publicités en lien avec vos préférences, sur la base d’un profil établi à partir de vos habitudes de navigation (ex. : pages visitées). Plus d’informations. Acceptez-vous les cookies ?