Terreno en calle 43

Valence, La Pobla de Vallbona, Rascanya, Calle 43
155 000 €
Laisser un commentaire
Urbain Type de bien
637 m² Superficie du terrain
2 Terrains constructibles
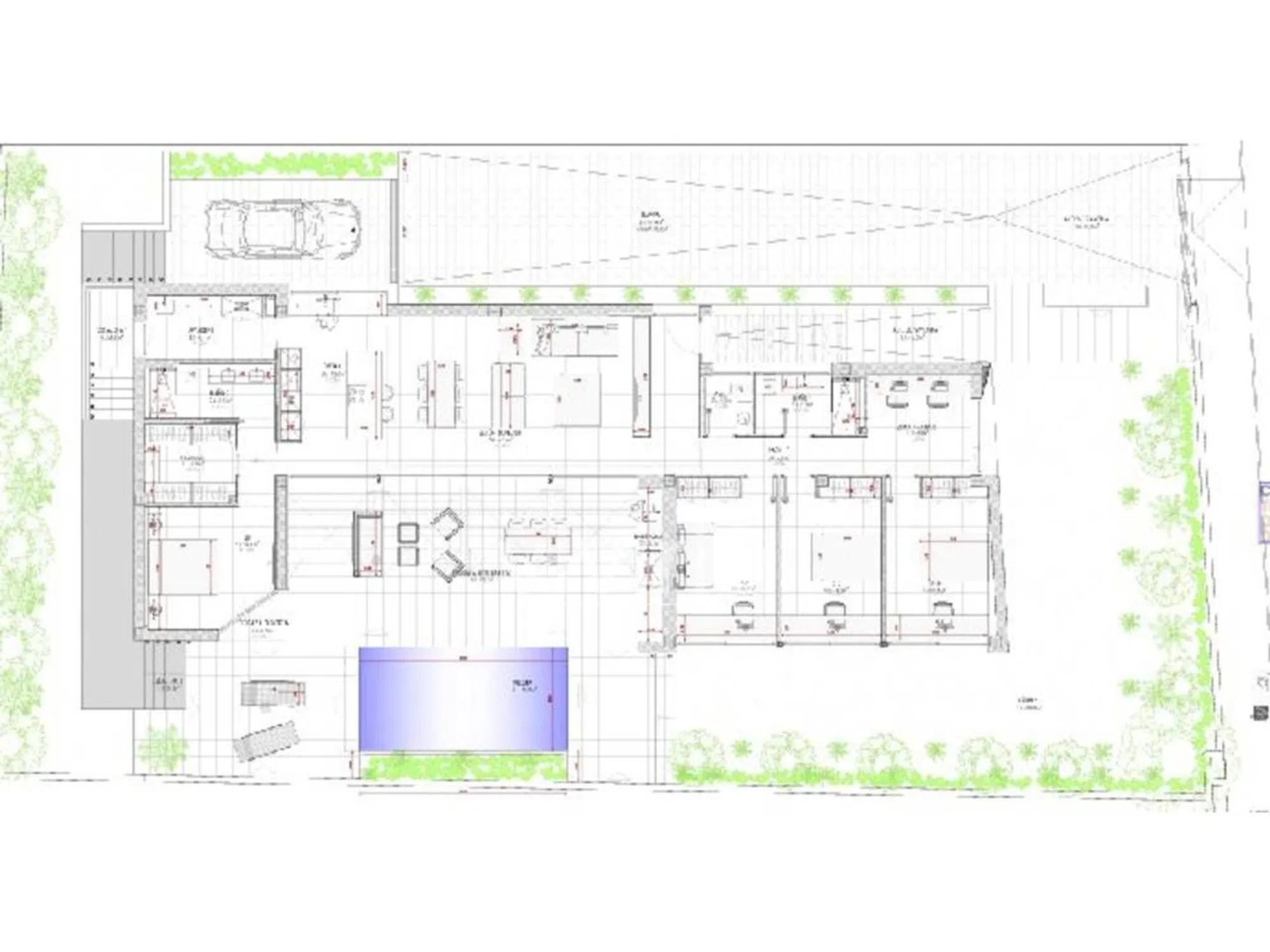
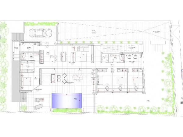
Desde Viviria os presentamos esta PARCELA URBANIZABLE EN VENTA, edificable según la normativa urbanística vigente, para vivienda unifamiliar aislada, ubicada en la UR MONTECOLORADO - LA POBLA DE VALLBONA (VALENCIA). Referencia catastral: 9674662YJ1897S0001LW con superficie de la parcela de 637,00 m², según catastro. EDIFICABILIDAD Y OCUPACIÓN: Edificabilidad máxima: 0,30 → hasta 195,30 m² construibles Ocupación máxima: 60% → hasta 390,60 m² Altura máxima de edificación: 10 m (hasta 2 plantas) Retranqueos mínimos, a vial 6 m y lindes 4 m. OTROS REQUISITOS: Piscina: separación mínima de 1 m a lindes y 1 m de la rasante si se eleva 1 plaza de aparcamiento obligatoria dentro de la parcela Altura de valla o muro: máximo 2 m desde la altura reguladora Con posibilidad de ejecutar el proyecto ya hecho a medida para esta parcela, cuyas infografías os presentamos en las imágenes y con la licencia vigente, se tendría que efectuar un cambio de titular del promotor una vez realizada la venta. Ideal para construir la casa de tus sueños en una zona tranquila y ajardinada Situada en la Urbanización Montecolorado - con excelente conexión y servicios cercanos. La información proporcionada en este anuncio es orientativa, no es vinculante y carece de validez contractual. El precio de venta no incluye honorarios de agencia, impuestos y otros gastos de la compraventa (notaria, gestoría y registro). En Viviria somos especialistas en la gestión integral de los activos inmobiliarios. Te acompañamos en todo el proceso de compraventa, tanto si eres comprador como vendedor, con servicios personalizados y exclusivos. ¡En Viviria te sentirás como en casa! Inscritos en el registro de agentes de intermediación inmobiliaria de la Comunidad Valenciana, RAICV 1326. También puedes contactarnos por WhatsApp: ¡Ven a visitarlo! REF: AP_010_185.

Caractéristiques du bien

Complex information

  • Type de bien
    Urbain

Données de la propriété

  • Type de propriété
    Occasion

Surfaces

  • Superficie du terrain
    637 m²

Base

  • Terrains constructibles
    2

Statistiques des prix du marché pour Terreno en calle 43

Carte

Valence, La Pobla de Vallbona, Rascanya, Calle 43 Aller à cet endroit
Laisser un commentaire sur Terreno en calle 43
0
0 revues
1
0% (0)
2
0% (0)
3
0% (0)
4
0% (0)
5
0% (0)
VIVIRIA
155 000 €
Contacter l'annonceur

Pour plus d’informations, contactez la plateforme

REF: 379908

Critiques à propos de Terreno en calle 43
Loading...

No reviews have been left for this object yet

Propriétés les plus proches

Explorez les biens immobiliers que nous avons découverts à proximité de ce site

Terreno en venta en El Paraiso-Los Almendros

Valence, L'Eliana, El Paraiso-Los Almendros
700 000 €

Este terreno se encuentra en 46183, La Eliana, Valencia. Cerca de la urbaización...

0
0 commentaires

Terreno en venta en calle Guillermo Roch

Valence, La Pobla de Vallbona, Noyau Urbain, Calle Guillermo Roch
1 690 000 €

¡OPORTUNIDAD DE INVERSIÓN LIBRE DE COMISIÓN!Terreno urbano situado en la Calle G...

0
0 commentaires

Terreno en Río Duero s/n

Valence, L'Eliana, Zona Pueblo, Río Duero s/n
1 500 000 €

Terreno listo para construir.

0
0 commentaires

Terreno en calle Fuente De La Teja, 17 A08

Valence, San Antonio de Benagéber, Calle Fuente De La Teja, 17 A08
219 000 €

¡Oportunidad única en San Antonio de Benagecer! Este espectacular terreno de 488...

0
0 commentaires

Terreno en calle s, 12

Valence, La Pobla de Vallbona, Maravisa, Calle S, 12
189 000 €

¡Descubre la oportunidad de construir la casa de tus sueños en un entorno privil...

0
0 commentaires

Terreno en Núcleo Urbano

Valence, La Pobla de Vallbona, Noyau Urbain, Núcleo Urbano
59 000 €

En venta magnifica parcela para construir la casa de sus sueños, parcela urbana...

0
0 commentaires

Terreno en calle de la Soletat, 10

Valence, Benisano, Calle de la Soletat, 10
60 000 €

Oportunidad única de adquirir un terreno, con una situación privilegiada, en el...

0
0 commentaires

Terreno en carretera de Vilamarxant

Valence, Riba-Roja de Túria, Carretera de Vilamarxant
895 000 €

Suelo urbanizable con hotel con obra paralizada ubicado en Vilamarxant, en esplé...

0
0 commentaires

Terreno en calle San Ramón

Valence, L'Eliana, Montesol, Calle San Ramón
280 000 €

PARCELA EN VENTA EN L'ELIANA aProperties presenta esta excelente parcela urbana...

0
0 commentaires
Appeler

Nous utilisons nos propres cookies et ceux de tiers pour analyser l’utilisation du site Web et vous montrer des publicités en lien avec vos préférences, sur la base d’un profil établi à partir de vos habitudes de navigation (ex. : pages visitées). Plus d’informations. Acceptez-vous les cookies ?