Espagne Urbain Espagne Urbain Valence Urbain L'Eliana Terreno en avenida de les Corts Valencianes, 64

Terreno en avenida de les Corts Valencianes, 64

Valence, L'Eliana, Zona Pueblo, Avenida de les Corts Valencianes, 64
900 000 €
Laisser un commentaire
Urbain Type de bien
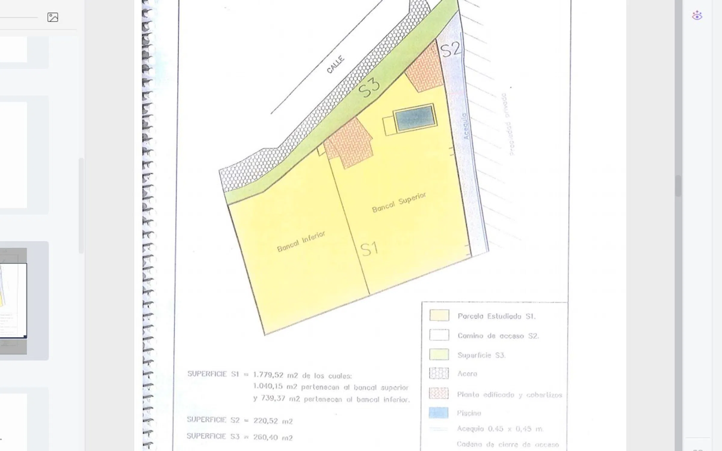
2 261 m² Superficie du terrain
2 261 m² Constructibilité
InmoValencia presenta en el corazón de la Eliana esta amplia parcela de 2260,44 m2. Situada en la Avda de las Cortes Valencianas número 64, rodeada de chalets y urbanizaciones con mucha vida y tiendas y restaurantes de todo tipo REFERENCIA CATASTRAL: 2020814YJ1822S0001ZR APROVECHAMIENTO TIPO: 0,658312 uda/m2s COEFICIENTE PONDERACIÓN: AIS Y ADO 2,25 uda/m2t Si estas interesad@, no dudes en contactar conmigo por teléfono.

Caractéristiques du bien

Complex information

  • Type de bien
    Urbain

Données de la propriété

  • Type de propriété
    Occasion

Surfaces

  • Superficie du terrain
    2 261 m²

Base

  • Parcelle minimale à vendre
    2 261 m²
  • Constructibilité
    2 261 m²

Statistiques des prix du marché pour Terreno en avenida de les Corts Valencianes, 64

Carte

Valence, L'Eliana, Zona Pueblo, Avenida de les Corts Valencianes, 64 Aller à cet endroit
Laisser un commentaire sur Terreno en avenida de les Corts Valencianes, 64
0
0 revues
1
0% (0)
2
0% (0)
3
0% (0)
4
0% (0)
5
0% (0)
Inmovalencia
900 000 €
Contacter l'annonceur

Pour plus d’informations, contactez la plateforme

REF: 380496

Critiques à propos de Terreno en avenida de les Corts Valencianes, 64
Loading...

No reviews have been left for this object yet

Propriétés les plus proches

Explorez les biens immobiliers que nous avons découverts à proximité de ce site

Terreno en venta en calle Mar Cantábrico

Valence, Bétera, Torre en Conill-Cumbres de San Antonio, Calle Mar Cantábrico
200 000 €

Parcela en un entorno de expansión privilegiado a excasos minutos del nucleo urb...

0
0 commentaires

Terreno en venta en El Paraiso-Los Almendros

Valence, L'Eliana, El Paraiso-Los Almendros
700 000 €

Este terreno se encuentra en 46183, La Eliana, Valencia. Cerca de la urbaización...

0
0 commentaires

Terreno en venta en Parc Tecnològic

Valence, Paterna, Parc Technologique
1 850 000 €

Ref. 40060SGIC Real Estate (Grupo InverCasa) dispone para su venta de un suelo I...

0
0 commentaires

Terreno en venta en calle Guillermo Roch

Valence, La Pobla de Vallbona, Noyau Urbain, Calle Guillermo Roch
1 690 000 €

¡OPORTUNIDAD DE INVERSIÓN LIBRE DE COMISIÓN!Terreno urbano situado en la Calle G...

0
0 commentaires

Solar urbano de 555m. en la mejor zona del Plantío

Valence, Paterna
200 000 €

Situado en El Plantío, la mejor zona de La Cañada, donde ya no quedan terrenos p...

0
0 commentaires

Terreno en venta en San Antonio de Benagéber

Valence, San Antonio de Benagéber
140 000 €

PARCELA URBANA DE 500M2 CON INMEJORABLE UBICACION EN COLINAS DE SAN ANTONIOSe tr...

0
0 commentaires

Terreno en Río Duero s/n

Valence, L'Eliana, Zona Pueblo, Río Duero s/n
1 500 000 €

Terreno listo para construir.

0
0 commentaires

Terreno en calle Fuente De La Teja, 17 A08

Valence, San Antonio de Benagéber, Calle Fuente De La Teja, 17 A08
219 000 €

¡Oportunidad única en San Antonio de Benagecer! Este espectacular terreno de 488...

0
0 commentaires

Terreno en calle s, 12

Valence, La Pobla de Vallbona, Maravisa, Calle S, 12
189 000 €

¡Descubre la oportunidad de construir la casa de tus sueños en un entorno privil...

0
0 commentaires

Nous utilisons nos propres cookies et ceux de tiers pour analyser l’utilisation du site Web et vous montrer des publicités en lien avec vos préférences, sur la base d’un profil établi à partir de vos habitudes de navigation (ex. : pages visitées). Plus d’informations. Acceptez-vous les cookies ?