Sprzedaż poddasza w Centro Urbano, Benidorm

Alicante, Benidorm, Centrum Miejskie, Centro Urbano
232 000 €
2 864 € / m2
Zostaw recenzję
Penthouse Rodzaj rynku
1972 Rok oddania
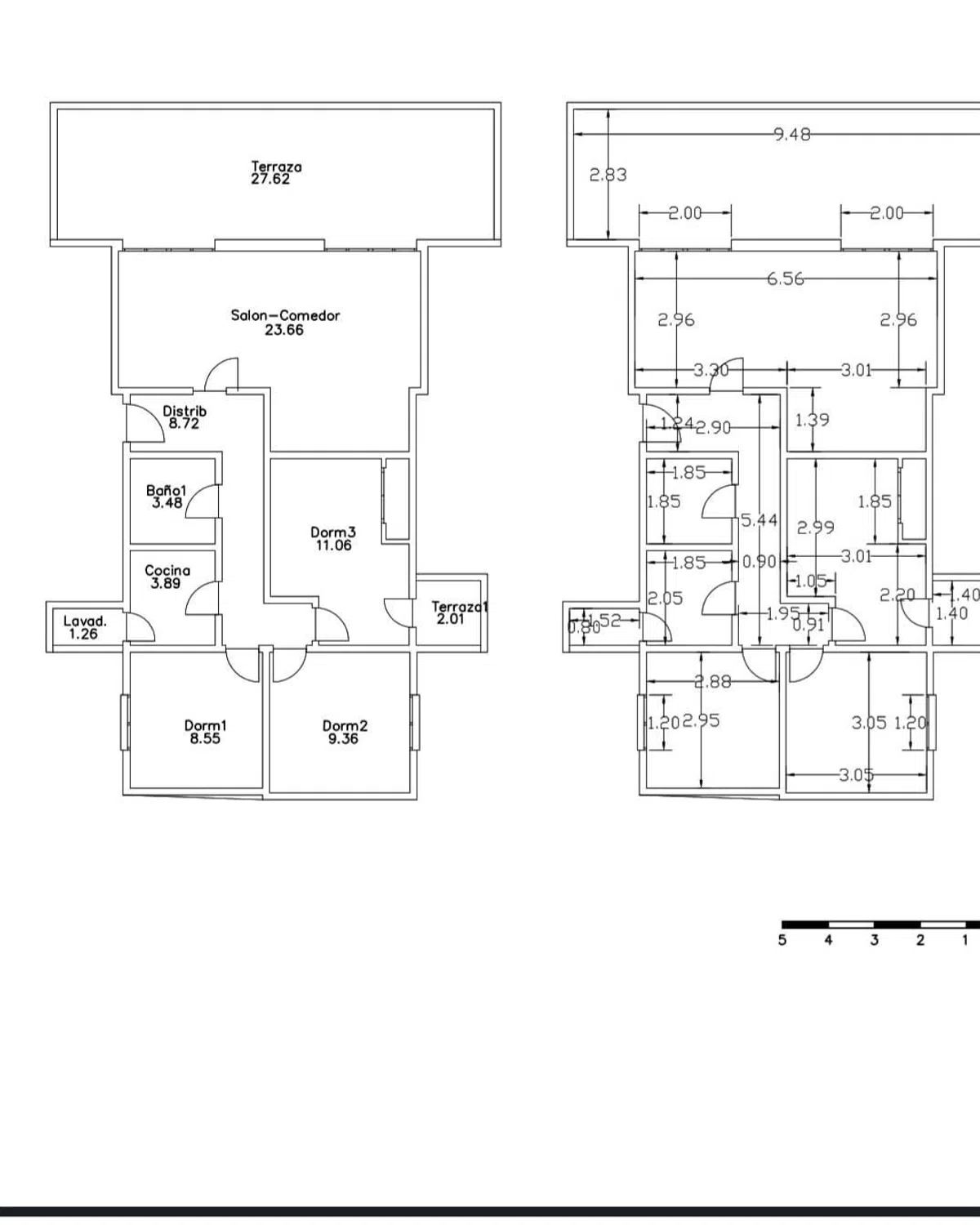
81 m² m2 zabudowane
78 m² m2 użytkowe
1 Łazienki
3 Sypialnie
Elektryczny Ogrzewanie
7 Piętro
Do remontu Stan nieruchomości
Presentamos ático en planta, ubicado en el corazón de Benidorm, a tan solo 250 metros de la emblemática playa Levante. Esta propiedad única originalmente consistía en dos apartamentos independientes que han sido unidos para formar una vivienda versátil con amplias posibilidades. Con una superficie construida de 81 m2, cuenta con tres dormitorios dobles y un baño completo, cocina independiente y galería. Su gran terraza privada de 30 m2 se convierte en el lugar ideal para disfrutar del magnífico clima mediterráneo; perfecta para crear diferentes espacios como zona chill-out, solarium o incluso instalar una pérgola y barbacoa donde compartir momentos inolvidables al aire libre. Aunque requiere reforma integral, esta es precisamente su mayor atractivo: ofrece la oportunidad perfecta tanto para diseñar tu hogar soñado personalizado según tus preferencias como también representa una atractiva inversión inmobiliaria dada su ubicación privilegiada cerca de todos los servicios esenciales: centros médicos, colegios, transporte público parques y supermercados están disponibles a pie de calle. No pierdas esta excepcional ocasión; contáctanos hoy mismo para más información.

Charakterystyka nieruchomości

Complex information

  • Rodzaj rynku
    Penthouse

Informacje o projekcie / Stan budowy

  • Rok oddania
    1972
  • Stan nieruchomości
    Do remontu

Pamięć o Jakości

  • Ogrzewanie
    Elektryczny

Dane nieruchomości

  • Piętro
    7
  • Sypialnie
    3
  • Łazienki
    1
  • m2 zabudowane
    81 m²
  • m2 użytkowe
    78 m²
  • Orientacja
    Północ, Zachód
  • Rodzaj nieruchomości
    Z drugiej ręki

Base

Certyfikat energetyczny

  • Stan certyfikatu energetycznego
    Nie wskazano

Udogodnienia

Udogodnienia mieszkania:

Klimatyzacja
Taras

W budynku:

Winda

Stan:

Do remontu

Statystyki cen rynkowych dla Ático en Centro Urbano

Mapa

Alicante, Benidorm, Centrum Miejskie, Centro Urbano Iść do tego miejsca
Zostaw opinię o Ático en Centro Urbano
0
0 recenzje
1
0% (0)
2
0% (0)
3
0% (0)
4
0% (0)
5
0% (0)
INMOBILIARIA CIFA ARAGON
232 000 €
od 2 864 € / m2
Kontakt z reklamodawcą

Aby uzyskać więcej informacji, skontaktuj się z platformą

REF: 361951

Opinie o Ático en Centro Urbano
Loading...

No reviews have been left for this object yet

Tanie mieszkania 64626 Mieszkania do remontu 21902 Mieszkania do 50.000€ 18663 Mieszkania do 100.000€ 20261 Domy do 100.000€ 20261 Mieszkania z widokiem na morze 19409 Luksusowe mieszkania 19115 Tanie nowe mieszkania 37510 Sprzedaż mieszkań z 2 pokojami Alicante 22543 Sprzedaż mieszkań 3 pokojowych Alicante 20511 Sprzedaż mieszkań 4-pokojowych Alicante 14419 Sprzedaż mieszkań 5 pokoi Alicante 13153 Mieszkania w dobrym stanie Alicante 15864 Mieszkania do remontu Alicante 15406 Mieszkania z drugiej ręki Alicante 33569 Mieszkania z widokiem na morze Alicante 13120 Tanie mieszkania Alicante 34304 Mieszkania na sprzedaż z windą Alicante 27435 Mieszkania do 50.000€ Alicante 13233 Mieszkania do 100.000€ Alicante 14260 Mieszkania nowe budownictwo Alicante 13671 Mieszkania luksusowe Alicante 13110 Mieszkania zewnętrzne Alicante 13134 Tanie nowe mieszkania Alicante 13671 Sprzedaż mieszkań 2 pokoje Benidorm 2524 Sprzedaż mieszkań 3 pokoje Benidorm 2157 Sprzedaż mieszkań 4 pokojowych Benidorm 1147 Sprzedaż mieszkań 5 pokoi Benidorm 907 Mieszkania w dobrym stanie Benidorm 1072 Mieszkania do remontu Benidorm 1740 Mieszkania z drugiej ręki Benidorm 5247 Mieszkania z widokiem na morze Benidorm 896 Tanich mieszkań Benidorm 5263 Mieszkania na sprzedaż z windą Benidorm 4909 Mieszkania do 100.000€ Benidorm 944 Mieszkania z rynku pierwotnego Benidorm 904 Mieszkania do 50.000€ Benidorm 890 Luksusowe mieszkania Benidorm 942 Mieszkania zewnętrzne Benidorm 903 Tanie nowe mieszkania Benidorm 904

Najbliższe nieruchomości

Poznaj pobliskie nieruchomości, które znaleźliśmy w pobliżu tej lokalizacji

Nowa inwestycja mieszkaniowa Eagle Tower w Benidorm.

Alicante, Benidorm, Pueblo Poniente, Calle Calle Pdte. Adolfo Suárez s/n
725 000 €

Nieruchomość w Apartamenty z widokiem na morze to nowoczesny projekt mieszkanio...

0
0 recenzji

Áticos en Venta en Avenida Granada, 62, Finestrat

Alicante, Finestrat, Balcón de Finestrat-Terra Marina, Avenida Granada, 62
409 900 €

¡Directo del promotor!Grupo Immosol presenta su nuevo residencial exclusivo en F...

0
0 recenzji

Áticos en Venta en Cala El Torres s/n, La Villajoyosa / Vila Joiosa

Alicante, La Villajoyosa / Vila Joiosa, Plaża de Torres, Cala El Torres s/n
840 000 €

Apartamenty, penthouse'y i domy szeregowe z 1, 2, 3 i 4 sypialniami, z dużymi ta...

0
0 recenzji

Áticos en Venta en Cala El Torres s/n, La Villajoyosa / Vila Joiosa

Alicante, La Villajoyosa / Vila Joiosa, Plaża de Torres, Cala El Torres s/n
633 500 €

Apartamenty, penthouse'y i domy szeregowe z 1, 2, 3 i 4 sypialniami, z dużymi ta...

0
0 recenzji

Áticos en Venta en Cala El Torres s/n, La Villajoyosa / Vila Joiosa

Alicante, La Villajoyosa / Vila Joiosa, Plaża de Torres, Cala El Torres s/n
1 150 000 €

Apartamenty, penthouse'y i domy szeregowe z 1, 2, 3 i 4 sypialniami, z dużymi ta...

0
0 recenzji

Áticos en Venta en Camino de la Cantera, 1, Alfaz del Pi

Alicante, Alfaz del Pi, L'Albir, Camino de la Cantera, 1
1 100 000 €

Delfin Natura se localiza en una parcela de más de 30.000 m2 en la mejor ubicaci...

0
0 recenzji

Áticos en Venta en Calle Cuba con C/Venezuela s/n, Finestrat

Alicante, Finestrat, Balcón de Finestrat-Terra Marina, Calle Cuba con C/Venezuela s/n
350 000 €

Seascape Blue se encuentra ubicada junto a Seascape Resort, en Benidorm en la pa...

0
0 recenzji

Ático en venta en Sant Ramon

Alicante, Benidorm, Centrum urbanistyczne, Sant Ramon
120 000 €

Na sprzedaż znajduje się czwarta kondygnacja z czterema sypialniami, w pełni odn...

0
0 recenzji

Ático en venta en Playa de Poniente

Alicante, Benidorm, Plaża Poniente
283 500 €

Na sprzedaż przestronny apartament na ostatnim piętrze z trzema podwójnymi sypia...

0
0 recenzji
Zadzwoń

Używamy własnych plików cookie oraz plików cookie stron trzecich do analizy korzystania z witryny i wyświetlania reklam dopasowanych do Twoich preferencji, na podstawie profilu utworzonego na podstawie Twoich nawyków przeglądania (np. odwiedzonych stron). Więcej informacji. Czy akceptujesz pliki cookie?