Hiszpania Chalet niezależny Hiszpania Chalet niezależny Alicante Chalet niezależny Finestrat Casa o chalet independiente en venta en Balcón de Finestrat-Terra Marina

Sprzedaż niezależnego domku jednorodzinnego w Balcón de Finestrat-Terra Marina , Finestrat

Alicante, Finestrat, Balcón de Finestrat-Terra Marina
720 000 €
5 902 € / m2
Zostaw recenzję
Chalet niezależny Rodzaj rynku
2023 Rok oddania
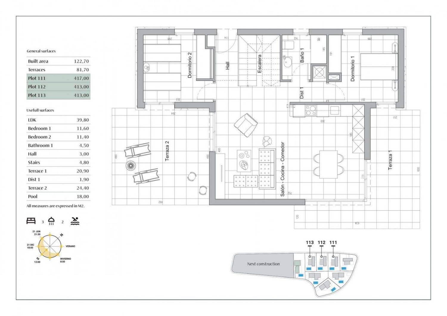
122 m² m2 zabudowane
2 Łazienki
3 Sypialnie
Nie ma ogrzewania Ogrzewanie
Wliczone w cenę Garaż
2 Piętro

NOWE WILLE W FINESTRAT

Oferujemy wyjątkowy kompleks rezydencyjny z nowoczesnymi willami, które zachwycają swoim pięknem. Oferowane domy posiadają 3 sypialnie oraz 2 łazienki, dostępne w układzie jedno- lub dwupoziomowym. Każda willa dysponuje otwartą kuchnią połączoną z jadalnią i salonem, a duże okna gwarantują doskonały widok na przestronne ogrody oraz prywatne baseny.

Do każdej willi przynależy prywatne miejsce parkingowe. Niepowtarzalne widoki na Morze Śródziemne sprawią, że każde spędzone tutaj chwile będą wyjątkowe i niezapomniane.

Kompleks zlokalizowany jest w malowniczym regionie, blisko dwóch pól golfowych, parków rozrywki oraz dużego centrum handlowego. Zaledwie kilka minut dzieli go od plaż, a pobliskie tereny zachwycają pięknem przyrody.

Finestrat położone jest w regionie Marina Baixa na Costa Blanca, w sąsiedztwie znanego ośrodka turystycznego. To urokliwe miasteczko usytuowane jest na zboczach Puig Campana i oferuje zapierające dech w piersiach widoki na góry, wybrzeże oraz Morze Śródziemne.

Charakterystyka nieruchomości

Complex information

  • Rodzaj rynku
    Chalet niezależny

Informacje o projekcie / Stan budowy

  • Rok oddania
    2023

Pamięć o Jakości

  • Ogrzewanie
    Nie ma ogrzewania

Dane nieruchomości

  • Typ kuchni
    Kuchnia amerykańska
  • Garaż
    Wliczone w cenę
  • Piętro
    2
  • Sypialnie
    3
  • Łazienki
    2
  • m2 zabudowane
    122 m²
  • Typ projektu
    Nowoczesny
  • Rodzaj nieruchomości
    Z drugiej ręki

Certyfikat energetyczny

  • Stan certyfikatu energetycznego
    W trakcie załatwiania

Udogodnienia

Udogodnienia mieszkania:

Szafy wnękowe
Ogrzewanie
Okna wewnętrzne
Taras

W budynku:

Basen
Garaż
Pole golfowe
Ogród

Widoki:

Widoki na morze

Stan:

Dobry stan
Nowa budowa

Statystyki cen rynkowych dla Casa o chalet independiente en venta en Balcón de Finestrat-Terra Marina

732 776 € (3 430 €/m2)
Średnia cena pierwotnego Chalet niezależny w mieście Finestrat
782 754 € (2 963 €/m2)
Średnia cena wtórnego Chalet niezależny w mieście Finestrat
708 240 € (3 713 €/m2)
Średnia cena pierwotnego Chalet niezależny w dzielnicy Balcón de Finestrat-Terra Marina
627 289 € (2 638 €/m2)
Średnia cena wtórnego Chalet niezależny w dzielnicy Balcón de Finestrat-Terra Marina

Mapa

Alicante, Finestrat, Balcón de Finestrat-Terra Marina Iść do tego miejsca
Zostaw opinię o Casa o chalet independiente en venta en Balcón de Finestrat-Terra Marina
0
0 recenzje
1
0% (0)
2
0% (0)
3
0% (0)
4
0% (0)
5
0% (0)
Planeta-spain
720 000 €
od 5 902 € / m2
Kontakt z reklamodawcą
34672526643
Czas pracy: 09:00-20:00

Aby uzyskać więcej informacji, skontaktuj się z platformą

REF: 50889

Opinie o Casa o chalet independiente en venta en Balcón de Finestrat-Terra Marina
Loading...

No reviews have been left for this object yet

Najbliższe nieruchomości

Poznaj pobliskie nieruchomości, które znaleźliśmy w pobliżu tej lokalizacji

Chalet independiente en Venta en Calle roma, 23, Finestrat

Alicante, Finestrat, Golf Bahía, Calle roma, 23
1 750 000 €

Nueva villa terminada en Sierra Cortina de Finestrat (Alicante).Les ofrecemos un...

0
0 recenzji

Przestronny, niezależny domek do sprzedaży w malowniczej okolicy Finestrat. Ta wyjątkowa nieruchomość oferuje komfort i prywatność, idealne dla osób poszukujących idyllicznego miejsca do życia czy na wypoczynek. Atrakcyjne otoczenie sprzyja relaksowi oraz

Alicante, Finestrat, Balcón de Finestrat-Terra Marina, Calle d'Equador s/n
545 000 €

Ten wyjątkowy kompleks mieszkaniowy w nowoczesnym stylu znajduje się w Finestrat...

0
0 recenzji

Samodzielny chalet na sprzedaż w malowniczej lokalizacji w Finestrat. To wyjątkowe miejsce oferuje komfort i prywatność, idealne dla osób szukających spokojnego wypoczynku w otoczeniu natury. Warto zwrócić uwagę na przestronne wnętrza oraz piękne otoczeni

Alicante, Finestrat, Balcón de Finestrat-Terra Marina, Calle d'Equador s/n
635 000 €

Ten nowoczesny kompleks mieszkalny zlokalizowany w Finestrat oferuje różnorodne...

0
0 recenzji

Na sprzedaż dom wolnostojący w Finestrat.

Alicante, Finestrat, Balcón de Finestrat-Terra Marina, Calle d'Equador s/n
1 250 000 €

Ten nowoczesny kompleks mieszkalny położony w malowniczej okolicy Finestrat ofer...

0
0 recenzji

Na sprzedaż komfortowy dom w malowniczej okolicy Finestrat. Ten przestronny, niezależny chalet to doskonała propozycja dla osób szukających unikalnego miejsca do życia. Otoczony piękną naturą, oferuje zarówno prywatność, jak i relaks w wyjątkowym otoczeni

Alicante, Finestrat, Balcón de Finestrat-Terra Marina, Calle d'Equador s/n
550 000 €

Nowoczesny kompleks mieszkalny znajduje się w urokliwej okolicy i oferuje różnor...

0
0 recenzji

Dom wolnostojący na sprzedaż w Finestrat.

Alicante, Finestrat, Balcón de Finestrat-Terra Marina, Calle d'Equador s/n
640 000 €

Ten kompleks mieszkalny z nowymi budynkami znajduje się w regionie Finestrat i o...

0
0 recenzji

Dom jednorodzinny na sprzedaż w Finestrat.

Alicante, Finestrat, Balcón de Finestrat-Terra Marina, Calle d'Equador s/n
645 000 €

Ten nowoczesny kompleks mieszkaniowy położony w Finestrat oferuje różnorodne mie...

0
0 recenzji

Sprzedam niezależny dom w malowniczej okolicy Finestrat. To wyjątkowe miejsce oferuje komfort i prywatność, idealne dla osób poszukujących spokoju oraz bliskości do pięknych krajobrazów. Dom charakteryzuje się nowoczesnym wykończeniem oraz funkcjonalnym r

Alicante, Finestrat, Balcón de Finestrat-Terra Marina, Calle d'Equador s/n
639 000 €

Ten nowoczesny kompleks mieszkalny znajduje się w Finestrat i oferuje różnorodne...

0
0 recenzji

Dom wolnostojący na sprzedaż w malowniczej okolicy Finestrat. To wyjątkowe miejsce łączy w sobie komfort i urok, oferując przestronną przestrzeń, która idealnie nadaje się do relaksu i odpoczynku. Oferuje panoramiczne widoki oraz doskonałe warunki do życi

Alicante, Finestrat, Balcón de Finestrat-Terra Marina, Calle d'Equador s/n
1 900 000 €

Ten nowoczesny kompleks mieszkalny znajduje się w Finestrat i oferuje różnorodne...

0
0 recenzji
Zadzwoń

Używamy własnych plików cookie oraz plików cookie stron trzecich do analizy korzystania z witryny i wyświetlania reklam dopasowanych do Twoich preferencji, na podstawie profilu utworzonego na podstawie Twoich nawyków przeglądania (np. odwiedzonych stron). Więcej informacji. Czy akceptujesz pliki cookie?