Hiszpania Domy Hiszpania Domy Alicante Domy La Nucia Casa independiente en Urbanización Puerto Azul, 45

Nowa nieruchomość Casa independiente en Urbanización Puerto Azul, 45 w La Nucia

Alicante, La Nucia, El Tossal-Bello Horizonte, Urbanización Puerto Azul, 45
1 150 000 €
4 694 € / m2
Zostaw recenzję
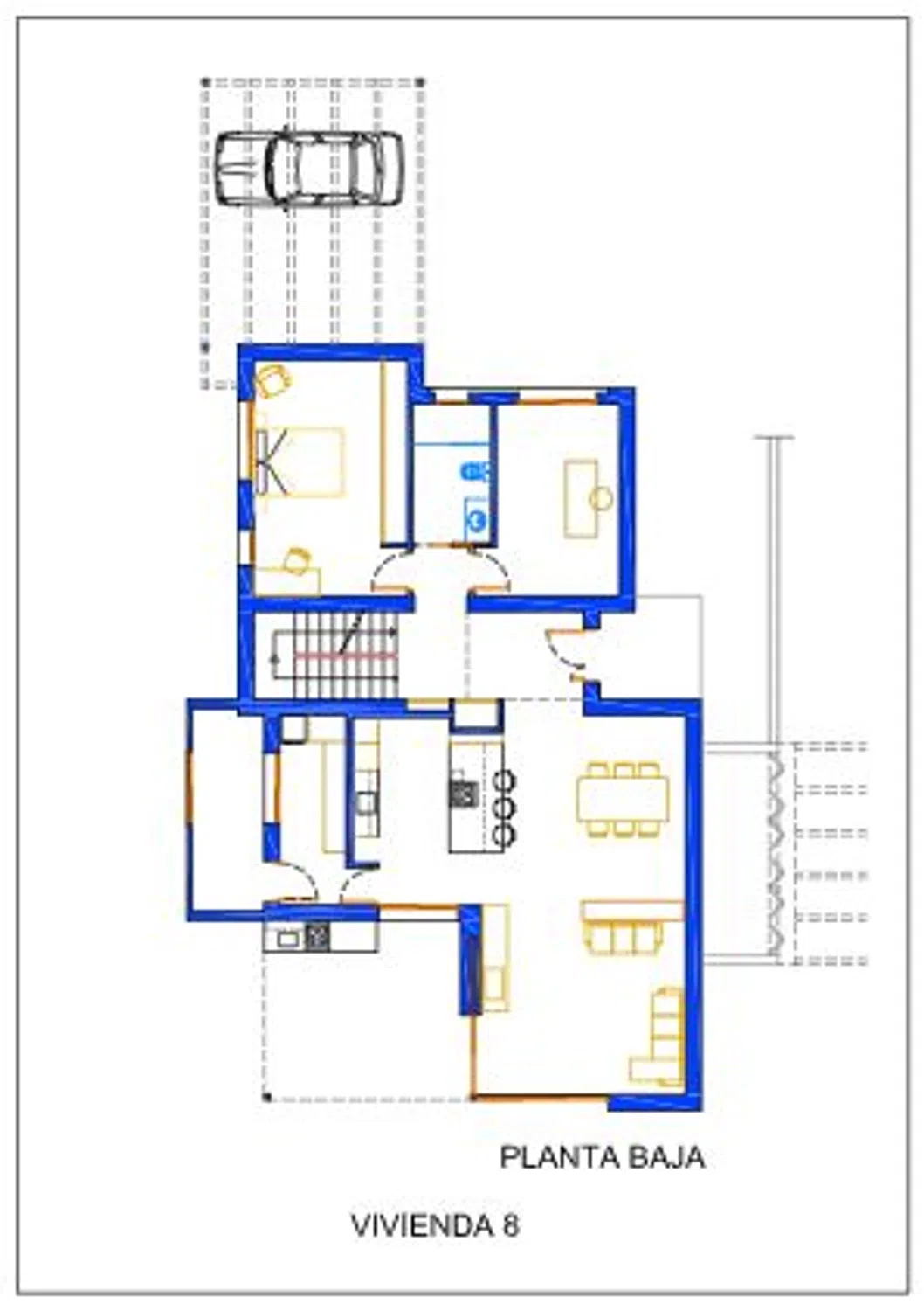
4 Sypialnie
245 m² m2 zabudowane
1 016 m² Powierzchnia działki
3 Łazienki
Nowa budowa Stan nieruchomości
**Casa / Chalet Independiente en Venta - Residencial Don Julio** Descubre una nueva promoción exclusiva a 5 min del centro de Altea “Residencial Don Julio”, ubicada en una de las mejores zonas cercanas a Altea, disfrutará de excelentes vistas en un entorno muy tranquilo a dos pasos de todo lo que necesitas para llevar una vida agradable y cómoda. Disfrutará durante las 24 horas del día gracias a una orientación óptima del cálido clima de la Costa Blanca. Su perfecta ubicación sitúa el residencial cerca de Altea, La Nucía, y Alfaz del Pi. Se accede por una vía de acceso privado cerrada a las 8 viviendas. Entra en una vivienda espaciosa pensada y diseñada para ser un lugar de residencia ideal, luminoso y espacioso. La planta baja, confortable, y acogedora, ofrece una generosa superficie útil de 178,50 m², diseñada cuidadosamente para proporcionar una cómoda vida diaria. El amplio salón comedor, seguido de la cocina y una galería para completar un espacio de vida diurna, con acceso directo a la zona de ocio y disfrute del jardín, piscina y barbacoa. En la planta superior de 123,90 m² útiles se encuentran dos dormitorios con baños en suite y su terraza bioclimática. En la parte trasera se encuentra un solárium idealmente diseñado con barandilla de vidrio. Cada vivienda dispone de 3 amplias plazas de aparcamiento. La Villa ofrece una parcela amplia y vistas al mar. Les invitamos a descubrir nuestros catálogos donde encontrar una descripción completa de este exclusivo proyecto Las viviendas cuentan con todos los extras detallados más adelante.

Wyróżnione promocje w Hiszpanii

10 jednostki

Nature Views 2

Alicante, Torrevieja, Los Balcones - Los Altos del Edén, Denia s/n
310 000 € - 379 000 €
1 jednostki

Hotel en venta en Benidorm centro

Alicante, Benidorm, Plaża Poniente
2 250 000 € - 2 250 000 €
28 jednostki

Residencial Los Balcones De Calpe

Alicante, Kalpe, Calpe Pueblo, Avenida de Madrid, 1
299 000 € - 892 125 €
4 jednostki

Nature Views

Alicante, Torrevieja, Lago Jardín II, Avenida Denia s/n
309 000 € - 330 000 €
5 jednostki

ALONIS VILLAS

Alicante, La Villajoyosa / Vila Joiosa, Plaża de Torres, Partida Torres s/n
675 000 € - 775 000 €
1 jednostki

Residencial Royal Beach

Alicante, Guardamar del Segura, pueblo, Miguel Hernández 102
349 500 € - 349 500 €
7 jednostki

Royal Star

Alicante, Guardamar del Segura
229 500 € - 269 500 €

Charakterystyka nieruchomości

Complex information

Informacje o projekcie / Stan budowy

  • Stan nieruchomości
    Nowa budowa

Dane nieruchomości

  • Sypialnie
    4
  • Łazienki
    3
  • m2 zabudowane
    245 m²
  • Rodzaj nieruchomości
    Z drugiej ręki

Powierzchnie

  • Powierzchnia działki
    1 016 m²

Base

Certyfikat energetyczny

  • Certyfikat energetyczny
    A
  • Emisje
    2 kg CO2/m² year
  • Zużycie energii
    8 kwh/m² year

Udogodnienia

Udogodnienia mieszkania:

Klimatyzacja
Magazyn
Taras

W budynku:

Basen
Ogród

Stan:

Nowa budowa

Statystyki cen rynkowych dla Casa independiente en Urbanización Puerto Azul, 45

623 691 € (3 089 €/m2)
Średnia cena pierwotnego w mieście La Nucia
570 693 € (2 102 €/m2)
Średnia cena wtórnego w mieście La Nucia

Mapa

Alicante, La Nucia, El Tossal-Bello Horizonte, Urbanización Puerto Azul, 45 Iść do tego miejsca
Zostaw opinię o Casa independiente en Urbanización Puerto Azul, 45
0
0 recenzje
1
0% (0)
2
0% (0)
3
0% (0)
4
0% (0)
5
0% (0)
Atenea Inmobiliaria
1 150 000 €
od 4 694 € / m2
Kontakt z reklamodawcą

Aby uzyskać więcej informacji, skontaktuj się z platformą

REF: 442766

Opinie o Casa independiente en Urbanización Puerto Azul, 45
Loading...

No reviews have been left for this object yet

Najbliższe nieruchomości

Poznaj pobliskie nieruchomości, które znaleźliśmy w pobliżu tej lokalizacji

Chalet independiente en Venta en Calle Rei Jaume I, 1, Polop

Alicante, Polop, Casco urbano, Calle Rei Jaume I, 1
650 000 €

¡Directo del Promotor! ¡Calidades Top! ¡Certificado energético A!Fantástica prom...

0
0 recenzji

Chalet independiente en Venta en Calle Rei Jaume I, 1, Polop

Alicante, Polop, Casco urbano, Calle Rei Jaume I, 1
595 000 €

¡Directo del Promotor! ¡Calidades Top! ¡Certificado energético A!Fantástica prom...

0
0 recenzji

Chalet independiente en Venta en Calle Rei Jaume I, 1, Polop

Alicante, Polop, Casco urbano, Calle Rei Jaume I, 1
650 000 €

¡Directo del Promotor! ¡Calidades Top! ¡Certificado energético A!Fantástica prom...

0
0 recenzji

Chalet independiente en Venta en Calle Rei Jaume I, 1, Polop

Alicante, Polop, Casco urbano, Calle Rei Jaume I, 1
650 000 €

¡Directo del Promotor! ¡Calidades Top! ¡Certificado energético A!Fantástica prom...

0
0 recenzji

Chalet independiente en Venta en Calle Rei Jaume I, 1, Polop

Alicante, Polop, Casco urbano, Calle Rei Jaume I, 1
595 000 €

¡Directo del Promotor! ¡Calidades Top! ¡Certificado energético A!Fantástica prom...

0
0 recenzji

Chalet independiente en Venta en Calle Rei Jaume I, 1, Polop

Alicante, Polop, Casco urbano, Calle Rei Jaume I, 1
595 000 €

¡Directo del Promotor! ¡Calidades Top! ¡Certificado energético A!Fantástica prom...

0
0 recenzji

Chalet independiente en Venta en Calle Turquesa , 4, Alfaz del Pi

Alicante, Alfaz del Pi, Kolonia Escandinavia-Cautivador, Calle Turquesa , 4
667 000 €

PROMOCIÓN PIONERA EN LA COSTA BLANCA de 12 viviendas independientes con envolven...

0
0 recenzji

Chalet independiente en Venta en Calle Turquesa , 4, Alfaz del Pi

Alicante, Alfaz del Pi, Kolonia Escandinavia-Cautivador, Calle Turquesa , 4
655 000 €

PROMOCIÓN PIONERA EN LA COSTA BLANCA de 12 viviendas independientes con envolven...

0
0 recenzji

Chalet independiente en Venta en Calle Turquesa , 4, Alfaz del Pi

Alicante, Alfaz del Pi, Kolonia Escandinavia-Cautivador, Calle Turquesa , 4
595 000 €

PROMOCIÓN PIONERA EN LA COSTA BLANCA de 12 viviendas independientes con envolven...

0
0 recenzji

Używamy własnych plików cookie oraz plików cookie stron trzecich do analizy korzystania z witryny i wyświetlania reklam dopasowanych do Twoich preferencji, na podstawie profilu utworzonego na podstawie Twoich nawyków przeglądania (np. odwiedzonych stron). Więcej informacji. Czy akceptujesz pliki cookie?