Sprzedaż mieszkania w D'Edeta, La Villajoyosa / Vila Joiosa

Alicante, La Villajoyosa / Vila Joiosa, Plaża de Torres, D'Edeta
690 000 €
6 449 € / m2
Zostaw recenzję
Mieszkania Rodzaj rynku
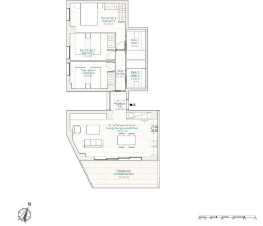
107 m² m2 zabudowane
76 m² m2 użytkowe
2 Łazienki
3 Sypialnie
Wliczone w cenę Garaż
4 Piętro
Dobry stan Stan nieruchomości
Una oportunidad única en la vida para adquirir un apartamento excepcional en primera línea de playa, en una de las ubicaciones más privilegiadas y espectaculares de toda la Costa Blanca: Villajoyosa. Esta extraordinaria propiedad no es solo una vivienda, sino una joya irrepetible que ofrece acceso directo al mar Mediterráneo, combinando lujo refinado, diseño impecable y un entorno absolutamente inigualable. Situada dentro de un complejo residencial exclusivo y de alto nivel, esta vivienda forma parte de un proyecto visionario donde la arquitectura, la comodidad y la naturaleza se fusionan en un auténtico oasis de tranquilidad. Imagínese despertar cada día con el suave sonido de las olas, el aroma fresco del mar mezclado con el embriagador perfume del famoso chocolate de Villajoyosa, y vistas panorámicas que se extienden infinitamente por la brillante costa. Ubicada literalmente en primera línea del mar, esta residencia ofrece una paz absoluta en un entorno protegido y privado, pero a solo unos minutos de la vibrante vida de Benidorm, a tan solo 3 minutos en coche. Cada rincón del apartamento ha sido diseñado para transmitir sofisticación y calma. Interiores amplios bañados en luz natural, espacios abiertos, ventanales de suelo a techo y una espectacular terraza que invita al mar a formar parte del hogar. Todo ha sido construido con los más altos estándares de calidad, ofreciendo una combinación perfecta de estética, funcionalidad y confort superior. Dentro del complejo, le espera una oferta incomparable de servicios: varias piscinas, zonas de spa interior y exterior con hidromasaje, sauna y hammam, jardines paisajísticos, zonas de yoga y bienestar, campo de croquet, parque infantil, garaje subterráneo y amplios trasteros. La infraestructura circundante es igualmente destacada: excelentes conexiones de transporte público, comercios locales, restaurantes de calidad y acceso directo a los mejores parques temáticos y opciones de ocio de la Costa Blanca. Villajoyosa es, en sí misma, un tesoro: auténtica, colorida y llena de historia. Con su casco antiguo encantador, playas de aguas cristalinas y un ambiente relajado, ofrece el equilibrio perfecto entre estilo de vida mediterráneo y lujo moderno. Este apartamento no es solo una propiedad, es un tesoro frente al mar donde cada instante se vive como unas vacaciones. Disfrute de lo mejor que la Costa Blanca tiene para ofrecer. [IW].

Charakterystyka nieruchomości

Complex information

  • Rodzaj rynku
    Mieszkania

Informacje o projekcie / Stan budowy

  • Stan nieruchomości
    Dobry stan

Dane nieruchomości

  • Garaż
    Wliczone w cenę
  • Piętro
    4
  • Sypialnie
    3
  • Łazienki
    2
  • m2 zabudowane
    107 m²
  • m2 użytkowe
    76 m²
  • Rodzaj nieruchomości
    Z drugiej ręki

Base

Certyfikat energetyczny

  • Certyfikat energetyczny
    B

Udogodnienia

Udogodnienia mieszkania:

Klimatyzacja
Taras

W budynku:

Basen
Winda
Ogród
Parking prywatny

Widoki:

Widoki na morze
Jasne widoki

Plany

Statystyki cen rynkowych dla Piso en d'Edeta

386 705 € (4 224 €/m2)
Średnia cena pierwotnego Mieszkania w mieście La Villajoyosa / Vila Joiosa
255 476 € (2 467 €/m2)
Średnia cena wtórnego Mieszkania w mieście La Villajoyosa / Vila Joiosa
445 591 € (4 017 €/m2)
Średnia cena pierwotnego Mieszkania w dzielnicy Plaża de Torres
623 365 € (5 577 €/m2)
Średnia cena wtórnego Mieszkania w dzielnicy Plaża de Torres

Mapa

Alicante, La Villajoyosa / Vila Joiosa, Plaża de Torres, D'Edeta Iść do tego miejsca
Zostaw opinię o Piso en d'Edeta
0
0 recenzje
1
0% (0)
2
0% (0)
3
0% (0)
4
0% (0)
5
0% (0)
Belspa Real Estate SL
690 000 €
od 6 449 € / m2
Kontakt z reklamodawcą

Aby uzyskać więcej informacji, skontaktuj się z platformą

REF: 238436

Opinie o Piso en d'Edeta
Loading...

No reviews have been left for this object yet

Najbliższe nieruchomości

Poznaj pobliskie nieruchomości, które znaleźliśmy w pobliżu tej lokalizacji

Apartamentos en Venta en Calle de Bolivia s/n, Finestrat

Alicante, Finestrat, Balcón de Finestrat-Terra Marina, Calle de Bolivia s/n
370 000 €

El apartamento está en planta baja tiene 38 m2 de terraza, tiene 2 habitaciones...

0
0 recenzji

Apartamentos en Venta en Calle de Bolivia s/n, Finestrat

Alicante, Finestrat, Balcón de Finestrat-Terra Marina, Calle de Bolivia s/n
380 000 €

Estos apartamentos está nen 1ª, 2ª, 3ª y 4ª planta. Tienen 115 m2, 2 habitacione...

0
0 recenzji

Apartamentos en Venta en Calle de Bolivia s/n, Finestrat

Alicante, Finestrat, Balcón de Finestrat-Terra Marina, Calle de Bolivia s/n
410 000 €

El conjunto residencial camporosso Serpentine se distribuye en dos parcelas line...

0
0 recenzji

Apartamentos en Venta en Calle de Bolivia s/n, Finestrat

Alicante, Finestrat, Balcón de Finestrat-Terra Marina, Calle de Bolivia s/n
410 000 €

Este apartamento está en 3ª planta, tiene 3 habitaciones y un jardín de 70 m2.El...

0
0 recenzji

Apartamentos en Venta en Calle de Bolivia s/n, Finestrat

Alicante, Finestrat, Balcón de Finestrat-Terra Marina, Calle de Bolivia s/n
445 000 €

Estos apartamentos están en 3ª y 4ª planta. Tienen 145 m2, 3 habitaciones y una...

0
0 recenzji

Apartamentos en Venta en Calle Benimantell s/n, La Villajoyosa / Vila Joiosa

Alicante, La Villajoyosa / Vila Joiosa, Plany - Gasparot, Calle Benimantell s/n
215 000 €

Este es el tercer edificio que completará el complejo y ofrece apartamentos mode...

0
0 recenzji

Apartamentos en Venta en Calle Benimantell s/n, La Villajoyosa / Vila Joiosa

Alicante, La Villajoyosa / Vila Joiosa, Plany - Gasparot, Calle Benimantell s/n
270 000 €

Este es el tercer edificio que completará el complejo y ofrece apartamentos mode...

0
0 recenzji

Apartamentos en Venta en Calle Benimantell s/n, La Villajoyosa / Vila Joiosa

Alicante, La Villajoyosa / Vila Joiosa, Plany - Gasparot, Calle Benimantell s/n
375 000 €

Este es el tercer edificio que completará el complejo y ofrece apartamentos mode...

0
0 recenzji

Nowa inwestycja mieszkaniowa Eagle Tower w Benidorm.

Alicante, Benidorm, Pueblo Poniente, Calle Calle Pdte. Adolfo Suárez s/n
395 000 €

Nieruchomość w Apartamenty z widokiem na morze to nowoczesny projekt mieszkanio...

0
0 recenzji

Używamy własnych plików cookie oraz plików cookie stron trzecich do analizy korzystania z witryny i wyświetlania reklam dopasowanych do Twoich preferencji, na podstawie profilu utworzonego na podstawie Twoich nawyków przeglądania (np. odwiedzonych stron). Więcej informacji. Czy akceptujesz pliki cookie?