Hiszpania Pierwotny Hiszpania Pierwotny Awila Pierwotny Awiła Residencial Academia Chalet adosado en venta en calle Gloria Fuertes s/n

Sprzedaż szeregowego domku w Calle Gloria Fuertes s/n , Awiła

Awila, Awiła, Hervencias, Calle Gloria Fuertes s/n
Wyprzedaż
Zostaw recenzję
Szeregowe domy Rodzaj rynku
263 m² m2 zabudowane
5 Łazienki
4 Sypialnie
4 Piętro
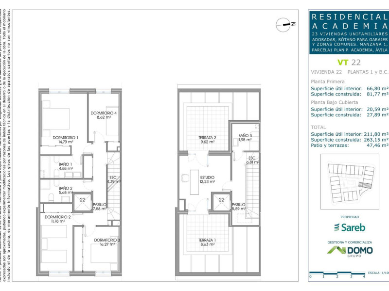
Promoción de 23 viviendas unifamiliares adosadas en manzana cerrada con piscina comunitaria. La parcela se encuentra situada entre las calles Rosalía de Castro, Pintor Caprotti, Gloria Fuertes y Emilia Pardo Bazán. Junto a la Escuela Nacional de Policía y a escasos minutos del Hospital Nuestra Señora de Sonsoles. Todas las viviendas disponen de 4 dormitorios, 3 baños y dos aseos distribuidos en 4 plantas:En la planta baja se encuentra el acceso a la vivienda, el salón, cocina, tendedero y aseo de cortesía. Desde esta planta se accede al patio privado y a la zona común de piscina.En primera planta se distribuyen los 4 dormitorios y dos baños, uno en suite en la habitación principal.La planta Bajocubierta dispone de una estancia cuyo uso pudiera ser como despacho o cuarto de estar con salida a dos terrazas en zona bajo cubierta tendríamos un estudio dos terrazas y un baño.Por último, en planta sótano se encuentra el garaje cubierto con espacio para dos coches, una amplia estancia multiusos, un aseo y la zona de lavadero y despensa.UBICACIÓNEsta promoción se encuentra ubicada en la ciudad amurallada de Ávila, declarada patrimonio de la Humanidad, a menos de cuatro kilómetros del centro de la ciudad y a tan solo 500 metros de la Academia de la Policía Nacional, referente de la zona ya que es una de las infraestructuras con más importancia de la ciudad. Se trata de una zona residencial, muy cerca de la Senda verde de la Sierra, ruta ideal para los amantes del senderismo. Está dotada de todos los servicios (comercial, deportivo, ocio, educación, …). Nuestra parcela se encuentra a escasos minutos del Centro Comercial El Bulevar, Carrefour, Decathlon, Leroy Merlin… y a tan solo cinco minutos el Hospital Nuestra Señora de Sonsoles. Muy bien comunicada, con fácil acceso a la AV-20 y AP51 al igual que al centro de la ciudad. Y a tan solo siete minutos de la estación de Renfe y Autobuses de la ciudad. Ponte en contacto con nosotros para ampliar información o reservar vivienda. También puedes pinchar en el enlace de nuestra página Web y dejarnos tus datos, para ponernos en contacto contigo.

Charakterystyka nieruchomości

Complex information

  • Kompleks mieszkalny
    Residencial Academia
  • Rodzaj rynku
    Szeregowe domy

Dane nieruchomości

  • Piętro
    4
  • Sypialnie
    4
  • Łazienki
    5
  • m2 zabudowane
    263 m²
  • Rodzaj nieruchomości
    Nowa budowa

Certyfikat energetyczny

  • Certyfikat energetyczny
    B

Udogodnienia

Udogodnienia mieszkania:

Spiżarnia
Taras

W budynku:

Basen
Spa

Statystyki cen rynkowych dla Chalet adosado en venta en calle Gloria Fuertes s/n

Mapa

Awila, Awiła, Hervencias, Calle Gloria Fuertes s/n Iść do tego miejsca
Zostaw opinię o Chalet adosado en venta en calle Gloria Fuertes s/n
0
0 recenzje
1
0% (0)
2
0% (0)
3
0% (0)
4
0% (0)
5
0% (0)
Residencial Academia
Kompleks mieszkalny
Wyprzedaż
Kontakt z reklamodawcą

Aby uzyskać więcej informacji, skontaktuj się z platformą

REF: 2395

Opinie o Chalet adosado en venta en calle Gloria Fuertes s/n
Loading...

No reviews have been left for this object yet

Najbliższe nieruchomości

Poznaj pobliskie nieruchomości, które znaleźliśmy w pobliżu tej lokalizacji

Adosados en Venta en Calle Gloria Fuertes s/n, Ávila

Awila, Awiła, Hervencias, Calle Gloria Fuertes s/n
233 000 €

Promoción de 23 viviendas unifamiliares adosadas en manzana cerrada con piscina...

0
0 recenzji

Adosados en Venta en Calle Gloria Fuertes s/n, Ávila

Awila, Awiła, Hervencias, Calle Gloria Fuertes s/n
227 400 €

Promoción de 23 viviendas unifamiliares adosadas en manzana cerrada con piscina...

0
0 recenzji

Adosados en Venta en Calle Gloria Fuertes s/n, Ávila

Awila, Awiła, Hervencias, Calle Gloria Fuertes s/n
231 400 €

Promoción de 23 viviendas unifamiliares adosadas en manzana cerrada con piscina...

4
0 recenzji

Adosados en Venta en Calle Gloria Fuertes s/n, Ávila

Awila, Awiła, Hervencias, Calle Gloria Fuertes s/n
243 700 €

Promoción de 23 viviendas unifamiliares adosadas en manzana cerrada con piscina...

0
0 recenzji

Adosados en Venta en Calle Gloria Fuertes s/n, Ávila

Awila, Awiła, Hervencias, Calle Gloria Fuertes s/n
247 000 €

Promoción de 23 viviendas unifamiliares adosadas en manzana cerrada con piscina...

0
0 recenzji

Adosados en Venta en Calle Gloria Fuertes s/n, Ávila

Awila, Awiła, Hervencias, Calle Gloria Fuertes s/n
227 300 €

Promoción de 23 viviendas unifamiliares adosadas en manzana cerrada con piscina...

0
0 recenzji

Adosados en Venta en Calle Gloria Fuertes s/n, Ávila

Awila, Awiła, Hervencias, Calle Gloria Fuertes s/n
238 800 €

Promoción de 23 viviendas unifamiliares adosadas en manzana cerrada con piscina...

0
0 recenzji

Adosados en Venta en Calle Gloria Fuertes s/n, Ávila

Awila, Awiła, Hervencias, Calle Gloria Fuertes s/n
243 200 €

Promoción de 23 viviendas unifamiliares adosadas en manzana cerrada con piscina...

0
0 recenzji

Adosados en Venta en Calle Gloria Fuertes s/n, Ávila

Awila, Awiła, Hervencias, Calle Gloria Fuertes s/n
237 200 €

Promoción de 23 viviendas unifamiliares adosadas en manzana cerrada con piscina...

0
0 recenzji

Używamy własnych plików cookie oraz plików cookie stron trzecich do analizy korzystania z witryny i wyświetlania reklam dopasowanych do Twoich preferencji, na podstawie profilu utworzonego na podstawie Twoich nawyków przeglądania (np. odwiedzonych stron). Więcej informacji. Czy akceptujesz pliki cookie?