Terreno en calle de Marco Polo

Barcelona, Barcelona, Sarrià-Sant Gervasi, Calle de Marco Polo
250 000 €
Zostaw recenzję
Miejski Rodzaj rynku
389 m² Powierzchnia działki
3 Działki budowlane
240 m² Zabudowa
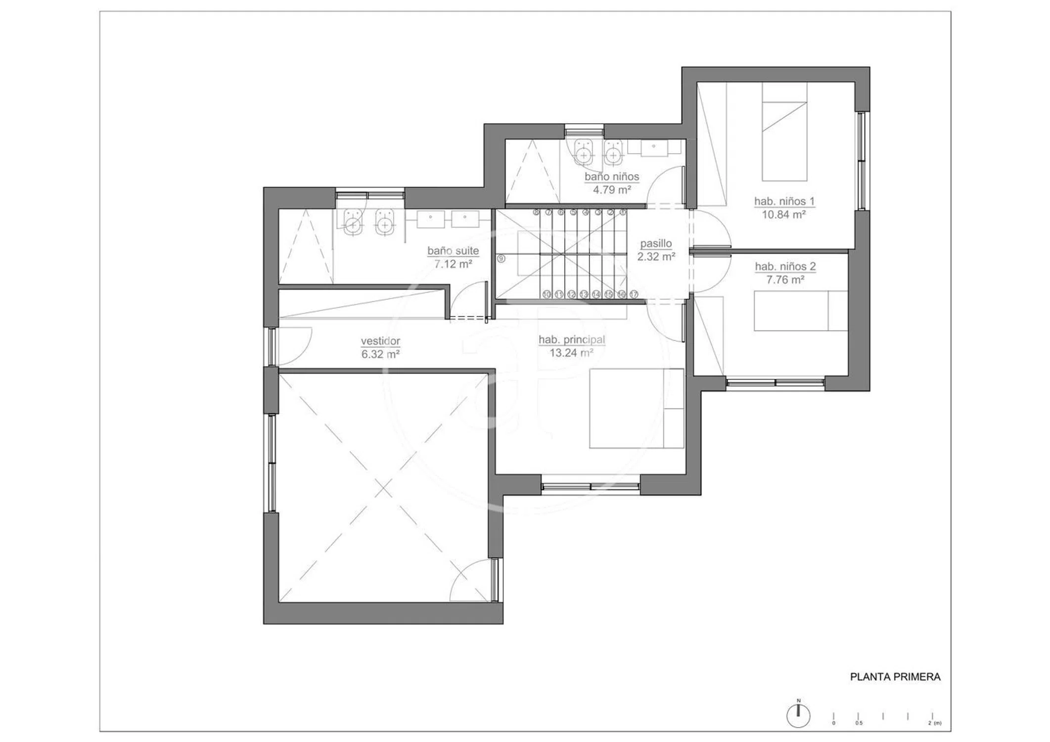
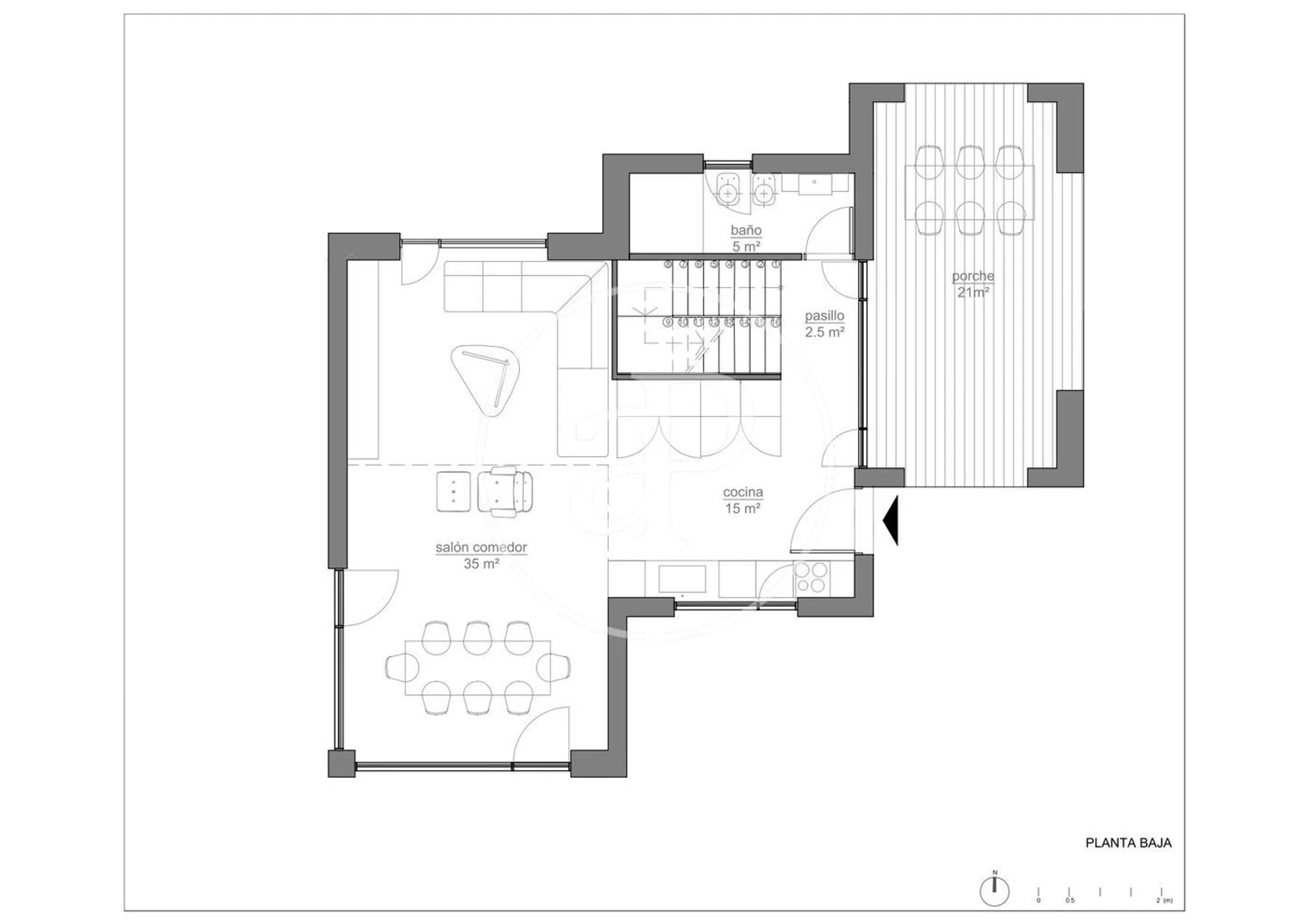
TERRENO CON PROYECTO Y LICENCIA APROBADA, EN VENTA EN CALLE DE MARCO POLO Desde Aproperties tenemos el agrado de ofrecerles este solar urbano esquinero de 389m² licencia y proyecto aprobados para la construcción de una vivienda de 240 m².   Situado en el barrio de montaña de Barcelona de Can Rectoret sobre las colinas de Vallvidrera con vistas al parque natural de Collserola y a tan sólo 7 minutos en coche de la estación de Les Planes, que, tras un trayecto de 3 estaciones de tren (6 minutos), os llevará a Sarria, Barcelona. La zona, muy tranquila, privacidad total y contacto directo con la naturaleza.   El proyecto de casa aislada con el que se vende el solar tiene la siguiente previsión:   - Primer planta a pie de calle: sala polivalente, posible cine o gimnasio, espacio para sauna y lavadero. Parking calle con espacio para dos coches.   - Primer planta, zona de día: cocina abierta que conecta salón y comedor. Desde la cocina hay acceso a las terrazas exteriores con vistas panorámicas.   - Planta superior: tres habitaciones y dos baños. La habitación principal es una master suite que incluye vestidor y baño completo.   - Exterior: amplio jardín y piscina.   Dependiendo del momento de la adquisición el cliente podría aumentar la casa hasta 290 m² (4 habitaciones y 4 baños).   Cada rincón de esta casa ha sido cuidadosamente diseñado para ofrecer comodidad, estilo y calidad de vida, certificación energética A+, materiales de alta calidad, etc. Tenemos a su disposición las memorias de calidades, planos y la información complementaria que pueda necesitar para entender la dimensión del proyecto. No deje de comunicarte con el equipo de aProperties Real Estate para hacer de este proyecto su nuevo nuevo hogar. Contacte con nosotros para ver más inmuebles similares.

Charakterystyka nieruchomości

Complex information

  • Rodzaj rynku
    Miejski

Dane nieruchomości

  • Rodzaj nieruchomości
    Z drugiej ręki

Powierzchnie

  • Powierzchnia działki
    389 m²

Base

  • Minimalna działka na sprzedaż
    389 m²
  • Grunt miejski
    Konsolidowane (działka)
  • Działki budowlane
    3
  • Zabudowa
    240 m²

Statystyki cen rynkowych dla Terreno en calle de Marco Polo

Mapa

Barcelona, Barcelona, Sarrià-Sant Gervasi, Calle de Marco Polo Iść do tego miejsca
Zostaw opinię o Terreno en calle de Marco Polo
0
0 recenzje
1
0% (0)
2
0% (0)
3
0% (0)
4
0% (0)
5
0% (0)
aProperties Real Estate Vallés Occidental
250 000 €
Kontakt z reklamodawcą

Aby uzyskać więcej informacji, skontaktuj się z platformą

REF: 374765

Opinie o Terreno en calle de Marco Polo
Loading...

No reviews have been left for this object yet

Najbliższe nieruchomości

Poznaj pobliskie nieruchomości, które znaleźliśmy w pobliżu tej lokalizacji

Terreno en venta en Vilapicina i la Torre Llobeta

Barcelona, Barcelona, Nou Barris
3 450 000 €

Solar en venta en Barcelona, dispuesto para hacer una residencia de estudiantes...

0
0 recenzji

Terreno en venta en Vallvidrera - El Tibidabo i les Planes

Barcelona, Barcelona, Sarrià-Sant Gervasi
145 000 €

Este terreno urbano, ubicado en el pintoresco barrio de montaña Can Rectoret de...

0
0 recenzji

TERRENO EDIFICABLE EN COLLSEROLA, A 15MN DE BARCELONA.

Barcelona, Molins de Rei
110 000 €

TERRENO 530m2 EDIFICABLE EN COLLSEROLA, A 15MN DE BARCELONA. Terreno de 530m2 en...

0
0 recenzji

TERRENO 405M2 EN COLLSEROLA, A 2KM DE LA ESTACION DE LA FLORESTA.

Barcelona, Molins de Rei
49 900 €

OPORTUNIDAD EN COLLSEROLA, A 12MN DE BARCELONA. Terreno de 405m2 en el parque de...

0
0 recenzji

TERRENO EDIFICABLE EN COLLSEROLA, A 15MN DE BARCELONA.

Barcelona, Molins de Rei
145 000 €

TERRENO 543m2 EDIFICABLE EN COLLSEROLA, A 15MN DE BARCELONA. Terreno de 543m2 en...

0
0 recenzji

Terreno en calle de l'Alzina

Barcelona, El Papiol, Calle de l'Alzina
195 000 €

Solar en el Papiol 387 m² a 20 minutos de Barcelona Edificación PB+2 (75%)-20 Ml...

0
0 recenzji

Terreno en El Papiol

Barcelona, El Papiol, El Papiol
145 000 €

Terreno con vistas despejadas, cerca de transporte publico, en urbanización Trul...

0
0 recenzji

Terreno en calle del Pi, 35

Barcelona, El Papiol, Calle del Pi, 35
137 000 €

Parcela en Urbanización El Trull, 400 m2. Pendiente moderada. Reciente relleno d...

0
0 recenzji

Terreno en Can Clota

Barcelona, Esplugues de Llobregat, Czy Clota, Can Clota
1 200 000 €

Producto dirigido a inversor/promotor. Obra parada con un avance aproximado del...

0
0 recenzji

Używamy własnych plików cookie oraz plików cookie stron trzecich do analizy korzystania z witryny i wyświetlania reklam dopasowanych do Twoich preferencji, na podstawie profilu utworzonego na podstawie Twoich nawyków przeglądania (np. odwiedzonych stron). Więcej informacji. Czy akceptujesz pliki cookie?