Terreno en calle de Moratín, 31

Barcelona, Barcelona, Horta Guinardó, Calle de Moratín, 31
159 000 €
Zostaw recenzję
Miejski Rodzaj rynku
181 m² Powierzchnia działki
181 m² Zabudowa
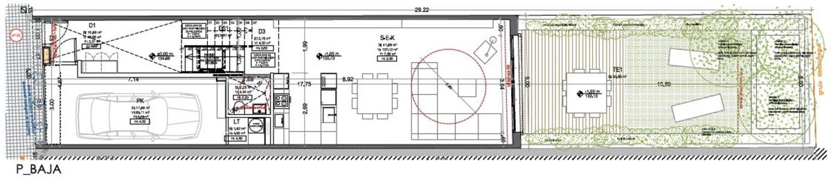
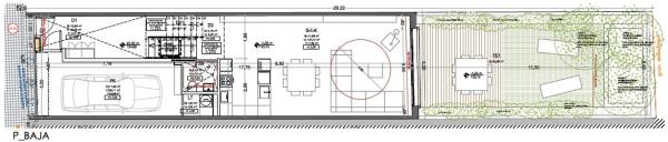
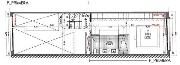
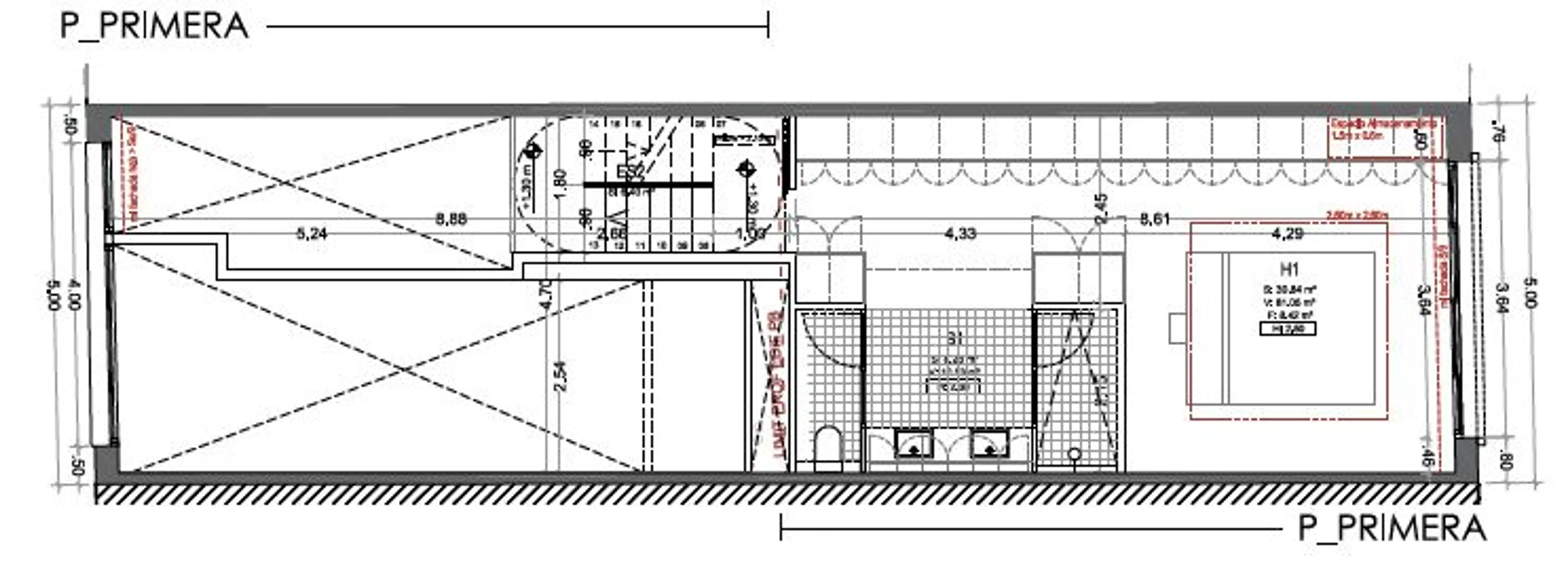
Solar en el Barrio de Horta Guinardó para casa unifamiliar. Os presentamos esta parcela de una totalidad de 181.24 M, Planta Baja + 1, en un barrio muy buscado para construirte la casa de tus sueños. Puedes construir lo siguiente: PB + 1, con 152 m2 de solar con una edificabilidad total de 181 m2, más dos terrazas de 45 m2 cada una. Disponemos de un proyecto hecho a medida según las necesidades de la propiedad, pero puedes cambiarlas dependiendo de las tuyas, la licencia de obras ya está aprobada y lista para empezar. El proyecto sería: Planta Baja con Parking, y acceso directo a zona comedor cocina y sala de estar, con salida directa a la terraza de 45 m2, aproximadamente. La planta primera que tiene dos altas, tiene por un lado habitación suite con gran armario a modo de vestidor, baño y posibilidad de hacer un despacho para trabajar en casa, en total unos 40 m2. La segunda altura de la planta primera dispone de 3 habitaciones individuales con un baño completo, y una de las habitaciones tiene una salida a una Terraza de también unos 40 metros. Hay la posibilidad de hacer un espacio polivalente. También se pueden dos pisos de 8o metros. La zona, está bien comunicada con el metro a unos metros, cercana a todos los servicios, escuelas, supermercados, a unos pasos del CAP, y cercano al hospital Vall d´Hebron. ¡No te pierdas esta oportunidad, no hay solares en la zona con este precio! El precio de Tasación es de 180.000€. el precio de Tasación de inmueble terminado es de 570.000€.

Charakterystyka nieruchomości

Complex information

  • Rodzaj rynku
    Miejski

Dane nieruchomości

  • Rodzaj nieruchomości
    Z drugiej ręki

Powierzchnie

  • Powierzchnia działki
    181 m²

Base

  • Minimalna działka na sprzedaż
    181 m²
  • Zabudowa
    181 m²

Statystyki cen rynkowych dla Terreno en calle de Moratín, 31

Mapa

Barcelona, Barcelona, Horta Guinardó, Calle de Moratín, 31 Iść do tego miejsca
Zostaw opinię o Terreno en calle de Moratín, 31
0
0 recenzje
1
0% (0)
2
0% (0)
3
0% (0)
4
0% (0)
5
0% (0)
jlgonzalezandreu
159 000 €
Kontakt z reklamodawcą

Aby uzyskać więcej informacji, skontaktuj się z platformą

REF: 374659

Opinie o Terreno en calle de Moratín, 31
Loading...

No reviews have been left for this object yet

Najbliższe nieruchomości

Poznaj pobliskie nieruchomości, które znaleźliśmy w pobliżu tej lokalizacji

Terreno en venta en Vilapicina i la Torre Llobeta

Barcelona, Barcelona, Nou Barris
3 450 000 €

Solar en venta en Barcelona, dispuesto para hacer una residencia de estudiantes...

0
0 recenzji

Terreno en venta en Vallvidrera - El Tibidabo i les Planes

Barcelona, Barcelona, Sarrià-Sant Gervasi
145 000 €

Este terreno urbano, ubicado en el pintoresco barrio de montaña Can Rectoret de...

0
0 recenzji

Terreno en venta en calle de la Madriguera, 1

Barcelona, Barcelona, Sant Andreu, Calle de la Madriguera, 1
1 200 000 €

Finalista. Residencial Multifamiliar. Superficie: 339,74. Edificabilidad: 1349....

0
0 recenzji

Terreno en calle del Frontó

Barcelona, Esplugues de Llobregat, La Miranda - Ciutat Diagonal, Calle del Frontó
1 950 000 €

PARCELA ÚNICA EN CIUDAD DIAGONAL CON VISTAS INIGUALABLES Presentamos EN EXCLUSI...

0
0 recenzji

Terreno en calle del Frontó

Barcelona, Esplugues de Llobregat, La Miranda - Ciutat Diagonal, Calle del Frontó
990 000 €

PARCELA EN CIUDAD DIAGONAL CON VISTAS A BARCELONA Y EL MEDITERRANEO Presentamos...

0
0 recenzji

Terreno en calle del Frontó

Barcelona, Esplugues de Llobregat, La Miranda - Ciutat Diagonal, Calle del Frontó
960 000 €

PARCELA ÚNICA EN CIUDAD DIAGONAL CON VISTAS INIGUALABLES Presentamos EN EXCLUSIV...

0
0 recenzji

Terreno en La Miranda - Ciutat Diagonal

Barcelona, Esplugues de Llobregat, La Miranda - Ciutat Diagonal, La Miranda - Ciutat Diagonal
1 800 000 €

En una zona de las mejores zonas residenciales de Esplugues de Llobregat, zona r...

0
0 recenzji

Terreno en calle de la Bonavista

Barcelona, Esplugues de Llobregat, Finestrelles, Calle de la Bonavista
600 000 €

SOLAR RESIDENCIAL de 170 m2. esquinero que por la Normativa que le afecta permit...

0
0 recenzji

Terreno en Finestrelles

Barcelona, Esplugues de Llobregat, Finestrelles, Finestrelles
750 000 €

Estupendo solar en Finestrelles junto parc de Pompeu I Fabra, con proyecto para...

0
0 recenzji
Zadzwoń

Używamy własnych plików cookie oraz plików cookie stron trzecich do analizy korzystania z witryny i wyświetlania reklam dopasowanych do Twoich preferencji, na podstawie profilu utworzonego na podstawie Twoich nawyków przeglądania (np. odwiedzonych stron). Więcej informacji. Czy akceptujesz pliki cookie?