Terreno en calle Mas Ventos s/n

Barcelona, Castellbell i el Vilar, Calle Mas Ventos s/n
48 050 €
Zostaw recenzję
Miejski Rodzaj rynku
960 m² Powierzchnia działki
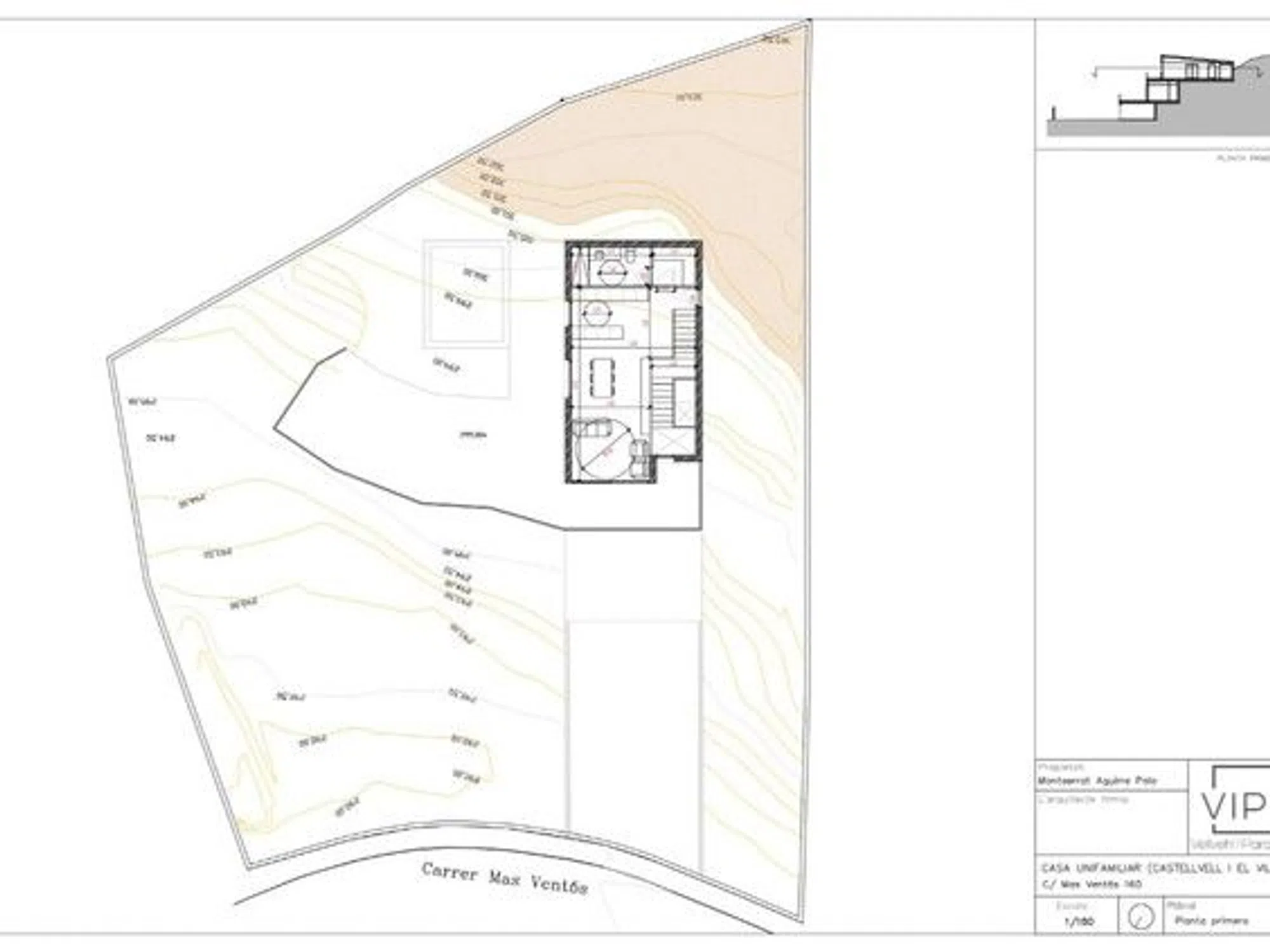
Si ha sentido la necesidad de vivir en un entorno saludable, tranquilo y rodeado de naturaleza, cambiar a un estilo de vida distinto del que tiene en la ciudad, puede venir a visitar esta parcela en Castellbell i el Vilar. Esta parcela consta de 960m2, se encuentra situada en las laderas de la montaña de Montserrat. Gracias a los metros que nos ofrece la parcela, nos permite realizar infinitas alternativas en la construcción que escoja, o bien instalar cualquier tipo de casa modular, prefabricada etc. Además cuenta con Estudio topográfico, geotécnico y la fase inicial de 1 proyecto de construcción de un chalet. Llámenos y visite esta parcela sin ningún tipo de compromiso no quedará indiferente. NO DUDE EN LLAMARNOS PARA AYUDARLE A VENDER SU PROPIEDAD SI LO NECESITA, Y LE ACOMPAÑAREMOS Y ASESORAREMOS DURANTE TODO EL TRAMITE Y EN TODAS LAS GESTIONES. Ponemos a su disposición, de un Agente Hipotecario, que le asesora y le aconsejará gratuitamente para conseguir la opción más optima en la financiación. Le informamos que formamos parte del Registro de Agentes Inmobiliarios de Cataluña (AICAT) así como también de la Asociación de Agentes de la Propiedad Inmobiliaria (API), nuestros clientes pueden estar seguros que todos los trámites y gestiones de la Compra-Venta se realizaran con todas las garantías y transparencias. CARMEN GARCIA TAMBIEN POR WHATSAPP.

Charakterystyka nieruchomości

Complex information

  • Rodzaj rynku
    Miejski

Dane nieruchomości

  • Rodzaj nieruchomości
    Z drugiej ręki

Powierzchnie

  • Powierzchnia działki
    960 m²

Base

Statystyki cen rynkowych dla Terreno en calle Mas Ventos s/n

Mapa

Barcelona, Castellbell i el Vilar, Calle Mas Ventos s/n Iść do tego miejsca
Zostaw opinię o Terreno en calle Mas Ventos s/n
0
0 recenzje
1
0% (0)
2
0% (0)
3
0% (0)
4
0% (0)
5
0% (0)
Carmen García API de Familia
48 050 €
Kontakt z reklamodawcą

Aby uzyskać więcej informacji, skontaktuj się z platformą

REF: 373112

Opinie o Terreno en calle Mas Ventos s/n
Loading...

No reviews have been left for this object yet

Najbliższe nieruchomości

Poznaj pobliskie nieruchomości, które znaleźliśmy w pobliżu tej lokalizacji

Terreno en venta en calle dels Til.lers s/n

Barcelona, Castellgalí
54 000 €

terreno edificable, muy accesible, buenas vistas a la montaña de Montserrat, urb...

0
0 recenzji

Parcela urbana de 320 m2 en Sant Vicenç de Castellet.

Barcelona, Sant Vicenç de Castellet
108 000 €

Características destacadas: Uso permitido: Construcción de una casa unifamiliar...

0
0 recenzji

¡Gran oportunidad en la urbanización El Prat de Castellbell i el Vilar!

Barcelona, Castellbell i el Vilar
32 500 €

La parcela permite la construcción de una casa aislada de 2 plantas, aprovechand...

0
0 recenzji

Terreno en calle Manresa

Barcelona, Sant Vicenç de Castellet, Calle Manresa
385 000 €

Tu suelo al mejor precio en venta en San Vicente de Castellet? /Sant Vicenç de C...

0
0 recenzji

Terreno en calle Josep Pla, 94

Barcelona, Castellgalí, Calle Josep Pla, 94
42 000 €

Parcela de superficie total de 303 m² para vivienda adosada con vistas directas...

0
0 recenzji

Terreno en calle Josep Pla, 98

Barcelona, Castellgalí, Calle Josep Pla, 98
47 000 €

Parcela de superficie total de 348 m² para vivienda adosada con vistas directas...

0
0 recenzji

Terreno en calle Josep Pla, 97

Barcelona, Castellgalí, Calle Josep Pla, 97
36 000 €

Parcela de superficie total de 234 m² para vivienda adosada con vistas directas...

0
0 recenzji

Terreno en calle Josep Pla, 96

Barcelona, Castellgalí, Calle Josep Pla, 96
37 000 €

Parcela de superficie total de 243 m² para vivienda adosada con vistas directas...

0
0 recenzji

Terreno en calle Josep Pla, 95

Barcelona, Castellgalí, Calle Josep Pla, 95
40 000 €

Parcela de superficie total de 278 m² para vivienda adosada con vistas directas...

0
0 recenzji

Używamy własnych plików cookie oraz plików cookie stron trzecich do analizy korzystania z witryny i wyświetlania reklam dopasowanych do Twoich preferencji, na podstawie profilu utworzonego na podstawie Twoich nawyków przeglądania (np. odwiedzonych stron). Więcej informacji. Czy akceptujesz pliki cookie?