Terreno en calle d'en Moragues

Barcelona, Sant Fruitós de Bages, Calle d'en Moragues
159 000 €
Zostaw recenzję
Miejski Rodzaj rynku
689 m² Powierzchnia działki
2 Działki budowlane
400 m² Zabudowa
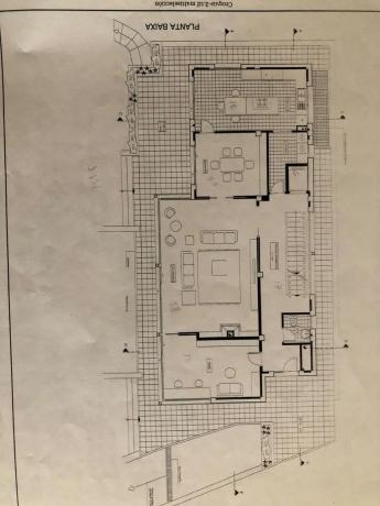
¡Descubre la oportunidad de construir la casa de tus sueños en Pineda de Bages! Este impresionante terreno de 689 m² se encuentra en la mejor zona de la localidad, ofreciendo un acceso rápido y cómodo. La orientación del terreno garantiza sol casi todo el día, ideal para disfrutar de un ambiente cálido y acogedor. Rodeado de hermosos pinos, este espacio arbolado se convierte en un refugio natural perfecto para desconectar. Imagina edificar una vivienda unifamiliar en planta baja o, si lo prefieres, aprovechar la posibilidad de construir hasta dos plantas. Además, el diseño de tu hogar puede incluir un garaje en semisótano y, por supuesto, ¡una refrescante piscina para disfrutar en los días soleados! La superficie edificable es de 400 m², lo que te brinda amplias opciones para personalizar tu nuevo hogar. En las fotos dejamos posibles proyectos de edificación. El terreno cuenta con todos los servicios necesarios, como alcantarillado, alumbrado público y aceras, lo que asegura una calidad de vida excepcional. Situado en un núcleo urbano, este solar urbano es perfecto para quienes buscan tranquilidad sin renunciar a las comodidades de la ciudad. No dejes pasar esta increíble oportunidad y ven a visitar este terreno que podría ser el inicio de una nueva etapa en tu vida. ¡El hogar que siempre soñaste te espera!

Charakterystyka nieruchomości

Complex information

  • Rodzaj rynku
    Miejski

Dane nieruchomości

  • Rodzaj nieruchomości
    Z drugiej ręki

Powierzchnie

  • Powierzchnia działki
    689 m²

Base

  • Minimalna działka na sprzedaż
    689 m²
  • Grunt miejski
    Konsolidowane (działka)
  • Działki budowlane
    2
  • Zabudowa
    400 m²

Udogodnienia

Dostawa:

Kanalizacja

W budynku:

Piwnica

Statystyki cen rynkowych dla Terreno en calle d'en Moragues

Mapa

Barcelona, Sant Fruitós de Bages, Calle d'en Moragues Iść do tego miejsca
Zostaw opinię o Terreno en calle d'en Moragues
0
0 recenzje
1
0% (0)
2
0% (0)
3
0% (0)
4
0% (0)
5
0% (0)
Flamat Horta
159 000 €
Kontakt z reklamodawcą

Aby uzyskać więcej informacji, skontaktuj się z platformą

REF: 372728

Opinie o Terreno en calle d'en Moragues
Loading...

No reviews have been left for this object yet

Najbliższe nieruchomości

Poznaj pobliskie nieruchomości, które znaleźliśmy w pobliżu tej lokalizacji

Parcela de suelo industrial de 4495 m2 en Manresa

Barcelona, Manresa
1 685 000 €

Parcela (número 1) situada en el polígono industrial sector La Plana del Pont No...

0
0 recenzji

Terreno en Castellnou de Bages

Barcelona, Castellnou de Bages, Castellnou de Bages
76 000 €

Terreno único en Castellnou de Bages Urbanización El Serrat Imagina construir la...

0
0 recenzji

Terreno en calle de la Carena, 164

Barcelona, Castellnou de Bages, Calle de la Carena, 164
59 000 €

Se vende parcela urbana en Castellnou de Bages, ubicada en la Calle Carena, nº 1...

0
0 recenzji

Terreno en Sagrada Familia

Barcelona, Manresa, Sagrada Familia, Sagrada Familia
108 000 €

Terreno urbano en venta en Calle Terrassa 15 – 461 m² Oportunidad para construir...

0
0 recenzji

Terreno en calle de les Flors de Maig, 3

Barcelona, Manresa, Ctra. Vic - Remei, Calle de les Flors de Maig, 3
245 000 €

¡Oportunidad única en el corazón del casco antiguo! Este terreno en venta, ubica...

0
0 recenzji

Terreno en Santpedor

Barcelona, Santpedor, Santpedor
65 000 €

URBANIZACIÓN MIRADOR DE MONTSERRAT. Terreno en venta que destaca por su superfic...

0
0 recenzji

Terreno en Passatge Dipòsits Vells, 1 -3

Barcelona, Manresa, Ctra. Santpedor - Bases de Manresa, Passatge Dipòsits Vells, 1 -3
240 000 €

Solar no consolidat, pendent ubanització. Quotes previstes a partir de 2026, pre...

0
0 recenzji

Terreno en calle Montcau, 27

Barcelona, Navarcles, Calle Montcau, 27
65 000 €

Terreno urbanizable de 383 metros cuadrados según catastro totalmente vallado pe...

0
0 recenzji

Terreno en Sant Fruitós de Bages

Barcelona, Sant Fruitós de Bages, Sant Fruitós de Bages
85 000 €

Se vende amplio terreno en Sant Fruitós de Bages, con una superficie total de 10...

0
0 recenzji

Używamy własnych plików cookie oraz plików cookie stron trzecich do analizy korzystania z witryny i wyświetlania reklam dopasowanych do Twoich preferencji, na podstawie profilu utworzonego na podstawie Twoich nawyków przeglądania (np. odwiedzonych stron). Więcej informacji. Czy akceptujesz pliki cookie?