Apartamentos en Venta, Sant Vicenç Dels Horts

Barcelona, Sant Vicenç Dels Horts
Wyprzedaż
Zostaw recenzję
Mieszkania Rodzaj rynku
93 m² m2 zabudowane
2 Łazienki
3 Sypialnie
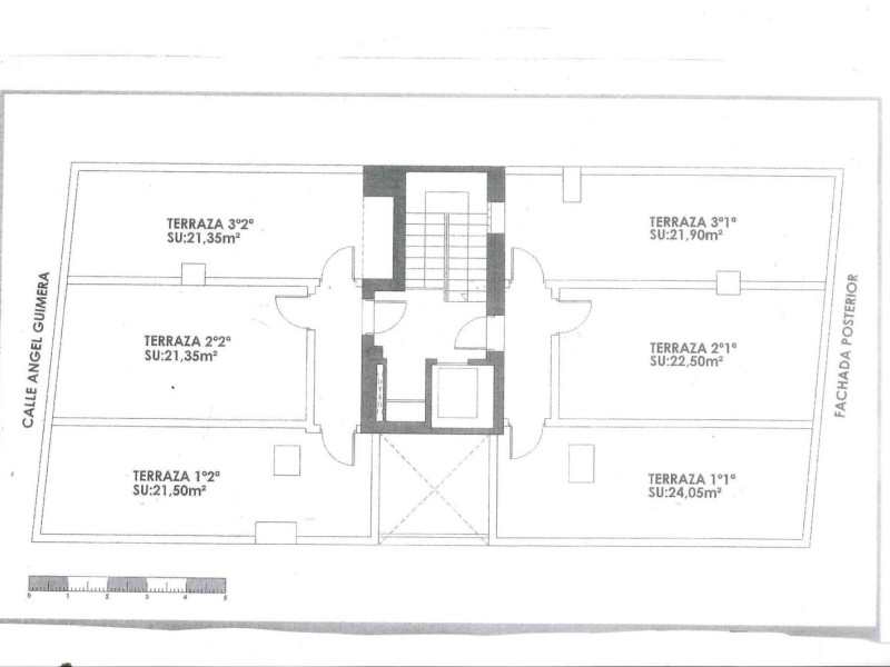
Proyecto de 7 pisos exclusivos con terraza, parkings y trasteros opcionales - En el centro Diseñado para ofrecer al cliente la máxima sostenibilidad, diseño, confort y calidad. Ven a vivir al centro junto a todos los servicios a un paso.El exclusivo edificio Centre SVH tiene una ubicación privilegiada, en una zona con servicios (CAP, Colegios y comercios cercanos (Centre Comercial La Vailet). Con una excelente comunicación con accesos cercanos a la A-2, B-23 y cercana a las estaciones FGC de Sant Vicenç y Can Ros. Una oportunidad única para mejorar tu calidad de vida y la de tu familia.Calidades pensadas para ti. Un uso exquisito de los materiales y acabados, todos ellos de calidad premium. Calificación energética. Promoción de baja demanda energética.Para más información, concierta una visita.Bajo con salón comedor y cocina office, además de terraza de 40,75 m2 y demás viviendas cocina independientes y con terraza privada (aprox. 20 m2) en la parte de arriba del edificio. Las puertas 2ª con balcón. Parking y trastero opcional. Viviendas a partir de 270,000. -€.

Charakterystyka nieruchomości

Complex information

  • Kompleks mieszkalny
    Centre Svh
  • Rodzaj rynku
    Mieszkania

Dane nieruchomości

  • Sypialnie
    3
  • Łazienki
    2
  • m2 zabudowane
    93 m²
  • Rodzaj nieruchomości
    Nowa budowa

Certyfikat energetyczny

  • Certyfikat energetyczny
    B

Udogodnienia

Udogodnienia mieszkania:

Magazyn
Taras

W budynku:

Winda
Magazyn

Typ kuchni:

Niezależna kuchnia

Statystyki cen rynkowych dla Piso en venta en calle Angel Guimerà, 57

325 206 € (4 193 €/m2)
Średnia cena pierwotnego Mieszkania w mieście Sant Vicenç Dels Horts

Mapa

Barcelona, Sant Vicenç Dels Horts Iść do tego miejsca
Zostaw opinię o Piso en venta en calle Angel Guimerà, 57
0
0 recenzje
1
0% (0)
2
0% (0)
3
0% (0)
4
0% (0)
5
0% (0)
Centre Svh
Kompleks mieszkalny
Wyprzedaż
Kontakt z reklamodawcą

Aby uzyskać więcej informacji, skontaktuj się z platformą

REF: 9207

Opinie o Piso en venta en calle Angel Guimerà, 57
Loading...

No reviews have been left for this object yet

Najbliższe nieruchomości

Poznaj pobliskie nieruchomości, które znaleźliśmy w pobliżu tej lokalizacji

Apartamentos en Venta, Pallejà

Barcelona, Pallejà
315 000 €

Can Vinyet es una promoción de 35 viviendas de obra nueva situada en la Avenida...

0
0 recenzji

Obra nueva Once de Septiembre en Sant Boi de Llobregat

Barcelona, Sant Boi de Llobregat, Placa Catalunya - Vinyets, Avenida Onze de Setembre, 18
345 000 €

¡Último piso en venta!Edificio de obra nueva en Carrer L´Onze de Setembre 18 de...

0
0 recenzji

Apartamentos en Venta en Calle Serra Montsec s/n, Esplugues de Llobregat

Barcelona, Esplugues de Llobregat, La Plana - Montesa, Calle Serra Montsec s/n
390 000 €

Conjunto residencial de 48 viviendas, compuesto por 2 edificios independiente. U...

0
0 recenzji

Apartamentos en Venta en Calle Serra Montsec s/n, Esplugues de Llobregat

Barcelona, Esplugues de Llobregat, La Plana - Montesa, Calle Serra Montsec s/n
385 000 €

Conjunto residencial de 48 viviendas, compuesto por 2 edificios independiente. U...

0
0 recenzji

Apartamentos en Venta en Calle Serra Montsec s/n, Esplugues de Llobregat

Barcelona, Esplugues de Llobregat, La Plana - Montesa, Calle Serra Montsec s/n
355 000 €

Conjunto residencial de 48 viviendas, compuesto por 2 edificios independiente. U...

0
0 recenzji

Apartamentos en Venta en Calle Serra Montsec s/n, Esplugues de Llobregat

Barcelona, Esplugues de Llobregat, La Plana - Montesa, Calle Serra Montsec s/n
330 000 €

Conjunto residencial de 48 viviendas, compuesto por 2 edificios independiente. U...

0
0 recenzji

Apartamentos en Venta en Calle Serra Montsec s/n, Esplugues de Llobregat

Barcelona, Esplugues de Llobregat, La Plana - Montesa, Calle Serra Montsec s/n
399 000 €

Conjunto residencial de 48 viviendas, compuesto por 2 edificios independiente. U...

0
0 recenzji

Apartamentos en Venta en Calle Serra Montsec s/n, Esplugues de Llobregat

Barcelona, Esplugues de Llobregat, La Plana - Montesa, Calle Serra Montsec s/n
270 000 €

Conjunto residencial de 48 viviendas, compuesto por 2 edificios independiente. U...

0
0 recenzji

Apartamentos en Venta en Calle Serra Montsec s/n, Esplugues de Llobregat

Barcelona, Esplugues de Llobregat, La Plana - Montesa, Calle Serra Montsec s/n
385 000 €

Conjunto residencial de 48 viviendas, compuesto por 2 edificios independiente. U...

0
0 recenzji

Używamy własnych plików cookie oraz plików cookie stron trzecich do analizy korzystania z witryny i wyświetlania reklam dopasowanych do Twoich preferencji, na podstawie profilu utworzonego na podstawie Twoich nawyków przeglądania (np. odwiedzonych stron). Więcej informacji. Czy akceptujesz pliki cookie?