Sprzedaż mieszkania w General, 181, Barcena de Cicero

Kantabria, Barcena de Cicero, General, 181
135 000 €
2 288 € / m2
Zostaw recenzję
Mieszkania Rodzaj rynku
2 Sypialnie
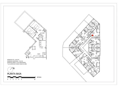
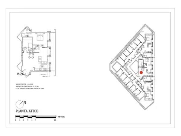
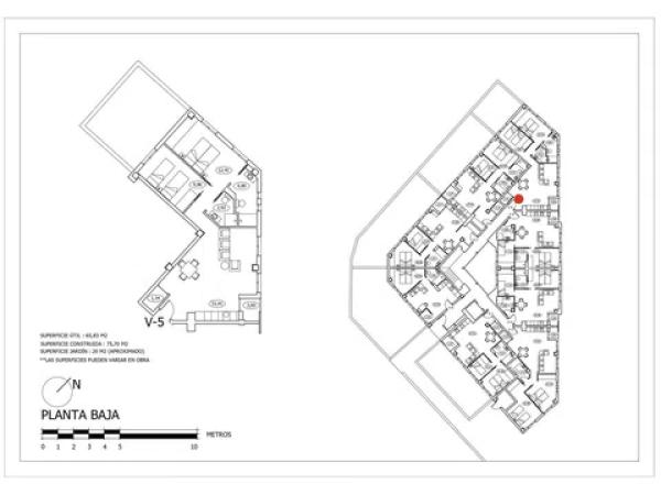
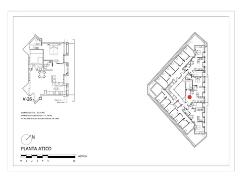
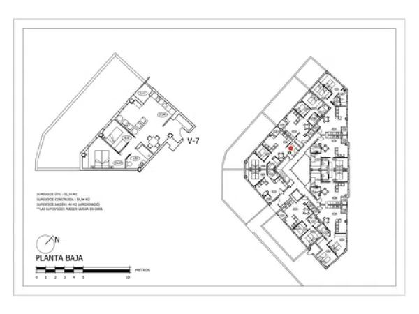
59 m² m2 zabudowane
1 Łazienki
Gaz ziemny Ogrzewanie
2 Piętro

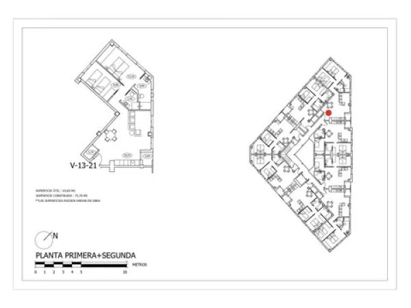
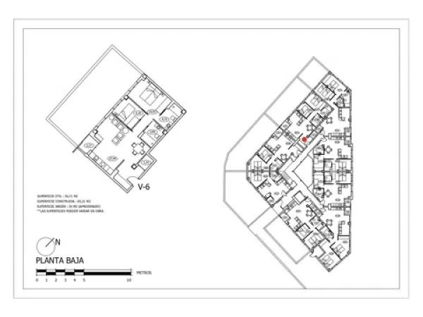
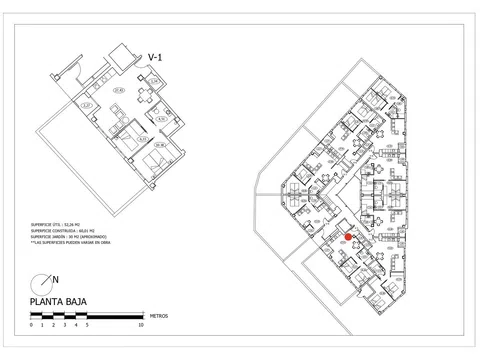
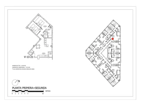
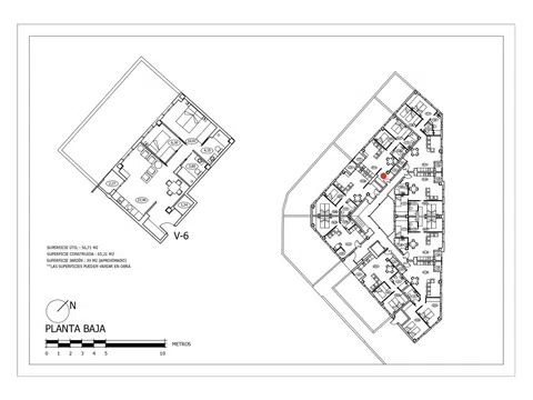
Odkryj swoje nowe mieszkanie w Treto! Te nowoczesne nieruchomości w trakcie budowy stanowią doskonałą szansę dla tych, którzy poszukują jakości i komfortu. Położone w prywatnej urbanizacji, oferują opcje z 2 sypialniami, w których każdy metr kwadratowy został zaprojektowany z myślą o maksymalizacji naturalnego światła i zapewnieniu pięknych widoków na okoliczne tereny. Wyobraź sobie relaks w słonecznym ogrodzie na najniższym piętrze - idealne miejsce na chwile wypoczynku. Budynki cechuje wysoka jakość wykończenia oraz wysoka efektywność energetyczna, co gwarantuje przytulną atmosferę przez cały rok.

Z powierzchnią mieszkalną od 59 m² do 72 m², te mieszkania łączą funkcjonalność z elegancją. Kierunek, w jaki skierowana jest urbanizacja, zapewnia doskonałe nasłonecznienie przez cały dzień, a przystosowane wejścia czynią te mieszkania dostępnymi dla osób z ograniczoną mobilnością. Dodatkowo, istnieje możliwość zakupu garaży i komórek lokatorskich, co znacząco zwiększa komfort życia. Całość oferowana w przedziale cenowym od 125 000 € do 160 000 €, poniżej kosztu wynajmu, czyni te nieruchomości wyjątkową okazją inwestycyjną.

Mieszkania są zlokalizowane w Barcena de Cicero, w dogodnym miejscu przy General, 181. Mieszkanie tutaj to nie tylko inwestycja w nieruchomość, ale przede wszystkim w wysoką jakość życia. Nie przegap tej wyjątkowej okazji, aby zabezpieczyć swój komfort i wygodę w jednym z najlepszych miejsc. Skontaktuj się z nami, aby uzyskać więcej informacji!

Charakterystyka nieruchomości

Complex information

  • Kompleks mieszkalny
    EL MIRADOR DE TRETO
  • Rodzaj rynku
    Mieszkania

Pamięć o Jakości

  • Ogrzewanie
    Gaz ziemny

Dane nieruchomości

  • Piętro
    2
  • Sypialnie
    2
  • Łazienki
    1
  • m2 zabudowane
    59 m²
  • Orientacja
    Zachód
  • Rodzaj nieruchomości
    Nowa budowa

Certyfikat energetyczny

  • Stan certyfikatu energetycznego
    W trakcie załatwiania
  • Zużycie energii
    En trámite

Udogodnienia

W budynku:

Ogród

Statystyki cen rynkowych dla Piso en venta en General, 181

144 000 € (2 267 €/m2)
Średnia cena pierwotnego Mieszkania w mieście Barcena de Cicero

Mapa

Kantabria, Barcena de Cicero, General, 181 Iść do tego miejsca
Zostaw opinię o Piso en venta en General, 181
0
0 recenzje
1
0% (0)
2
0% (0)
3
0% (0)
4
0% (0)
5
0% (0)
Inmobiliaria Zubia & Marisol Ceballos
EL MIRADOR DE TRETO
Kompleks mieszkalny
135 000 €
od 2 288 € / m2
Kontakt z reklamodawcą

Aby uzyskać więcej informacji, skontaktuj się z platformą

REF: 228724

Opinie o Piso en venta en General, 181
Loading...

No reviews have been left for this object yet

Najbliższe nieruchomości

Poznaj pobliskie nieruchomości, które znaleźliśmy w pobliżu tej lokalizacji

Obra nueva Residencial El Túnel en Laredo

Kantabria, Laredo, Centrum, Calle Menéndez Pelayo, 38
175 000 €

Próxima construcción de 28 viviendas de 1, 2, 3 dormitorios y duplex con garaje...

0
0 recenzji

Obra nueva Residencial El Túnel en Laredo

Kantabria, Laredo, Centrum, Calle Menéndez Pelayo, 38
265 000 €

Próxima construcción de 28 viviendas de 1, 2, 3 dormitorios y duplex con garaje...

0
0 recenzji

Apartamentos en Venta en Calle Menéndez Pelayo, 38, Laredo

Kantabria, Laredo, Centrum, Calle Menéndez Pelayo, 38
215 000 €

Próxima construcción de 28 viviendas de 1, 2, 3 dormitorios y duplex con garaje...

0
0 recenzji

Obra nueva Suelo Con Edif, Barrio De Viar-colindres en Colindres

Kantabria, Colindres
139 000 €

Promoción de viviendas de obra nueva a estrenar con trasteros anejos y plazas de...

0
0 recenzji

Obra nueva Suelo Con Edif, Barrio De Viar-colindres en Colindres

Kantabria, Colindres
138 000 €

Promoción de viviendas de obra nueva a estrenar con trasteros anejos y plazas de...

0
0 recenzji

Obra nueva Suelo Con Edif, Barrio De Viar-colindres en Colindres

Kantabria, Colindres
170 000 €

Promoción de viviendas de obra nueva a estrenar con trasteros anejos y plazas de...

0
0 recenzji

Obra nueva Suelo Con Edif, Barrio De Viar-colindres en Colindres

Kantabria, Colindres
143 000 €

Promoción de viviendas de obra nueva a estrenar con trasteros anejos y plazas de...

0
0 recenzji

Obra nueva Suelo Con Edif, Barrio De Viar-colindres en Colindres

Kantabria, Colindres
177 100 €

Promoción de viviendas de obra nueva a estrenar con trasteros anejos y plazas de...

0
0 recenzji

Obra nueva Suelo Con Edif, Barrio De Viar-colindres en Colindres

Kantabria, Colindres
140 000 €

Promoción de viviendas de obra nueva a estrenar con trasteros anejos y plazas de...

0
0 recenzji

Używamy własnych plików cookie oraz plików cookie stron trzecich do analizy korzystania z witryny i wyświetlania reklam dopasowanych do Twoich preferencji, na podstawie profilu utworzonego na podstawie Twoich nawyków przeglądania (np. odwiedzonych stron). Więcej informacji. Czy akceptujesz pliki cookie?