Apartamentos en Venta en Avenida de América, Distrito Centro - Casco Histórico

Kordoba, Dzielnica Centrum - Casco Histórico, Centrum - Historyczne Centrum, Avenida de América
Wyprzedaż
Zostaw recenzję
Mieszkania Rodzaj rynku
132 m² m2 zabudowane
2 Łazienki
3 Sypialnie
W budowie Stan
Wyposażona Wyposażenie kuchni
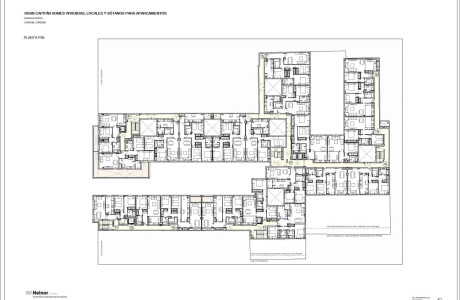
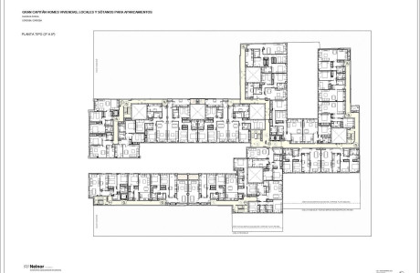
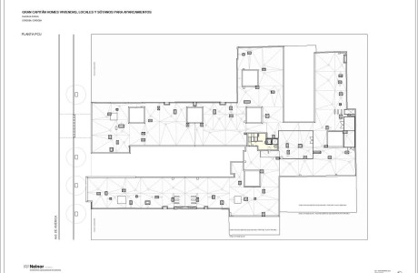
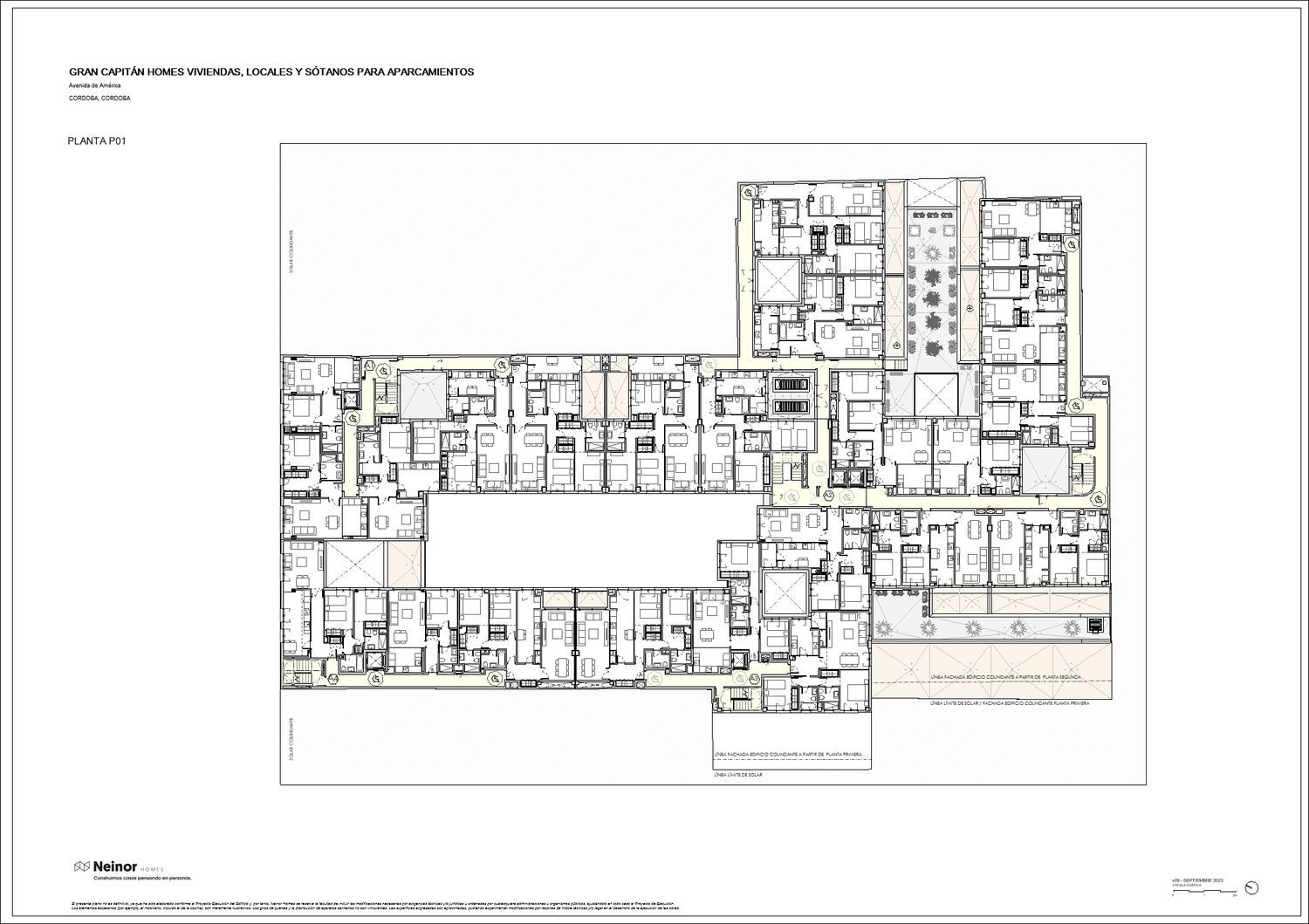
Próxima promoción de viviendas en el centro de Córdoba.En construcción. Obra nueva en Córdoba. **Gran Capitán Homes es un conjunto residencial compuesto por un total de 137 viviendas de 1, 2 y 3 dormitorios, 183 plazas de garaje, trasteros y locales comerciales. Está distribuido en 4 portales de acceso con núcleos independientes de ascensores y escaleras que acceden a todas las plantas, dentro de una zona consolidada rodeada de todos los servicios necesarios para disfrutar del máximo confort en la vida diaria y a escasos minutos del centro histórico Córdoba.Esta promoción de vivienda de obra nueva destaca por su ubicación privilegiada y su diseño moderno el cual aprovecha al máximo la luz y la ventilación natural en las viviendas las cuáles además cuentan con amplios salones, cocina equipada, armarios empotrados y excelentes calidades; igualmente, las distintas orientaciones de las viviendas permitirán que puedas escoger entre aquellas que mejor se adapten a tus gustos y necesidades.Gran Capitán Homes se ubica en pleno centro de Córdoba, en la Avenida de América a escasos metros de la Diputación Provincial, de la Estación de AVE y del Vial Norte consiguiendo así una situación estratégica rodeada por la zona de negocios, de turismo, hostelería y comercial de la ciudad pues la promoción dispone a su alrededor de todos los servicios necesarios para disfrutar del máximo confort en la vida diaria, como centros comerciales, entre los que destaca El Corte Inglés, entidades bancarias, tiendas de moda de firmas reconocidas y un sencillo acceso a una amplia red de comunicaciones.No podemos olvidar su cercanía al casco histórico de la ciudad, lo que permite disfrutar de la parte más turística de la ciudad en solo 5 minutos con enclaves como la Mezquita Catedral, los Baños Árabes o la variedad de patios cordobeses.Al precio de cada vivienda se le incrementará el precio de venta de una plaza de parking y un bicicletero. A partir de 21.000 €.

Charakterystyka nieruchomości

Complex information

  • Kompleks mieszkalny
    Gran Capitán Homes
  • Rodzaj rynku
    Mieszkania

Informacje o projekcie / Stan budowy

  • Stan
    W budowie

Dane nieruchomości

  • Wyposażenie kuchni
    Wyposażona
  • Sypialnie
    3
  • Łazienki
    2
  • m2 zabudowane
    132 m²
  • Typ projektu
    Nowoczesny
  • Rodzaj nieruchomości
    Nowa budowa

Udogodnienia

Udogodnienia mieszkania:

Szafy wnękowe
Magazyn

W budynku:

Winda
Magazyn

Wyposażenie kuchni:

W pełni wyposażona

Stan:

Nowa budowa
W budowie

Statystyki cen rynkowych dla Piso en venta en avenida de América

251 375 € (2 364 €/m2)
Średnia cena pierwotnego Mieszkania w mieście Dzielnica Centrum - Casco Histórico
251 375 € (2 364 €/m2)
Średnia cena pierwotnego Mieszkania w dzielnicy Centrum - Historyczne Centrum

Mapa

Kordoba, Dzielnica Centrum - Casco Histórico, Centrum - Historyczne Centrum, Avenida de América Iść do tego miejsca
Zostaw opinię o Piso en venta en avenida de América
0
0 recenzje
1
0% (0)
2
0% (0)
3
0% (0)
4
0% (0)
5
0% (0)
Gran Capitán Homes
Kompleks mieszkalny
Wyprzedaż
Kontakt z reklamodawcą

Aby uzyskać więcej informacji, skontaktuj się z platformą

REF: 6877

Opinie o Piso en venta en avenida de América
Loading...

No reviews have been left for this object yet

Najbliższe nieruchomości

Poznaj pobliskie nieruchomości, które znaleźliśmy w pobliżu tej lokalizacji

Apartamentos en Venta en Calle Escritora Alejandra Pizarnik s/n, Distrito Noreña - Figueroa

Kordoba, Dystrykt Noreña - Figueroa, Noreña - Figueroa, Calle Escritora Alejandra Pizarnik s/n
356 500 €

Gestilar Terrazas de La Medina es el primer proyecto de Gestilar en Córdoba. Con...

0
0 recenzji

Apartamentos en Venta en Calle Escritora Alejandra Pizarnik s/n, Distrito Noreña - Figueroa

Kordoba, Dystrykt Noreña - Figueroa, Noreña - Figueroa, Calle Escritora Alejandra Pizarnik s/n
172 500 €

Gestilar Terrazas de La Medina es el primer proyecto de Gestilar en Córdoba. Con...

0
0 recenzji

Apartamentos en Venta en Calle Escritora Alejandra Pizarnik s/n, Distrito Noreña - Figueroa

Kordoba, Dystrykt Noreña - Figueroa, Noreña - Figueroa, Calle Escritora Alejandra Pizarnik s/n
220 500 €

Gestilar Terrazas de La Medina es el primer proyecto de Gestilar en Córdoba. Con...

0
0 recenzji

Apartamentos en Venta en Calle Escritora Alejandra Pizarnik s/n, Distrito Noreña - Figueroa

Kordoba, Dystrykt Noreña - Figueroa, Noreña - Figueroa, Calle Escritora Alejandra Pizarnik s/n
285 500 €

Gestilar Terrazas de La Medina es el primer proyecto de Gestilar en Córdoba. Con...

0
0 recenzji

Apartamentos en Venta en Calle Escritora Alejandra Pizarnik s/n, Distrito Noreña - Figueroa

Kordoba, Dystrykt Noreña - Figueroa, Noreña - Figueroa, Calle Escritora Alejandra Pizarnik s/n
229 500 €

Gestilar Terrazas de La Medina es el primer proyecto de Gestilar en Córdoba. Con...

0
0 recenzji

Apartamentos en Venta en Calle Escritora Alejandra Pizarnik s/n, Distrito Noreña - Figueroa

Kordoba, Dystrykt Noreña - Figueroa, Noreña - Figueroa, Calle Escritora Alejandra Pizarnik s/n
230 500 €

Gestilar Terrazas de La Medina es el primer proyecto de Gestilar en Córdoba. Con...

0
0 recenzji

Apartamentos en Venta en Calle Escritora Alejandra Pizarnik s/n, Distrito Noreña - Figueroa

Kordoba, Dystrykt Noreña - Figueroa, Noreña - Figueroa, Calle Escritora Alejandra Pizarnik s/n
236 500 €

Gestilar Terrazas de La Medina es el primer proyecto de Gestilar en Córdoba. Con...

0
0 recenzji

Apartamentos en Venta en Calle Escritora Alejandra Pizarnik s/n, Distrito Noreña - Figueroa

Kordoba, Dystrykt Noreña - Figueroa, Noreña - Figueroa, Calle Escritora Alejandra Pizarnik s/n
220 500 €

Gestilar Terrazas de La Medina es el primer proyecto de Gestilar en Córdoba. Con...

0
0 recenzji

Apartamentos en Venta en Calle Escritora Alejandra Pizarnik s/n, Distrito Noreña - Figueroa

Kordoba, Dystrykt Noreña - Figueroa, Noreña - Figueroa, Calle Escritora Alejandra Pizarnik s/n
232 500 €

Gestilar Terrazas de La Medina es el primer proyecto de Gestilar en Córdoba. Con...

0
0 recenzji

Używamy własnych plików cookie oraz plików cookie stron trzecich do analizy korzystania z witryny i wyświetlania reklam dopasowanych do Twoich preferencji, na podstawie profilu utworzonego na podstawie Twoich nawyków przeglądania (np. odwiedzonych stron). Więcej informacji. Czy akceptujesz pliki cookie?