Nowa nieruchomość Chalet pareado en Calle Antonio López w Pozuelo de Alarcón

Madryt, Pozuelo de Alarcón, Zona Estación
Wyprzedaż
Zostaw recenzję
2024 Rok oddania
Powierzchnie nieruchomości
Liczba sypialni
Liczba łazienek
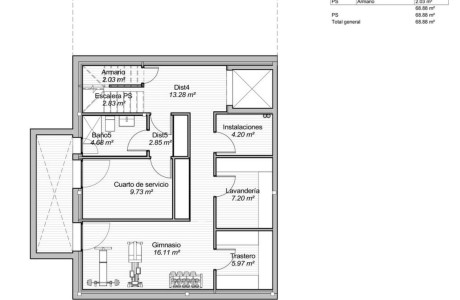
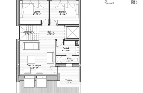
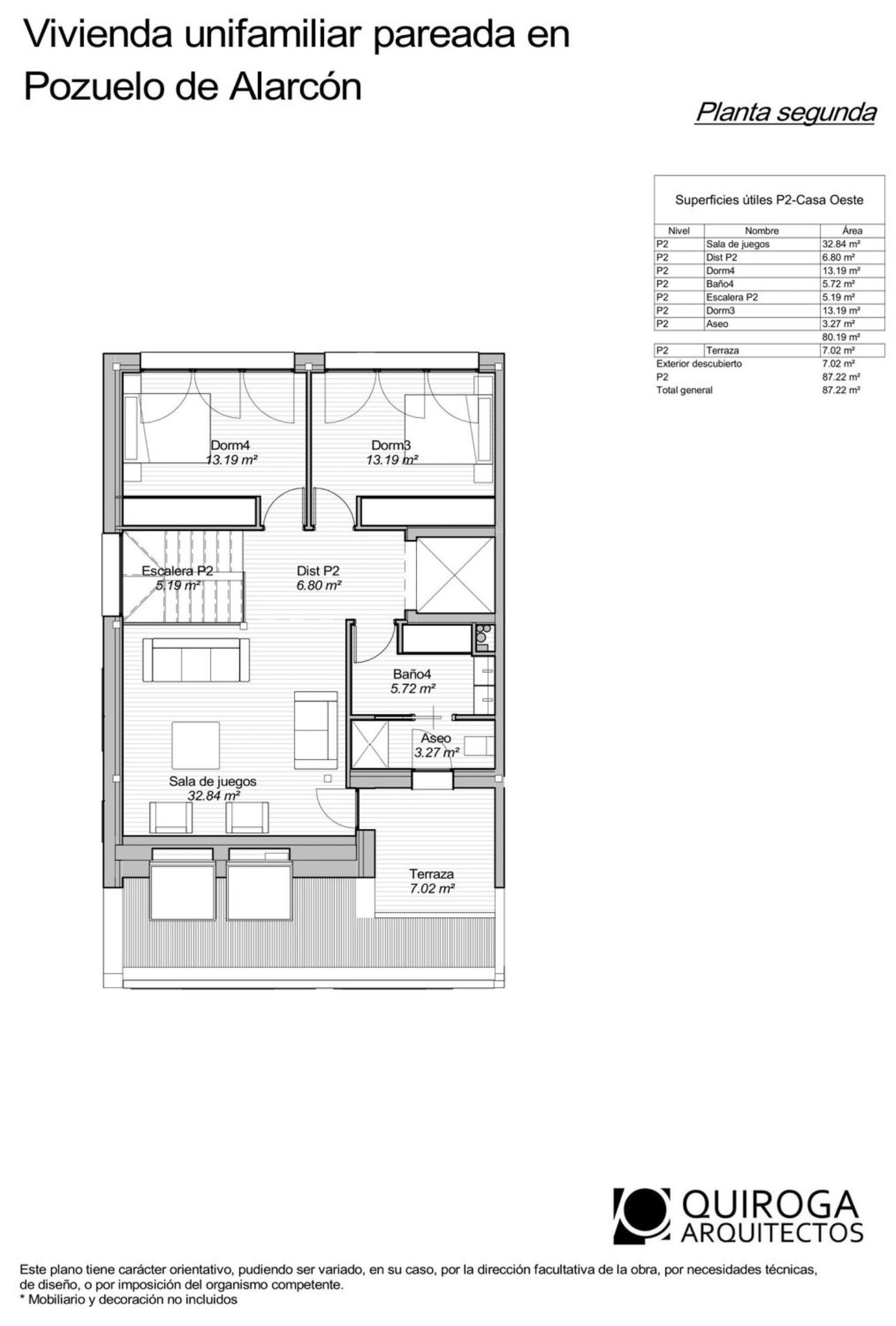
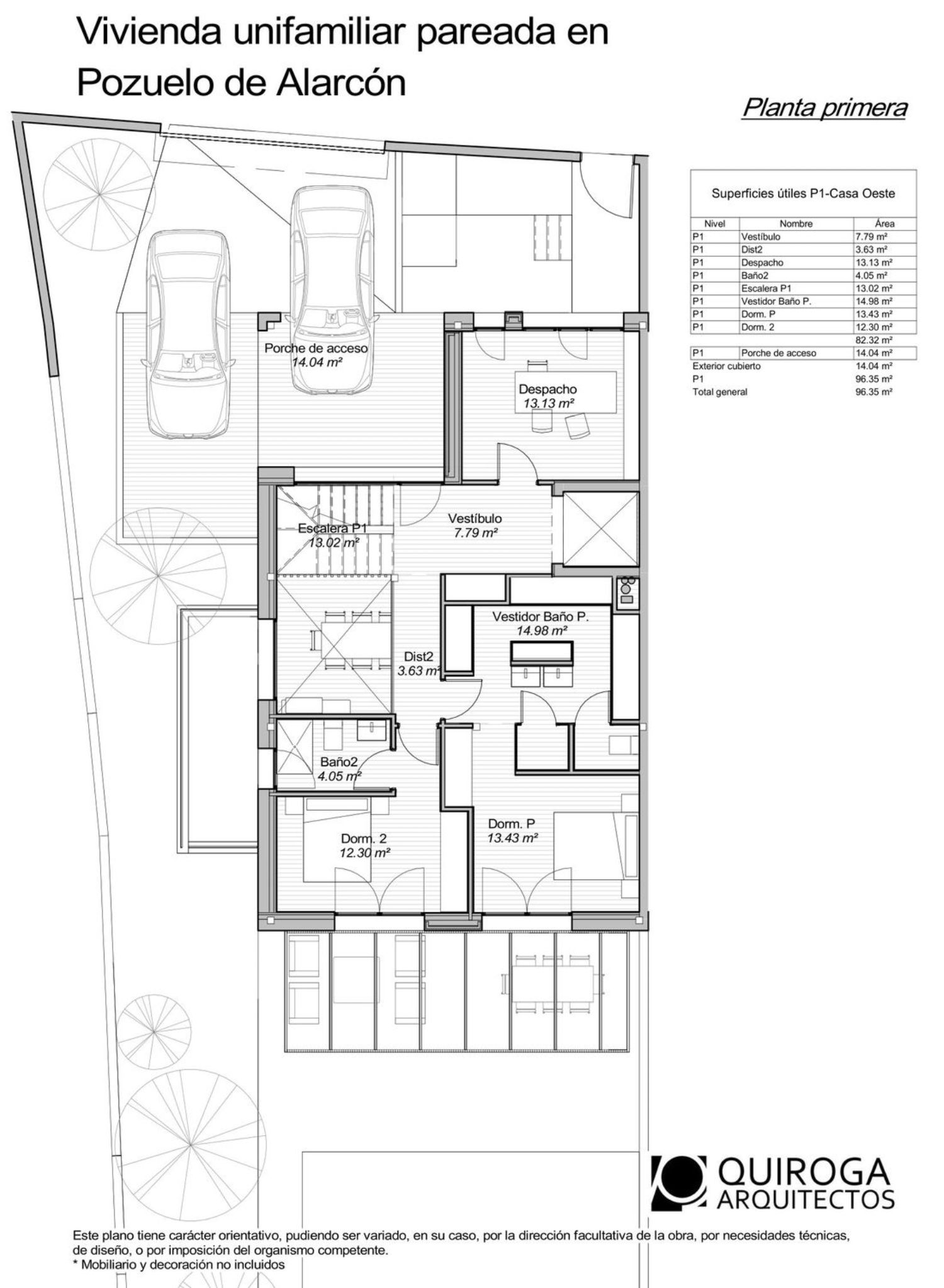
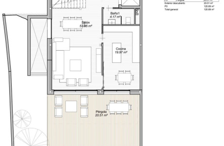
LICENCIA DE OBRA CONCEDIDA.Century 21 R&C comercializa en exclusiva el último chalet pareado de "First Colony". Dónde funcionalidad, calidad y luminosidad son las señas de identidad de este proyecto. Usted se verá rodeado de amplios espacios para disfrutar de una vida plena, con todo tipo de comodidades.¡Un proyecto cuidado hasta el mínimo detalle!Un maravilloso chalet en la mejor zona de Pozuelo de Alarcón, con todo tipo de servicios para una mayor comodidad, a un paso de Madrid, pero sin renunciar a un entorno tranquilo y seguro. Con total accesibilidad por carretera y transporte público, cercano a los mejores colegios y hospitales. Tendrás a mano todo tipo de ocio, el bienestar y la practicidad estarán presente en su vida.Parcela de 350 m2 y con una superficie de 408 metros construidos, distribuidos de manera funcional en tres plantas que podrían estar comunicadas con un ascensor (opcional) según su necesidad.• 5+1 habitaciones, una de ellas con un espectacular baño y con vestidor.•Gran salón comunicado a una impresionante cocina equipada y dotada de una gran despensa.Ambos con acceso directo a la zona exterior de terraza, jardín y piscina (opcional)•Sótano con un patio inglés lo que hace que sea agradable y luminoso.•Garaje con capacidad para 2 coches.La peculiaridad de la parcela logra que la vivienda tenga una privacidad incomparable haciendo que la comunicación entre el espacio interior y exterior se pueda disfrutar con mucha intimidad y confort.Además, como resultado de sus altos niveles de acabados de materiales que incluye el sistema de climatización por aerotermia con suelo radiante frío-calor y preinstalación de domótica, dan como resultado una vivienda muy eficiente.Entrega de llaves prevista en 2024. Próximo inicio de obras.Si usted quiere disfrutar de un hogar realizado con los mejores materiales y acabados al detalle, no dude en ponerse en contacto con nosotros para recibir más información.Century21 posee además servicios de asesoramiento financiero y no cobramos al comprador lo que facilitará la realización de su sueño.

Wyróżnione promocje w Hiszpanii

10 jednostki

Nature Views 2

Alicante, Torrevieja, Los Balcones - Los Altos del Edén, Denia s/n
310 000 € - 379 000 €
1 jednostki

Hotel en venta en Benidorm centro

Alicante, Benidorm, Plaża Poniente
2 250 000 € - 2 250 000 €
28 jednostki

Residencial Los Balcones De Calpe

Alicante, Kalpe, Calpe Pueblo, Avenida de Madrid, 1
299 000 € - 892 125 €
4 jednostki

Nature Views

Alicante, Torrevieja, Lago Jardín II, Avenida Denia s/n
309 000 € - 330 000 €
5 jednostki

ALONIS VILLAS

Alicante, La Villajoyosa / Vila Joiosa, Plaża de Torres, Partida Torres s/n
675 000 € - 775 000 €
1 jednostki

Residencial Royal Beach

Alicante, Guardamar del Segura, pueblo, Miguel Hernández 102
349 500 € - 349 500 €
7 jednostki

Royal Star

Alicante, Guardamar del Segura
229 500 € - 269 500 €
Informacje te pochodzą ze źródeł publicznych i mogą być nieaktualne. Nie stanowią one powiązania z deweloperem.

Charakterystyka nieruchomości

Complex information

Informacje o projekcie / Stan budowy

  • Rok oddania
    2024
  • Pozwolenie na budowę
    Przyznana

Pamięć o Jakości

  • Ogrzewanie
    Ogrzewanie podłogowe

Dane nieruchomości

  • Wyposażenie kuchni
    Wyposażona
  • M2 średnie
    408 m²
  • Typ nieruchomości
    Nowa budowa

Udogodnienia

Udogodnienia mieszkania:

Spiżarnia
Okna wewnętrzne
Zewnętrzne okno
Taras

W budynku:

Basen
Winda
Spa
Ogród
Piwnica

Wyposażenie kuchni:

W pełni wyposażona

Statystyki cen rynkowych dla Chalet pareado en Calle Antonio López

1 782 266 € (5 496 €/m2)
Średnia cena pierwotnego Domy w mieście Pozuelo de Alarcón
1 217 775 € (8 083 €/m2)
Średnia cena pierwotnego Mieszkania w mieście Pozuelo de Alarcón
1 458 400 € (4 480 €/m2)
Średnia cena pierwotnego Domy w dzielnicy Zona Estación

Mapa

Madryt, Pozuelo de Alarcón, Zona Estación Iść do tego miejsca
Zostaw opinię o Chalet pareado en Calle Antonio López
0
0 recenzje
1
0% (0)
2
0% (0)
3
0% (0)
4
0% (0)
5
0% (0)
Wyprzedaż
Kontakt z reklamodawcą

Aby uzyskać więcej informacji, skontaktuj się z platformą

REF: 7160

Opinie o Chalet pareado en Calle Antonio López
Loading...

No reviews have been left for this object yet

Najbliższe nieruchomości

Poznaj pobliskie nieruchomości, które znaleźliśmy w pobliżu tej lokalizacji

1 jednostki

Obra nueva Zanzíbar Cube en Madrid

Madryt, Madryt, Fuencarral
695 000 € - 695 000 €

OBRA NUEVA TERMINADA. ENTREGA INMEDIATA.GILMAR MIRASIERRA & PUERTA DE HIERRO, le...

0
0 recenzji

Obra nueva La Reserva de Puerta de Hierro en Madrid

Madryt, Madryt, Moncloa, Calle Navalmanzano, 10
-

Proyecto diseñado por el Estudio Lamela.Piensa en grande, es tu momento. es una...

0
0 recenzji

Obra nueva Lacal 10 en Pozuelo de Alarcón

Madryt, Pozuelo de Alarcón, Zona Pueblo, Calle Lacal, 10
-

Obra nueva LACAL 10, pareados de 5 habitaciones, parcela común. Zona Pueblo, Poz...

0
0 recenzji
2 jednostki

Obra nueva 3 viviendas exclusivas en Herrera Oria 318 en Madrid

Madryt, Madryt, Fuencarral, Calle Herrera Oria, 318
939 000 € - 1 076 000 €

Promoción ubicada en una de las mejores localizaciones dentro de Madrid, para di...

0
0 recenzji
5 jednostki

Obra nueva Residencial Boyero 4 en Madrid

Madryt, Madryt, Moncloa, Calle Boyero, 4
353 192 € - 499 221 €

Promoción en excelente ubicación en el centro de Aravaca, a pocos pasos de la Ig...

0
0 recenzji
1 jednostki

Obra nueva Residencial Boyero 3 en Madrid

Madryt, Madryt, Moncloa, Calle Boyero, 3
700 128 € - 700 128 €

Promoción en excelente ubicación en el centro de Aravaca, a pocos pasos de la Ig...

0
0 recenzji
4 jednostki

Obra nueva Residencial Bosque de Secuoyas en Pozuelo de Alarcón

Madryt, Pozuelo de Alarcón, ARPO, Polígono Dïez, 195
312 700 € - 441 000 €

ADQUIRIDO SUELO POR LA COOPERATIVA¡ÚLTIMAS VIVIENDAS DISPONIBLES!La Cooperativa...

0
0 recenzji
3 jednostki

Obra nueva Las 6 Villas en Las Rozas de Madrid

Madryt, Las Rozas de Madrid, Marazuela- El Torreón, Camino Viejo de Madrid, 28
1 125 000 € - 1 393 000 €

OBRA INICIADA EN SEPTIEMBRE 2023 Y ENTREGA EN FEBRERO 2025Viviendas de lujo sing...

0
0 recenzji

Obra nueva Nalon Villas en Pozuelo de Alarcón

Madryt, Pozuelo de Alarcón, Zona Estación, Calle Nalón, 4
-

Lucas Fox se complace en presentarles estas fantásticas casas pareadas de obra n...

0
0 recenzji

Używamy własnych plików cookie oraz plików cookie stron trzecich do analizy korzystania z witryny i wyświetlania reklam dopasowanych do Twoich preferencji, na podstawie profilu utworzonego na podstawie Twoich nawyków przeglądania (np. odwiedzonych stron). Więcej informacji. Czy akceptujesz pliki cookie?