Hiszpania Miejski Hiszpania Miejski Malaga Miejski Marbella Terreno en calle Fuente Nueva, 103

Terreno en calle Fuente Nueva, 103

Malaga, Marbella, San Pedro de Alcántara, Calle Fuente Nueva, 103
350 000 €
Zostaw recenzję
Miejski Rodzaj rynku
203 m² Powierzchnia działki
Drzewa owocowe Uprawy
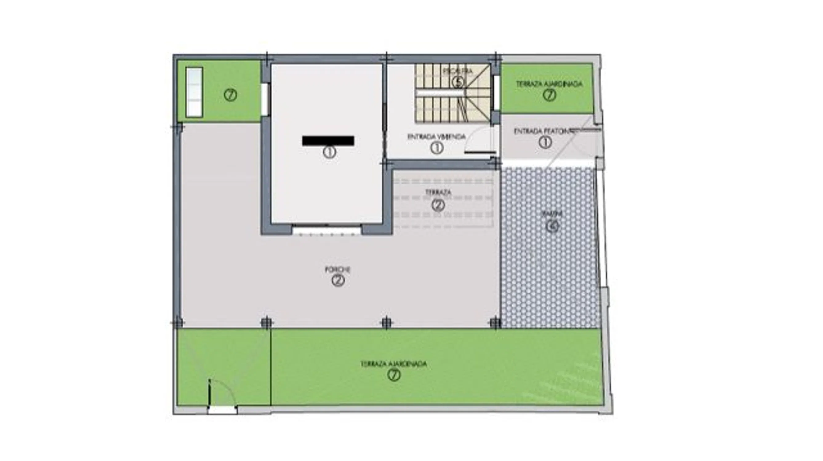
¡OPORTUNIDAD! Parcela en una situación excepcional. La parcela está calificada como suelo urbano y se permite la construcción de: Vivienda Unifamiliar, Vivienda Plurifamiliar o Local Comercial (Restaurante, Bar, Tienda... ) Cuenta con licencia de obras concedida para la construcción de una vivienda unifamiliar con piscina, 2 plantas + sótano y un local comercial en planta baja, también se entrega proyecto de arquitectura, con esto se ahorra la espera de aproximadamente 2 años para la concesión de la licencia. Se puede variar el proyecto existente o cambiarlo por completo y hacer uno nuevo. La localización es inmejorable dentro de núcleo urbano y está conectada tanto al centro de la ciudad como a la zona comercial e industrial, todo caminando a menos de 5 minutos. Alrededor tiene todo tipo de servicios (colegios, guarderías, farmacia, supermercado etc.. . ) y la zona de enfrente es una zona verde. La playa está a 5 minutos en coche o 15 minutos andando. La construcción de cualquier vivienda o local en esta parcela, tiene un coste menor que comprar cualquier otra propiedad construida de características similares en la zona. Sí está interesado, no dude en ponerse en contacto (directo propietario) y le daremos todos los detalles.

Charakterystyka nieruchomości

Complex information

  • Rodzaj rynku
    Miejski

Dane nieruchomości

  • Rodzaj nieruchomości
    Z drugiej ręki

Powierzchnie

  • Powierzchnia działki
    203 m²

Base

  • Uprawy
    Drzewa owocowe

Udogodnienia

Uprawa:

Uprawa żywności

Plany

Statystyki cen rynkowych dla Terreno en calle Fuente Nueva, 103

Mapa

Malaga, Marbella, San Pedro de Alcántara, Calle Fuente Nueva, 103 Iść do tego miejsca
Zostaw opinię o Terreno en calle Fuente Nueva, 103
0
0 recenzje
1
0% (0)
2
0% (0)
3
0% (0)
4
0% (0)
5
0% (0)
Alex Parcerisas
350 000 €
Kontakt z reklamodawcą

Aby uzyskać więcej informacji, skontaktuj się z platformą

REF: 244204

Opinie o Terreno en calle Fuente Nueva, 103
Loading...

No reviews have been left for this object yet

Najbliższe nieruchomości

Poznaj pobliskie nieruchomości, które znaleźliśmy w pobliżu tej lokalizacji

Terreno en venta en Gaucín s/n

Malaga, Benahavís, Los Arqueros-Puerto del Almendro, Gaucín s/n
3 600 000 €

Este terreno se encuentra en Gaucín, 0, 29679, Benahavís, Málaga. Es un solar qu...

0
0 recenzji

Terreno en avenida del Norte

Malaga, Marbella, Nowa Andaluzja, Avenida del Norte
2 800 000 €

Ubicación Prime | Vistas al Mar | Listas para Construir | Lujo en Estado Puro Pr...

0
0 recenzji

Terreno en benahavis, costa del sol, malaga

Malaga, Benahavís, Benahavís, Benahavis, costa del sol, malaga
450 000 €

Descubra esta excepcional parcela de terreno urbano, con una generosa extensión...

0
0 recenzji

Terreno en calle Peral

Malaga, Benahavís, El Paraíso, Calle Peral
1 500 000 €

¡Parcela con PROYECTO Y LICENCIA APROBADOS! Ubicada en el exclusivo y tranquilo...

0
0 recenzji

Terreno en El Madroñal, 137

Malaga, Benahavís, El Madroñal, El Madroñal, 137
1 500 000 €

PARCELA EN VENTA CON PROYECTO Y LICENCIA EN LA PRESTIGIOSA URBANIZACIÓN EL MADRO...

0
0 recenzji

Terreno en Urbanizacion Real de la Quinta

Malaga, Benahavís, El Madroñal, Urbanizacion Real de la Quinta
1 350 000 €

Terreno Urbano, La Quinta, Costa del Sol. Jardin/Terreno 2103 m². Posición: Cerc...

0
0 recenzji

Terreno en calle Endrinas

Malaga, Benahavís, La Alquería, Calle Endrinas
700 000 €

¡Parcela con proyecto y licencia aprobada — lista para construir en La Alquería,...

0
0 recenzji

Terreno en calle del Almendro, 21

Malaga, Benahavís, Benahavís, Calle del Almendro, 21
450 000 €

**Terreno en Venta en Benahavís Pueblo ** Descubre esta magnífica parcela de 308...

0
0 recenzji

Terreno en calle Montemayor

Malaga, Benahavís, Benahavís, Calle Montemayor
850 000 €

Descubre esta magnífica parcela ubicada en la prestigiosa Urbanización Montemayo...

0
0 recenzji

Używamy własnych plików cookie oraz plików cookie stron trzecich do analizy korzystania z witryny i wyświetlania reklam dopasowanych do Twoich preferencji, na podstawie profilu utworzonego na podstawie Twoich nawyków przeglądania (np. odwiedzonych stron). Więcej informacji. Czy akceptujesz pliki cookie?