Terreno en calle Notarios s/n

Malaga, Mijas, Riwiera del Sol, Calle Notarios s/n
2 225 000 €
Zostaw recenzję
Urbanozowalny Rodzaj rynku
6 200 m² Powierzchnia działki
5 Działki budowlane
7080 Zabudowa
Mieszkaniowy Użytkowanie działki
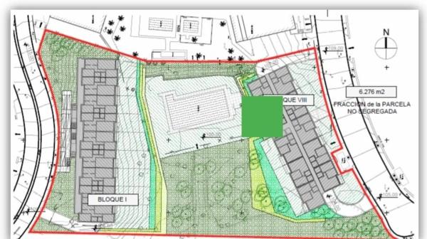
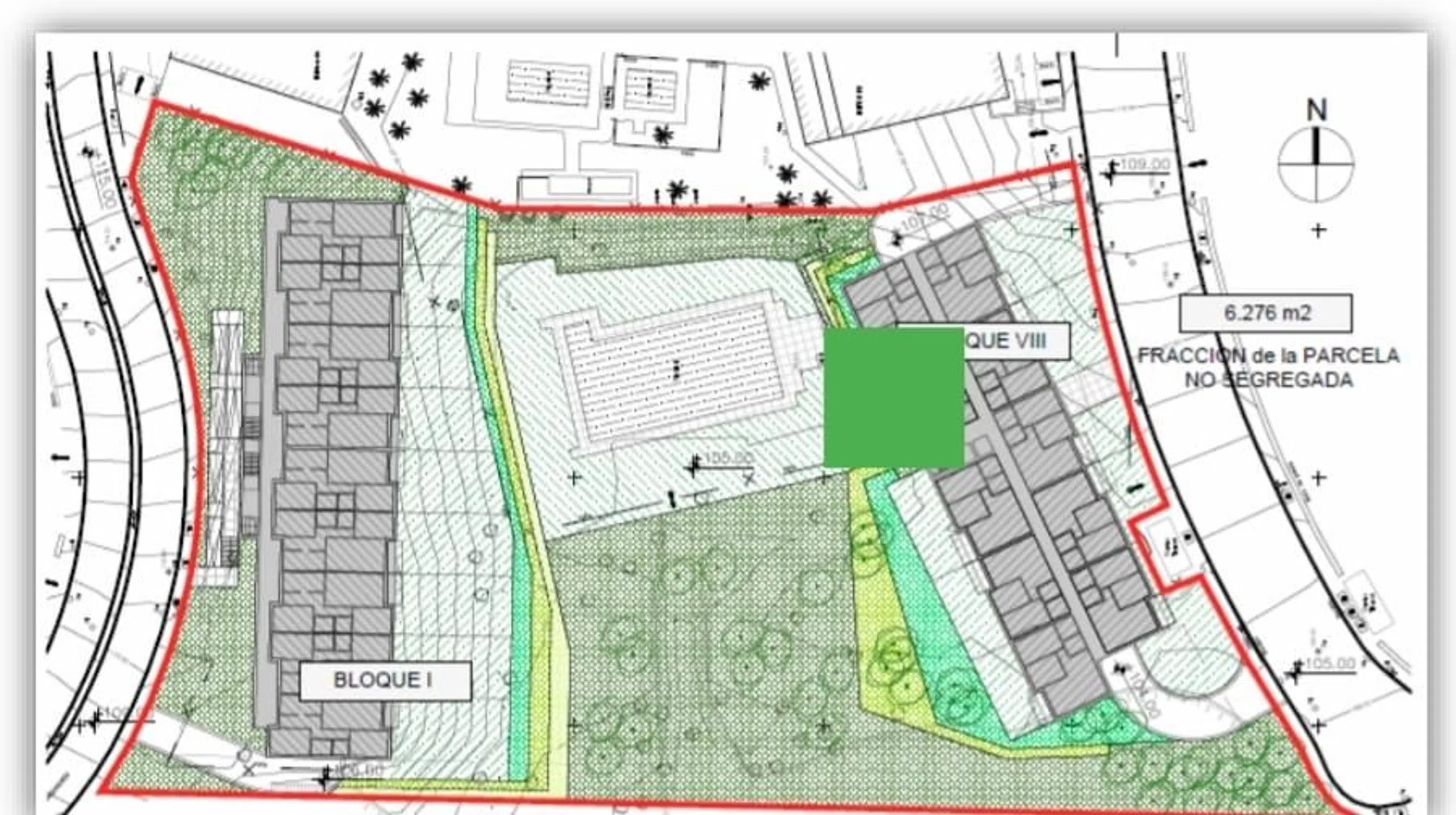
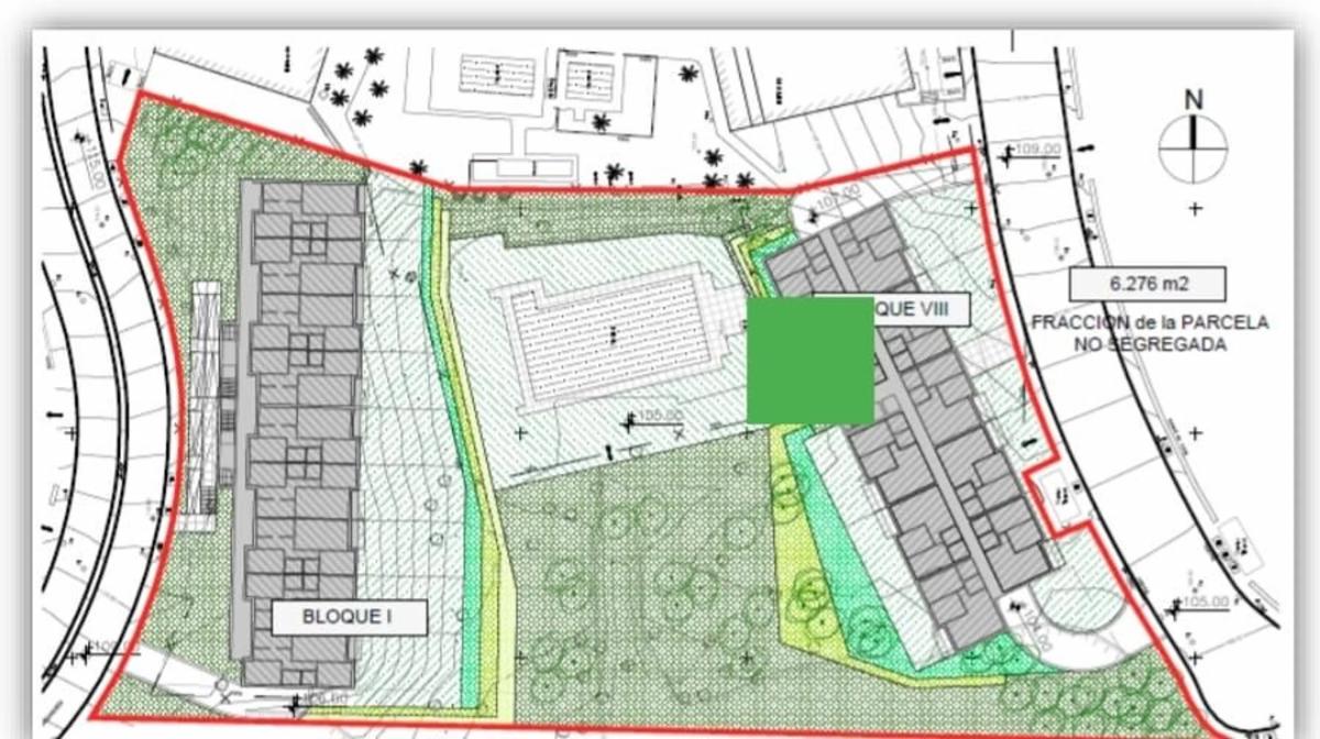
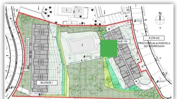
� Solar en Venta | Riviera del Sol, La Cala de Mijas, Málaga � � Ubicación privilegiada: Riviera del Sol, en La Cala de Mijas, rodeado de los mejores campos de golf de la Costa del Sol y con vistas al mar. � Proyecto ideal para promotores: • Posibilidad de construir 86 viviendas de 2 y 3 dormitorios. • 86 trasteros y 86 plazas de aparcamiento. • Techo edificable: 7.080 m² de uso residencial (uso hotelero compatible). • Anteproyecto para dos bloques de viviendas con 7.017 m² construidos sobre rasante. • Licencia de obra concedida en 2012 (actualmente caducada). � Oportunidad única para inversión o desarrollo residencial en una de las zonas más demandadas de la Costa del Sol. No deje escapar esta magnifica oportunidad, cualquier duda que pueda surgirle, no dude e consultarnos, estaremos encantados de atenderle.

Charakterystyka nieruchomości

Complex information

  • Rodzaj rynku
    Urbanozowalny

Dane nieruchomości

  • Rodzaj nieruchomości
    Z drugiej ręki

Powierzchnie

  • Powierzchnia działki
    6 200 m²

Base

  • Minimalna działka na sprzedaż
    6 200 m²
  • Działki budowlane
    5
  • Zabudowa
    7080
  • Użytkowanie działki
    Mieszkaniowy

Udogodnienia

Widoki:

Widoki na morze

Cechy dodatkowe:

Działka budowlana

Statystyki cen rynkowych dla Terreno en calle Notarios s/n

Mapa

Malaga, Mijas, Riwiera del Sol, Calle Notarios s/n Iść do tego miejsca
Zostaw opinię o Terreno en calle Notarios s/n
0
0 recenzje
1
0% (0)
2
0% (0)
3
0% (0)
4
0% (0)
5
0% (0)
OnsaleHomes Real Estate S.l
2 225 000 €
Kontakt z reklamodawcą

Aby uzyskać więcej informacji, skontaktuj się z platformą

REF: 366850

Opinie o Terreno en calle Notarios s/n
Loading...

No reviews have been left for this object yet

Najbliższe nieruchomości

Poznaj pobliskie nieruchomości, które znaleźliśmy w pobliżu tej lokalizacji

Terreno en Arrabal Sup C12, 1 a

Malaga, Mijas, Kalaburra - Chaparral, Arrabal Sup C12, 1 A
440 000 €

El concepto de diseño más universal y fundamental define una de las promociones...

0
0 recenzji

Terreno en Arrabal Sup C12, 1 a

Malaga, Mijas, Kalaburra - Chaparral, Arrabal Sup C12, 1 A
400 000 €

El concepto de diseño más universal y fundamental define una de las promociones...

0
0 recenzji

Terreno en Arrabal Sup C12, 43

Malaga, Mijas, Kalaburra - Chaparral, Arrabal Sup C12, 43
420 000 €

El concepto de diseño más universal y fundamental define una de las promociones...

0
0 recenzji

Terreno en Arrabal Sup C12, 12

Malaga, Mijas, Kalaburra - Chaparral, Arrabal Sup C12, 12
370 000 €

El concepto de diseño más universal y fundamental define una de las promociones...

0
0 recenzji

Terreno en Arrabal Sup C12, 11

Malaga, Mijas, Kalaburra - Chaparral, Arrabal Sup C12, 11
386 000 €

El concepto de diseño más universal y fundamental define una de las promociones...

0
0 recenzji

Terreno en calle Tenerife, 436 -2

Malaga, Marbella, Elviria-Cabopino, Calle Tenerife, 436 -2
1 500 000 €

Parcela de 872 m² ubicada a escasos metros del mar en Marbesa, una de las zonas...

0
0 recenzji

Terreno en Barrio Marbesa

Malaga, Marbella, Elviria-Cabopino, Barrio Marbesa
1 500 000 €

Una oportunidad excepcional tanto para inversores como para compradores que busc...

0
0 recenzji

Terreno en Trebol-santa Maria Golf, 10

Malaga, Marbella, Elviria-Cabopino, TREBOL-SANTA MARIA GOLF, 10
540 000 €

Superb Parcela con Proyecto Aprobado en Santa María Golf – Elviria Descubra esta...

0
0 recenzji

Terreno en calle Sirius-Riviera Sol F-2, 21

Malaga, Mijas, Riwiera del Sol, Calle Sirius-Riviera Sol F-2, 21
730 000 €

En venta dos estupendas parcelas juntas en la Urbanización Riviera del Sol fase...

0
0 recenzji
Zadzwoń

Używamy własnych plików cookie oraz plików cookie stron trzecich do analizy korzystania z witryny i wyświetlania reklam dopasowanych do Twoich preferencji, na podstawie profilu utworzonego na podstawie Twoich nawyków przeglądania (np. odwiedzonych stron). Więcej informacji. Czy akceptujesz pliki cookie?