Hiszpania Miejski Hiszpania Miejski Malaga Miejski Mijas Terreno en calle Goya de las Lomas, 5 a

Terreno en calle Goya de las Lomas, 5 a

Malaga, Mijas, Mijas Pueblo, Calle Goya de las Lomas, 5 A
345 000 €
Zostaw recenzję
Miejski Rodzaj rynku
698 m² Powierzchnia działki
2 Działki budowlane
460 Zabudowa
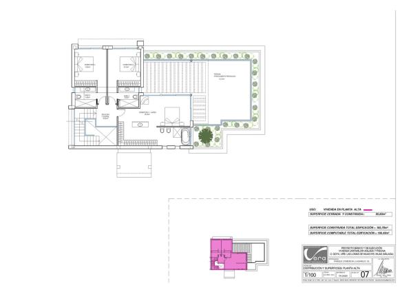
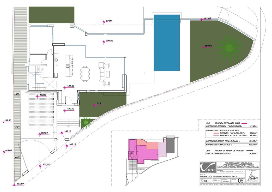
Excepcional parcela con proyecto aprobado en URB. LAS LOMAS DE MIJAS La parcela se encuentra en la parte superior de una colina en Urb Las Lomas de Mijas, rodeada de un ambiente natural incomparable. Tiene 698 m2 y hermosas vistas al mar. Posee un proyecto aprobado para la construcción de una a casa con alto estándar de calidad y diseño. La vivienda proyectada tiene una superficie de 460 m2 distribuida en 2 plantas y un sotano. Cuenta también con piscina, ascensor. Las Lomas de mijas es conocido por su ambiente tranquilo y sus impresionantes vistas al mar Mediterráneo. La ubicación es ideal para aquellos que buscan tranquilidad y naturaleza a poca distancia de la playa, restaurantes, bares y tiendas. La parcela está solo 5 minutos del municipio de Mijas pueblo y de la autovía que la comunican directamente con el Aeropuerto y la ciudad de Málaga. Mijas es conocida por su ambiente acogedor y multicultural, destino popular tanto para aquellos que buscan unas vacaciones relajantes junto al mar como para aquellos que desean establecerse en un lugar con un clima cálido, una calidad de vida excepcional y una amplia gama de servicios y comodidades.

Charakterystyka nieruchomości

Complex information

  • Rodzaj rynku
    Miejski

Dane nieruchomości

  • Rodzaj nieruchomości
    Z drugiej ręki

Powierzchnie

  • Powierzchnia działki
    698 m²

Base

  • Minimalna działka na sprzedaż
    698 m²
  • Możliwość budowy
    Dom jednorodzinny (łodzie)
  • Działki budowlane
    2
  • Zabudowa
    460

Udogodnienia

Widoki:

Widoki na morze

Plany

Statystyki cen rynkowych dla Terreno en calle Goya de las Lomas, 5 a

Mapa

Malaga, Mijas, Mijas Pueblo, Calle Goya de las Lomas, 5 A Iść do tego miejsca
Zostaw opinię o Terreno en calle Goya de las Lomas, 5 a
0
0 recenzje
1
0% (0)
2
0% (0)
3
0% (0)
4
0% (0)
5
0% (0)
345 000 €
Kontakt z reklamodawcą

Aby uzyskać więcej informacji, skontaktuj się z platformą

REF: 242738

Opinie o Terreno en calle Goya de las Lomas, 5 a
Loading...

No reviews have been left for this object yet

Najbliższe nieruchomości

Poznaj pobliskie nieruchomości, które znaleźliśmy w pobliżu tej lokalizacji

Terreno en venta en Urbanizacion Torreblanca del Sol

Malaga, Fuengirola, Los Pacos, Urbanizacion Torreblanca del Sol
175 000 €

¡Oportunidad única de inversión en la Costa del Sol! Se venden 6 Terrenos ubicad...

0
0 recenzji

Terreno en venta en calle Veleta s/n

Malaga, Benalmádena, Montealto, Calle Veleta s/n
3 000 000 €

Este terreno se encuentra en Calle Veleta, 29631, Benalmádena, Málaga. Es un sol...

0
0 recenzji

Terreno en Valtocado - La Alquería - La Atalaya

Malaga, Mijas, Valtocado - La Alquería - La Atalaya, Valtocado - La Alquería - La Atalaya
185 000 €

Parcela Rústica en El Hornillo Parcela rústica de aproximadamente 13.000 m2, muy...

0
0 recenzji

Terreno en calle las Palomas, 11

Malaga, Fuengirola, Torreblanca del Sol, Calle las Palomas, 11
185 000 €

Espectacular solar de 436 m2 con vista lateral al mar.

0
0 recenzji

Terreno en Los Pacos

Malaga, Fuengirola, Los Pacos, Los Pacos
4 500 000 €

Parcela Edificable en Venta en Los Pacos (Fuengirola) ¡Oportunidad única para pr...

0
0 recenzji

Terreno en calle Pensamiento, 3

Malaga, Benalmádena, Benalmádena Pueblo, Calle Pensamiento, 3
1 530 000 €

Oportunidad Exclusiva para Inversores en la Costa del Sol. Descubre una oportuni...

0
0 recenzji

Terreno en calle Jilguero

Malaga, Fuengirola, Torreblanca del Sol, Calle Jilguero
2 150 000 €

Parcela urbana en venta en Urb. Torreblanca del Sol, Fuengirola (Málaga). Tiene...

0
0 recenzji

Terreno en camino de los Rios

Malaga, Mijas, Valtocado - La Alquería - La Atalaya, Camino de los Rios
250 000 €

Excelente oportunidad en Valtocado Si lo que buscas es paz y naturaleza, esta pa...

0
0 recenzji

Terreno en Mijas s/n

Malaga, Mijas, Mijas Pueblo, Mijas s/n
250 000 €

Oportunidad Única de TERRENO con Proyecto Aprobado en la Prestigiosa Zona de Mij...

0
0 recenzji

Używamy własnych plików cookie oraz plików cookie stron trzecich do analizy korzystania z witryny i wyświetlania reklam dopasowanych do Twoich preferencji, na podstawie profilu utworzonego na podstawie Twoich nawyków przeglądania (np. odwiedzonych stron). Więcej informacji. Czy akceptujesz pliki cookie?