Terreno en La Cala del Moral

Malaga, Rincón de la Victoria, La Cala del Moral, La Cala del Moral
395 000 €
Zostaw recenzję
Urbanozowalny Rodzaj rynku
23 000 m² Powierzchnia działki
22000 Zabudowa
Mieszkaniowy Użytkowanie działki
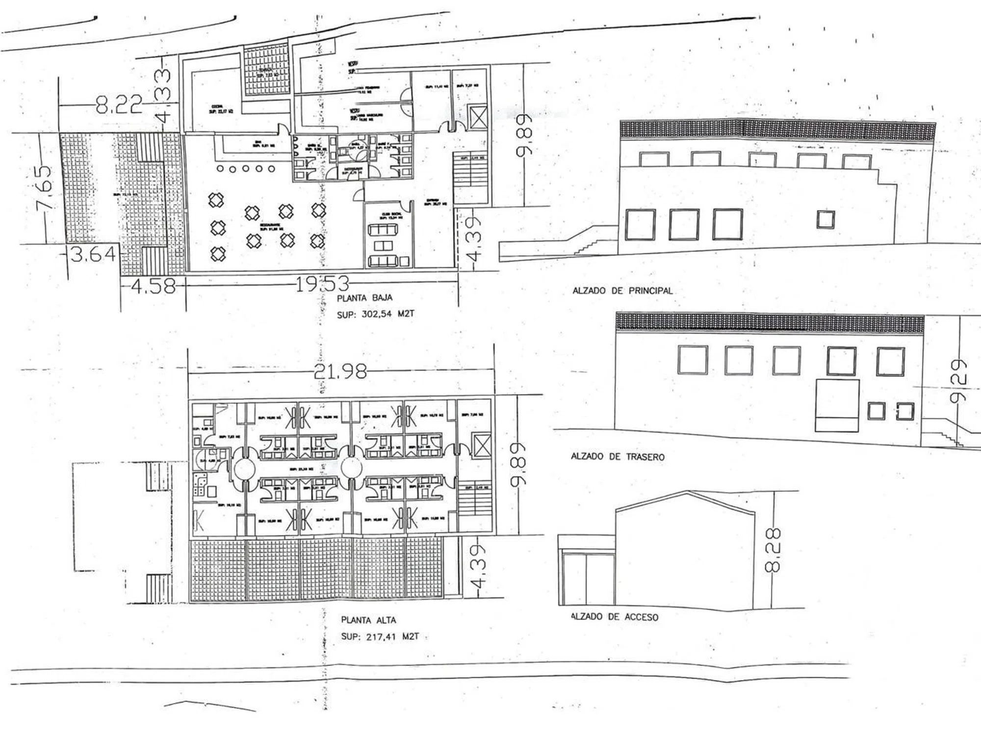
OPORTUNIDAD SOLAR EN CARRETERA DE TOTALÁN Redpiso ofrece fantástica OPORTUNIDAD en Carretera de Totalán, a 2 minutos de Cala del Moral, a 5 minutos de la playa Parcela de 23.000m², con proyecto aprobado por la Junta de Andalucía y el ayuntamiento, para la construcción de un complejo rural. Se podrán desarrollar 30 habitaciones hoteleras turísticas no residenciales, restaurante, actividades de ocio, zonas verdes, rutas de burro, senderismo, bicicletas, tirolina, etc. Informe positivo para el servicio municipal de abastecimiento domiciliario de agua potable de Rincón de la Victoria y saneamiento. Consúltenos sin compromiso, estaremos encantados de poder ayudarles. Redpiso la confianza de trabajar con el líder. Puede encontrarnos en Calle Alonso Carrillo de Albornoz 7, (frente al Mercado Municipal) Málaga. DEPARTAMENTO FINANCIERO propio Redpiso-DCredit: nuestro departamento financiero podrá aconsejarle de manera GRATUITA de todas las opciones de financiación, gracias a los convenios con las entidades financieras, en función de su situación laboral y económica, teniendo muchas más opciones económicas. FINANCIACIÓN HASTA EL 100%. Según el Real Decreto de 218/2005 de 11 de octubre, los precios ofertados no comprenden los tributos (Impuestos de Transmisiones Patrimoniales), ni los gastos notariales y registrales relativos a la compra-venta, ni la comisión de intermediación que satisface el comprador.

Charakterystyka nieruchomości

Complex information

  • Rodzaj rynku
    Urbanozowalny

Dane nieruchomości

  • Rodzaj nieruchomości
    Z drugiej ręki

Powierzchnie

  • Powierzchnia działki
    23 000 m²

Base

  • Grunt nieurbanozny
    Rustykalny lub wiejski
  • Zabudowa
    22000
  • Użytkowanie działki
    Mieszkaniowy

Plany

Statystyki cen rynkowych dla Terreno en La Cala del Moral

Mapa

Malaga, Rincón de la Victoria, La Cala del Moral, La Cala del Moral Iść do tego miejsca
Zostaw opinię o Terreno en La Cala del Moral
0
0 recenzje
1
0% (0)
2
0% (0)
3
0% (0)
4
0% (0)
5
0% (0)
REDPISO MÁLAGA EL PALO - LA CALA
395 000 €
Kontakt z reklamodawcą

Aby uzyskać więcej informacji, skontaktuj się z platformą

REF: 244841

Opinie o Terreno en La Cala del Moral
Loading...

No reviews have been left for this object yet

Najbliższe nieruchomości

Poznaj pobliskie nieruchomości, które znaleźliśmy w pobliżu tej lokalizacji

Terreno en venta en Pinares de San Antón

Malaga, Málaga, Este
289 000 €

Fabulosa Parcela de 825m2 en Pinares de San Antón en zona baja, en un enclaje tr...

0
0 recenzji

Terreno en calle de Stradivarius, 56

Malaga, Málaga, Este, Calle de Stradivarius, 56
253 000 €

Finca al lado pinares san anton con espectaculares vistas bahia malaga, permiten...

0
0 recenzji

Terreno en Cotomar - Urbanizaciones

Malaga, Rincón de la Victoria, Cotomar - Urbanizacje, Cotomar - Urbanizaciones
390 000 €

Parcela en la zona de Cotomar en Rincón de la Victoria. Suelo urbano consolidado...

0
0 recenzji

Terreno en calle 10

Malaga, Málaga, Este, Calle 10
30 000 €

Solar urbano, situado en la barriada de Olías, que pertenece al municipio de Mál...

0
0 recenzji

Terreno en Barrio Jarazmín

Malaga, Málaga, Este, Barrio Jarazmín
155 000 €

Dos terrenos que se venden juntos o por separado. De las pocas parcelas donde p...

0
0 recenzji

Terreno en calle Pez Limón

Malaga, Málaga, Este, Calle Pez Limón
1 500 000 €

¡Oportunidad única en Málaga! Este terreno en venta, con una superficie total de...

0
0 recenzji

Terreno en calle Acebuche, 25

Malaga, Rincón de la Victoria, Plaża del Rincón, Calle Acebuche, 25
155 000 €

Vendo terreno urbanizable para vivienda unifamiliar a menos de 5 minutos del Lid...

0
0 recenzji

Terreno en Urbanizacion Añoreta, 2 g

Malaga, Rincón de la Victoria, Añoreta Golf - Raj na Słońcu, Urbanizacion Añoreta, 2 G
4 950 000 €

Ubicación privilegiada en la prestigiosa urbanización Añoreta Golf de Rincón de...

0
0 recenzji

Terreno en Añoreta Golf - Paraíso del Sol

Malaga, Rincón de la Victoria, Añoreta Golf - Raj na Słońcu, Añoreta Golf - Paraíso del Sol
1 200 000 €

Magnifica oportunidad de adquirir una gran parcela para EQUIPAMIENTO PRIVADO con...

0
0 recenzji
Zadzwoń

Używamy własnych plików cookie oraz plików cookie stron trzecich do analizy korzystania z witryny i wyświetlania reklam dopasowanych do Twoich preferencji, na podstawie profilu utworzonego na podstawie Twoich nawyków przeglądania (np. odwiedzonych stron). Więcej informacji. Czy akceptujesz pliki cookie?