Terreno en Lugar a Serra, 45

Pontevedra, Ponteareas, Lugar a Serra, 45
35 000 €
Zostaw recenzję
Miejski Rodzaj rynku
600 m² Powierzchnia działki
9 Działki budowlane
600 m² Zabudowa
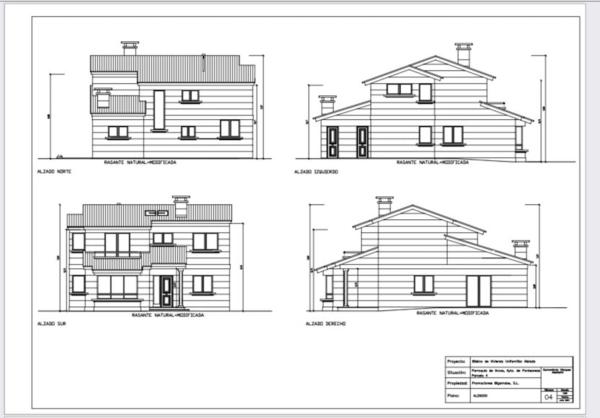
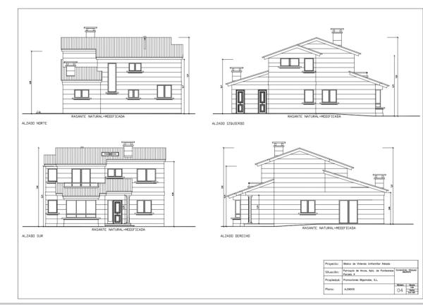
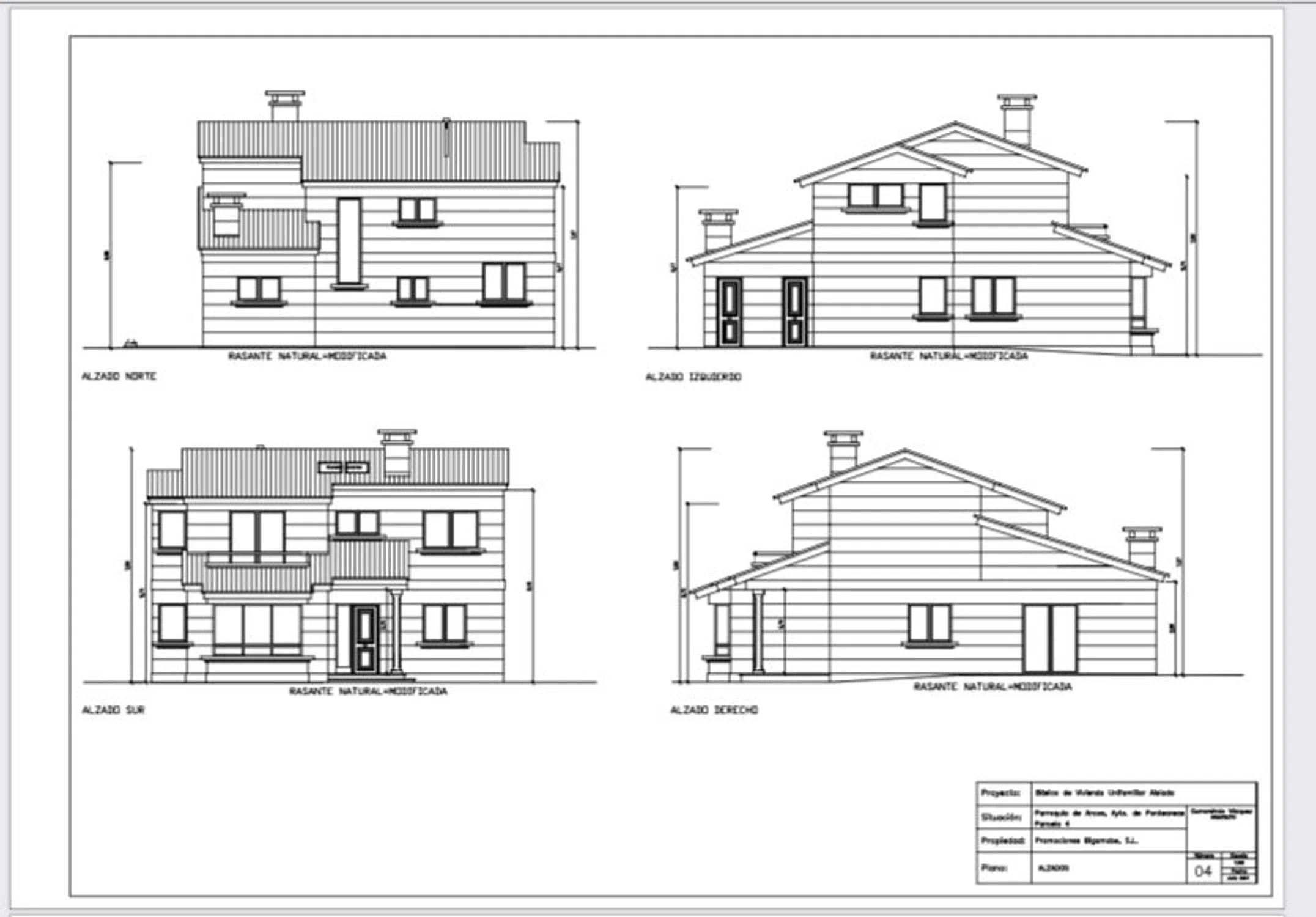
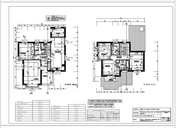
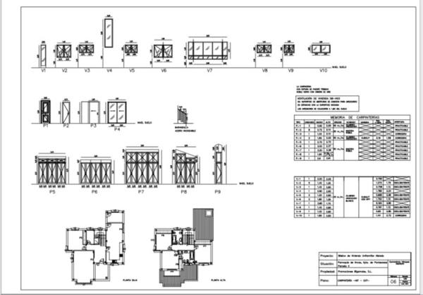
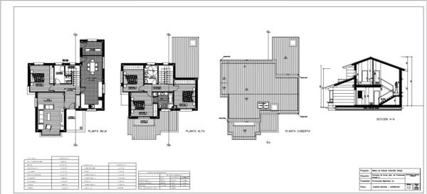
¡Atención inversores y constructores! Tenemos a la venta un terreno edificable en la zona de Arcos, cerca del pueblo de Ponteareas. Este terreno se encuentra detrás de una ferretería y cuenta con 9 parcelas disponibles, cada una con entrada independiente, cuyas superficies oscilan entre los 549 y 682 metros cuadrados. El precio de venta de estas parcelas comienza a partir de 35.000 euros. Además, se aportará un proyecto de casa unifamiliar y se presentará en el ayuntamiento. En las fotos podrán ver una foto aérea del terreno y los planos de las parcelas. Cada parcela tiene un tamaño diferente, así que seguro que encontrará la que mejor se adapte a sus necesidades. El terreno cuenta con todos los servicios necesarios para la construcción, como agua, luz, alcantarillado y alumbrado público. Además, se encuentra en una zona urbana y residencial unifamiliar, perfecta para la construcción de chalets. En resumen, si está buscando un terreno edificable en una zona tranquila y residencial, no dude en contactar con nosotros para obtener más información sobre estas parcelas en venta en Arcos. ¡No pierda esta oportunidad única de invertir en su futuro!

Charakterystyka nieruchomości

Complex information

  • Rodzaj rynku
    Miejski

Dane nieruchomości

  • Rodzaj nieruchomości
    Z drugiej ręki

Powierzchnie

  • Powierzchnia działki
    600 m²

Base

  • Minimalna działka na sprzedaż
    600 m²
  • Działki budowlane
    9
  • Zabudowa
    600 m²

Udogodnienia

Dostawa:

Kanalizacja

Statystyki cen rynkowych dla Terreno en Lugar a Serra, 45

Mapa

Pontevedra, Ponteareas, Lugar a Serra, 45 Iść do tego miejsca
Zostaw opinię o Terreno en Lugar a Serra, 45
0
0 recenzje
1
0% (0)
2
0% (0)
3
0% (0)
4
0% (0)
5
0% (0)
inmoVonLine
35 000 €
Kontakt z reklamodawcą

Aby uzyskać więcej informacji, skontaktuj się z platformą

REF: 382550

Opinie o Terreno en Lugar a Serra, 45
Loading...

No reviews have been left for this object yet

Najbliższe nieruchomości

Poznaj pobliskie nieruchomości, które znaleźliśmy w pobliżu tej lokalizacji

Terreno en N-120, 5

Pontevedra, Ponteareas, N-120, 5
50 000 €

Terreno urbano para tu futura casa! Posibilidad de parcelar para 2 casas! El ter...

0
0 recenzji

Terreno en Ponteareas

Pontevedra, Ponteareas, Ponteareas
25 000 €

Gulanes, Ponteareas. Se vende terreno de 570 m2 con galpón. Pídanos información...

0
0 recenzji

Terreno en Mondariz

Pontevedra, Mondariz, Mondariz
45 000 €

Se vende parcela edificable en Villasobroso. Tiene una superficie de 1.239 metro...

0
0 recenzji

Terreno en Gulans s/n

Pontevedra, Ponteareas, Gulans s/n
63 000 €

Parcela urbana con proyecto y licencia en Guláns, Ponteareas. Os presentamos est...

0
0 recenzji

Terreno en avenida Do Balneario

Pontevedra, Mondariz, Avenida Do Balneario
90 000 €

Gran oportunidad de adquirir en propiedad este suelo ubicado en Mondariz, en la...

0
0 recenzji

Terreno en Ponteareas

Pontevedra, Ponteareas, Ponteareas
98 000 €

Se vende parcela en Angoares, cercana al casco urbano de Ponteareas, con parte e...

0
0 recenzji

Terreno en Ponteareas

Pontevedra, Ponteareas, Ponteareas
35 000 €

Parcela en venta o permuta situada en Biringuela, Ponteareas. Perfecta para quie...

0
0 recenzji

Terreno en A-52

Pontevedra, Ponteareas, A-52
30 000 €

OPORTUNIDAD ÚNICA EN PONTEAREAS – VERA - SAN MATEO Terreno Urbano de 840 m² en u...

0
0 recenzji

Terreno en barrio de sanpedro s/n

Pontevedra, Mondariz-Balneario, Barrio de sanpedro s/n
110 000 €

finca cerrada con muro de piedra, con casa para restaurar. la casa tiene proyect...

0
0 recenzji

Używamy własnych plików cookie oraz plików cookie stron trzecich do analizy korzystania z witryny i wyświetlania reklam dopasowanych do Twoich preferencji, na podstawie profilu utworzonego na podstawie Twoich nawyków przeglądania (np. odwiedzonych stron). Więcej informacji. Czy akceptujesz pliki cookie?