Obra nueva Magdalena murillo en Gelves

Wyprzedaż
Zostaw recenzję
Mieszkania Rodzaj rynku
54 m² m2 zabudowane
1 Łazienki
2 Sypialnie
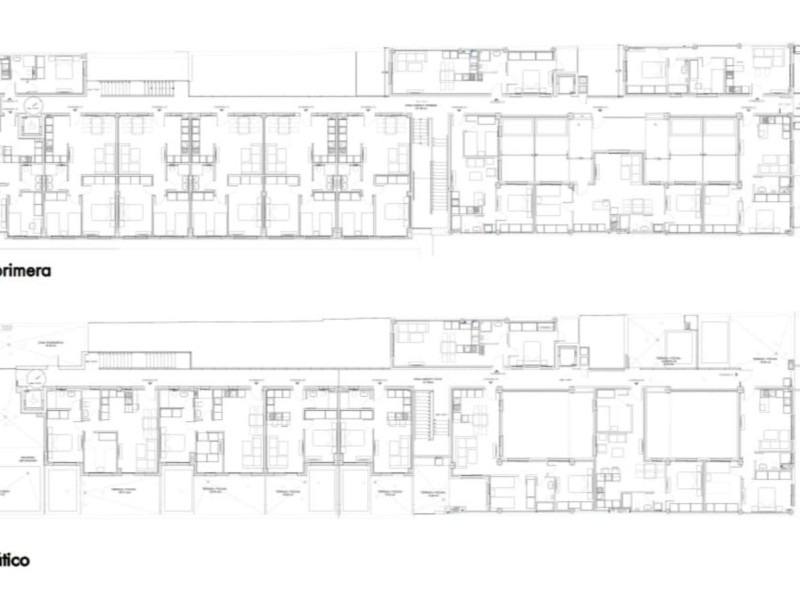
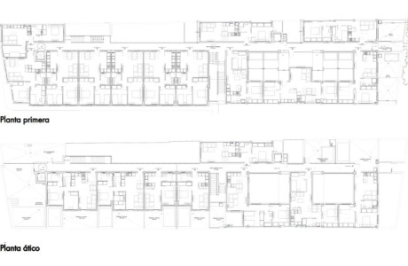
ULTIMAS 10 VIVIENDAS!Descubre una exclusiva promoción de viviendas en la calle Magdalena Murillo de Gelves. Este magnífico edificio ofrece treinta y dos viviendas diseñadas para ofrecer una experiencia de vida excepcional ofreciendo un diseño moderno y elegante. Cada una de estas espaciosas viviendas, que incluyen opciones de 1 y 2 dormitorios, algunas de estas viviendas cuenta con grandes patios o terrazas, brindando un espacio al aire libre perfecto para disfrutar del clima soleado y las vistas panorámicas. Una promoción de viviendas sin equivalente en el mercado, en un edificio que cuenta con revestimientos de primera calidad y acabados sensacionales, con la posibilidad de que cada propietario personalice su vivienda según sus gustos y preferencias. Sumérgete en un estilo de vida exclusivo y personalizado en esta promoción, que combina el confort, la comodidad y los espacios al aire libre en un entorno privilegiado.Viviendas cercanas a comercios, bares, restaurantes, institutos y transporte publico.Informamos a nuestros clientes que el precio de venta no incluye lo siguiente: Honorarios de la agencia inmobiliaria, IVA, gastos de registro, gestoría y notaria. Documento D. I. A. a disposición del consumidor según Decreto 218/2005 Junta de Andalucía.Para más información de la promoción puedes visitarnos en nuestra oficina Tecnocasa de Calle Real 34 (Gelves, Sevilla).* Garajes independiente a 15.000€ y 16.000€.

Charakterystyka nieruchomości

Complex information

  • Kompleks mieszkalny
    Magdalena murillo
  • Rodzaj rynku
    Mieszkania

Dane nieruchomości

  • Sypialnie
    2
  • Łazienki
    1
  • m2 zabudowane
    54 m²
  • Typ projektu
    Nowoczesny
  • Rodzaj nieruchomości
    Nowa budowa

Udogodnienia

Udogodnienia mieszkania:

Taras

W budynku:

Winda
Bar
Spa

Statystyki cen rynkowych dla Piso en venta en calle magdalena murillo s/n

138 229 € (2 103 €/m2)
Średnia cena pierwotnego Mieszkania w mieście Gelves

Mapa

Sevilla, Gelves Iść do tego miejsca
Zostaw opinię o Piso en venta en calle magdalena murillo s/n
0
0 recenzje
1
0% (0)
2
0% (0)
3
0% (0)
4
0% (0)
5
0% (0)
Magdalena murillo
Kompleks mieszkalny
Wyprzedaż
Kontakt z reklamodawcą

Aby uzyskać więcej informacji, skontaktuj się z platformą

REF: 11097

Opinie o Piso en venta en calle magdalena murillo s/n
Loading...

No reviews have been left for this object yet

Najbliższe nieruchomości

Poznaj pobliskie nieruchomości, które znaleźliśmy w pobliżu tej lokalizacji

Apartamentos en Venta en Calle Pages del Corro, 95, 97, Sevilla

Sevilla, Sewilla, Triana, Calle Pages del Corro, 95, 97
430 000 €

DESCUBRE EL HOGAR DONDE LOS SUEÑOS SE CUMPLENMODERNO Y CLASICO SE DAN LA MANOEn...

0
0 recenzji

Apartamentos en Venta en Calle Pages del Corro, 95, 97, Sevilla

Sevilla, Sewilla, Triana, Calle Pages del Corro, 95, 97
306 000 €

DESCUBRE EL HOGAR DONDE LOS SUEÑOS SE CUMPLENMODERNO Y CLASICO SE DAN LA MANOEn...

0
0 recenzji

Apartamentos en Venta en Calle Pages del Corro, 95, 97, Sevilla

Sevilla, Sewilla, Triana, Calle Pages del Corro, 95, 97
351 000 €

DESCUBRE EL HOGAR DONDE LOS SUEÑOS SE CUMPLENMODERNO Y CLASICO SE DAN LA MANOEn...

0
0 recenzji

Apartamentos en Venta en Calle Pages del Corro, 95, 97, Sevilla

Sevilla, Sewilla, Triana, Calle Pages del Corro, 95, 97
389 000 €

DESCUBRE EL HOGAR DONDE LOS SUEÑOS SE CUMPLENMODERNO Y CLASICO SE DAN LA MANOEn...

0
0 recenzji

Apartamentos en Venta en Avenida Jerez s/n, Sevilla

Sevilla, Sewilla, La Palmera - Los Bermejales, Avenida Jerez s/n
361 000 €

¡OBRAS INICIADAS!Selecta Bermes es un nuevo proyecto de 42 viviendas plurifamili...

0
0 recenzji

Apartamentos en Venta en Avenida Jerez s/n, Sevilla

Sevilla, Sewilla, La Palmera - Los Bermejales, Avenida Jerez s/n
289 000 €

¡OBRAS INICIADAS!Selecta Bermes es un nuevo proyecto de 42 viviendas plurifamili...

0
0 recenzji

Apartamentos en Venta en Avenida Jerez s/n, Sevilla

Sevilla, Sewilla, La Palmera - Los Bermejales, Avenida Jerez s/n
422 000 €

¡OBRAS INICIADAS!Selecta Bermes es un nuevo proyecto de 42 viviendas plurifamili...

0
0 recenzji

Obra nueva Edificio Olivar de la Reina en Sevilla

Sevilla, Sewilla, Cerro Amate, Calle José María de Pereda, 21
235 000 €

Viviendas para habitar y disfrutar en el corazón del tradicional barrio sevillan...

0
0 recenzji

Obra nueva Edificio Olivar de la Reina en Sevilla

Sevilla, Sewilla, Cerro Amate, Calle José María de Pereda, 21
158 900 €

Viviendas para habitar y disfrutar en el corazón del tradicional barrio sevillan...

0
0 recenzji

Używamy własnych plików cookie oraz plików cookie stron trzecich do analizy korzystania z witryny i wyświetlania reklam dopasowanych do Twoich preferencji, na podstawie profilu utworzonego na podstawie Twoich nawyków przeglądania (np. odwiedzonych stron). Więcej informacji. Czy akceptujesz pliki cookie?