Terreno en El Bosque

Walencja, Chiva, El Bosque, El Bosque
350 000 €
Zostaw recenzję
Miejski Rodzaj rynku
1 370 m² Powierzchnia działki
3 Działki budowlane
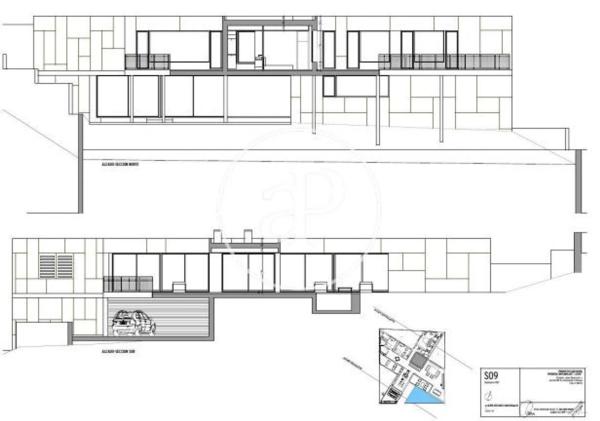
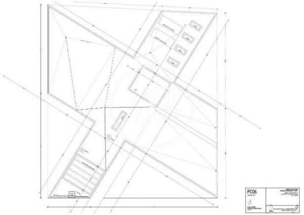
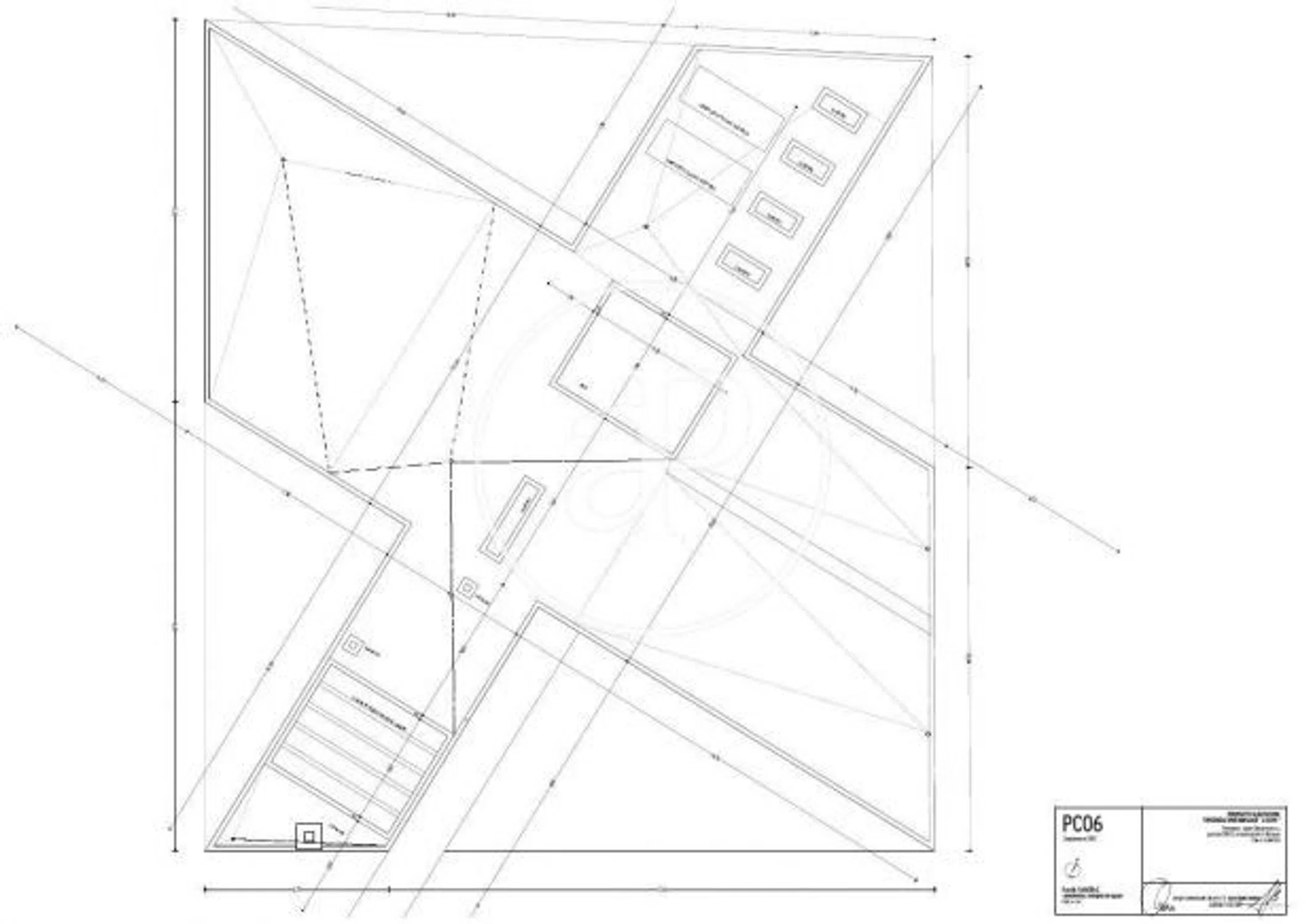
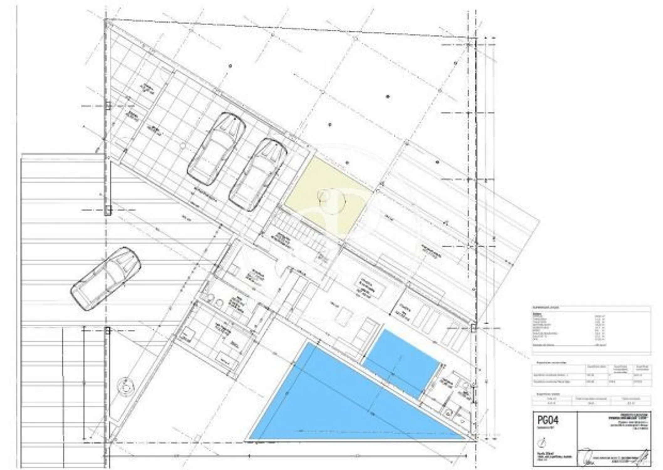
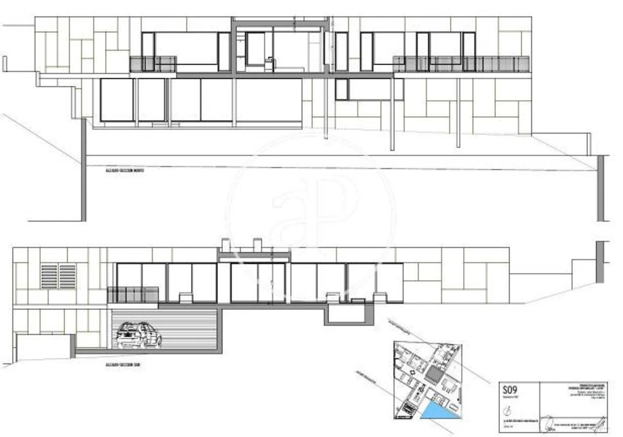
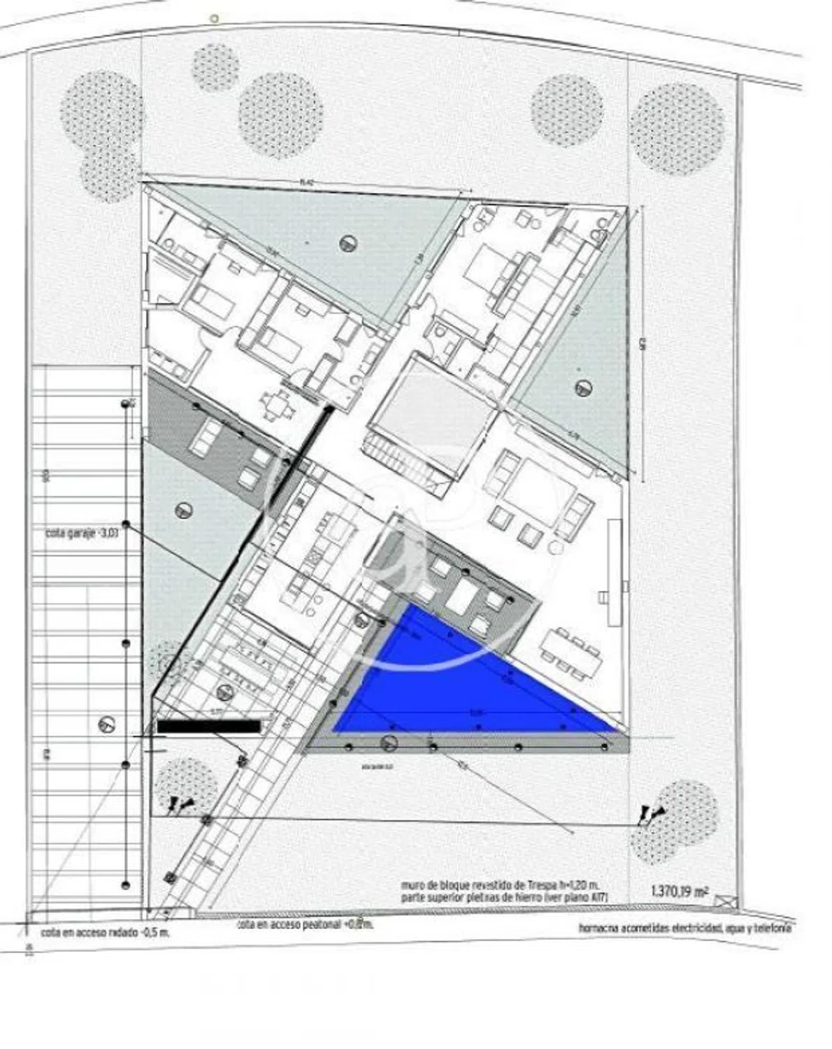
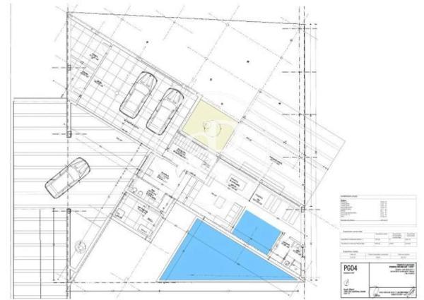
En la urbanización El Bosque, en Chiva, en una zona privilegiada con todos los servicios, encontramos esta parcela de 1.370 metros cuadrados.    Dispone de un proyecto de una vivienda unifamiliar de 502 metros cuadrados, de dos plantas distribuidas en 222 metros cuadrados de semisótano y 280 metros cuadrados en la planta principal.   Tiene muchas posibilidades, como inversión o vivienda familiar.   Si desea más información sobre esta propiedad, no dude en contactar con nosotros, estaremos encantados de atenderle.   Contacte con nosotros para ver más inmuebles similares.

Charakterystyka nieruchomości

Complex information

  • Rodzaj rynku
    Miejski

Dane nieruchomości

  • Rodzaj nieruchomości
    Z drugiej ręki

Powierzchnie

  • Powierzchnia działki
    1 370 m²

Base

  • Działki budowlane
    3

Udogodnienia

W budynku:

Piwnica

Statystyki cen rynkowych dla Terreno en El Bosque

Mapa

Walencja, Chiva, El Bosque, El Bosque Iść do tego miejsca
Zostaw opinię o Terreno en El Bosque
0
0 recenzje
1
0% (0)
2
0% (0)
3
0% (0)
4
0% (0)
5
0% (0)
aProperties Real Estate Valencia
350 000 €
Kontakt z reklamodawcą

Aby uzyskać więcej informacji, skontaktuj się z platformą

REF: 381056

Opinie o Terreno en El Bosque
Loading...

No reviews have been left for this object yet

Najbliższe nieruchomości

Poznaj pobliskie nieruchomości, które znaleźliśmy w pobliżu tej lokalizacji

Terreno en venta en Cumbres de Calicanto

Walencja, Torrent, Kalikanto - Monte Real
90 000 €

¡Oportunidad Única! Terreno en Torrente, Zona de CalicantoAnunciamos este terren...

0
0 recenzji

Terreno en Loriguilla

Walencja, Loriguilla, Loriguilla
732 000 €

� GRAN SOLAR URBANO EN LORIGUILLA – IDEAL PARA PROMOCIÓN DE ADOSADO� 1.520 m² de...

0
0 recenzji

Terreno en Polígono Cementerio San Jaime

Walencja, Riba-Roja de Túria, Polígono Cementerio San Jaime
2 000 €

Unidad de enterramiento dentro de cementerio, situado en el municipio de Riba-Ro...

0
0 recenzji

Terreno en calle N9, 10

Walencja, Riba-Roja de Túria, Calle N9, 10
1 533 000 €

Excelente suelo industrial ubicado en el polígono Masía Baló de Ribarroja, zona...

0
0 recenzji

Terreno en Loriguilla

Walencja, Loriguilla, Loriguilla
265 000 €

Suelo urbano esquinero con 26 m² en una calle y 41m² en otra. Edificacion planta...

0
0 recenzji

Terreno en paseo de Valencia

Walencja, Loriguilla, Paseo de Valencia
41 250 €

¡SIN COMISIÓN INMOBILIARIA! � A tan solo 15 minutos de Valencia � Parcelas en lo...

0
0 recenzji

Terreno en Loriguilla

Walencja, Loriguilla, Loriguilla
260 000 €

¡Oportunidad única en Loriguilla! Descubre este magnífico terreno de 671 m², ide...

0
0 recenzji

Terreno en Riba-Roja de Túria

Walencja, Riba-Roja de Túria, Riba-Roja de Túria
656 775 €

El departamento de Industrial & Logística de Inmoking les presenta la comerciali...

0
0 recenzji

Terreno en avenida Constitución

Walencja, Loriguilla, Avenida Constitucion
275 000 €

¡Descubre el terreno perfecto para tu próximo proyecto en Loriguilla! Este ampli...

0
0 recenzji
Zadzwoń

Używamy własnych plików cookie oraz plików cookie stron trzecich do analizy korzystania z witryny i wyświetlania reklam dopasowanych do Twoich preferencji, na podstawie profilu utworzonego na podstawie Twoich nawyków przeglądania (np. odwiedzonych stron). Więcej informacji. Czy akceptujesz pliki cookie?