Sprzedaż duplexu w Calle Ángel Jaria, 29-, 33, Zaragoza

Zaragoza, Zaragoza, Miralbueno, Calle Ángel Jaria, 29-, 33
Wyprzedaż
Zostaw recenzję
Dupleksy Rodzaj rynku
3 Sypialnie
92 m² m2 zabudowane
2 Łazienki
Ogrzewanie podłogowe Ogrzewanie
Wyposażona Wyposażenie kuchni
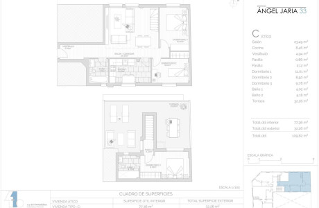
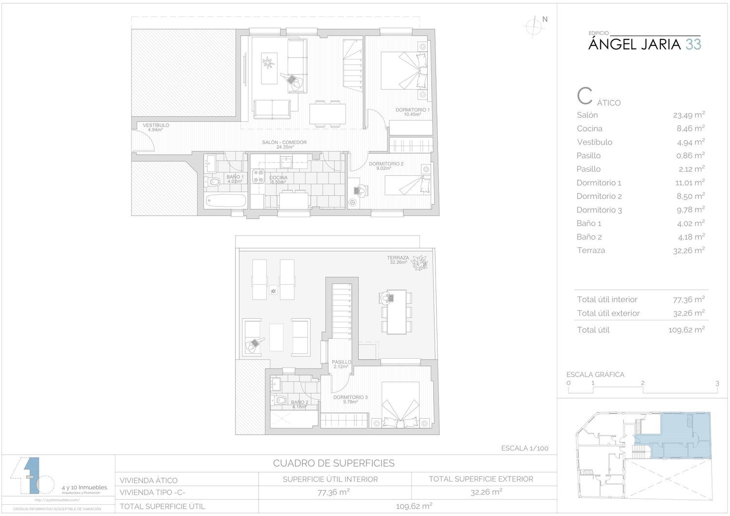
OBRAS YA INICIADASPromoción de siete viviendas situada en la calle Ángel Jaria número 29, junto al Camino del Pilón, viviendas desde 70 m² hasta 84 m², con garaje y trastero. Distribuciones a elegir entre 3 y 4 dormitorios, grandes terrazas privadas de hasta 60 m².Viviendas con piscinas privadas opcionales.El edificio se sitúa en la parte central del barrio de Miralbueno, entre las calles Calle Francisco Rallo Lahoz y el Camino del Pilón. En esta zona de la ciudad en plena expansión se pueden encontrar multitud de zonas naturales, parques y plazas. En el área próxima también se pueden encontrar diversos equipamientos educativos, deportivos o centros sanitarios, como colegios, institutos, guarderías, residencias y centros deportivos. Un lugar perfecto para poder rodearse de zonas verdes, sin perder las comodidades de situarse en el centro urbano de Zaragoza.Viviendas de excelentes calidades, alta eficiencia energética, Certificación Energética A, totalmente equipadas y personalizables. El Edificio cuenta con tres áticos dúplex con amplias terrazas, dos viviendas en planta con terrazas a ambas fachadas y dos bajos con unas grandes terrazas en su interior. Los precios incluyen garaje y trastero.Edificio rodeado por una envolvente de altas capacidades térmicas Certificación Energética A, instalaciones de última generación mediante sistema de aerotermia y empleo de energía propia y ventilación mecánica con recuperador de calor.Materiales cuidadosamente seleccionados que garantizan el confort de la vivienda: suelo radiante y refrescante con pavimento porcelánico, recuperador de calor, preinstalación de carga vehículo eléctrico en garaje, y carpinterías de altas prestaciones.

Charakterystyka nieruchomości

Complex information

  • Kompleks mieszkalny
    Ángel Jaria 29-33
  • Rodzaj rynku
    Dupleksy

Pamięć o Jakości

  • Ogrzewanie
    Ogrzewanie podłogowe

Dane nieruchomości

  • Wyposażenie kuchni
    Wyposażona
  • Sypialnie
    3
  • Łazienki
    2
  • m2 zabudowane
    92 m²
  • Rodzaj nieruchomości
    Nowa budowa

Certyfikat energetyczny

  • Certyfikat energetyczny
    A

Udogodnienia

Udogodnienia mieszkania:

Magazyn
Okna wewnętrzne
Taras

W budynku:

Basen
Winda
Bar
Zonas huertos
Magazyn
Zielone strefy

Statystyki cen rynkowych dla Dúplex en venta en calle Ángel Jaria, 29-, 33

356 211 € (2 206 €/m2)
Średnia cena pierwotnego Dupleksy w mieście Zaragoza

Mapa

Zaragoza, Zaragoza, Miralbueno, Calle Ángel Jaria, 29-, 33 Iść do tego miejsca
Zostaw opinię o Dúplex en venta en calle Ángel Jaria, 29-, 33
0
0 recenzje
1
0% (0)
2
0% (0)
3
0% (0)
4
0% (0)
5
0% (0)
Ángel Jaria 29-33
Kompleks mieszkalny
Wyprzedaż
Kontakt z reklamodawcą

Aby uzyskać więcej informacji, skontaktuj się z platformą

REF: 17721

Opinie o Dúplex en venta en calle Ángel Jaria, 29-, 33
Loading...

No reviews have been left for this object yet

Najbliższe nieruchomości

Poznaj pobliskie nieruchomości, które znaleźliśmy w pobliżu tej lokalizacji

Duplexes en Venta en Calle Salvador Labastida, 16, Zaragoza

Zaragoza, Zaragoza, Torrero - La Paz, Calle Salvador Labastida, 16
248 900 €

NUEVA PROMOCION DE OBRA NUEVA JUNTO AL CANAL IMPERIALPromoción de siete vivienda...

0
0 recenzji

Obra nueva Labastida en Zaragoza

Zaragoza, Zaragoza, Torrero - La Paz, Calle Salvador Labastida, 16
224 900 €

NUEVA PROMOCION DE OBRA NUEVA JUNTO AL CANAL IMPERIALPromoción de siete vivienda...

0
0 recenzji

Duplexes en Venta en Camino del Pollero, 1, Zaragoza

Zaragoza, Zaragoza, Miralbueno, Camino del Pollero, 1
184 400 €

En el barrio de Miralbueno, en Zaragoza, vivienda dúplex en segunda planta con a...

0
0 recenzji

Duplexes en Venta en Camino del Pollero, 1, Zaragoza

Zaragoza, Zaragoza, Miralbueno, Camino del Pollero, 1
220 700 €

En el barrio de Miralbueno, en Zaragoza, vivienda dúplex en segunda planta con a...

0
0 recenzji

Duplexes en Venta en Camino del Pollero, 1, Zaragoza

Zaragoza, Zaragoza, Miralbueno, Camino del Pollero, 1
242 100 €

En el barrio de Miralbueno, en Zaragoza, vivienda dúplex en segunda planta con a...

0
0 recenzji

Duplexes en Venta en Camino del Pollero, 1, Zaragoza

Zaragoza, Zaragoza, Miralbueno, Camino del Pollero, 1
264 600 €

En el barrio de Miralbueno, en Zaragoza, vivienda en segunda planta con ascensor...

0
0 recenzji

Duplexes en Venta en Camino del Pollero, 1, Zaragoza

Zaragoza, Zaragoza, Miralbueno, Camino del Pollero, 1
261 700 €

En el barrio de Miralbueno, en Zaragoza, vivienda dúplex en segunda planta con a...

0
0 recenzji

Duplexes en Venta en Camino del Pollero, 1, Zaragoza

Zaragoza, Zaragoza, Miralbueno, Camino del Pollero, 1
222 600 €

En el barrio de Miralbueno, en Zaragoza, vivienda dúplex en segunda planta con a...

0
0 recenzji

Duplexes en Venta en Calle Arkanoid s/n, Zaragoza

Zaragoza, Zaragoza, Montecanal-Valdespartera-Rosales del Canal, Calle Arkanoid s/n
356 000 €

VILLUM, NATURALMENTE BUENO. Villum es un residencial de viviendas de 2,3 y 4 dor...

0
0 recenzji

Używamy własnych plików cookie oraz plików cookie stron trzecich do analizy korzystania z witryny i wyświetlania reklam dopasowanych do Twoich preferencji, na podstawie profilu utworzonego na podstawie Twoich nawyków przeglądania (np. odwiedzonych stron). Więcej informacji. Czy akceptujesz pliki cookie?