Edificio de uso mixto en Cami, 29

Alicante, Alcoi, Zentrum - Zona Alta, Cami, 29
580 000 €
413 € / m2
Bewertung hinterlassen
Wohnimmobilien Art der Immobilie
1930 Übergabedatum
1 406 m² m² gebaut
4 Gesamtanzahl der Etagen
Renovierungsbedürftig Immobilienstatus
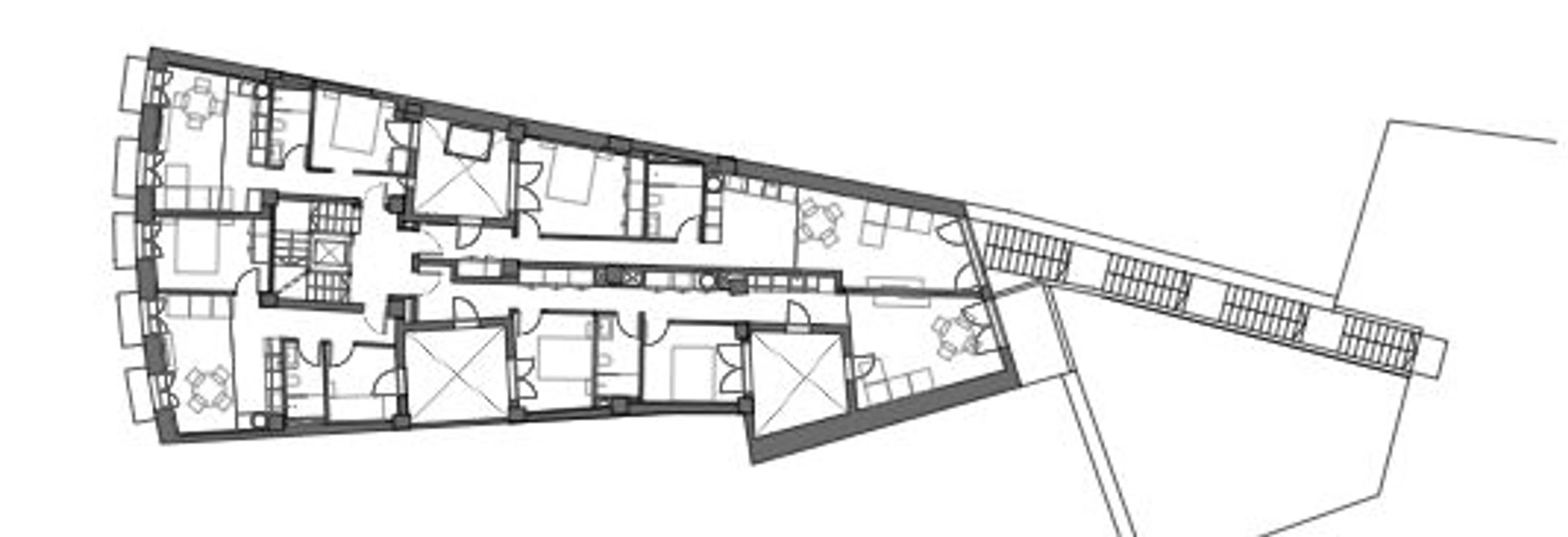
Presentamos un activo inmobiliario único para una oportunidad de negocio en el centro de Alcoy. Un edificio histórico en pleno centro de la ciudad que cuenta con una zona verde privada de 2.000m2. El edificio se vende con proyecto de Rehabilitación con Ampliación y Licencia de obra. El edificio resultante contará con un local comercial en planta baja, más 4 plantas residenciales con un total de 16 viviendas. Todo ello con un jardín privado de más de 2.000m2 en el que cabe un sinfín de posibilidades, desde equipamientos deportivos hasta zonas verdes. Además, el precio incluye la Dirección de Obra de los técnicos redactores del Proyecto. Edificio céntrico situado a 6 minutos andando de todos los campus universitarios y centros de estudios superiores. En una ciudad con gran demanda de viviendas de alquiler, este edificio ofrece algo que ningún otro edificio puede ofrecer como es la zona verde privada de 2.000m2. Las viviendas son de 1 y 2 habitaciones, todas exteriores y luminosas. Se trata de una inversión con una rentabilidad asegurada debido a la nula oferta existente de edificios de similares características y a la alta demanda de viviendas de alquiler. La inversión se puede dedicar tanto al alquiler a larga estancia como para alquiler de corta estancia o turístico. Para el alquiler para larga estancia existe mucha demanda ya que Alcoy es una ciudad universitaria y por tanto a las necesidades propias de la ciudad hay que añadir la alta demanda de vivienda para los estudiantes. Los precios de mercado están al alza y en la estimación del siguiente cuadro se ha estimado un precio muy realista, pudiendo elevar el precio de la renta un 10% sin miedo a no alquilar los inmuebles. Para la hipótesis de alquiler para corta estancia o turístico también existe mucha demanda ya que en la ciudad no hay mucha oferta como la que prestara este edificio. El ejemplo más parecido a lo que podría ser este edificio es CASA TIMOTEO, hotel Boutique que también fue rehabilitado por el mismo equipo técnico.

Merkmale der Immobilie

Complex information

  • Art der Immobilie
    Wohnimmobilien

Projektinformationen / Bauzustand

  • Übergabedatum
    1930
  • Immobilienstatus
    Renovierungsbedürftig

Eigenschaftsdaten

  • m² gebaut
    1 406 m²
  • Immobilientyp
    Gebraucht
  • Situation
    Keine Mieter

Base

  • Gesamtanzahl der Etagen
    4

Energieausweis

  • Zustand des Energiezertifikats
    In Bearbeitung

Facilities

Staat:

Zu renovieren

Statistik der Marktpreise für Edificio de uso mixto en Cami, 29

Karte

Alicante, Alcoi, Zentrum - Zona Alta, Cami, 29 Zu diesem Ort gehen
Eine Bewertung über Edificio de uso mixto en Cami, 29 abgeben
0
0 Bewertungen
1
0% (0)
2
0% (0)
3
0% (0)
4
0% (0)
5
0% (0)
Departamento Comercial Inmobiliaria Aracil
580 000 €
von 413 € / m2
Kontakt zum Inserenten

Für weitere Informationen kontaktieren Sie bitte die Plattform

REF: 403098

Bewertungen über Edificio de uso mixto en Cami, 29
Loading...

No reviews have been left for this object yet

Nächstgelegene Objekte

Entdecken Sie nahegelegene Immobilien, die wir in unmittelbarer Nähe zu diesem Standort entdeckt haben

Edificio en venta en calle Sant Agustí

Alicante, Alcoi, Zentrum - Zona Alta, Calle Sant Agustí
200 000 €

ATENCION INVERSORES!SE VENDE EDIFICIO COMPLETO YA CON INQUILINOS que están dejan...

0
0 Bewertungen

Edificio en calle Oliver

Alicante, Alcoi, Barri Santa Rosa, Calle Oliver
1 307 000 €

Obra parada en C/ Oliver de Alcoy, edificabilidad 9.960m2 en 8 alturas. Se ha co...

0
0 Bewertungen

Edificio residencial en calle el Tap, 17

Alicante, Alcoi, Zentrum - Zona Alta, Calle el Tap, 17
149 990 €

**Edificio Residencial en Venta en Alcoy - Oportunidad Única** ¡Descubre el pote...

0
0 Bewertungen

Edificio en Centro - Zona Alta

Alicante, Alcoi, Zentrum - Zona Alta, Centro - Zona Alta
502 200 €

Edificio en venta inmejorablemente ubicado en pleno Centro de Alcoy. Casa de tre...

0
0 Bewertungen

Edificio en Centro - Zona Alta

Alicante, Alcoi, Zentrum - Zona Alta, Centro - Zona Alta
450 000 €

ESPECIAL INVERSIÓN! Muy cerca de la Universidad.. . o para combinar tu vivienda...

0
0 Bewertungen

Edificio residencial

Alicante, Alcoi, Zentrum - Zona Alta, Centro - Zona Alta
580 000 €

Atención inversores! Magnifico edificio en venta con excelente ubicación, junto...

0
0 Bewertungen

Edificio en Centro - Zona Alta

Alicante, Alcoi, Zentrum - Zona Alta, Centro - Zona Alta
400 000 €

� Edificio en Venta en Alcoy – Inversión con Rentabilidad Inmediata � ¿Buscas un...

0
0 Bewertungen

Edificio residencial en calle els Alzamora, 5

Alicante, Alcoi, Barri Santa Rosa, Calle els Alzamora, 5
300 000 €

¡Oportunidad única para inversores! Edificio residencial en venta en una ubicaci...

0
0 Bewertungen

Edificio en calle Santa Llúcia

Alicante, Alcoi, Zentrum - Zona Alta, Calle Santa Llúcia
400 000 €

Edificio en venta en Alcoy – Inversión rentable Se vende edificio completo en Al...

0
0 Bewertungen
Aufruf

Wir verwenden eigene und Drittanbieter-Cookies, um die Nutzung der Website zu analysieren und Ihnen Werbung zu zeigen, die auf der Grundlage eines aus Ihren Surfgewohnheiten erstellten Profils mit Ihren Vorlieben übereinstimmt (z. B. besuchte Seiten). Mehr Informationen. Akzeptieren Sie Cookies?