Terreno en calle de la Esperanza

Alicante, Alicante / Alacant, Plà del Bon Repòs-La Goteta-San Antón, Calle de la Esperanza
289 000 €
Bewertung hinterlassen
Städtisch Art der Immobilie
84 m² Grundstücksfläche
Obstbäume Anbauflächen
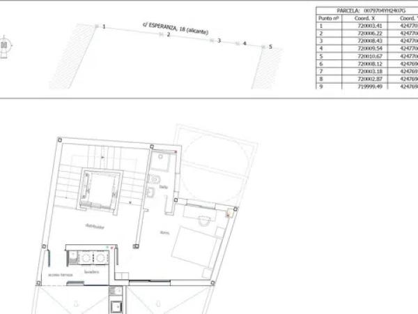
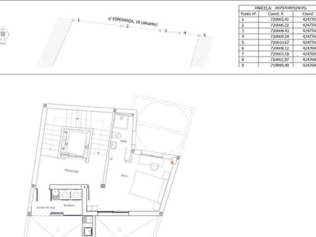
ROMAICA PRESENTA TERRENO LISTO PARA CONSTRUIR CON PROYECTO Y LICENCIA: A continuación la descripción del proyecto. El edificio proyectado corresponde a la tipología de albergue, compuesto de distribuidos en 3 plantas sobre rasante y 1 bajo rasante (sótano+baja+planta 1+ático), siendo la composición la siguiente: SÓTANO: VESTUARIO Y CUARTO DE LAVANDERIA Y LENCERIA P. BAJA: RECEPCION SALON Y, ASEO Y ACCESO P. PRIMERA: DORMITORIO DE 12 PLAZAS Y ASEO P. ÁTICO: dormitorio de 2 plazas, lavadero y terrazas. Bonfire ALC Hostel INTRODUCCIÓN: El Bonfire ALC Hostel nace a partir de la unión de dos entusiastas por el viajar. Esta unión es la de Lorena Garciafilia Martínez, que ha vivido en 3 países diferentes, domina 3 idiomas a la perfección, y en la actualidad es la responsable de Tripulantes de Cabina, de la compañía aérea Vueling Airlines, perteneciente al grupo IAG, concretamente en las delegaciones territoriales de Alicante, Valencia y Palma de Mallorca, y CEO de ALC B&B APARTMENTS, S.L. Por otro lado está Oscar Manzanaro Martínez Oficial responsable de la sección de Policía turística dentro del cuerpo de Policía Local de la ciudad de Alicante, además de uno de los precursores de los alojamientos turísticos desde 2014, cuya primera declaración responsable para el ejercicio de la actividad data de 2014 (1), llegando a gestionar hasta 11 viviendas desde la fecha señalada. “Recuerdo que en esa época en el portal Air bnb éramos sobre 60 alojamientos y el logotipo era una A minúscula en blanco sobre fondo azul” señala Oscar Mazanaro. Ambos COFUNDERS de la empresa ALC B&B APARTMENTS, S.L., viajeros, entusiastas y sobre todo muy enamorados de la hospitalidad. El Bonfire ALC Hostel nace para rendir homenaje a la ciudad de Alicante, sus fiestas y su gente hospitalaria. Os dejamos cómo anexo 2 el modelo de edificio que vamos a proyectar. Este edificio será una expresión de color e ilusión para los visitantes, donde fijaremos como respeto y homenaje en la fachada planta baja motivos culturales de la ciudad de Alicante. Se trata pues, del inicio de implementar el diseño en todas las ciudades en expansión. Del mismo modo y a partir de la base indicada, el resto de la fachada implosionará con diferentes monumentos y lugares de interés del mundo, además de una pantalla publicitaria. Desde ese enclave de la calle Esperanza,18 esquina con la calle Vázquez de Mella daremos la bienvenida a la ciudad de Alicante por uno de los accesos más transitados, a mochileros, tomadas digitales, y todo aquel que quiera disfrutar del concepto Bonfire.

Merkmale der Immobilie

Complex information

  • Art der Immobilie
    Städtisch

Eigenschaftsdaten

  • Immobilientyp
    Gebraucht

Flächen

  • Grundstücksfläche
    84 m²

Base

  • Anbauflächen
    Obstbäume

Facilities

Anbau:

Nahrungsmittelanbau
Obstbäume

Statistik der Marktpreise für Terreno en calle de la Esperanza

Karte

Alicante, Alicante / Alacant, Plà del Bon Repòs-La Goteta-San Antón, Calle de la Esperanza Zu diesem Ort gehen
Eine Bewertung über Terreno en calle de la Esperanza abgeben
0
0 Bewertungen
1
0% (0)
2
0% (0)
3
0% (0)
4
0% (0)
5
0% (0)
ROMAICA INMOBILIARIA Y REFORMAS
289 000 €
Kontakt zum Inserenten

Für weitere Informationen kontaktieren Sie bitte die Plattform

REF: 207203

Bewertungen über Terreno en calle de la Esperanza
Loading...

No reviews have been left for this object yet

Nächstgelegene Objekte

Entdecken Sie nahegelegene Immobilien, die wir in unmittelbarer Nähe zu diesem Standort entdeckt haben

Terreno en venta en carretera Villafranqueza

Alicante, Alicante / Alacant, Villafranqueza-Santa Faz-Monegre, Carretera Villafranqueza
1 350 000 €

Suelo urbano consolidado formado por 2 solares situados en la localidad de Villa...

0
0 Bewertungen

Terreno urbano en una zona con mucha demanda con todos los servicios.

Alicante, Alicante / Alacant
206 000 €

Terreno urbano de 178 m2 donde podrás construir rápidamente ya que el terreno es...

0
0 Bewertungen

Terreno en calle Diputado José Luis Barceló

Alicante, Alicante / Alacant, Parque Avenidas - Vistahermosa, Calle Diputado José Luis Barceló
14 000 €

Parcelas de terreno clasificadas como suelo urbano con unas superficies desde 43...

0
0 Bewertungen

Terreno en calle Diputado José Luis Barceló

Alicante, Alicante / Alacant, Parque Avenidas - Vistahermosa, Calle Diputado José Luis Barceló
14 000 €

Parcelas de terreno clasificadas como suelo urbano con unas superficies desde 43...

0
0 Bewertungen

Terreno en Barrio Mercado

Alicante, Alicante / Alacant, Zentrum, Barrio Mercado
1 800 000 €

Solar de 1200 m2 de techo, planta baja + 4, ubicado en la zona Benito Perez Gald...

0
0 Bewertungen

Terreno en calle Pérez Galdós, 44

Alicante, San Vicente del Raspeig, Alcalde Felipe Mallol, Calle Pérez Galdós, 44
195 000 €

Terreno en venta, edificable PB+IV El terreno es apto para vivienda unifamiliar...

0
0 Bewertungen

Terreno en Nova Tabarca, 4

Alicante, Alicante / Alacant, Zentrum, Nova Tabarca, 4
310 000 €

¡Oportunidad única en San Juan! Descubre este impresionante terreno urbano de 1....

0
0 Bewertungen

Terreno en avenida de Alcalde Lorenzo Carbonell

Alicante, Alicante / Alacant, Benalúa-La Florida-Babel-San Gabriel, Avenida de Alcalde Lorenzo Carbonell
1 500 000 €

OPORTUNIDAD ÚNICA: PARCELAS PRIME FRENTE AL CENTRO COMERCIAL PUERTA DE ALICANTE...

0
0 Bewertungen

Terreno en calle Joaquín Blume

Alicante, San Vicente del Raspeig, Alcalde Felipe Mallol, Calle Joaquín Blume
378 000 €

Solar de uso residencial en San Vicente del Raspeig, provincia de Alicante, de t...

0
0 Bewertungen
Aufruf

Wir verwenden eigene und Drittanbieter-Cookies, um die Nutzung der Website zu analysieren und Ihnen Werbung zu zeigen, die auf der Grundlage eines aus Ihren Surfgewohnheiten erstellten Profils mit Ihren Vorlieben übereinstimmt (z. B. besuchte Seiten). Mehr Informationen. Akzeptieren Sie Cookies?