Edificio en Puerto

Alicante, Benidorm, Hafen, Puerto
744 000 €
2 583 € / m2
Bewertung hinterlassen
Wohnimmobilien Art der Immobilie
288 m² m² gebaut
Renovierungsbedürftig Immobilienstatus
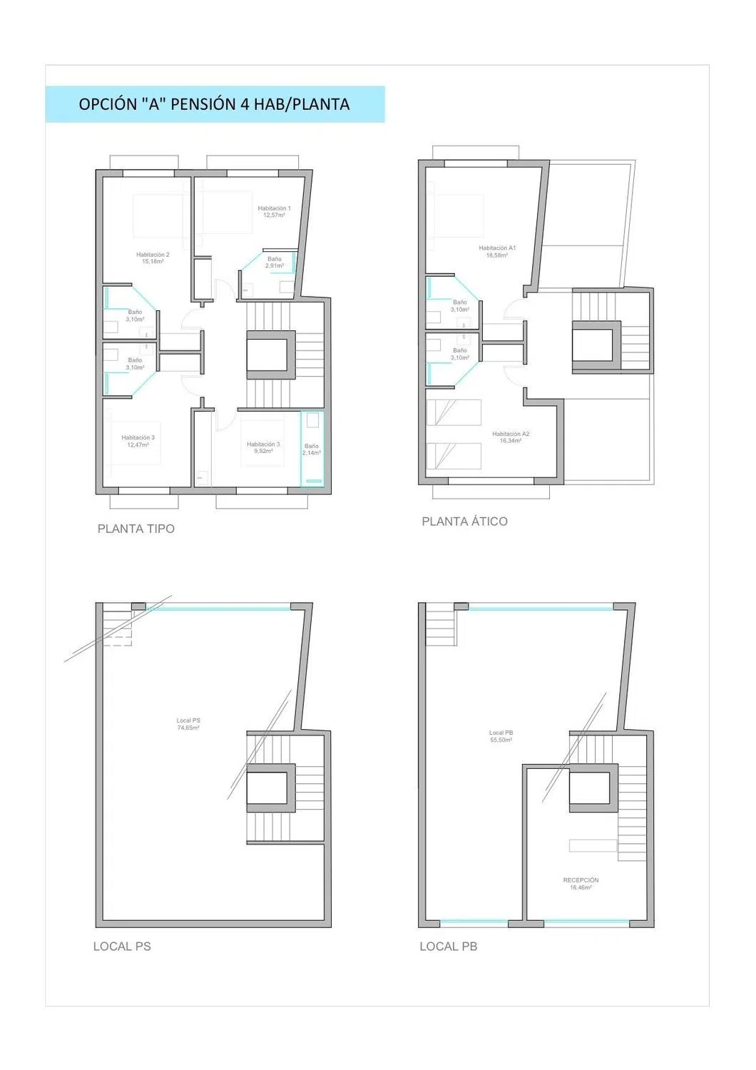
Este edificio para reformar consta de 4 plantas y está ubicada en una de las calles más concurridas y solicitadas del centro histórico de Benidorm. Con una superficie construida de aproximadamente (208 + 80 de terraza )metros cuadrados, esta propiedad cuenta con una amplia terraza desde donde se puede disfrutar de unas impresionantes vistas panorámicas del centro histórico de la ciudad. En las fotografías adjuntamos 3 anteproyectos: 1.- Hotel con 14 habitaciones y 2 locales comerciales. 2.- 7 apartamentos turísticos con los 2 locales comerciales. 3.- 4 apartamentos turísticos más grandes y los 2 locales comerciales. El coste de la obra estaría alrededor de otros 800.000 Euros. Esto lo convierte en una oportunidad única para aquellos que buscan establecer un negocio en la zona turística más popular de la ciudad. Además, la casa cuenta con dos locales comerciales en la planta baja que podrían ser utilizados para una amplia variedad de propósitos, lo que la convierte en una propiedad versátil que se puede adaptar a las necesidades de cualquier propietario o inversor. La planta baja de la casa cuenta con dos locales comerciales, cada uno con una entrada independiente. Con una superficie de aproximadamente 60 metros cuadrados, estos locales son ideales para establecer una tienda, un restaurante o cualquier otro tipo de negocio, muy solicitados en la zona, al igual que la demanda turística. La entrada al inmueble se encuentra entre estos dos locales comerciales, lo que hace que esta propiedad sea ideal para aquellos que buscan establecer un negocio y vivir en el mismo lugar. Las tres plantas superiores de la casa ofrecen amplias posibilidades de adaptación a cualquier necesidad. Con una superficie aproximada de 100 metros cuadrados por planta con una gran terraza en la parte superior para uso exclusivo de los huéspedes. La distribución actual de la casa permite una gran flexibilidad de proyectos e ideas y se pueden crear diferentes combinaciones de habitaciones y apartamentos para adaptarse a las necesidades de cualquier propietario o inversor. La amplia terraza de la casa es una de las características más destacadas de esta propiedad. Con una superficie de aproximadamente 50 metros cuadrados, esta terraza es perfecta para disfrutar del sol y las vistas de la ciudad. Desde aquí se puede ver todo el centro histórico de Benidorm y sus alrededores, lo que hace que sea un lugar ideal para relajarse y disfrutar de la ciudad. La ubicación de esta casa de pueblo es otra de sus grandes ventajas. Está situada en una de las calles más concurridas del centro histórico de Benidorm, rodeada de tiendas, restaurantes y bares. Además, se encuentra a solo unos minutos a pie de la playa y del puerto deportivo de la ciudad, lo que la convierte en una propiedad ideal para aquellos que buscan disfrutar de la vida en la ciudad y la playa. Recomendamos encarecidamente su visita para que pueda hacerse una mejor idea de las grandes posibilidades que tiene.

Merkmale der Immobilie

Complex information

  • Art der Immobilie
    Wohnimmobilien

Projektinformationen / Bauzustand

  • Immobilienstatus
    Renovierungsbedürftig

Eigenschaftsdaten

  • m² gebaut
    288 m²
  • Immobilientyp
    Gebraucht

Base

Energieausweis

  • Energiezertifikat
    E

Facilities

Staat:

Zu renovieren

Statistik der Marktpreise für Edificio en Puerto

Karte

Alicante, Benidorm, Hafen, Puerto Zu diesem Ort gehen
Eine Bewertung über Edificio en Puerto abgeben
0
0 Bewertungen
1
0% (0)
2
0% (0)
3
0% (0)
4
0% (0)
5
0% (0)
Inmobrisa
744 000 €
von 2 583 € / m2
Kontakt zum Inserenten

Für weitere Informationen kontaktieren Sie bitte die Plattform

REF: 403162

Bewertungen über Edificio en Puerto
Loading...

No reviews have been left for this object yet

Nächstgelegene Objekte

Entdecken Sie nahegelegene Immobilien, die wir in unmittelbarer Nähe zu diesem Standort entdeckt haben

Edificio hotelero en plaza de Venus

Alicante, Alfaz del Pi, L'Albir, Plaza de Venus
4 800 000 €

¡EXCLUSIVA! ¡OPORTUNIDAD ÚNICA! Apartotel "boutique" en venta a solo 5 minutos a...

0
0 Bewertungen

Edificio hotelero en calle Rosal

Alicante, Benidorm, Stadtzentrum, Calle Rosal
2 597 000 €

Te presentamos una oportunidad excepcional para adquirir un hotel de dos estrell...

0
0 Bewertungen

Edificio hotelero

Alicante, Benidorm, Stadtzentrum, Centro Urbano
7 900 000 €

Estupenda inversión de hotel en pleno centro de benidorm, la propiedad tiene ent...

0
0 Bewertungen

Edificio hotelero en calle les Escoles

Alicante, Alfaz del Pi, Alfaz del Pi Pueblo-Urbanizaciones, Calle les Escoles
85 000 €

� Hostal con encanto cerca de la playa – Ideal para inversión turística Se trasp...

0
0 Bewertungen

Edificio residencial en calle de Colombia, 7

Alicante, Finestrat, Balcón de Finestrat-Terra Marina, Calle de Colombia, 7
595 000 €

Se vende: ático de lujo urbanización Seascape resort. Bloque 1 planta 4 3 dormit...

0
0 Bewertungen

Edificio hotelero

Alicante, Benidorm, Stadtzentrum, Centro Urbano
2 500 000 €

HOTEL JUNTO AL CENTRO DE BENIDORM CERCANO A PLAYA DE PONIENTE Y PARQUE DE ELCHE...

0
0 Bewertungen

Edificio hotelero

Alicante, Benidorm, Pueblo Levante, Pueblo Levante
4 000 000 €

Espectacular centro en venta Benidorm. La edificación se encuentra situada apena...

0
0 Bewertungen

Edificio de uso mixto en calle Mirador

Alicante, Benidorm, Pueblo Levante, Calle Mirador
1 300 000 €

� Edificio en Venta - Oportunidad de Inversión en Benidorm � � Ubicación Estraté...

0
0 Bewertungen

Edificio hotelero en calle del Marqués de Comillas, 23

Alicante, Benidorm, Stadtzentrum, Calle del Marqués de Comillas, 23
2 597 000 €

� Hotel en Benidorm Centro - Obra Nueva � � ¡Gran oportunidad de inversión! Este...

0
0 Bewertungen
Aufruf

Wir verwenden eigene und Drittanbieter-Cookies, um die Nutzung der Website zu analysieren und Ihnen Werbung zu zeigen, die auf der Grundlage eines aus Ihren Surfgewohnheiten erstellten Profils mit Ihren Vorlieben übereinstimmt (z. B. besuchte Seiten). Mehr Informationen. Akzeptieren Sie Cookies?