Hochwertige Wohnungen zu verkaufen in einer charmanten und ruhigen Lage, ideal für entspannte Lebensstile. Entdecken Sie ein attraktives Wohnangebot, das modernen Komfort und eine angenehme Umgebung vereint. Die perfekte Gelegenheit für Erstaussteiger ode

Ausverkauf
Bewertung hinterlassen
Wohnungen Art der Immobilie
2023 Übergabedatum
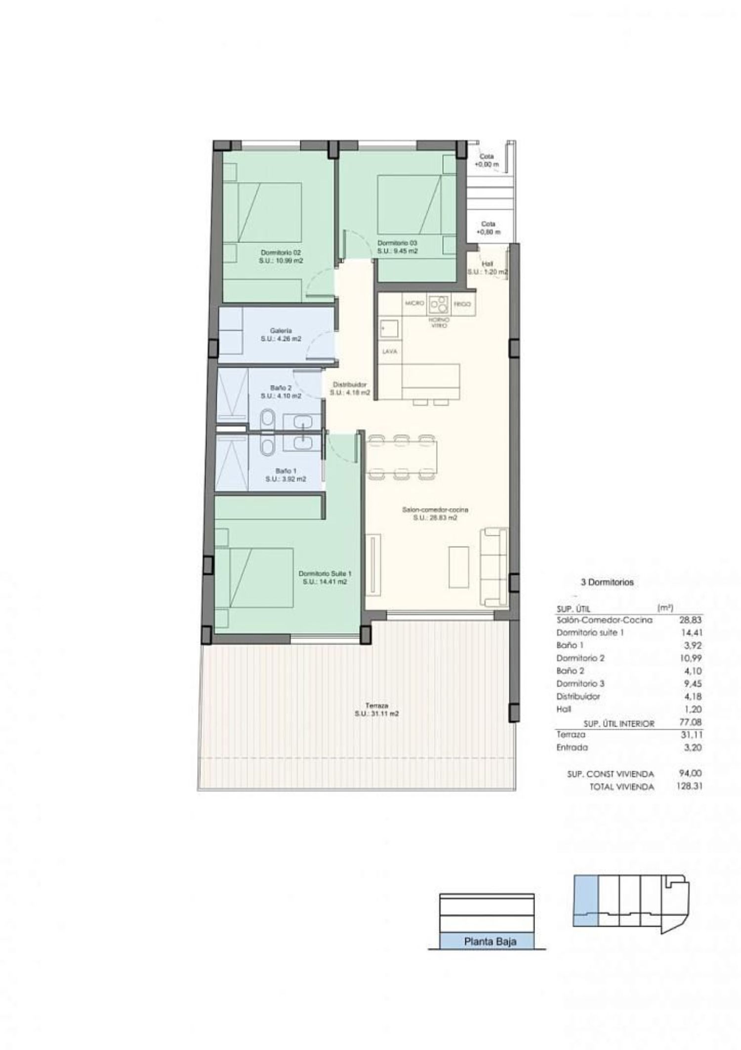
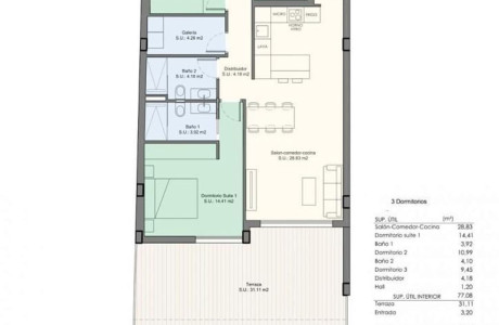
94 m² m² gebaut
2 Bäder
3 Schlafzimmer
Fertiggestellt Bundesland

NEUE WOHNUNGEN IN BENIJOFAR

In einer ruhigen Lage entsteht ein neues Wohnresidential mit insgesamt 15 Einheiten, aufgeteilt in 5 Wohnungen pro Etage. Diese modernen Wohnungen bieten 2 oder 3 Schlafzimmer und 2 Badezimmer. Die oberen Etagen verfügen über großzügige Privatdachterrassen ab 75 Quadratmetern, die mit einem zusätzlichen Gäste-WC und der Vorinstallation für eine Küche ausgestattet sind. Hier können die Bewohner die wunderschönen Sommerabende und Sonnenuntergänge genießen.

Das Wohnobjekt bietet zudem eine großzügige Grünfläche mit einem Gemeinschaftspool für alle Eigentümer, sowie Parkmöglichkeiten und Abstellräume. Die Umgebung von Benijofar ist geprägt von einem malerischen Dorfambiente mit einer charmanten Kirche und sämtlichen Annehmlichkeiten wie Supermärkten, Apotheken, Banken, Restaurants und einem Naturpark, die sich in unmittelbarer Nähe der Residenzen befinden. Für Golfenthusiasten gibt es mehrere Plätze in der Nähe, und Wasserparks sind in den benachbarten Städten Rojales und Torrevieja leicht erreichbar.

Die besten Strände von Guardamar sind nur 10 Autominuten entfernt und bieten über 11 Kilometer an weißen Sanddünen und kristallklarem Wasser. Die Anbindung an das Verkehrsnetz ist hervorragend, mit dem Anschluss an die N-332 und die AP-7 in unmittelbarer Nähe, sowie einer nur 30-minütigen Fahrt zum Flughafen.

Merkmale der Immobilie

Complex information

  • Wohnanlage
    Nuevos apartamentos en Benijofar
  • Art der Immobilie
    Wohnungen

Projektinformationen / Bauzustand

  • Übergabedatum
    2023
  • Bundesland
    Fertiggestellt

Eigenschaftsdaten

  • Schlafzimmer
    3
  • Bäder
    2
  • m² gebaut
    94 m²
  • Immobilientyp
    Neubau

Facilities

Wohnungskomfort:

Lagerraum

Lieferung:

Mit Wasser

Im Gebäude:

Schwimmbad
Aufzug
Golfplatz
Gärten Zonen
Abstellraum
Grüne Zonen
Solarium

Staat:

Neubau

Statistik der Marktpreise für Piso en venta en Benijofar

301 125 € (3 034 €/m2)
Durchschnittspreis für primäre Wohnungen in der Stadt Benijófar
288 969 € (2 713 €/m2)
Durchschnittspreis für sekundäre Wohnungen in der Stadt Benijófar

Karte

Alicante, Benijófar Zu diesem Ort gehen
Eine Bewertung über Piso en venta en Benijofar abgeben
0
0 Bewertungen
1
0% (0)
2
0% (0)
3
0% (0)
4
0% (0)
5
0% (0)
Ausverkauf
Kontakt zum Inserenten

Für weitere Informationen kontaktieren Sie bitte die Plattform

REF: 24539

Bewertungen über Piso en venta en Benijofar
Loading...

No reviews have been left for this object yet

Nächstgelegene Objekte

Entdecken Sie nahegelegene Immobilien, die wir in unmittelbarer Nähe zu diesem Standort entdeckt haben

Apartamentos en Venta, Dolores

Alicante, Dolores
106 500 €

Fantástica promoción en Dolores. A un paso de todo.Viviendas con parking y trast...

0
0 Bewertungen

Apartamentos en Venta, Dolores

Alicante, Dolores
109 500 €

Fantástica promoción en Dolores. A un paso de todo.Viviendas con parking y trast...

0
0 Bewertungen

Apartamentos en Venta, Dolores

Alicante, Dolores
106 000 €

Fantástica promoción en Dolores. A un paso de todo.Viviendas con parking y trast...

0
0 Bewertungen

Apartamentos en Venta, Dolores

Alicante, Dolores
113 000 €

Fantástica promoción en Dolores. A un paso de todo.Viviendas con parking y trast...

0
0 Bewertungen

Apartamentos en Venta, Dolores

Alicante, Dolores
126 500 €

Fantástica promoción en Dolores. A un paso de todo.Viviendas con parking y trast...

0
0 Bewertungen

Wohnungen zu verkaufen in Almoradí.

Alicante, Almoradí
41 000 €

Entdecken Sie eine attraktive Wohn- und Garagenanlage in einem sich dynamisch en...

0
0 Bewertungen

Apartamentos en Venta en Avenida el Fenoll s/n, Guardamar del Segura

Alicante, Guardamar del Segura, Stadtteile, Avenida el Fenoll s/n
243 000 €

Oasis Beach XVPromoción de obra nueva en Guardamar del Segura. Pisos de 2 y 3 do...

0
0 Bewertungen

Apartamentos en Venta en Avenida el Fenoll s/n, Guardamar del Segura

Alicante, Guardamar del Segura, Stadtteile, Avenida el Fenoll s/n
247 000 €

Oasis Beach XVPromoción de obra nueva en Guardamar del Segura. Pisos de 2 y 3 do...

0
0 Bewertungen

Apartamentos en Venta en Avenida el Fenoll s/n, Guardamar del Segura

Alicante, Guardamar del Segura, Stadtteile, Avenida el Fenoll s/n
225 000 €

Oasis Beach XVPromoción de obra nueva en Guardamar del Segura. Pisos de 2 y 3 do...

0
0 Bewertungen

Wir verwenden eigene und Drittanbieter-Cookies, um die Nutzung der Website zu analysieren und Ihnen Werbung zu zeigen, die auf der Grundlage eines aus Ihren Surfgewohnheiten erstellten Profils mit Ihren Vorlieben übereinstimmt (z. B. besuchte Seiten). Mehr Informationen. Akzeptieren Sie Cookies?