Neubau Casa independiente in Finestrat

Alicante, Finestrat, Balcón de Finestrat-Terra Marina, Balcón de Finestrat-Terra Marina
1 050 000 €
3 333 € / m2
Bewertung hinterlassen
315 m² m² gebaut
4 Bäder
4 Schlafzimmer

MODERNE NEUBAU-VILLEN IN FINESTRAT

Entdecken Sie moderne Neubauvillen in Finestrat. Diese exquisiten Residenzen bieten 4 Schlafzimmer und 4 Badezimmer, eine offene Küche, die nahtlos in den Wohnbereich übergeht, sowie eine Terrasse mit atemberaubendem Blick auf die Umgebung. Der private Garten, ausgestattet mit einem einladenden Pool und einem Parkplatz, lädt zum Entspannen ein.

Der seitliche Garten, geschmackvoll mit Kakteen und weißem Kies geschmückt, verbindet den Zugang des ersten Stocks mit dem Hauptgeschoss. Das Spiel mit natürlichem Rasen auf dem restlichen Grundstück stammt aus einem sorgfältig gestalteten Landschaftskonzept, das weitere Akzente setzt. Jedes Geschoss ist mit Materialien versehen, die dessen Charakter unterstreichen.

Der Hauptbereich ist mit natürlichem Kalkstein verkleidet, was der gesamten Struktur Stabilität verleiht. Der erste Stock, ausgestattet mit einem Monokap, bietet durch hölzerne Fensterläden Schutz für die privateren Bereiche der Villa. Im zweiten Geschoss, wo sich das Hauptschlafzimmer befindet, öffnet sich eine großzügige Terrasse, die mit einem warmen, strukturierten Monokap verziert ist.

Die mediterrane Ästhetik entsteht durch eine harmonische Verbindung von Tradition, moderner Architektur und der umgebenden Natur. Finestrat, gelegen in der malerischen Region Marina Baixa an der Costa Blanca, bietet nicht nur Nähe zu einem beliebten Ferienort, sondern auch einen beeindruckenden Blick auf die umliegenden Berge, die Küste und das Mittelmeer.

Dank der nur fünfminütigen Autofahrt zu einem lebhaften Zentrum sind eine Vielzahl von Dienstleistungen verfügbar, darunter Geschäfte, Restaurants, Supermärkte, Banken, Apotheken und internationale Schulen, die für jede Altersgruppe optimale Bildung bieten.

Hervorgehobene Aktionen in Spanien

10 Einheiten

Nature Views 2

Alicante, Torrevieja, Los Balcones - Los Altos del Edén, Denia s/n
310 000 € - 379 000 €
1 Einheiten

Hotel en venta en Benidorm centro

Alicante, Benidorm, Playa de Poniente
2 250 000 € - 2 250 000 €
28 Einheiten

Residencial Los Balcones De Calpe

Alicante, Kalpe, Calpe Pueblo, Avenida de Madrid, 1
299 000 € - 892 125 €
7 Einheiten

Nature Views

Alicante, Torrevieja, Lago Jardín II, Avenida Denia s/n
305 000 € - 330 000 €
5 Einheiten

ALONIS VILLAS

Alicante, La Villajoyosa / Vila Joiosa, Platja de Torres, Partida Torres s/n
675 000 € - 775 000 €
1 Einheiten

Residencial Royal Beach

Alicante, Guardamar del Segura, Dorf, Miguel Hernández 102
349 500 € - 349 500 €
7 Einheiten

Royal Star

Alicante, Guardamar del Segura
229 500 € - 269 500 €

Merkmale der Immobilie

Complex information

Eigenschaftsdaten

  • Küchentyp
    Amerikanische Küche
  • Schlafzimmer
    4
  • Bäder
    4
  • m² gebaut
    315 m²
  • Immobilientyp
    Gebraucht

Facilities

Wohnungskomfort:

Terasse

Im Gebäude:

Schwimmbad
Garten
Privater Parkplatz

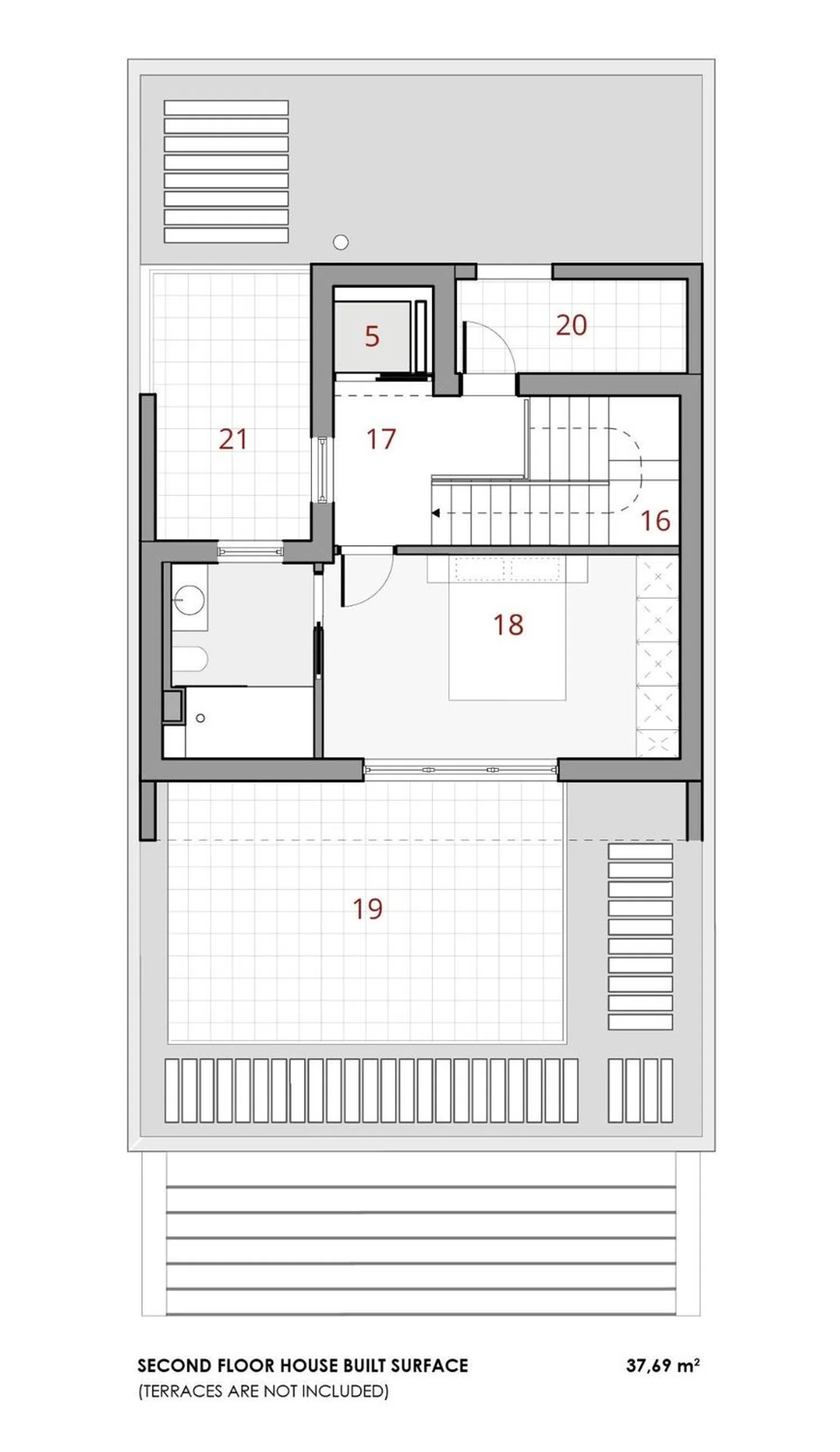
Pläne

Statistik der Marktpreise für Casa independiente

735 823 € (3 451 €/m2)
Durchschnittspreis für primäre in der Stadt Finestrat
820 205 € (3 137 €/m2)
Durchschnittspreis für sekundäre in der Stadt Finestrat

Karte

Alicante, Finestrat, Balcón de Finestrat-Terra Marina, Balcón de Finestrat-Terra Marina Zu diesem Ort gehen
Eine Bewertung über Casa independiente abgeben
0
0 Bewertungen
1
0% (0)
2
0% (0)
3
0% (0)
4
0% (0)
5
0% (0)
Konna Homes Costa Blanca Real Estates
1 050 000 €
von 3 333 € / m2
Kontakt zum Inserenten

Für weitere Informationen kontaktieren Sie bitte die Plattform

REF: 165295

Bewertungen über Casa independiente
Loading...

No reviews have been left for this object yet

Nächstgelegene Objekte

Entdecken Sie nahegelegene Immobilien, die wir in unmittelbarer Nähe zu diesem Standort entdeckt haben

Chalet independiente en Venta en Calle roma, 23, Finestrat

Alicante, Finestrat, Golf Bahía, Calle roma, 23
1 750 000 €

Nueva villa terminada en Sierra Cortina de Finestrat (Alicante).Les ofrecemos un...

0
0 Bewertungen

Einfamilienhaus zu verkaufen in Finestrat.

Alicante, Finestrat, Balcón de Finestrat-Terra Marina, Calle d'Equador s/n
545 000 €

Dieser neu errichtete Wohnkomplex befindet sich in der malerischen Umgebung von...

0
0 Bewertungen

Einfamilienhaus zum Verkauf in einer ruhigen Lage, ideal für diejenigen, die die Natur und die Privatsphäre schätzen. Dieses charmante Anwesen bietet großzügige Wohnräume und eine einladende Atmosphäre. Der Außenbereich ist perfekt gestaltet, um entspannt

Alicante, Finestrat, Balcón de Finestrat-Terra Marina, Calle d'Equador s/n
635 000 €

Dieser neu errichtete Wohnkomplex befindet sich in der malerischen Umgebung von...

0
0 Bewertungen

Un eigenständiges Chalet zu verkaufen, ideal gelegen in einer attraktiven Umgebung. Dieses großzügige Anwesen bietet zahlreiche Annehmlichkeiten und einen entspannten Lebensstil inmitten schöner Naturlandschaften. Genießen Sie die Ruhe und Privatsphäre, d

Alicante, Finestrat, Balcón de Finestrat-Terra Marina, Calle d'Equador s/n
1 250 000 €

Dieser neueste Wohnkomplex liegt in der malerischen Umgebung von Finestrat und b...

0
0 Bewertungen

Selbstständiges Chalet zum Verkauf in einer malerischen Lage in Finestrat. Dieses charmante Anwesen bietet eine perfekte Kombination aus Komfort und Privatsphäre, umgeben von der beruhigenden Natur und der Schönheit der Umgebung. Ideal für alle, die ein r

Alicante, Finestrat, Balcón de Finestrat-Terra Marina, Calle d'Equador s/n
550 000 €

Dieses neu gebaute Wohnkomplex befindet sich in Finestrat und bietet eine Vielza...

0
0 Bewertungen

Ein freistehendes Chalet zum Verkauf in einer malerischen Lage in Finestrat. Dieses charmante Anwesen bietet viel Raum und Privatsphäre, ideal für entspannende Momente oder gesellige Zusammenkünfte. Es verfügt über großzügige Wohnbereiche und eine einlade

Alicante, Finestrat, Balcón de Finestrat-Terra Marina, Calle d'Equador s/n
640 000 €

Dieser moderne Wohnkomplex in Finestrat bietet eine Vielzahl von exquisiten Wohn...

0
0 Bewertungen

Verkauf eines unabhängigen Chalets in einer erstklassigen Lage in Finestrat. Dieses charmante Anwesen bietet modernen Komfort und eine malerische Umgebung, ideal für diejenigen, die Ruhe und Privatsphäre suchen. Genießen Sie großzügige Wohnräume, helle Sc

Alicante, Finestrat, Balcón de Finestrat-Terra Marina, Calle d'Equador s/n
645 000 €

Dieser neu errichtete Wohnkomplex befindet sich in Finestrat und bietet eine bre...

0
0 Bewertungen

Frei stehendes Chalet zu verkaufen in einer ruhigen Lage in Finestrat.

Alicante, Finestrat, Balcón de Finestrat-Terra Marina, Calle d'Equador s/n
639 000 €

Dieses neu errichtete Wohnkomplex befindet sich in Finestrat und bietet eine Vie...

0
0 Bewertungen

Geräumiges, freistehendes Chalet zu verkaufen in einer ruhigen und malerischen Gegend von Finestrat. Dieses gepflegte Anwesen bietet reichlich Platz und Komfort für die ganze Familie, um unvergessliche Momente zu erleben. Es umgeben sind atemberaubende La

Alicante, Finestrat, Balcón de Finestrat-Terra Marina, Calle d'Equador s/n
1 900 000 €

Dieses neu gebaute Wohnanlage liegt in einer malerischen Umgebung und bietet ein...

0
0 Bewertungen
Aufruf

Wir verwenden eigene und Drittanbieter-Cookies, um die Nutzung der Website zu analysieren und Ihnen Werbung zu zeigen, die auf der Grundlage eines aus Ihren Surfgewohnheiten erstellten Profils mit Ihren Vorlieben übereinstimmt (z. B. besuchte Seiten). Mehr Informationen. Akzeptieren Sie Cookies?