Terreno en calle Sella

Alicante, Xàbia, Puerто, Calle Sella
1 200 000 €
Bewertung hinterlassen
Städtisch Art der Immobilie
885 m² Grundstücksfläche
Wohnimmobilien Nutzung des Grundstücks
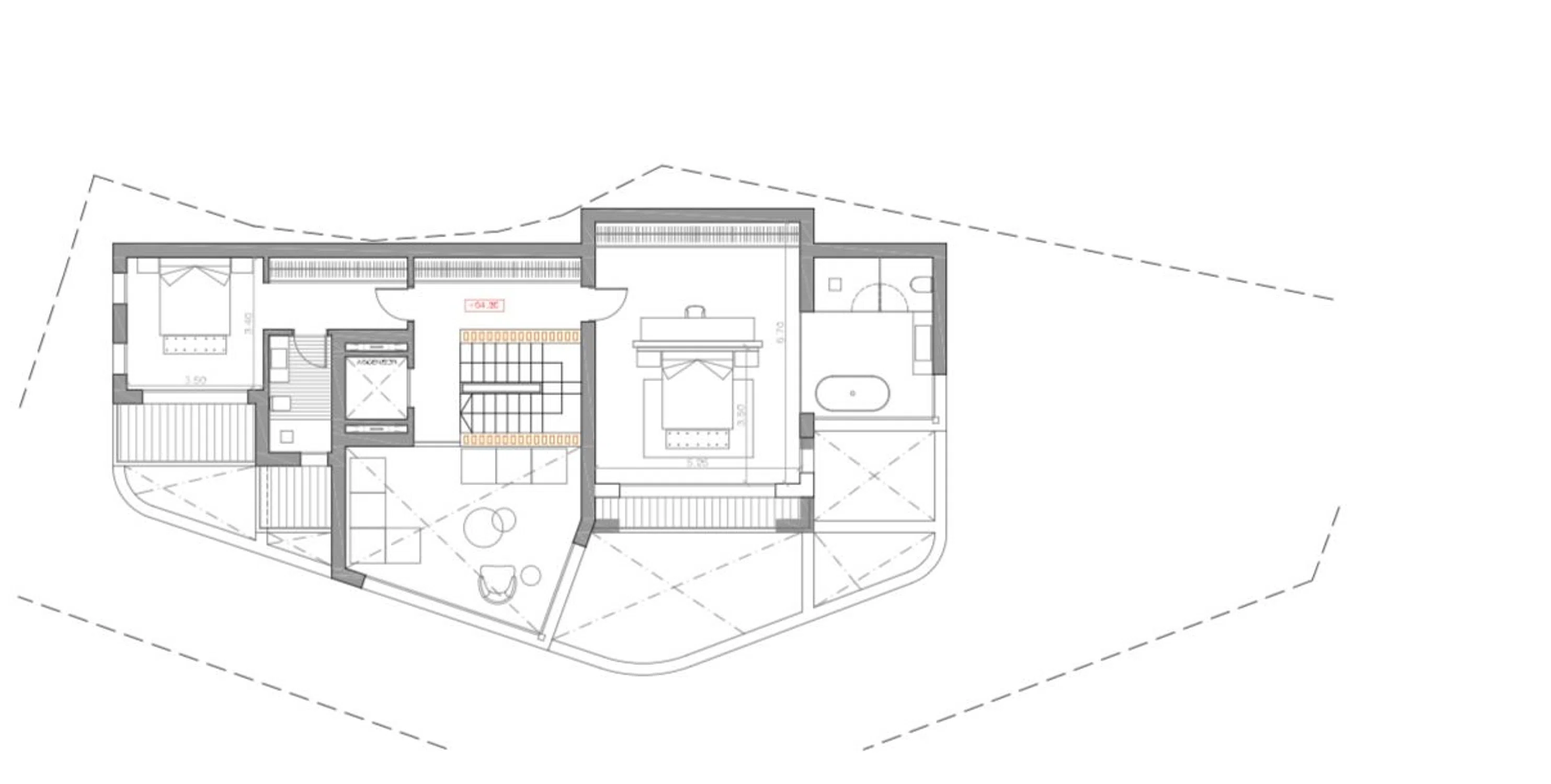
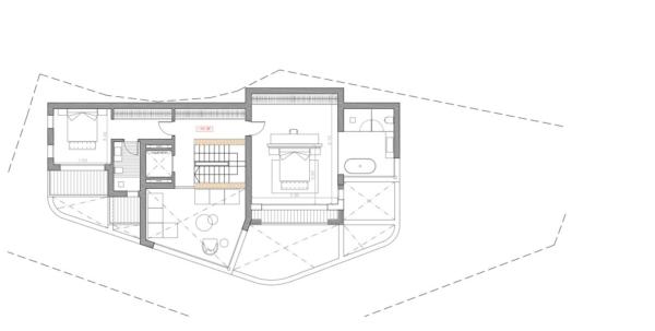
Parcela exclusiva en Urbanización ´´ La Corona´´ en Jávea: vistas al mar, orientación sur y licencia lista para construirDescubre una de las últimas oportunidades de inversión en La Corona, la zona residencial más prestigiosa y demandada de Jávea. Esta amplia parcela de 885 m² destaca por su orientación sur, lo que garantiza luz natural durante todo el día, así como unas impresionantes vistas panorámicas al mar y a toda Jávea. Esta parcela ofrece la posibilidad de construir una espectacular vivienda unifamiliar de dos alturas con una superficie total de 247 m², perfectamente integrada en su entorno natural y diseñada para aprovechar al máximo la orientación y las vistas. Una de sus grandes ventajas es que ya dispone de licencia de construcción concedida, lo que permite empezar la obra de inmediato, ahorrando tiempo y trámites. Además, se incluye un proyecto básico, flexible y abierto a modificaciones según los deseos y necesidades del comprador. Situada al final de una tranquila calle sin salida, esta parcela garantiza máxima privacidad y cero tráfico, ofreciendo un entorno exclusivo, silencioso y seguro, ideal para una residencia familiar o una villa de lujo para disfrutar todo el año. En Jávea cada vez quedan menos parcelas disponibles, especialmente en ubicaciones privilegiadas como esta. La Corona es una zona consolidada, altamente valorada por su cercanía al puerto, restaurantes, playas y todos los servicios, sin renunciar a la paz y la exclusividad que demandan los compradores más exigentes. ✨ Características clave: Parcela de 885 m² con licencia concedidaProyecto básico incluido y modificableVivienda de 2 alturas y 247 m² construidosOrientación sur y vistas panorámicas al mar y JáveaUbicación privilegiada y sin tráfico: Final de calle sin salidaUna de las zonas más cotizadas de la Costa BlancaNo dejes escapar esta oportunidad única de construir la casa de tus sueños en uno de los rincones más codiciados del Mediterráneo.

Merkmale der Immobilie

Complex information

  • Art der Immobilie
    Städtisch

Eigenschaftsdaten

  • Immobilientyp
    Gebraucht

Flächen

  • Grundstücksfläche
    885 m²

Base

  • Nutzung des Grundstücks
    Wohnimmobilien

Facilities

Aussichten:

Meeresblick

Pläne

Statistik der Marktpreise für Terreno en calle Sella

Karte

Alicante, Xàbia, Puerто, Calle Sella Zu diesem Ort gehen
Eine Bewertung über Terreno en calle Sella abgeben
0
0 Bewertungen
1
0% (0)
2
0% (0)
3
0% (0)
4
0% (0)
5
0% (0)
MG Villas Luxury Property
1 200 000 €
Kontakt zum Inserenten

Für weitere Informationen kontaktieren Sie bitte die Plattform

REF: 335411

Bewertungen über Terreno en calle Sella
Loading...

No reviews have been left for this object yet

Nächstgelegene Objekte

Entdecken Sie nahegelegene Immobilien, die wir in unmittelbarer Nähe zu diesem Standort entdeckt haben

Terreno en venta en calle del Mar de Bering s/n

Alicante, Xàbia, Partida Comunes-Adsubia, Calle del Mar de Bering s/n
280 000 €

Esta descripción ha sido traducida automáticamente y puede que no sea muy precis...

0
0 Bewertungen

Parcela bien situada con proyecto para construir una villa moderna Javea (Cansalades)

Alicante, Xàbia
1 089 000 €

Esta villa con arquitectura moderna será construida por un promotor francés con...

0
0 Bewertungen

Denia – Las Rotes/Montgó-Galeretes: En venta terreno con vistas y licencia para la construcción de un chalet unifamiliar

Alicante, Denia
175 000 €

La parcela en venta se sitúa en un área tranquilo a unos 2km de las playas de la...

0
0 Bewertungen

Terreno en c Llorer 3 - 5, 3

Alicante, Denia, Der Montgó, C Llorer 3 - 5, 3
395 000 €

Parcela incl. licencia de obra y tasas - ¡puede empezar a construir la casa de s...

0
0 Bewertungen

Terreno en calle Vicent Boix, 333

Alicante, Xàbia, La Granadella - Costa Nova, Calle Vicent Boix, 333
145 000 €

Parcela en venta en Javea Costa Nova. Esta parcela plana de 1.000m2 se encuentra...

0
0 Bewertungen

Terreno en El Montgó

Alicante, Denia, Der Montgó, El Montgó
212 000 €

Parcela de 844m2 con muy buenas vistas a el mar y al paisaje montañoso de él Mon...

0
0 Bewertungen

Terreno en Cap Martí - Pinomar

Alicante, Xàbia, Kap Martí - Pinomar, Cap Martí - Pinomar
269 000 €

Parcela de 1000 m2 para construir un chalet de lujo de 190 m2 Posible con proyec...

0
0 Bewertungen

Terreno en calle de la Violeta

Alicante, Xàbia, Kap Martí - Pinomar, Calle de la Violeta
220 000 €

Parcela Urbana en Venta en Tosalet III, Jávea, Costa Blanca. Esta bonita parcela...

0
0 Bewertungen

Terreno en Montgó - Ermita

Alicante, Xàbia, Montgó - Ermita, Montgó - Ermita
350 000 €

Te presentamos esta preciosa parcela urbana de 1884.78 m², ubicada en la tranqui...

0
0 Bewertungen
Aufruf

Wir verwenden eigene und Drittanbieter-Cookies, um die Nutzung der Website zu analysieren und Ihnen Werbung zu zeigen, die auf der Grundlage eines aus Ihren Surfgewohnheiten erstellten Profils mit Ihren Vorlieben übereinstimmt (z. B. besuchte Seiten). Mehr Informationen. Akzeptieren Sie Cookies?