Spanien Wohnungen Spanien Wohnungen Alicante Wohnungen Orihuela Piso en Polígono N-2 Villamartín Norte, 1 e

Piso en Polígono N-2 Villamartín Norte, 1 e

Alicante, Orihuela, Orihuela Costa, Polígono N-2 Villamartín Norte, 1 E
149 500 €
3 115 € / m2
Bewertung hinterlassen
Wohnungen Art der Immobilie
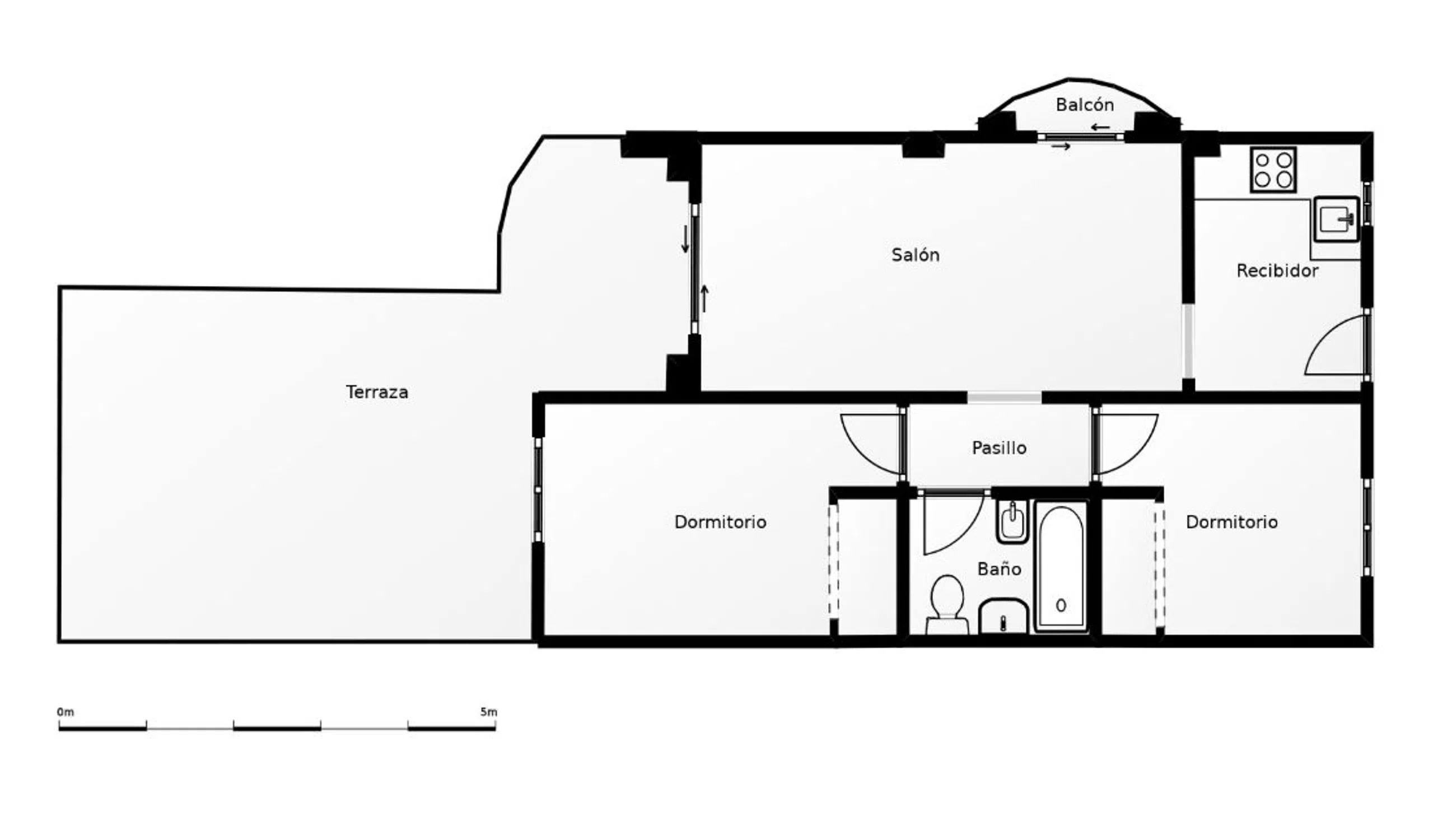
48 m² m² gebaut
1 Bäder
2 Schlafzimmer
1 Etage
Guter Zustand Immobilienstatus
INMO RUBEN ALMODOVAR presenta esta vivienda en Orihuela Costa. La vivienda ofrece una distribución funcional y versátil, con un salón-comedor que cuenta con acceso directo a una terraza, ideal para disfrutar de la luz natural y del clima mediterráneo. La cocina independiente, con salida a un balcón, aporta un espacio diferenciado y práctico, con interesantes posibilidades de actualización. Los dormitorios, de buen tamaño, ofrecen el potencial necesario para transformarse en estancias luminosas y acogedoras, mientras que los baños admiten una modernización que permita adaptar la vivienda a un estilo más actual. Cada espacio se presta a una reforma orientada a potenciar la luminosidad, la amplitud y el confort del conjunto. Ubicada en una zona residencial tranquila de Orihuela Costa, la propiedad permite disfrutar de un entorno apacible sin renunciar a la cercanía de todos los servicios. A menos de cinco minutos a pie se encuentran supermercados, colegios y centros de salud, así como una variada oferta de comercios, restauración y zonas de ocio. Consúltanos sin compromiso y no dejes pasar esta oportunidad.

Merkmale der Immobilie

Complex information

  • Art der Immobilie
    Wohnungen

Projektinformationen / Bauzustand

  • Immobilienstatus
    Guter Zustand

Eigenschaftsdaten

  • Etage
    1
  • Schlafzimmer
    2
  • Bäder
    1
  • m² gebaut
    48 m²
  • Immobilientyp
    Gebraucht

Base

Energieausweis

  • Energiezertifikat
    F
  • CEE Emission
    F

Facilities

Staat:

Guter Zustand

Statistik der Marktpreise für Piso en Polígono N-2 Villamartín Norte, 1 e

307 531 € (2 940 €/m2)
Durchschnittspreis für primäre Wohnungen in der Stadt Orihuela
244 343 € (2 763 €/m2)
Durchschnittspreis für sekundäre Wohnungen in der Stadt Orihuela
239 575 € (3 226 €/m2)
Durchschnittspreis für primäre Wohnungen im Bezirk Orihuela Costa
261 794 € (3 072 €/m2)
Durchschnittspreis für sekundäre Wohnungen im Bezirk Orihuela Costa

Karte

Alicante, Orihuela, Orihuela Costa, Polígono N-2 Villamartín Norte, 1 E Zu diesem Ort gehen
Eine Bewertung über Piso en Polígono N-2 Villamartín Norte, 1 e abgeben
0
0 Bewertungen
1
0% (0)
2
0% (0)
3
0% (0)
4
0% (0)
5
0% (0)
INMO RUBEN ALMODOVAR, S.L.
149 500 €
von 3 115 € / m2
Kontakt zum Inserenten

Für weitere Informationen kontaktieren Sie bitte die Plattform

REF: 452649

Bewertungen über Piso en Polígono N-2 Villamartín Norte, 1 e
Loading...

No reviews have been left for this object yet

Günstige Wohnungen 62930 Wohnungen zur Renovierung 30902 Wohnungen bis 50.000€ 28985 Wohnungen bis 100.000€ 30213 Häuser bis 100.000€ 30213 Wohnungen mit Meerblick 29755 Luxuswohnungen 29420 Günstige neue Wohnungen 47752 Verkauf von 2-Zimmer-Wohnungen Alicante 23645 Verkauf von Wohnungen mit 3 Zimmern Alicante 24103 Verkauf von Wohnungen mit 4 Schlafzimmern Alicante 21299 Verkauf Wohnungen 5 Zimmer Alicante 20411 Wohnungen in gutem Zustand Alicante 22010 Sanierungsbedürftige Wohnungen Alicante 21315 Zweitverwendungswohnungen Alicante 28899 Wohnungen mit Meerblick Alicante 20381 Günstige Wohnungen Alicante 29536 Wohnungen zum Verkauf mit Aufzug Alicante 26315 Wohnungen bis 50.000 € Alicante 20464 Wohnungen bis 100.000€ Alicante 21121 Neubauwohnungen Alicante 20842 Luxuswohnungen Alicante 20324 Außenwohnungen Alicante 20369 Günstige Neubauwohnungen Alicante 20842 Wohnungen von Privatpersonen Alicante 17466 Verkauf Wohnungen 2 Zimmer Orihuela 2040 Verkauf Wohnungen 3 Zimmer Orihuela 1930 Verkauf von Wohnungen mit 4 Zimmern Orihuela 1821 Verkauf Wohnungen 5 Zimmer Orihuela 1803 Wohnungen in gutem Zustand Orihuela 1912 Wohnungen zur Renovierung Orihuela 1815 Gebrauchte Wohnungen Orihuela 2208 Meerblickwohnungen Orihuela 1803 Günstige Wohnungen Orihuela 2230 Wohnungen zum Verkauf mit Aufzug Orihuela 2032 Wohnungen bis 100.000€ Orihuela 1816 Neubauwohnungen Orihuela 1814 Wohnungen bis 50.000€ Orihuela 1816 Luxuswohnungen Orihuela 1801 Außenwohnungen Orihuela 1801 Günstige Neubauten Orihuela 1814 Wohnungen von Privatpersonen Orihuela 1652

Nächstgelegene Objekte

Entdecken Sie nahegelegene Immobilien, die wir in unmittelbarer Nähe zu diesem Standort entdeckt haben

Apartamentos en Venta en Calle Pleamar, 22, Torrevieja

Alicante, Torrevieja, El Acequión - Los Náufragos, Calle Pleamar, 22
393 000 €

Un sueño, el mar, tu hogar Ocean Dream by TM se encuentra en la privilegiada zon...

0
0 Bewertungen

Apartamentos en Venta en Calle Pleamar, 22, Torrevieja

Alicante, Torrevieja, El Acequión - Los Náufragos, Calle Pleamar, 22
246 000 €

Un sueño, el mar, tu hogar Ocean Dream by TM se encuentra en la privilegiada zon...

0
0 Bewertungen

Apartamentos en Venta en Calle Pleamar, 22, Torrevieja

Alicante, Torrevieja, El Acequión - Los Náufragos, Calle Pleamar, 22
336 000 €

Un sueño, el mar, tu hogar Ocean Dream by TM se encuentra en la privilegiada zon...

0
0 Bewertungen

Apartamentos en Venta en Calle Pleamar, 22, Torrevieja

Alicante, Torrevieja, El Acequión - Los Náufragos, Calle Pleamar, 22
260 000 €

Un sueño, el mar, tu hogar Ocean Dream by TM se encuentra en la privilegiada zon...

0
0 Bewertungen

Apartamentos en Venta en Calle Pleamar, 22, Torrevieja

Alicante, Torrevieja, El Acequión - Los Náufragos, Calle Pleamar, 22
407 000 €

Un sueño, el mar, tu hogar Ocean Dream by TM se encuentra en la privilegiada zon...

0
0 Bewertungen

Apartamentos en Venta en Calle Pleamar, 22, Torrevieja

Alicante, Torrevieja, El Acequión - Los Náufragos, Calle Pleamar, 22
310 000 €

Un sueño, el mar, tu hogar Ocean Dream by TM se encuentra en la privilegiada zon...

0
0 Bewertungen

Apartamentos en Venta en Calle Pleamar, 22, Torrevieja

Alicante, Torrevieja, El Acequión - Los Náufragos, Calle Pleamar, 22
303 000 €

Un sueño, el mar, tu hogar Ocean Dream by TM se encuentra en la privilegiada zon...

0
0 Bewertungen

Apartamentos en Venta en Calle Pleamar, 22, Torrevieja

Alicante, Torrevieja, El Acequión - Los Náufragos, Calle Pleamar, 22
280 000 €

Un sueño, el mar, tu hogar Ocean Dream by TM se encuentra en la privilegiada zon...

0
0 Bewertungen

Apartamentos en Venta en Calle Pleamar, 22, Torrevieja

Alicante, Torrevieja, El Acequión - Los Náufragos, Calle Pleamar, 22
293 000 €

Un sueño, el mar, tu hogar Ocean Dream by TM se encuentra en la privilegiada zon...

0
0 Bewertungen

Wir verwenden eigene und Drittanbieter-Cookies, um die Nutzung der Website zu analysieren und Ihnen Werbung zu zeigen, die auf der Grundlage eines aus Ihren Surfgewohnheiten erstellten Profils mit Ihren Vorlieben übereinstimmt (z. B. besuchte Seiten). Mehr Informationen. Akzeptieren Sie Cookies?