Terreno en Las Salinas

Almería, Vera, Las Salinas, Las Salinas
112 000 €
Bewertung hinterlassen
Städtisch Art der Immobilie
962 m² Grundstücksfläche
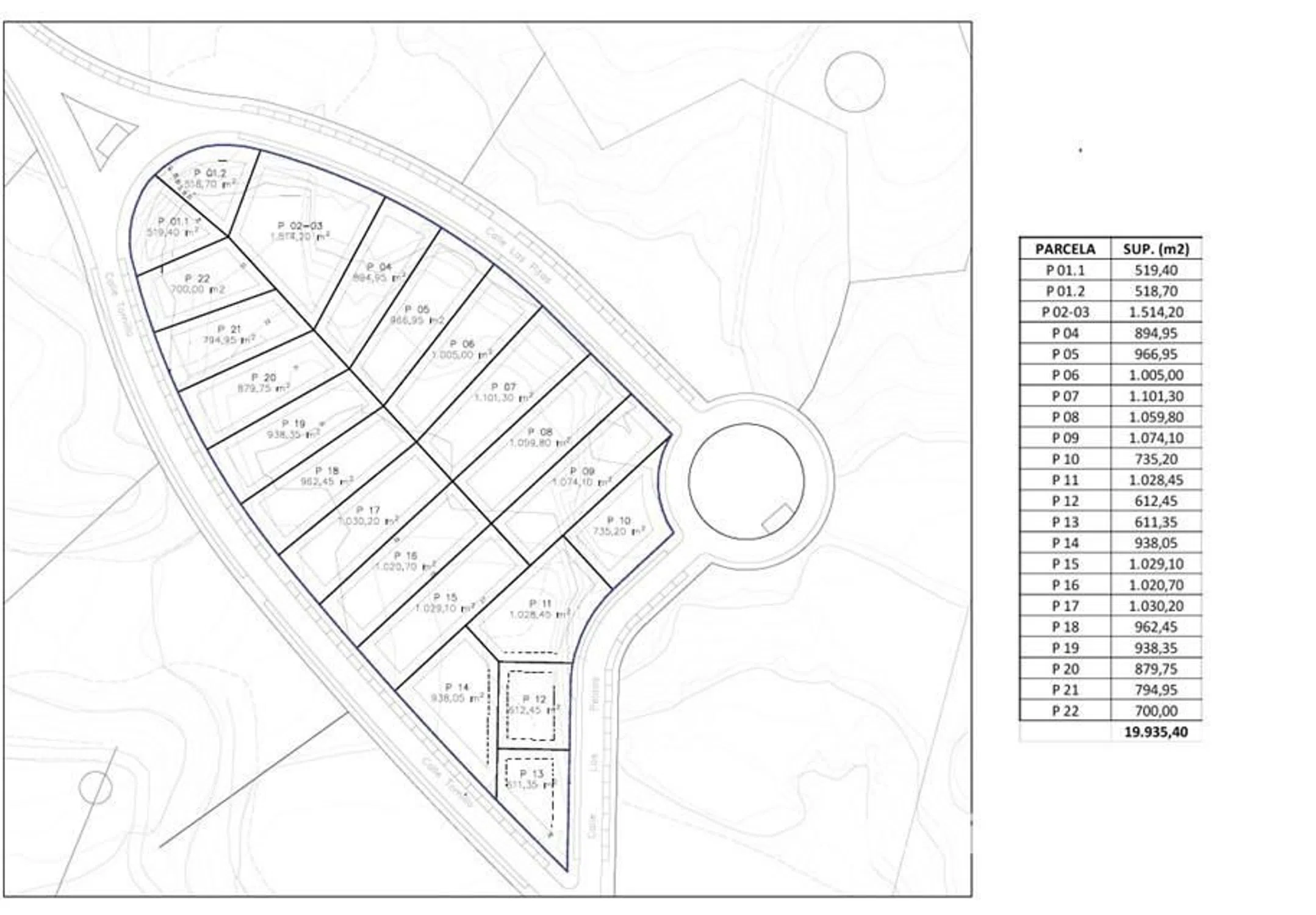
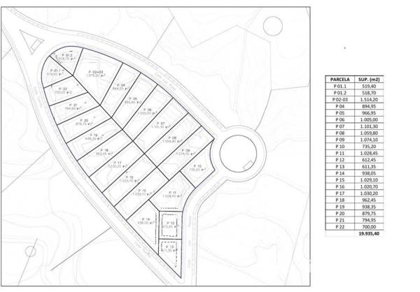
Parcelas urbanas en venta en vera Playa con todas las infraestructuras como calle asfaltada, luz, agua, alcantarillado, fibra óptica para internet, etc. y a pocos minutos en coche de la futura estación del AVE que Se espera que se inaugure en los próximos años. En total son 22 parcelas con tamaños que van desde los 610.79 m2 hasta los 1.152, 43 m2. Las 5 parcelas restantes varian entre 962,45 m2 a 1.059, 80m2. Cada parcela tiene una edificabilidad máxima de 0,5112m2 por cada m2 y por lo tanto ideal para aquellos que buscan construir el Chalet de sus sueños, para disfrutar con amigos y familia o para relajarse, bajo el sol del Mediterráneo ya un paso de espectaculares playas. Esta es sin duda una gran oportunidad para adquirir una parcela en una excelente ubicación en la zona de Vera Playa, una de las zonas más desarrolladas de la costa de Almería, en un barrio residencial y muy tranquilo, pero al mismo tiempo con servicios y comodidades y la playa a poca distancia a pie o a un corto trayecto en coche.

Merkmale der Immobilie

Complex information

  • Art der Immobilie
    Städtisch

Eigenschaftsdaten

  • Immobilientyp
    Gebraucht

Flächen

  • Grundstücksfläche
    962 m²

Base

Facilities

Lieferung:

Abwasserkanalisation

Statistik der Marktpreise für Terreno en Las Salinas

Karte

Almería, Vera, Las Salinas, Las Salinas Zu diesem Ort gehen
Eine Bewertung über Terreno en Las Salinas abgeben
0
0 Bewertungen
1
0% (0)
2
0% (0)
3
0% (0)
4
0% (0)
5
0% (0)
Veritas Homes Property Group
112 000 €
Kontakt zum Inserenten

Für weitere Informationen kontaktieren Sie bitte die Plattform

REF: 384541

Bewertungen über Terreno en Las Salinas
Loading...

No reviews have been left for this object yet

Nächstgelegene Objekte

Entdecken Sie nahegelegene Immobilien, die wir in unmittelbarer Nähe zu diesem Standort entdeckt haben

Terreno en Palomares Bajo, 249

Almería, Cuevas del Almanzora, Palomares, Palomares Bajo, 249
110 000 €

Este terreno urbano edificable se encuentra en una ubicación privilegiada en la...

0
0 Bewertungen

Terreno en Barriada las Herrerías

Almería, Cuevas del Almanzora, Burjulu - Die Mulería, Barriada las Herrerías
871 000 €

Edificio en construcción, cuenta con 3 plantas destinadas a 66 viviendas de 1ª r...

0
0 Bewertungen

Terreno en Barriada las Herrerías

Almería, Cuevas del Almanzora, Burjulu - Die Mulería, Barriada las Herrerías
871 000 €

Edificio en construcción, cuenta con 3 plantas destinadas a 66 viviendas de 1ª r...

0
0 Bewertungen

Terreno en Palomares

Almería, Cuevas del Almanzora, Palomares, Palomares
68 000 €

Parcela urbana situada la carretera Palomares. Parcela de 257m2 para hacer una v...

0
0 Bewertungen

Terreno en plaza Sector Al-2, 9

Almería, Cuevas del Almanzora, Las Cunas - La Algarrobina, Plaza Sector Al-2, 9
60 000 €

Terreno urbano para que construyas tu casa, es el más alto y con mejores vistas,...

0
0 Bewertungen

Terreno en Desert Spring Golf

Almería, Cuevas del Almanzora, Desert Spring Golf, Desert Spring Golf
300 000 €

Grupo Platinum Estates presenta esta parcela de 1.000 m2 en venta en el codiciad...

0
0 Bewertungen

Terreno en avenida del Secano

Almería, Cuevas del Almanzora, Palomares, Avenida del Secano
250 000 €

Se vende 3.347, 50 m2 de suelo, con vivienda, parte del suelo es urbano. Palomar...

0
0 Bewertungen

Terreno en Burjulu - La Mulería

Almería, Cuevas del Almanzora, Burjulu - Die Mulería, Burjulu - La Mulería
28 500 €

Solar urbano situado en el Paraje de las Herrerías, municipio de Cuevas de Alman...

0
0 Bewertungen

Terreno en plaza Sector Al-2

Almería, Cuevas del Almanzora, Las Cunas - La Algarrobina, Plaza Sector Al-2
67 000 €

Impresionantes parcelas con vistas panorámicas en una ubicación privilegiada, co...

0
0 Bewertungen

Wir verwenden eigene und Drittanbieter-Cookies, um die Nutzung der Website zu analysieren und Ihnen Werbung zu zeigen, die auf der Grundlage eines aus Ihren Surfgewohnheiten erstellten Profils mit Ihren Vorlieben übereinstimmt (z. B. besuchte Seiten). Mehr Informationen. Akzeptieren Sie Cookies?