Spanien Neubau Spanien Neubau Barcelona Neubau Badalona Córsega Residencial Dúplex en venta en calle Navas de Tolosa, 15

Verkauf von Duplex in Calle Navas de Tolosa, 15, Badalona

Barcelona, Badalona, Montigalà - Sant Crist, Calle Navas de Tolosa, 15
Ausverkauf
Bewertung hinterlassen
Doppelhaushälften Art der Immobilie
3 Schlafzimmer
2025 Übergabedatum
104 m² m² gebaut
2 Bäder
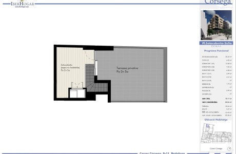
NUEVA PROMOCIÓN DE VIVIENDAS PRÓXIMA A CONSTRUIR en C/Còrsega 9-11 de Badalona.FECHA DE ENTREGA: 3º TRIMESTRE 2025.Viviendas de 2 y 3 habitaciones, todas con balcones, en diferentes alturas (desde 1º planta, hasta 3º planta).EXCLUSIVOS ÁTICOS DÚPLEX con toda la vivienda en una planta y arriba espectaculares buhardillas totalmente diáfanas + TERRAZA. Cerca de todos los servicios básicos necesarios y con buenas conexiones mediante transporte público (autobuses y líneas de Metro FONDO).ESPECTACULARES PLANTAS BAJAS DÚPLEX, con acceso directo desde la calle. Todas con patio delantero y alguna con patio trasero además. Todas ellas de 3 dormitorios con 2 baños completos.Completamente exteriores, muy luminosos y con buenas orientaciones.Parking y trastero opcional y aparte del precio de las viviendas, con acceso directo mediante ascensor.Acabados y emplazamientos Iberhogar, más de 60 años nos avalan.PARA MAS INFORMACIÓN solicite su cita previa en nuestra oficina de ventas de Badalona: Carrer del Mestre Joan Pich i Santasusana 1.

Merkmale der Immobilie

Complex information

  • Wohnanlage
    Córsega Residencial
  • Art der Immobilie
    Doppelhaushälften

Projektinformationen / Bauzustand

  • Übergabedatum
    2025

Eigenschaftsdaten

  • Schlafzimmer
    3
  • Bäder
    2
  • m² gebaut
    104 m²
  • Immobilientyp
    Neubau

Energieausweis

  • Energiezertifikat
    A

Facilities

Wohnungskomfort:

Lagerraum
Außenfenster
Terasse
Balkon

Im Gebäude:

Aufzug
Abstellraum

Statistik der Marktpreise für Dúplex en venta en calle Navas de Tolosa, 15

436 006 € (4 078 €/m2)
Durchschnittspreis für primäre Doppelhaushälften in der Stadt Badalona
445 150 € (4 586 €/m2)
Durchschnittspreis für sekundäre Doppelhaushälften in der Stadt Badalona
474 818 € (4 224 €/m2)
Durchschnittspreis für primäre Doppelhaushälften im Bezirk Montigalà - Sant Crist

Karte

Barcelona, Badalona, Montigalà - Sant Crist, Calle Navas de Tolosa, 15 Zu diesem Ort gehen
Eine Bewertung über Dúplex en venta en calle Navas de Tolosa, 15 abgeben
0
0 Bewertungen
1
0% (0)
2
0% (0)
3
0% (0)
4
0% (0)
5
0% (0)
Ausverkauf
Kontakt zum Inserenten

Für weitere Informationen kontaktieren Sie bitte die Plattform

REF: 5647

Bewertungen über Dúplex en venta en calle Navas de Tolosa, 15
Loading...

No reviews have been left for this object yet

Nächstgelegene Objekte

Entdecken Sie nahegelegene Immobilien, die wir in unmittelbarer Nähe zu diesem Standort entdeckt haben

Duplexes en Venta, Tiana

Barcelona, Tiana
620 000 €

Vivienda de 149m2 construidos, con dos terrazas de 6,15m2 en la planta inferior...

0
0 Bewertungen

Duplexes en Venta, Tiana

Barcelona, Tiana
590 000 €

Vivienda de 143m2 construidos, con tres terrazas, una de 9,60m2 en la planta inf...

0
0 Bewertungen

Duplexes en Venta en Calle Emilia Coranty, 33, Barcelona

Barcelona, Barcelona, Sant Martí, Calle Emilia Coranty, 33
820 000 €

El proyecto Can Ricart Lofts revive 4 edificios emblemáticos de la Barcelona ind...

0
0 Bewertungen

Duplexes en Venta en Calle Emilia Coranty, 33, Barcelona

Barcelona, Barcelona, Sant Martí, Calle Emilia Coranty, 33
850 000 €

El proyecto Can Ricart Lofts revive 4 edificios emblemáticos de la Barcelona ind...

0
0 Bewertungen

Duplexes en Venta en Calle Emilia Coranty, 33, Barcelona

Barcelona, Barcelona, Sant Martí, Calle Emilia Coranty, 33
875 000 €

El proyecto Can Ricart Lofts revive 4 edificios emblemáticos de la Barcelona ind...

0
0 Bewertungen

Duplexes en Venta en Calle Emilia Coranty, 33, Barcelona

Barcelona, Barcelona, Sant Martí, Calle Emilia Coranty, 33
850 000 €

El proyecto Can Ricart Lofts revive 4 edificios emblemáticos de la Barcelona ind...

0
0 Bewertungen

Duplexes en Venta en Calle Emilia Coranty, 33, Barcelona

Barcelona, Barcelona, Sant Martí, Calle Emilia Coranty, 33
950 000 €

El proyecto Can Ricart Lofts revive 4 edificios emblemáticos de la Barcelona ind...

0
0 Bewertungen

Duplexes en Venta en Calle Emilia Coranty, 33, Barcelona

Barcelona, Barcelona, Sant Martí, Calle Emilia Coranty, 33
825 000 €

El proyecto Can Ricart Lofts revive 4 edificios emblemáticos de la Barcelona ind...

0
0 Bewertungen

Neubau in der bekannten Allee im Viertel von Barcelona.

Barcelona, Barcelona, Nou Barris, Paseo de Maragall, 368
468 000 €

Erleben Sie die neue Wohnanlage im lebendigen Stadtteil Nou Barris in Barcelona...

0
0 Bewertungen

Wir verwenden eigene und Drittanbieter-Cookies, um die Nutzung der Website zu analysieren und Ihnen Werbung zu zeigen, die auf der Grundlage eines aus Ihren Surfgewohnheiten erstellten Profils mit Ihren Vorlieben übereinstimmt (z. B. besuchte Seiten). Mehr Informationen. Akzeptieren Sie Cookies?