Terreno en El Papiol

Barcelona, El Papiol, El Papiol
1 150 000 €
Bewertung hinterlassen
Städtisch Art der Immobilie
1 537 m² Grundstücksfläche
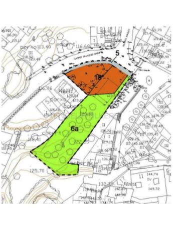
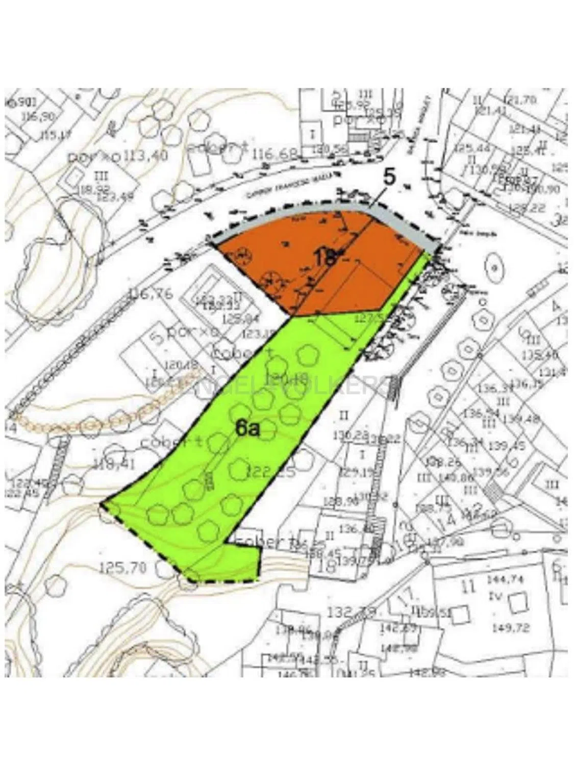
Terreno edificable en la mejor zona del Baix Llobregat Terreno edificable para promoción de viviendas. El solar tiene una muy buena ubicación, ya que se encuentra en el centro del pueblo, cerca de todos los servicios, así como, centro de salud, ayuntamiento, comercios, transporte público, colegio, etc. Su uso es residencial, para edificar un máximo de 889 m2 de vivienda y 240 m2 de plazas de aparcamiento. Consta de todas las infraestructuras necesarias como red de saneamiento, alumbrado público, gas ciudad, pavimentación en la calle, Tiene una superficie de 1.537 m2, de los cuales se puede llegar a edificar el 60%, con una altura máxima de 10,60m2 y una fachada mínima de 14 metros. Número máximo de 9 viviendas, más 10 plazas de parking. Hay planos del anteproyecto. El Papiol, un encantador pueblo ubicado cerca de Barcelona, se destaca por su excelente ubicación y fácil acceso a la ciudad. A pesar de su proximidad a una gran ciudad, El Papiol mantiene su propia identidad tranquila y pacífica, lo convierte en un lugar ideal para aquellos que buscan escapar del ajetreo de la vida urbana. Con una amplia gama de servicios disponibles, El Papiol ofrece a sus residentes todas las comodidades necesarias para una vida cómoda. Desde supermercados y tiendas locales hasta restaurantes y cafeterías acogedores, no hay escasez de lugares para satisfacer las necesidades diarias. Además, cuenta con una excelente infraestructura, como transporte público eficiente y buenas conexiones por carretera, lo que garantiza una excelente comunicación con Barcelona y otras áreas cercanas. El Papiol se encuentra rodeado de impresionantes paisajes montañosos, lo que brinda a los residentes la oportunidad de disfrutar de una variedad de actividades al aire libre. Los amantes del deporte encontrarán muchas opciones emocionantes, como la equitación en las instalaciones ecuestres locales, el pádel en las canchas de deportes, el ciclismo de montaña en senderos desafiantes y el trekking por los hermosos senderos naturales. Además, cuenta también con un magnífico gimnasio bien equipado para su disfrute, así como piscina municipal. Una de las características más destacadas de El Papiol es su alta calidad de vida. La combinación de su ambiente tranquilo, su acceso a la naturaleza y la variedad de actividades deportivas y culturales, contribuyen a una vida equilibrada y saludable. Los residentes pueden disfrutar de un entorno apacible y aire limpio, lo que promueve un estilo de vida relajado y placentero. En resumen, El Papiol es un pueblo pintoresco cerca de Barcelona que ofrece una excelente calidad de vida. Con una ubicación estratégica, todos los servicios necesarios, un entorno tranquilo y una amplia gama de actividades deportivas al aire libre, es un lugar ideal para aquellos que buscan combinar la comodidad de la ciudad, con la belleza natural y la tranquilidad de la vida en un pueblo.

Merkmale der Immobilie

Complex information

  • Art der Immobilie
    Städtisch

Eigenschaftsdaten

  • Immobilientyp
    Gebraucht

Flächen

  • Grundstücksfläche
    1 537 m²

Base

Statistik der Marktpreise für Terreno en El Papiol

Karte

Barcelona, El Papiol, El Papiol Zu diesem Ort gehen
Eine Bewertung über Terreno en El Papiol abgeben
0
0 Bewertungen
1
0% (0)
2
0% (0)
3
0% (0)
4
0% (0)
5
0% (0)
Engel & Völkers Barcelona
1 150 000 €
Kontakt zum Inserenten

Für weitere Informationen kontaktieren Sie bitte die Plattform

REF: 373825

Bewertungen über Terreno en El Papiol
Loading...

No reviews have been left for this object yet

Nächstgelegene Objekte

Entdecken Sie nahegelegene Immobilien, die wir in unmittelbarer Nähe zu diesem Standort entdeckt haben

Terreno en venta en calle de Sant Domènec, 1

Barcelona, Sant Vicenç dels Horts
880 000 €

Este terreno se encuentra en Sant Domenech, 1-9 Sant Vicenç dels Horts, Barcelon...

0
0 Bewertungen

TERRENO EDIFICABLE EN COLLSEROLA, A 15MN DE BARCELONA.

Barcelona, Molins de Rei
110 000 €

TERRENO 530m2 EDIFICABLE EN COLLSEROLA, A 15MN DE BARCELONA. Terreno de 530m2 en...

0
0 Bewertungen

TERRENO 405M2 EN COLLSEROLA, A 2KM DE LA ESTACION DE LA FLORESTA.

Barcelona, Molins de Rei
49 900 €

OPORTUNIDAD EN COLLSEROLA, A 12MN DE BARCELONA. Terreno de 405m2 en el parque de...

0
0 Bewertungen

TERRENO EDIFICABLE EN COLLSEROLA, A 15MN DE BARCELONA.

Barcelona, Molins de Rei
145 000 €

TERRENO 543m2 EDIFICABLE EN COLLSEROLA, A 15MN DE BARCELONA. Terreno de 543m2 en...

0
0 Bewertungen

TERRENO URBANO LISTO PARA CONSTRUIR con PROYECTO PAGADO

Barcelona, Cervelló
59 000 €

Proyecto para amplia vivienda unifamiliar en la urbanización de Torre Vileta per...

0
0 Bewertungen

TERRENO URBANO CON PROYECTO PREPARADO EN CERVELLÓ. A 18 MIN DE BCN

Barcelona, Cervelló
78 000 €

Proyecto para vivienda de 2 habitaciones y estudio sobre amplia parcela urbana d...

0
0 Bewertungen

Terreno en venta en blat

Barcelona, Rubí, Sant Muç - Castellnou - Can Mir, blat
169 000 €

¡Atención amantes de la naturaleza!Tenemos una oportunidad única para ti. Se tra...

0
0 Bewertungen

Terreno en Cervelló

Barcelona, Cervelló, Cervelló
234 000 €

SOLAR PLURIFAMILIAR - 10 UDS APROX. Terreno urbano, haciendo chaflán, prácticame...

0
0 Bewertungen

Terreno en calle Miquel Carbonell, 152 b

Barcelona, Corbera de Llobregat, Calle Miquel Carbonell, 152 B
80 000 €

Se venden cuatro parcelas en la urbanización Can Montmany de Más Passoles. Son t...

0
0 Bewertungen
Aufruf

Wir verwenden eigene und Drittanbieter-Cookies, um die Nutzung der Website zu analysieren und Ihnen Werbung zu zeigen, die auf der Grundlage eines aus Ihren Surfgewohnheiten erstellten Profils mit Ihren Vorlieben übereinstimmt (z. B. besuchte Seiten). Mehr Informationen. Akzeptieren Sie Cookies?