Terreno en calle Ter

Barcelona, Sant Andreu de la Barca, Calle Ter
71 000 €
Bewertung hinterlassen
Urbane Entwicklung Art der Immobilie
1 256 m² Grundstücksfläche
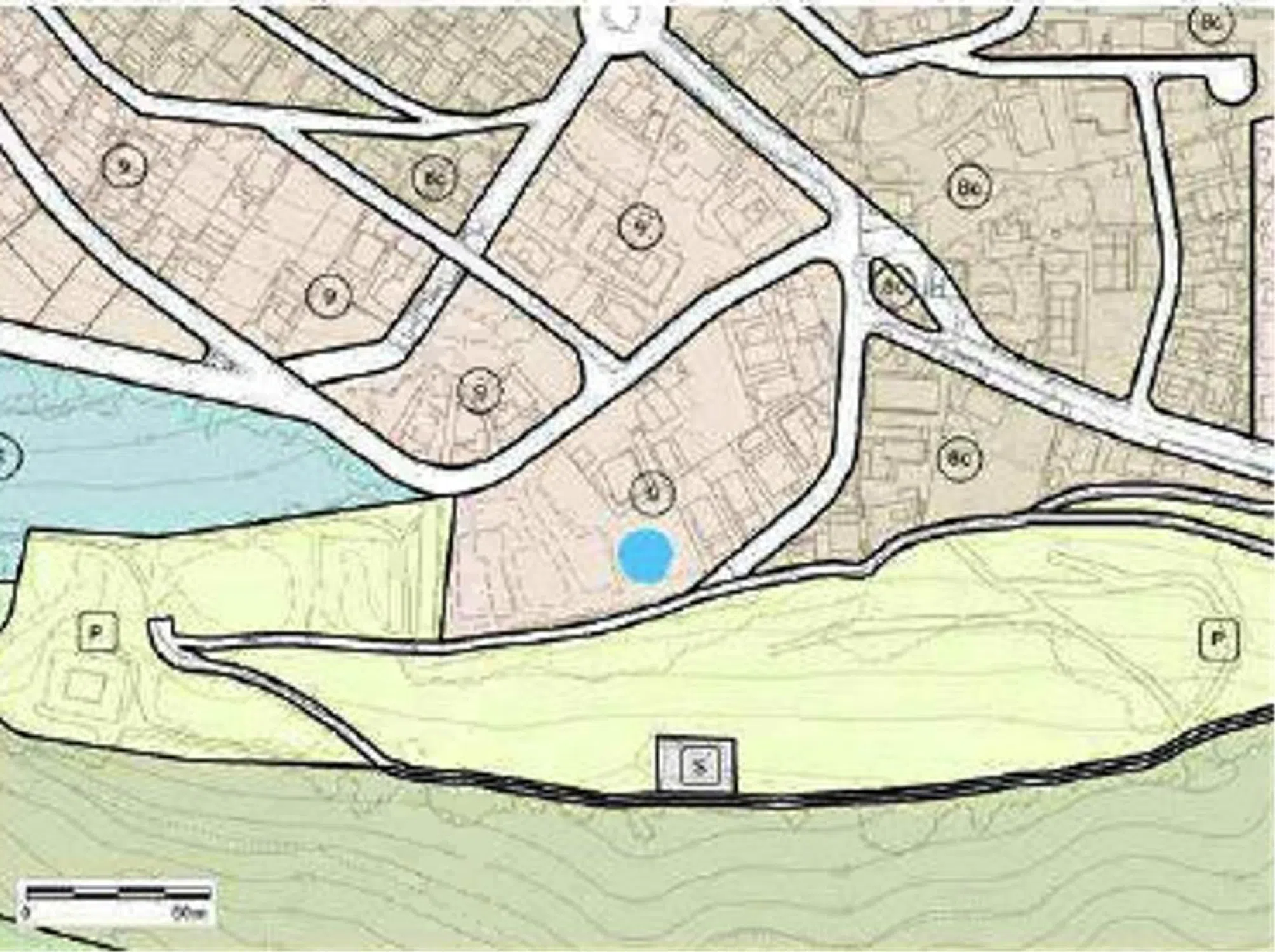
Suelo Ordenado en Sant Andreu De La Barca, provincia de Barcelona, de uso Residencial Unifamiliar Aislado con una superficie de 1.256, 4 m², con edificabilidad estimada de 300 m². La edificabilidad máxima permitira sería de 628 m2 pero la parcela mínima es de 400 y la superficie contruida media de la zona es de 250-300m2, por lo que se considera una vivienda unifamiliar de 300 m2. - Inmueble en situación urbanística especial. Se recomienda al comprador que obtenga asesoramiento legal antes de adoptar la decisión de compra.

Merkmale der Immobilie

Complex information

  • Art der Immobilie
    Urbane Entwicklung

Eigenschaftsdaten

  • Immobilientyp
    Gebraucht

Flächen

  • Grundstücksfläche
    1 256 m²

Base

Statistik der Marktpreise für Terreno en calle Ter

Karte

Barcelona, Sant Andreu de la Barca, Calle Ter Zu diesem Ort gehen
Eine Bewertung über Terreno en calle Ter abgeben
0
0 Bewertungen
1
0% (0)
2
0% (0)
3
0% (0)
4
0% (0)
5
0% (0)
Solvia inmuebles HRE CES
71 000 €
Kontakt zum Inserenten

Für weitere Informationen kontaktieren Sie bitte die Plattform

REF: 373659

Bewertungen über Terreno en calle Ter
Loading...

No reviews have been left for this object yet

Nächstgelegene Objekte

Entdecken Sie nahegelegene Immobilien, die wir in unmittelbarer Nähe zu diesem Standort entdeckt haben

Terreno en venta en Corbera de Llobregat

Barcelona, Corbera de Llobregat
42 500 €

Terreno edificable de 833 m2, ubicada en Cases Pairals (Parcela A2). Urbanizació...

0
0 Bewertungen

Terreno en venta en Corbera de Llobregat

Barcelona, Corbera de Llobregat
52 500 €

Terreno edificable de 800 m2, ubicada en Cases Pairals (Parcela A2). Urbanizació...

0
0 Bewertungen

Terreno en calle Ull de Llebre, 8

Barcelona, Gelida, Calle Ull de Llebre, 8
51 400 €

Terreno de 2600 m2 con fantásticas vistas al macizo de Monserrat. Gran posibilid...

0
0 Bewertungen

Terreno en calle de Martorell

Barcelona, Corbera de Llobregat, Calle de Martorell
67 000 €

¡Oportunidad única! Terreno con licencia para construir 375m² (PB + 2 plantas) e...

0
0 Bewertungen

Terreno en Corbera de Llobregat

Barcelona, Corbera de Llobregat, Corbera de Llobregat
380 000 €

Espacio para soñar en Corbera de Llobregat Enclavado en plena naturaleza y rodea...

0
0 Bewertungen

Terreno en Corbera de Llobregat

Barcelona, Corbera de Llobregat, Corbera de Llobregat
85 000 €

Tu proyecto en el lugar ideal, Corbera de Llobregat Terreno edificable de 1215 m...

0
0 Bewertungen

Terreno en Corbera de Llobregat

Barcelona, Corbera de Llobregat, Corbera de Llobregat
137 000 €

Terreno con máximo potencial, en Corbera de LLobregat Terreno edificable de 1825...

0
0 Bewertungen

Terreno en Pallejà

Barcelona, Pallejà, Pallejà
74 000 €

TERRENO RESIDENCIAL SOLEADO en FONTPINEDA LISTO PARA CONSTRUIR A 22 MIN DE BARC...

0
0 Bewertungen

Terreno en Ampliació del Casc, 36 ParcelaA

Barcelona, Corbera de Llobregat, Ampliació del Casc, 36 ParcelaA
98 000 €

Últimos terrenos en la urbanización Corbera 2000. Apto para construcción inmedia...

0
0 Bewertungen

Wir verwenden eigene und Drittanbieter-Cookies, um die Nutzung der Website zu analysieren und Ihnen Werbung zu zeigen, die auf der Grundlage eines aus Ihren Surfgewohnheiten erstellten Profils mit Ihren Vorlieben übereinstimmt (z. B. besuchte Seiten). Mehr Informationen. Akzeptieren Sie Cookies?