Spanien Städtisch Spanien Städtisch Barcelona Städtisch Ullastrell Terreno en venta en calle Lluis Muncunill, 30

Terreno en venta en calle Lluis Muncunill, 30

Barcelona, Ullastrell
76 650 €
Bewertung hinterlassen
Städtisch Art der Immobilie
Erdgas Heizung
Ja Wasserversorgung
Zugang über städtische Straße Zugangstyp
Ja Stromversorgung
Obstbäume Anbauflächen
Wohnimmobilien Nutzung des Grundstücks
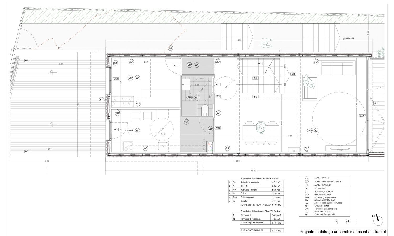
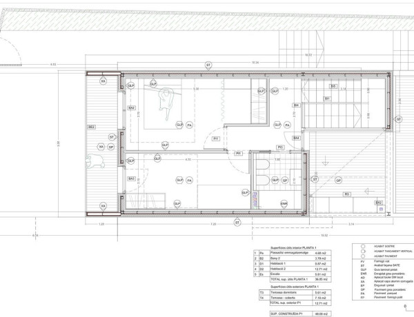
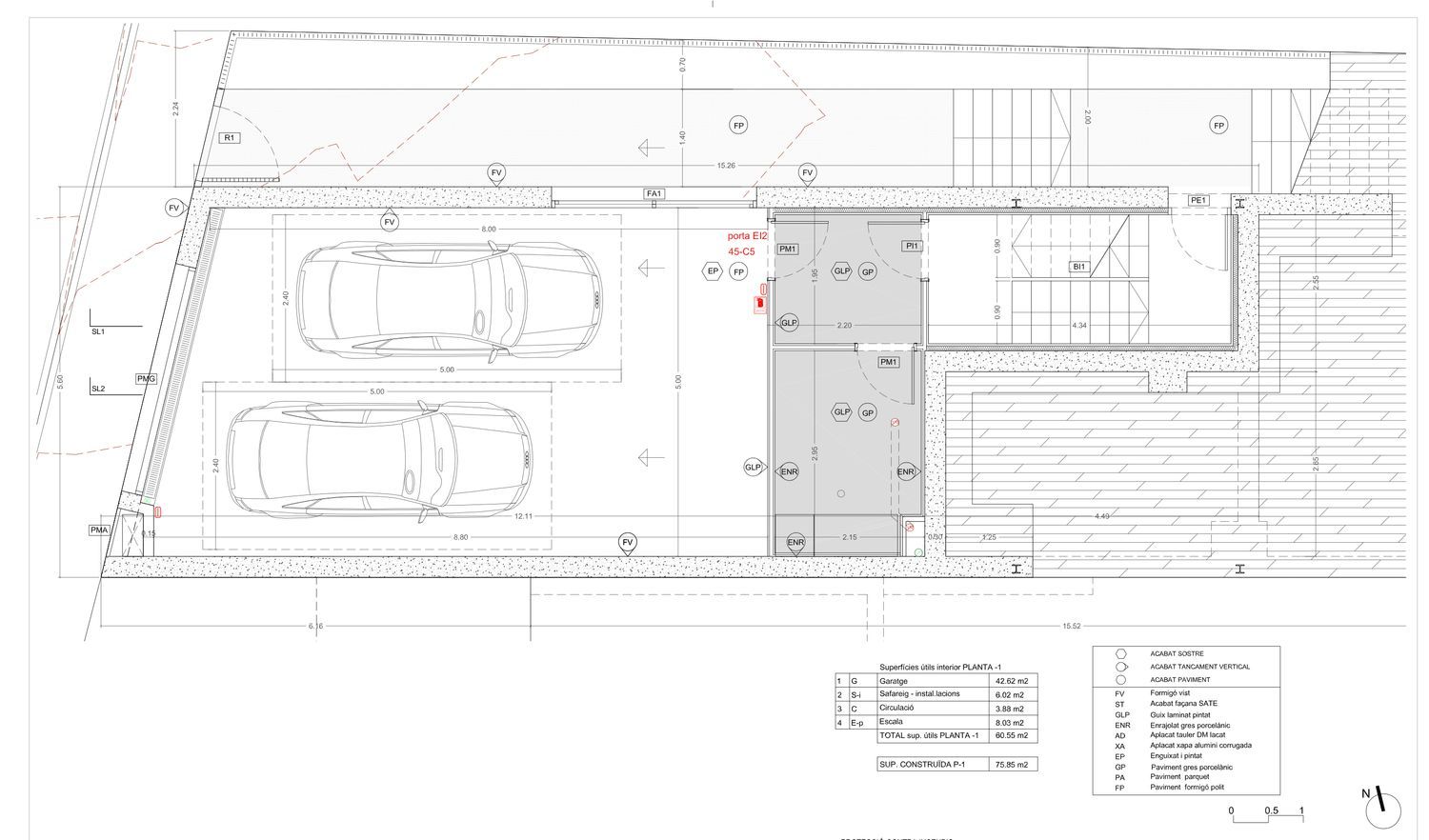
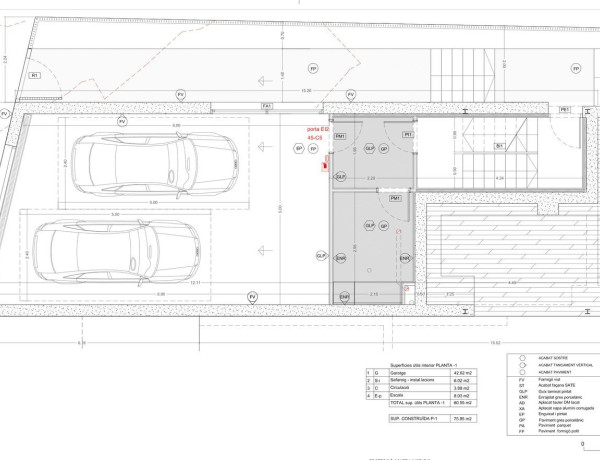
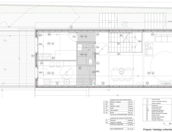
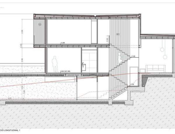
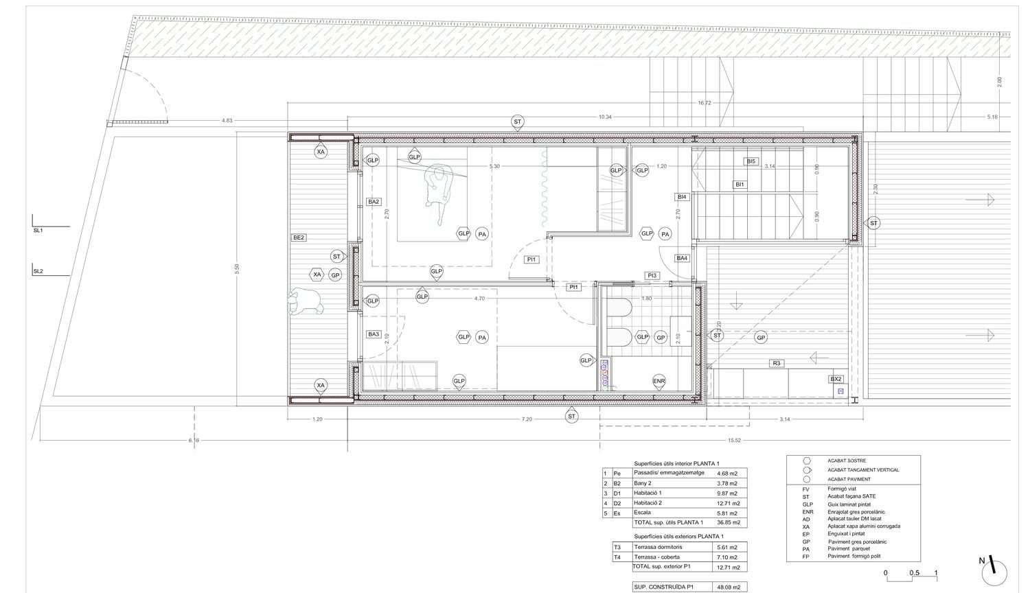
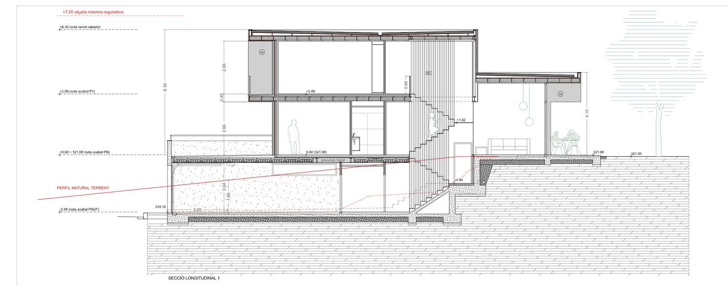
Terreno ubicado dentro del núcleo urbano de Ullastrell, a menos de 10min de la C-58 a la altura de Terrassa, a 15min de la A-2 a la altura de Abrera y a 15min también de la Ap-7 a la altura de Sant Cugat del Vallès. Además de contar con todos los suministros disponibles y de tener excelentes conexiones con las principales vías rápidas, la zona goza de una tranquilidad envidiable y unas fabulosas vistas a Montserrat, así como a Collserola e incluso el mar en los días claros (cotejado por la vista al Baix Llobregat).El terreno cuenta con el proyecto ejecutivo ya realizado y aprobado por el Ayuntamiento, del cual adjunto planos e imágenes en 3D del mismo. Por lo tanto, sólo sería necesario de presentarlo y esperar únicamente 1 mes, que es el tiempo que suele demorar este Ayuntamiento para revisar y aprobar licencias. El proyecto en cuestión consiste en una primera planta a nivel de calle destinada a parking, sala de instalaciones y despensa. La primera planta cuenta con salón de doble altura, con una librería de suelo a techo proyectada, cocina, estudio, baño, terraza a calle y jardín a zona verde interior. La segunda planta contará con habitación doble, habitación individual, balcón que comunica ambas habitaciones y que da a la calle y a Montserrat, baño y terraza a cara sur con zona cerrada para lavadora. Todas las plantas estarán conectadas por una escalera de chapa plegada negra y sostenida con tirantes verticales, la cual otorgará una estética minimalista, elegante, funcional y atemporal al conjunto.Finalmente, cabe mencionar que el terreno se tasó en 88.836, 33€, por lo que el precio de venta, teniendo en cuenta que ya cuenta con todo el proyecto realizado resulta más que atractivo. Una vez se adquiera, sólo será necesaria la tramitación y obtención de la licencia para iniciar las obras con la constructora con la que se ha estado trabajando. En cuanto al desarrollo, control y gestión del proyecto, el comprador tendrá la opción de encargarse de supervisar la construcción del mismo, o bien de llegar a un acuerdo conmigo, dado que he estado involucrado en cada detalle. Gracias a mi profesión como ingeniero industrial, he podido participar en la toma de decisiones de cada paso, así como presentar propuestas que han permitido que el proyecto en cuestión haya llegado al nivel en el que se encuentra en estos momentos.El objetivo de tener la casa de tus sueños nunca había estado tan cerca ni había resultado tan fácil.

Merkmale der Immobilie

Complex information

  • Art der Immobilie
    Städtisch

Qualitätsbeschreibung

  • Heizung
    Erdgas

Eigenschaftsdaten

  • Designart
    Minimalistisch
  • Immobilientyp
    Gebraucht

Base

  • Wasserversorgung
    Ja
  • Zugangstyp
    Zugang über städtische Straße
  • Stromversorgung
    Ja
  • Anbauflächen
    Obstbäume
  • Nutzung des Grundstücks
    Wohnimmobilien

Facilities

Wohnungskomfort:

Vorratskammer
Innensichten
Terasse

Lieferung:

Mit Wasser
Mit Strom
Abwasserkanalisation

Im Gebäude:

Bar

In der Nähe von:

Río

Nutzungsart:

Wohnanlage

Zusätzliche Merkmale:

Öffentliche Beleuchtung
Aceras

Statistik der Marktpreise für Terreno en venta en calle Lluis Muncunill, 30

Karte

Barcelona, Ullastrell Zu diesem Ort gehen
Eine Bewertung über Terreno en venta en calle Lluis Muncunill, 30 abgeben
0
0 Bewertungen
1
0% (0)
2
0% (0)
3
0% (0)
4
0% (0)
5
0% (0)
76 650 €
Kontakt zum Inserenten

Für weitere Informationen kontaktieren Sie bitte die Plattform

REF: 28028

Bewertungen über Terreno en venta en calle Lluis Muncunill, 30
Loading...

No reviews have been left for this object yet

Nächstgelegene Objekte

Entdecken Sie nahegelegene Immobilien, die wir in unmittelbarer Nähe zu diesem Standort entdeckt haben

Terreno en venta en calle de l'Ordal

Barcelona, Corbera de Llobregat
85 000 €

se vende parcela de 794m2 es totalmente plana para construir vivienda, zona urba...

0
0 Bewertungen

Terreno en venta en calle de la Tossa d'Alp, 23

Barcelona, Corbera de Llobregat
60 000 €

En venta terreno situado en la Urbanización de Creu de Aregall, Corbera de Llobr...

0
0 Bewertungen

Terreno en venta en avenida Comte Ramón Berenguer

Barcelona, Santa Coloma de Cervelló
80 000 €

Presentamos terreno edificable de 500m², ubicado en Urb. Cesalpina en el término...

0
0 Bewertungen

Terreno en venta en calle de Josep Giner I Marco s/n

Valencia, Carlet
46 550 €

Sin comision de inmobiliaria!venta de parcela urbana residencial.

0
0 Bewertungen

Terreno en venta en Vallgorguina

Barcelona, Vallgorguina
21 000 €

Solar de 353m2 en la urbanización La Baronia del MontsenyEl solar descendiente t...

0
0 Bewertungen

Terreno en venta en carretera Cármenes, km 9

León, Villamanín
17 000 €

Finca edificable, llana y soleada situada en el centro de Villamanín de la terci...

0
0 Bewertungen

Terreno en venta en avenida de Finestrat

Alicante, La Villajoyosa / Vila Joiosa, El Secanet - Hacienda del Sol, Avenida de Finestrat
373 000 €

Suelo urbano de 1142 m² en Villajoyosa, el municipio costero de la provincia de...

0
0 Bewertungen

Terreno en venta en carretera Villacienzo, 1

Burgos, Villalbilla de Burgos
15 000 €

Se vende finca URBANA de 460 m2 en el pueblo de RENUNCIO. Esta situada dentro de...

0
0 Bewertungen

Terreno en venta en carretera Sevilla Alcalá, 1 j

Sevilla, Alcalá de Guadaira, La Paz - Montecarmelo, Carretera Sevilla Alcalá, 1 J
44 900 €

Dos terrenos industriales de 1.600 m2, en zona Venta de La Liebre (Alcalá de Gua...

0
0 Bewertungen

Wir verwenden eigene und Drittanbieter-Cookies, um die Nutzung der Website zu analysieren und Ihnen Werbung zu zeigen, die auf der Grundlage eines aus Ihren Surfgewohnheiten erstellten Profils mit Ihren Vorlieben übereinstimmt (z. B. besuchte Seiten). Mehr Informationen. Akzeptieren Sie Cookies?