Spanien Neubau Spanien Neubau Madrid Neubau Arroyomolinos Villa Europa III Chalet adosado en venta en calle San Fernando, 1

Verkauf eines Reihenhauses in Calle San Fernando, 1 , Arroyomolinos

Madrid, Arroyomolinos, Las Castañeras - Bulevar, Calle San Fernando, 1
Ausverkauf
Bewertung hinterlassen
Reihenhäuser Art der Immobilie
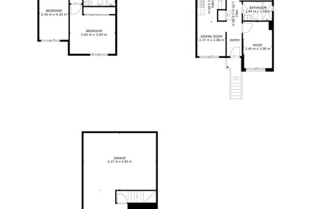
4 Schlafzimmer
2024 Übergabedatum
225 m² m² gebaut
3 Bäder
3 Etage
Chalets pareados y adosados con suelo refrigerado y calefactado por aerotermia, ventanas con vidrios bajo emisivos y garaje en planta sótano con cuarto lavadero. Fecha de entrega estimada Junio de 2024. Obras en curso. Con facilidades de pago.Cuentan con tres habitaciones más despacho o cuatro habitaciones, tres baños, cocina amueblada con horno, microondas y placa de inducción, comunicada con el salón por puerta corredera y salón amplio con acceso directo a la parcela sin escaleras. La construcción es de calidad, con ladrillo Blinker destonificado que requiere poco mantenimiento y suelo porcelánico en las estancias principales. Las ventanas son de PVC color gris antracita por fuera y blancas por dentro. La ubicación es excelente, entre la Calle Cádiz, San Fernando, Corcubión y la Avd. del Cantábrico, muy cerca del nuevo ambulatorio y de la zona de restaurantes y tiendas. La constructora tiene gran experiencia, nacida en 1971, y ha construido en Arroyomolinos: Villa Europa l y II, Los Altos del Pinar y en Navalcarnero: Las Terrazas del Pinar o el Pinar de Navalcarnero, l, II, III y IV. Las fotos adjuntas son de chalets pareados de la promoción Villa Europa Il. En la nueva promoción, los chalets pareados o adosados son similares, pero pueden haber algunas diferencias. Consulte los planos comerciales y la memoria de calidades para más información.

Merkmale der Immobilie

Complex information

  • Wohnanlage
    Villa Europa III
  • Art der Immobilie
    Reihenhäuser

Projektinformationen / Bauzustand

  • Übergabedatum
    2024

Eigenschaftsdaten

  • Etage
    3
  • Schlafzimmer
    4
  • Bäder
    3
  • m² gebaut
    225 m²
  • Immobilientyp
    Neubau
  • Möbel
    Mit Möbeln

Facilities

Wohnungskomfort:

Terasse

Im Gebäude:

Spa

Statistik der Marktpreise für Chalet adosado en venta en calle San Fernando, 1

Karte

Madrid, Arroyomolinos, Las Castañeras - Bulevar, Calle San Fernando, 1 Zu diesem Ort gehen
Eine Bewertung über Chalet adosado en venta en calle San Fernando, 1 abgeben
0
0 Bewertungen
1
0% (0)
2
0% (0)
3
0% (0)
4
0% (0)
5
0% (0)
Dorotea Hills
Villa Europa III
Wohnanlage
Ausverkauf
Kontakt zum Inserenten

Für weitere Informationen kontaktieren Sie bitte die Plattform

REF: 24294

Bewertungen über Chalet adosado en venta en calle San Fernando, 1
Loading...

No reviews have been left for this object yet

Nächstgelegene Objekte

Entdecken Sie nahegelegene Immobilien, die wir in unmittelbarer Nähe zu diesem Standort entdeckt haben

Adosados en Venta en Calle Estrella Polar s/n, Móstoles

Madrid, Móstoles, Sur, Calle Estrella Polar s/n
450 000 €

LICENCIA CONCEDIDA. OBRA INICIADADescubre tu nuevo chalet en Caelia III y disfru...

0
0 Bewertungen

Pareados en Venta en Calle Estrella Polar s/n, Móstoles

Madrid, Móstoles, Sur, Calle Estrella Polar s/n
525 000 €

LICENCIA CONCEDIDA. OBRA INICIADADescubre tu nuevo chalet en Caelia III y disfru...

0
0 Bewertungen

Adosados en Venta en Calle Estrella Polar s/n, Móstoles

Madrid, Móstoles, Sur, Calle Estrella Polar s/n
538 000 €

LICENCIA CONCEDIDA. OBRA INICIADADescubre tu nuevo chalet en Caelia III y disfru...

0
0 Bewertungen

Adosados en Venta en Calle Estrella Polar s/n, Móstoles

Madrid, Móstoles, Sur, Calle Estrella Polar s/n
478 000 €

LICENCIA CONCEDIDA. OBRA INICIADADescubre tu nuevo chalet en Caelia III y disfru...

0
0 Bewertungen

Adosados en Venta en Calle Estrella Polar s/n, Móstoles

Madrid, Móstoles, Sur, Calle Estrella Polar s/n
475 000 €

LICENCIA CONCEDIDA. OBRA INICIADADescubre tu nuevo chalet en Caelia III y disfru...

0
0 Bewertungen

Obra nueva Móstoles en Móstoles

Madrid, Móstoles, Sur, Calle Geminis s/n
490 000 €

TRINOSA pone a la venta su nueva promoción de VENTA LIBRE Y PRECIO CERRADO, de v...

0
0 Bewertungen

Obra nueva Móstoles en Móstoles

Madrid, Móstoles, Sur, Calle Geminis s/n
560 000 €

TRINOSA pone a la venta su nueva promoción de VENTA LIBRE Y PRECIO CERRADO, de v...

0
0 Bewertungen

Obra nueva Móstoles en Móstoles

Madrid, Móstoles, Sur, Calle Geminis s/n
520 000 €

TRINOSA pone a la venta su nueva promoción de VENTA LIBRE Y PRECIO CERRADO, de v...

0
0 Bewertungen

Obra nueva Móstoles en Móstoles

Madrid, Móstoles, Sur, Calle Geminis s/n
530 000 €

TRINOSA pone a la venta su nueva promoción de VENTA LIBRE Y PRECIO CERRADO, de v...

0
0 Bewertungen

Wir verwenden eigene und Drittanbieter-Cookies, um die Nutzung der Website zu analysieren und Ihnen Werbung zu zeigen, die auf der Grundlage eines aus Ihren Surfgewohnheiten erstellten Profils mit Ihren Vorlieben übereinstimmt (z. B. besuchte Seiten). Mehr Informationen. Akzeptieren Sie Cookies?