Verkauf einer Wohnung in Avenida Severo Ochoa s/n, Colmenar Viejo

Madrid, Colmenar Viejo, San Crispín - La Estación Consorcio, Avenida Severo Ochoa s/n
Ausverkauf
Bewertung hinterlassen
Wohnungen Art der Immobilie
2022 Übergabedatum
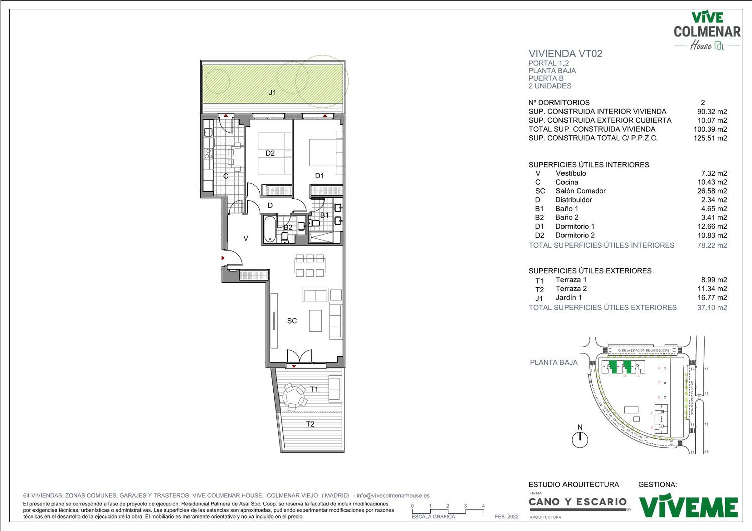
125 m² m² gebaut
2 Bäder
2 Schlafzimmer
In Bau Bundesland
Fußbodenheizung Heizung
ÚLTIMAS VIVIENDAS DE 2 Y 3 DORMITORIOS CON TERRAZA Y AMPLIAS ZONAS COMUNESOBRAS INICIADAS AGOSTO 2022CANTIDADES AVALADAS Y FORMA DE PAGO PERSONALIZADAEn el barrio de la Estación de Colmenar Viejo se ubica VIVE Colmenar House, promoción que cuenta con la parcela en propiedad y para tu seguridad todas las cantidades están avaladas por Ibercaja desde el primer pago. Es una promoción de 64 viviendas libres de 2, 3 y 4 dormitorios con magníficos áticos con terraza y bajos con jardín. Todas las viviendas son exteriores con doble orientación y cuentan con amplias terrazas, además de plazas de garaje y trastero.La cocina está amueblada y entre algunas de sus calidades destacan el suelo de tarima, armarios empotrados, video portero, puerta blindada, etc. Un proyecto de arquitectura moderno, realizado por el prestigioso estudio de arquitectura CANO Y ESCARIO, que destaca por su apuesta por el medio ambiente y el ahorro energético para lograr la máxima calificación energética. Cuenta con: fachada tipo SATE, aerotermia, doble acristalamiento y suelo radiante y refrescante. Todo ello para conseguir una alta calificación energética.Un hogar para desconectar de todoSin salir de la urbanización podrás disfrutar de tu tiempo libre en unas inmejorables zonas comunes: piscina salina de adultos e infantil, zonas verdes, zona de juegos infantiles, gimnasio, espacio coworking, local comunitario y gastrobar. Ubicación privilegiadaUn entorno, a los pies de la Sierra de Guadarrama, con todos los servicios que necesitas muy cerca de ti.Una zona muy bien comunicada con Madrid por la autovía M-607, dispone además de una red de transporte público que conecta con la capital mediante tren de Cercanías y varias líneas de autobuses.Además, podrás disfrutar de espacios deportivos como la Ciudad deportiva Juan Antonio Samaranch. Anímate a conocer tu nuevo hogar. Llámanos y reserva una visita con nuestro comercial.

Merkmale der Immobilie

Complex information

  • Wohnanlage
    Vive Colmenar House
  • Art der Immobilie
    Wohnungen

Projektinformationen / Bauzustand

  • Übergabedatum
    2022
  • Bundesland
    In Bau

Qualitätsbeschreibung

  • Heizung
    Fußbodenheizung

Eigenschaftsdaten

  • Schlafzimmer
    2
  • Bäder
    2
  • m² gebaut
    125 m²
  • Immobilientyp
    Neubau
  • Möbel
    Mit Möbeln

Facilities

Wohnungskomfort:

Einbauschränke
Lagerraum
Außenfenster
Terasse

Im Gebäude:

Schwimmbad
Aufzug
Fitnessstudio
Sicherheit
Videoportier
Bar
Spa
Kinderbereich
Gärten Zonen
Abstellraum
Grüne Zonen
Garten

Statistik der Marktpreise für Piso en venta en avenida Severo Ochoa s/n

281 581 € (3 418 €/m2)
Durchschnittspreis für primäre Wohnungen in der Stadt Colmenar Viejo
399 853 € (3 266 €/m2)
Durchschnittspreis für primäre Wohnungen im Bezirk San Crispín - La Estación Consorcio

Karte

Madrid, Colmenar Viejo, San Crispín - La Estación Consorcio, Avenida Severo Ochoa s/n Zu diesem Ort gehen
Eine Bewertung über Piso en venta en avenida Severo Ochoa s/n abgeben
0
0 Bewertungen
1
0% (0)
2
0% (0)
3
0% (0)
4
0% (0)
5
0% (0)
Ausverkauf
Kontakt zum Inserenten

Für weitere Informationen kontaktieren Sie bitte die Plattform

REF: 15342

Bewertungen über Piso en venta en avenida Severo Ochoa s/n
Loading...

No reviews have been left for this object yet

Nächstgelegene Objekte

Entdecken Sie nahegelegene Immobilien, die wir in unmittelbarer Nähe zu diesem Standort entdeckt haben

Obra nueva Mendoza en Colmenar Viejo

Madrid, Colmenar Viejo, San Crispín - La Estación Consorcio, Calle Orient Express, 12
423 100 €

es una magnífica promoción de viviendas de 2, 3 y 4 dormitorios. Ubicada en la...

0
0 Bewertungen

Apartamentos en Venta en Calle del Orient Express, Colmenar Viejo

Madrid, Colmenar Viejo, San Crispín - La Estación Consorcio, Calle del Orient Express
439 900 €

La promoción se encuentra en la zona de la Estación de Colmenar Viejo. Considera...

0
0 Bewertungen

Apartamentos en Venta en Calle del Orient Express, Colmenar Viejo

Madrid, Colmenar Viejo, San Crispín - La Estación Consorcio, Calle del Orient Express
423 100 €

La promoción se encuentra en la zona de la Estación de Colmenar Viejo. Considera...

0
0 Bewertungen

Obra nueva Suelo,CL Orient Express 10-colmenar Viej en Colmenar Viejo

Madrid, Colmenar Viejo, San Crispín - La Estación Consorcio, Calle del Orient Express
432 100 €

La promoción se encuentra en la zona de la Estación de Colmenar Viejo. Considera...

0
0 Bewertungen

Obra nueva Suelo,CL Orient Express 10-colmenar Viej en Colmenar Viejo

Madrid, Colmenar Viejo, San Crispín - La Estación Consorcio, Calle del Orient Express
423 100 €

La promoción se encuentra en la zona de la Estación de Colmenar Viejo. Considera...

0
0 Bewertungen

Obra nueva Suelo,CL Orient Express 10-colmenar Viej en Colmenar Viejo

Madrid, Colmenar Viejo, San Crispín - La Estación Consorcio, Calle del Orient Express
498 200 €

La promoción se encuentra en la zona de la Estación de Colmenar Viejo. Considera...

0
0 Bewertungen

Obra nueva Colmenar Class I en Colmenar Viejo

Madrid, Colmenar Viejo, San Crispín - La Estación Consorcio, Avenida Severo Ochoa, 4
350 000 €

ÚLTIMA VIVIENDA DISPONIBLELa promoción se sitúa en el sector de la estación, un...

3
0 Bewertungen

Obra nueva Las Terrazas de Colmenar Green en Colmenar Viejo

Madrid, Colmenar Viejo, San Crispín - La Estación Consorcio, Calle Ave, 2
367 284 €

ÚLTIMA VIVIENDA DISPONIBLE. Obras iniciadas., vive como siempre habías soñado.Si...

0
0 Bewertungen

Obra nueva El Viso de Colmenar en Colmenar Viejo

Madrid, Colmenar Viejo, San Crispín - La Estación Consorcio, Calle del Ave, 2
360 500 €

OBRAS INICIADAS¡Nueva promoción de viviendas! Excelente complejo residencial sit...

0
0 Bewertungen

Wir verwenden eigene und Drittanbieter-Cookies, um die Nutzung der Website zu analysieren und Ihnen Werbung zu zeigen, die auf der Grundlage eines aus Ihren Surfgewohnheiten erstellten Profils mit Ihren Vorlieben übereinstimmt (z. B. besuchte Seiten). Mehr Informationen. Akzeptieren Sie Cookies?