Verkauf einer unabhängigen Chalet in Calle Gabriel Escobar s/n, Benalmádena

Malaga, Benalmádena, Benalmádena Pueblo, Calle Gabriel Escobar s/n
195 000 €
1 083 € / m2
Bewertung hinterlassen
Einfamilienhaus Art der Immobilie
180 m² m² gebaut
2 Bäder
3 Schlafzimmer
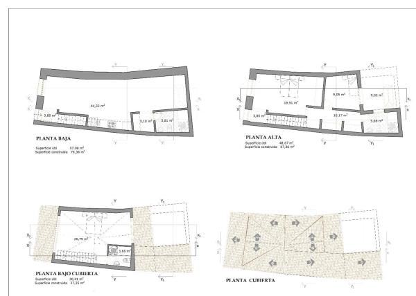
¡Oportunidad única para crear la casa de tus sueños en una de las zonas más deseadas de Benalmádena Pueblo! Esta propiedad ofrece un proyecto aprobado para la construcción de una moderna vivienda de 180 m², diseñada para disfrutar de la tranquilidad y el encanto del pueblo. El proyecto contempla una casa de 3 plantas con: Planta baja: Amplio salón, cocina y aseo. Primera planta: 2 dormitorios y 1 baño. Buhardilla: Dormitorio adicional con baño privado. La casa actual está lista para ser derribada, con permiso de demolición ya abonado y el proyecto arquitectónico visado incluido en el precio. Esto te brinda la posibilidad de personalizar cada detalle de la construcción según tu gusto. Situada en una zona icónica por sus casas blancas y calles empedradas, esta propiedad combina la esencia del pueblo tradicional con las comodidades de un hogar contemporáneo. Vive rodeado de la historia y belleza de Benalmádena Pueblo, y crea tu refugio perfecto en el sur. No dejes escapar esta oportunidad única de invertir en una propiedad con un proyecto a medida en una de las áreas más codiciadas de la Costa del Sol.

Merkmale der Immobilie

Complex information

  • Art der Immobilie
    Einfamilienhaus

Eigenschaftsdaten

  • Schlafzimmer
    3
  • Bäder
    2
  • m² gebaut
    180 m²
  • Immobilientyp
    Gebraucht

Statistik der Marktpreise für Chalet adosado en calle Gabriel Escobar s/n

Karte

Malaga, Benalmádena, Benalmádena Pueblo, Calle Gabriel Escobar s/n Zu diesem Ort gehen
Eine Bewertung über Chalet adosado en calle Gabriel Escobar s/n abgeben
0
0 Bewertungen
1
0% (0)
2
0% (0)
3
0% (0)
4
0% (0)
5
0% (0)
195 000 €
von 1 083 € / m2
Kontakt zum Inserenten

Für weitere Informationen kontaktieren Sie bitte die Plattform

REF: 153732

Bewertungen über Chalet adosado en calle Gabriel Escobar s/n
Loading...

No reviews have been left for this object yet

Nächstgelegene Objekte

Entdecken Sie nahegelegene Immobilien, die wir in unmittelbarer Nähe zu diesem Standort entdeckt haben

Chalet independiente en Venta en Calle Abubilla, 88, Benalmádena

Malaga, Benalmádena, Santangelo, Calle Abubilla, 88
1 500 000 €

 Wir stellen vor: "La Roca" - Ihre Villa im Bau in Benalmádena Auf einer he...

0
0 Bewertungen

Chalet independiente en Venta en Avenida Del Higuerón, 21, Benalmádena

Malaga, Benalmádena, El Higuerón - Capellanía, Avenida Del Higuerón, 21
3 250 000 €

Diese Luxus-Villa bietet ein innovatives Design mit klaren Linien und High-Tech....

0
0 Bewertungen

Chalet independiente en Venta en Terreno SP-2 Santangelo norte, 124, Benalmádena

Malaga, Benalmádena, Santangelo, Terreno SP-2 Santangelo norte, 124
1 250 000 €

Wir präsentieren eine moderne andalusische Villa im Bau - Bereit zur Lieferung i...

0
0 Bewertungen

Obra nueva Higueron West Villas en Fuengirola

Malaga, Fuengirola, Las Gaviotas, Calle Begoña s/n
1 500 000 €

  sind acht brandneue Häuser mit spektakulärer Architektur, die in der best...

0
0 Bewertungen

Obra nueva Higueron West Villas en Fuengirola

Malaga, Fuengirola, Las Gaviotas, Calle Begoña s/n
1 575 000 €

  sind acht brandneue Häuser mit spektakulärer Architektur, die in der best...

0
0 Bewertungen

Obra nueva Higueron West Villas en Fuengirola

Malaga, Fuengirola, Las Gaviotas, Calle Begoña s/n
1 950 000 €

  sind acht brandneue Häuser mit spektakulärer Architektur, die in der best...

0
0 Bewertungen

Obra nueva Higueron West Villas en Fuengirola

Malaga, Fuengirola, Las Gaviotas, Calle Begoña s/n
1 600 000 €

  sind acht brandneue Häuser mit spektakulärer Architektur, die in der best...

0
0 Bewertungen

Chalet independiente en Venta en Calle Jilguero, 24, Fuengirola

Malaga, Fuengirola, Torreblanca del Sol, Calle Jilguero, 24
720 186 €

 ÖKOLOGISCHE VILLEN MIT BLICK AUF DAS MEER IN FUENGIROLA - Baubeginn im Feb...

0
0 Bewertungen

Chalet independiente en Venta en Calle Jilguero, 24, Fuengirola

Malaga, Fuengirola, Torreblanca del Sol, Calle Jilguero, 24
783 696 €

 ÖKOLOGISCHE VILLEN MIT BLICK AUF DAS MEER IN FUENGIROLA - Baubeginn im Feb...

0
0 Bewertungen

Wir verwenden eigene und Drittanbieter-Cookies, um die Nutzung der Website zu analysieren und Ihnen Werbung zu zeigen, die auf der Grundlage eines aus Ihren Surfgewohnheiten erstellten Profils mit Ihren Vorlieben übereinstimmt (z. B. besuchte Seiten). Mehr Informationen. Akzeptieren Sie Cookies?