Verkauf einer Wohnung in Benamara - Atalaya , Estepona

Malaga, Estepona, Benamara - Atalaya
Ausverkauf
Bewertung hinterlassen
Wohnungen Art der Immobilie
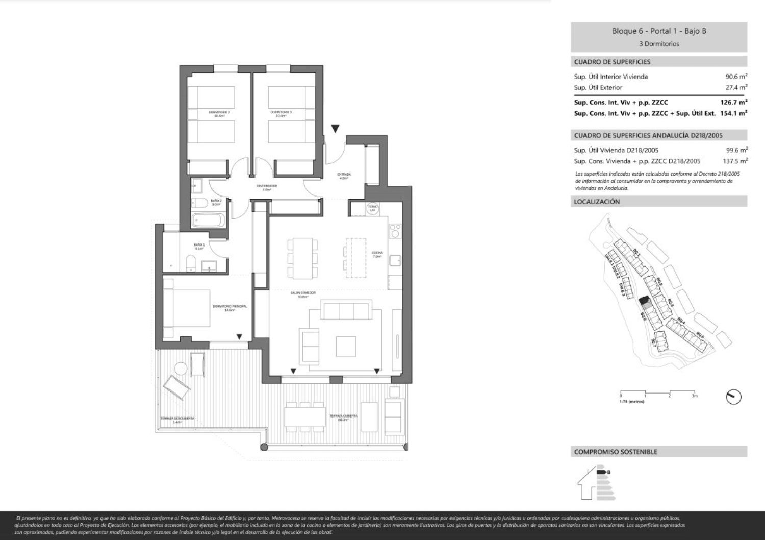
127 m² m² gebaut
2 Bäder
3 Schlafzimmer

Exklusive Mehrfamilienhäuser mit 2 und 3 Schlafzimmern in der privilegierten Umgebung der Goldenen Meile von Estepona.

Die Häuser verfügen über geräumige Terrassen nach Südwesten. Diese Entwicklung kombiniert hochwertige Ausführungen, großzügige Innen- und Außenbereiche sowie Nachhaltigkeit, mit dem DOMUM-Siegel.

Die avantgardistische Architektur wird durch die Gemeinschaftsbereiche mit einem Außenpool, einem Coworking-Bereich, einem ausgestatteten Fitnessstudio, einem Sportbereich, zwei Bouleplätzen und einem Radweg ergänzt. Darüber hinaus haben die Eigentümer dieses Wohnkomplexes Zugang zum exklusiven Santa Vista Club, der eine Vielzahl von Freizeiteinrichtungen und Dienstleistungen bietet.

Merkmale der Immobilie

Complex information

  • Wohnanlage
    Nueva Milla De Oro
  • Art der Immobilie
    Wohnungen

Eigenschaftsdaten

  • Schlafzimmer
    3
  • Bäder
    2
  • m² gebaut
    127 m²
  • Immobilientyp
    Neubau

Energieausweis

  • Energiezertifikat
    A

Facilities

Wohnungskomfort:

Lagerraum
Innensichten
Außenfenster
Terasse

Im Gebäude:

Schwimmbad
Garage
Aufzug
Fitnessstudio
Golfplatz
Spa
Abstellraum

Staat:

Neubau

Statistik der Marktpreise für Piso en venta en Cancelada

592 925 € (4 382 €/m2)
Durchschnittspreis für primäre Wohnungen in der Stadt Estepona
731 863 € (5 624 €/m2)
Durchschnittspreis für sekundäre Wohnungen in der Stadt Estepona
618 125 € (4 128 €/m2)
Durchschnittspreis für primäre Wohnungen im Bezirk Benamara - Atalaya
810 115 € (6 058 €/m2)
Durchschnittspreis für sekundäre Wohnungen im Bezirk Benamara - Atalaya

Karte

Malaga, Estepona, Benamara - Atalaya Zu diesem Ort gehen
Eine Bewertung über Piso en venta en Cancelada abgeben
0
0 Bewertungen
1
0% (0)
2
0% (0)
3
0% (0)
4
0% (0)
5
0% (0)
Ausverkauf
Kontakt zum Inserenten

Für weitere Informationen kontaktieren Sie bitte die Plattform

REF: 5301

Bewertungen über Piso en venta en Cancelada
Loading...

No reviews have been left for this object yet

Nächstgelegene Objekte

Entdecken Sie nahegelegene Immobilien, die wir in unmittelbarer Nähe zu diesem Standort entdeckt haben

Apartamentos en Venta en Calle pico Alcazaba s/n, Estepona

Malaga, Estepona, Benamara - Atalaya, Calle pico Alcazaba s/n
535 000 €

 Beginnen Sie ein neues Leben voller Emotionen. Diese beeindruckende Wohnan...

0
0 Bewertungen

Apartamentos en Venta en Calle pico Alcazaba s/n, Estepona

Malaga, Estepona, Benamara - Atalaya, Calle pico Alcazaba s/n
512 000 €

 Beginnen Sie ein neues Leben voller Emotionen. Diese beeindruckende Wohnan...

0
0 Bewertungen

Apartamentos en Venta en Calle pico Alcazaba s/n, Estepona

Malaga, Estepona, Benamara - Atalaya, Calle pico Alcazaba s/n
695 000 €

 Beginnen Sie ein neues Leben voller Emotionen. Diese beeindruckende Wohnan...

0
0 Bewertungen

Apartamentos en Venta en Calle pico Alcazaba s/n, Estepona

Malaga, Estepona, Benamara - Atalaya, Calle pico Alcazaba s/n
716 000 €

 Beginnen Sie ein neues Leben voller Emotionen. Diese beeindruckende Wohnan...

0
0 Bewertungen

Apartamentos en Venta en Calle pico Alcazaba s/n, Estepona

Malaga, Estepona, Benamara - Atalaya, Calle pico Alcazaba s/n
570 000 €

 Beginnen Sie ein neues Leben voller Emotionen. Diese beeindruckende Wohnan...

0
0 Bewertungen

Apartamentos en Venta en Calle pico Alcazaba s/n, Estepona

Malaga, Estepona, Benamara - Atalaya, Calle pico Alcazaba s/n
791 000 €

 Beginnen Sie ein neues Leben voller Emotionen. Diese beeindruckende Wohnan...

0
0 Bewertungen

Apartamentos en Venta en Calle pico Alcazaba s/n, Estepona

Malaga, Estepona, Benamara - Atalaya, Calle pico Alcazaba s/n
514 000 €

 Beginnen Sie ein neues Leben voller Emotionen. Diese beeindruckende Wohnan...

0
0 Bewertungen

Apartamentos en Venta en Calle pico Alcazaba s/n, Estepona

Malaga, Estepona, Benamara - Atalaya, Calle pico Alcazaba s/n
552 000 €

 Beginnen Sie ein neues Leben voller Emotionen. Diese beeindruckende Wohnan...

0
0 Bewertungen

Neubauprojekt Atalaya Emotion von Tm in Estepona.

Malaga, Estepona, Benamara - Atalaya, Calle pico Alcazaba s/n
767 000 €

Dieses spektakuläre Wohnanlage in Málaga bietet luxuriöse 3-Zimmer-Wohnungen m...

0
0 Bewertungen

Wir verwenden eigene und Drittanbieter-Cookies, um die Nutzung der Website zu analysieren und Ihnen Werbung zu zeigen, die auf der Grundlage eines aus Ihren Surfgewohnheiten erstellten Profils mit Ihren Vorlieben übereinstimmt (z. B. besuchte Seiten). Mehr Informationen. Akzeptieren Sie Cookies?