Spanien Häuser Spanien Häuser Malaga Häuser Marbella Casa independiente en calle Wagner, 12 p

Neubau Casa independiente en calle Wagner, 12 p in Marbella

Malaga, Marbella, Nagüeles-Milla de Oro, Calle Wagner, 12 P
17 900 000 €
14 917 € / m2
Bewertung hinterlassen
2020 Übergabedatum
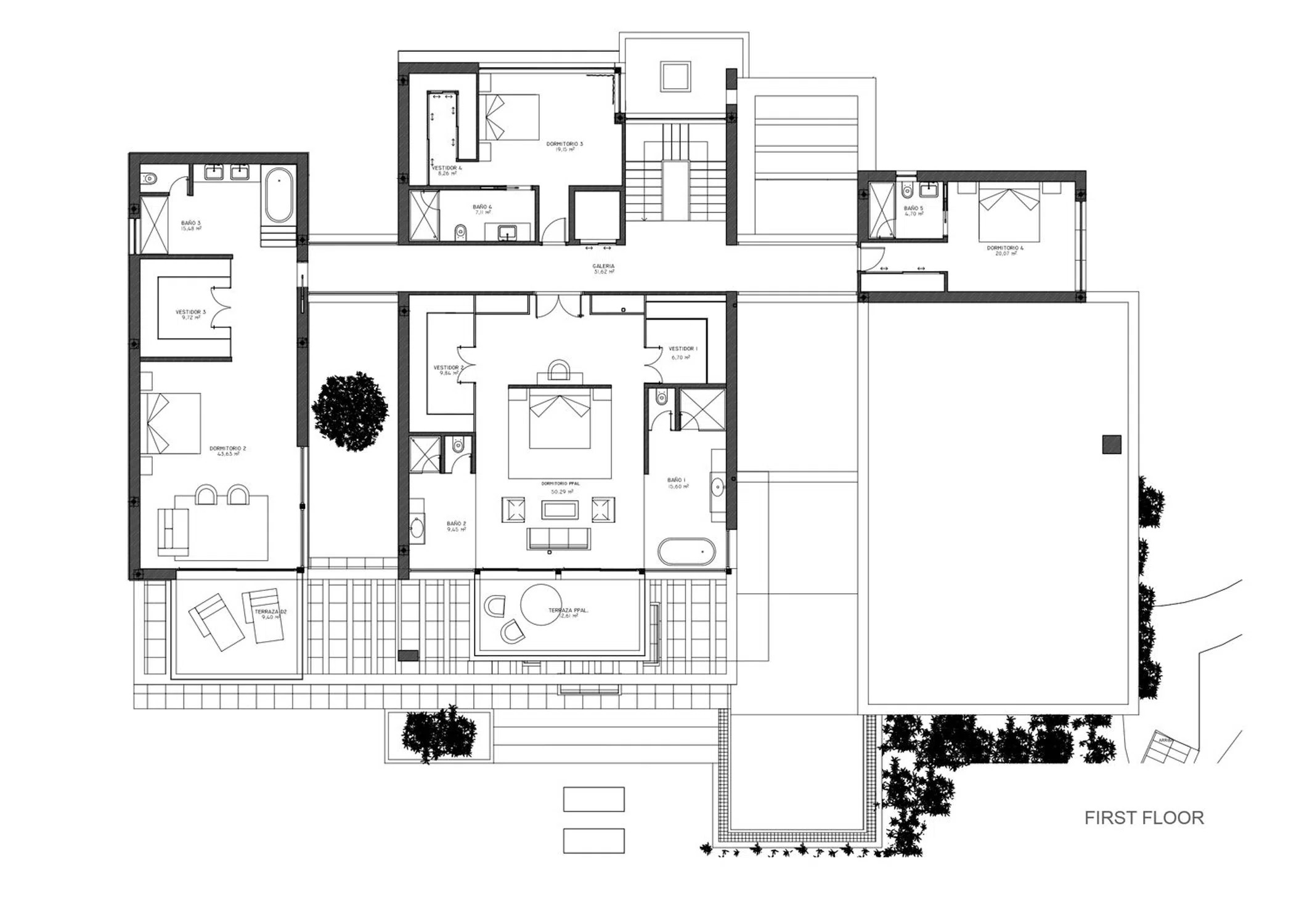
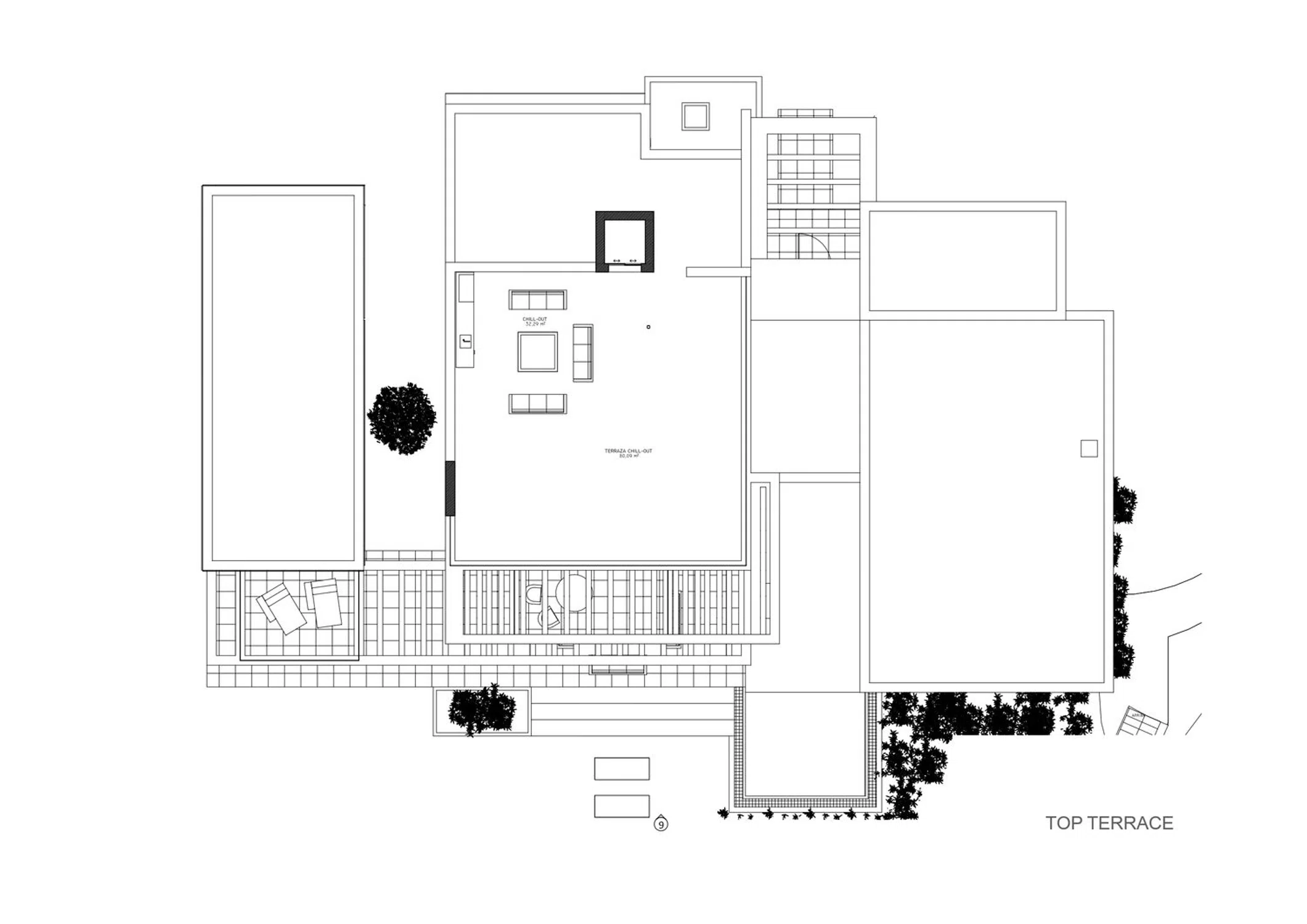
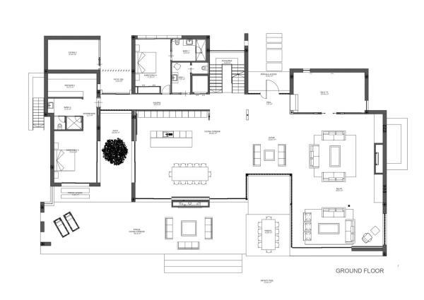
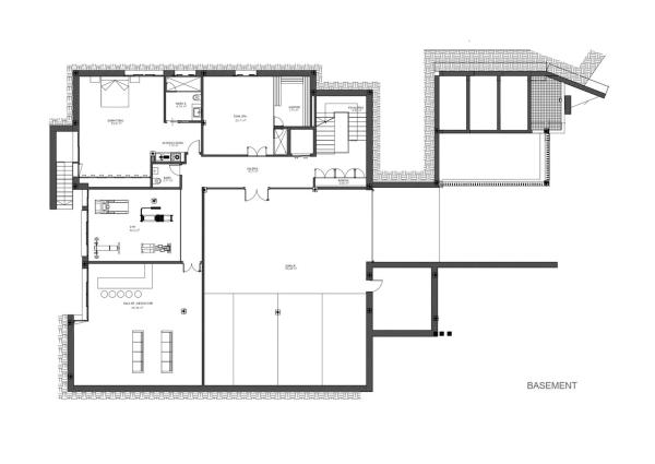
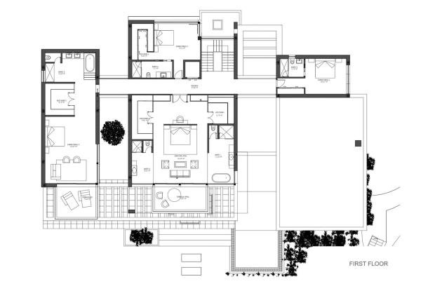
1 200 m² m² gebaut
2 592 m² Grundstücksfläche
8 Bäder
7 Schlafzimmer
Im Preis inbegriffen Garage
Guter Zustand Immobilienstatus
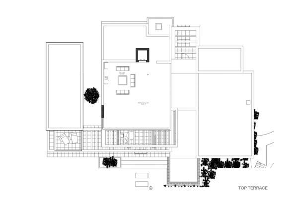
Ubicada en la exclusiva comunidad cerrada de Sierra Blanca, Rossini 13 ofrece privacidad, seguridad y vistas panorámicas al mar que se extienden hasta Gibraltar y la costa africana. Esta villa de nueva construcción, equipada con tecnología inteligente, combina una arquitectura vanguardista con comodidades de última generación, a solo minutos de la Milla de Oro de Marbella. Distribuida en tres niveles, la villa cuenta con una zona de estar de concepto abierto, techos de doble altura y ventanales de suelo a techo que enmarcan el Mediterráneo. La cocina SieMatic está totalmente equipada con electrodomésticos Wolf y SubZero, una isla central y un amplio comedor. La suite principal presume de impresionantes vistas al mar, vestidor y un lujoso baño en suite, mientras que los dormitorios adicionales ofrecen confort y estilo. La planta baja alberga un cine, bar, gimnasio, spa oculto y un apartamento independiente para el personal, además de un garaje con capacidad para cinco coches. Rodeada de jardines paisajísticos, la propiedad presenta elementos de agua de estilo balinés, plantas tropicales y toques andaluces, como limoneros y olivos. Una piscina infinita y amplias terrazas con zona de barbacoa y cocina exterior crean el escenario perfecto para el entretenimiento durante todo el año en la zona residencial más exclusiva de Marbella.

Hervorgehobene Aktionen in Spanien

10 Einheiten

Nature Views 2

Alicante, Torrevieja, Los Balcones - Los Altos del Edén, Denia s/n
310 000 € - 379 000 €
1 Einheiten

Hotel en venta en Benidorm centro

Alicante, Benidorm, Playa de Poniente
2 250 000 € - 2 250 000 €
28 Einheiten

Residencial Los Balcones De Calpe

Alicante, Kalpe, Calpe Pueblo, Avenida de Madrid, 1
299 000 € - 892 125 €
4 Einheiten

Nature Views

Alicante, Torrevieja, Lago Jardín II, Avenida Denia s/n
309 000 € - 330 000 €
5 Einheiten

ALONIS VILLAS

Alicante, La Villajoyosa / Vila Joiosa, Platja de Torres, Partida Torres s/n
675 000 € - 775 000 €
1 Einheiten

Residencial Royal Beach

Alicante, Guardamar del Segura, Dorf, Miguel Hernández 102
349 500 € - 349 500 €
7 Einheiten

Royal Star

Alicante, Guardamar del Segura
229 500 € - 269 500 €

Merkmale der Immobilie

Complex information

Projektinformationen / Bauzustand

  • Übergabedatum
    2020
  • Immobilienstatus
    Guter Zustand

Eigenschaftsdaten

  • Garage
    Im Preis inbegriffen
  • Schlafzimmer
    7
  • Bäder
    8
  • m² gebaut
    1 200 m²
  • Immobilientyp
    Gebraucht

Flächen

  • Grundstücksfläche
    2 592 m²

Base

Energieausweis

  • Zustand des Energiezertifikats
    In Bearbeitung

Facilities

Wohnungskomfort:

Klimaanlage
Terasse

Im Gebäude:

Schwimmbad
Garten
Privater Parkplatz

Staat:

Guter Zustand

Statistik der Marktpreise für Casa independiente en calle Wagner, 12 p

3 814 213 € (7 123 €/m2)
Durchschnittspreis für primäre in der Stadt Marbella
3 587 203 € (7 374 €/m2)
Durchschnittspreis für sekundäre in der Stadt Marbella

Karte

Malaga, Marbella, Nagüeles-Milla de Oro, Calle Wagner, 12 P Zu diesem Ort gehen
Eine Bewertung über Casa independiente en calle Wagner, 12 p abgeben
0
0 Bewertungen
1
0% (0)
2
0% (0)
3
0% (0)
4
0% (0)
5
0% (0)
Solvilla
17 900 000 €
von 14 917 € / m2
Kontakt zum Inserenten

Für weitere Informationen kontaktieren Sie bitte die Plattform

REF: 457590

Bewertungen über Casa independiente en calle Wagner, 12 p
Loading...

No reviews have been left for this object yet

Nächstgelegene Objekte

Entdecken Sie nahegelegene Immobilien, die wir in unmittelbarer Nähe zu diesem Standort entdeckt haben

Pareados en Venta en Calle Liszt s/n, Marbella

Malaga, Marbella, Nagüeles-Milla de Oro, Calle Liszt s/n
5 650 000 €

Una colección de seis exclusivas villas de lujo con vistas panorámicas en la Mil...

0
0 Bewertungen

Pareados en Venta en Calle Liszt s/n, Marbella

Malaga, Marbella, Nagüeles-Milla de Oro, Calle Liszt s/n
5 850 000 €

Una colección de seis exclusivas villas de lujo con vistas panorámicas en la Mil...

0
0 Bewertungen

Pareados en Venta en Calle Liszt s/n, Marbella

Malaga, Marbella, Nagüeles-Milla de Oro, Calle Liszt s/n
5 750 000 €

Una colección de seis exclusivas villas de lujo con vistas panorámicas en la Mil...

0
0 Bewertungen

Pareados en Venta en Calle Liszt s/n, Marbella

Malaga, Marbella, Nagüeles-Milla de Oro, Calle Liszt s/n
8 900 000 €

Una colección de seis exclusivas villas de lujo con vistas panorámicas en la Mil...

0
0 Bewertungen

Chalet independiente en Venta en Calle Saucos, 211, Marbella

Malaga, Marbella, Nueva Andalucía, Calle Saucos, 211
2 100 000 €

Brandneue Villa derzeit im Bau mit Südausrichtung in zentraler Lage von Nueva An...

0
0 Bewertungen

Obra nueva Villa en Nueva Andalucía en Marbella

Malaga, Marbella, Nueva Andalucía
1 595 000 €

Villa de lujo en Marbella.

0
0 Bewertungen

Chalet independiente en Venta en Urb. Golf Río Real s/n, Marbella

Malaga, Marbella, Rio Real-Los Monteros, Urb. Golf Río Real s/n
2 900 000 €

Ubicadas en Rio Real Golf, Marbella Este, lindando con el proyecto de lujo Four...

0
0 Bewertungen

Chalet independiente en Venta en Urb. Golf Río Real s/n, Marbella

Malaga, Marbella, Rio Real-Los Monteros, Urb. Golf Río Real s/n
4 500 000 €

Ubicadas en Rio Real Golf, Marbella Este, lindando con el proyecto de lujo Four...

0
0 Bewertungen

Chalet independiente en Venta en Urb. Golf Río Real s/n, Marbella

Malaga, Marbella, Rio Real-Los Monteros, Urb. Golf Río Real s/n
4 200 000 €

Ubicadas en Rio Real Golf, Marbella Este, lindando con el proyecto de lujo Four...

0
0 Bewertungen
Aufruf

Wir verwenden eigene und Drittanbieter-Cookies, um die Nutzung der Website zu analysieren und Ihnen Werbung zu zeigen, die auf der Grundlage eines aus Ihren Surfgewohnheiten erstellten Profils mit Ihren Vorlieben übereinstimmt (z. B. besuchte Seiten). Mehr Informationen. Akzeptieren Sie Cookies?