Verkauf einer unabhängigen Chalet in Calle Guarás, Mijas

Malaga, Mijas, Calaburra - Chaparral, Calle Guarás
1 380 000 €
4 286 € / m2
Bewertung hinterlassen
Einfamilienhaus Art der Immobilie
4 Schlafzimmer
322 m² m² gebaut
3 Bäder
Ausstattung Küchenausstattung
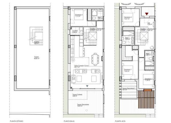
**Moderna villa con vistas al mar y al golf en Mijas, a solo 15 minutos de la playa** ¡Descubre esta impresionante villa de lujo de nueva construcción que ofrece impresionantes vistas al mar y al golf! Situada justo al lado del campo de golf El Chaparral, ¡está a solo un agradable paseo de 15 minutos de la playa! Ubicada en una hermosa comunidad cerrada, tendrás acceso a fantásticas comodidades como piscina, gimnasio, espacio de coworking y mucho más. **Ubicación Ideal: ** - A solo 25 minutos del Aeropuerto de Málaga - A solo 10 minutos de la Estación de Tren de Fuengirola - 40 minutos del bullicioso corazón de Málaga - A solo 23 minutos en coche de la glamorosa Marbella - A solo 30 minutos del vibrante Puerto Banús **La Propiedad: ** Esta fabulosa villa de 4 dormitorios cuenta con un amplio sótano de 68m² con infinitas posibilidades—imagina un gimnasio, cine en casa, sala de juegos o lo que desees. En la planta baja, encontrarás un baño completo, un dormitorio, una cocina totalmente equipada y una amplia sala de estar que se abre a una generosa terraza y jardín. Posibilidad de añadir una piscina si deseas llevar tu lujo al siguiente nivel (con un coste adicional). En la planta superior, hay 2 dormitorios que comparten un baño, además de otro dormitorio con su propio baño privado y terraza. Con una estratégica orientación sur, podrás disfrutar de esas increíbles vistas al mar y al golf todos los días. Este hogar de ensueño es perfecto para cualquiera que busque una combinación de conveniencia y tranquilidad. Es un oasis verde a poca distancia de la playa y a solo 5 minutos en coche de todas las comodidades locales que puedas necesitar. No dejes pasar esta fantástica oportunidad—¡esta es tu oportunidad de vivir el sueño!

Merkmale der Immobilie

Complex information

  • Art der Immobilie
    Einfamilienhaus

Eigenschaftsdaten

  • Küchenausstattung
    Ausstattung
  • Schlafzimmer
    4
  • Bäder
    3
  • m² gebaut
    322 m²
  • Immobilientyp
    Gebraucht

Facilities

Wohnungskomfort:

Klimaanlage
Terasse

Im Gebäude:

Schwimmbad
Garten
Privater Parkplatz

Statistik der Marktpreise für Chalet pareado en calle Guarás

1 405 909 € (4 047 €/m2)
Durchschnittspreis für primäre Einfamilienhaus in der Stadt Mijas
856 790 € (3 129 €/m2)
Durchschnittspreis für sekundäre Einfamilienhaus in der Stadt Mijas

Karte

Malaga, Mijas, Calaburra - Chaparral, Calle Guarás Zu diesem Ort gehen
Eine Bewertung über Chalet pareado en calle Guarás abgeben
0
0 Bewertungen
1
0% (0)
2
0% (0)
3
0% (0)
4
0% (0)
5
0% (0)
1 380 000 €
von 4 286 € / m2
Kontakt zum Inserenten

Für weitere Informationen kontaktieren Sie bitte die Plattform

REF: 158314

Bewertungen über Chalet pareado en calle Guarás
Loading...

No reviews have been left for this object yet

Nächstgelegene Objekte

Entdecken Sie nahegelegene Immobilien, die wir in unmittelbarer Nähe zu diesem Standort entdeckt haben

Chalet independiente en Venta en Calle Federico Garcia Lorca s/n, Mijas

Malaga, Mijas, Die Lagunen, Calle Federico Garcia Lorca s/n
2 075 000 €

 Vilas en Mijas ist eine einzigartige Entwicklung exklusiver Villen mit vie...

0
0 Bewertungen

Chalet independiente en Venta en Calle Federico Garcia Lorca s/n, Mijas

Malaga, Mijas, Die Lagunen, Calle Federico Garcia Lorca s/n
2 100 000 €

 Vilas en Mijas ist eine einzigartige Entwicklung exklusiver Villen mit vie...

0
0 Bewertungen

Chalet independiente en Venta en Calle Federico Garcia Lorca s/n, Mijas

Malaga, Mijas, Die Lagunen, Calle Federico Garcia Lorca s/n
1 895 000 €

 Vilas en Mijas ist eine einzigartige Entwicklung exklusiver Villen mit vie...

0
0 Bewertungen

Chalet independiente en Venta en Calle Federico Garcia Lorca s/n, Mijas

Malaga, Mijas, Die Lagunen, Calle Federico Garcia Lorca s/n
2 100 000 €

 Vilas en Mijas ist eine einzigartige Entwicklung exklusiver Villen mit vie...

0
0 Bewertungen

Chalet independiente en Venta en Calle Federico Garcia Lorca s/n, Mijas

Malaga, Mijas, Die Lagunen, Calle Federico Garcia Lorca s/n
1 745 000 €

 Vilas en Mijas ist eine einzigartige Entwicklung exklusiver Villen mit vie...

0
0 Bewertungen

Chalet independiente en Venta en Calle Federico Garcia Lorca s/n, Mijas

Malaga, Mijas, Die Lagunen, Calle Federico Garcia Lorca s/n
1 895 000 €

 Vilas en Mijas ist eine einzigartige Entwicklung exklusiver Villen mit vie...

0
0 Bewertungen

Chalet independiente en Venta en Calle Federico Garcia Lorca s/n, Mijas

Malaga, Mijas, Die Lagunen, Calle Federico Garcia Lorca s/n
1 745 000 €

 Vilas en Mijas ist eine einzigartige Entwicklung exklusiver Villen mit vie...

0
0 Bewertungen

Chalet independiente en Venta en Calle de Málaga, 8, Mijas

Malaga, Mijas, Sitio de Calahonda, Calle de Málaga, 8
1 180 000 €

Melissa es una exclusiva promoción de Obra Nueva que cuenta con 7 villas indepen...

0
0 Bewertungen

Chalet independiente en Venta en Calle de Málaga, 8, Mijas

Malaga, Mijas, Sitio de Calahonda, Calle de Málaga, 8
1 180 000 €

Melissa es una exclusiva promoción de Obra Nueva que cuenta con 7 villas indepen...

0
0 Bewertungen

Wir verwenden eigene und Drittanbieter-Cookies, um die Nutzung der Website zu analysieren und Ihnen Werbung zu zeigen, die auf der Grundlage eines aus Ihren Surfgewohnheiten erstellten Profils mit Ihren Vorlieben übereinstimmt (z. B. besuchte Seiten). Mehr Informationen. Akzeptieren Sie Cookies?