Spanien Städtisch Spanien Städtisch Malaga Städtisch Mijas Terreno en Barrio Riviera del Sol

Terreno en Barrio Riviera del Sol

Malaga, Mijas, Riviera del Sol, Barrio Riviera del Sol
669 000 €
Bewertung hinterlassen
Städtisch Art der Immobilie
1 132 m² Grundstücksfläche
Wohnimmobilien Nutzung des Grundstücks
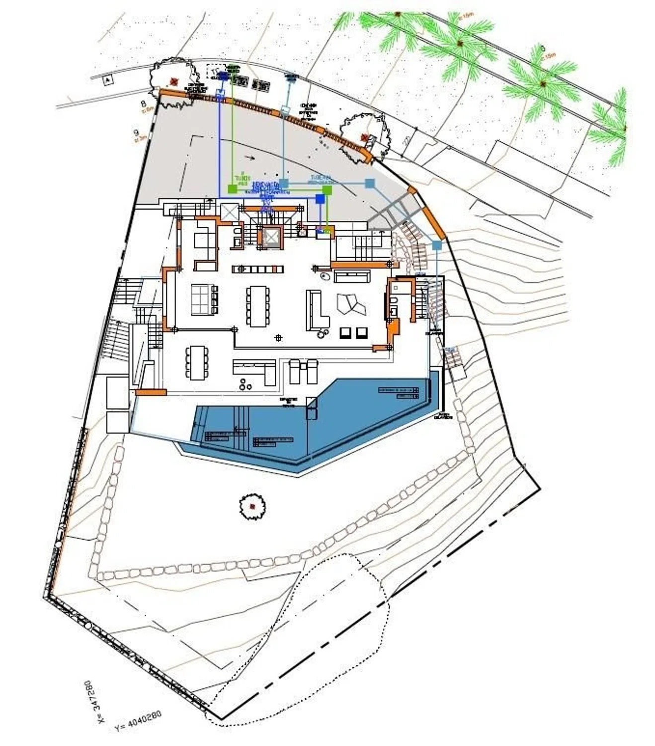
Parcela única con vistas al mar y permiso de construcción en la Riviera del Sol, en la Costa del Sol Esta magnífica parcela está situada en la prestigiosa Riviera del Sol, una de las zonas residenciales más populares de la costa. La parcela cuenta con un permiso de construcción listo, ofreciendo a su propietario una gran oportunidad para construir la villa de sus sueños con vistas al mar. Con una orientación sur y oeste, la parcela soleada permite disfrutar del sol durante todo el día. Los planos han sido diseñados por un destacado arquitecto local y el permiso de construcción ya está aprobado. Además, hay varias ofertas de contrato de empresas constructoras españolas, lo que facilita la planificación y el presupuesto del proyecto. La parcela ya está conectada a la electricidad y al agua, y puede vincularse fácilmente a la red municipal de abastecimiento de agua. ¡Estaremos encantados de proporcionarle más información y de acompañarle a visitar esta parcela única! Para más información y visitas no duden en ponerse en contacto con uno de nuestros agentes comerciales. Mejor ver en situ. Le informamos que los honorarios profesionales de nuestra agencia ya están incluidos en el precio de la venta, por lo que no debe pagar ningún tipo de gastos de gestión o asesoramiento inmobiliario. En cumplimiento del decreto de la Junta de Andalucía 218-2005 del 11 de octubre, se informa a los clientes que los gastos notariales, registrales e IVA. , no están incluidos en el precio. Le recordamos que como consumidor tiene derecho a que se le informe y entregue la documentación informativa que corresponda, según el caso, en base a lo dispuesto en el " Decreto 218/05 de 11 de octubre que regula el Reglamento de Información al Consumidor en la compra-venta y arrendamiento de viviendas en Andalucía. " La información proporcionada es orientativa, no vinculante y no tiene valor contractual. Dicha información puede haber sufrido modificaciones que aún no se han incorporado. Le sugerimos que se ponga en contacto con nosotros para obtener la información más reciente y/ o confirmar la información aquí expuesta.

Merkmale der Immobilie

Complex information

  • Art der Immobilie
    Städtisch

Eigenschaftsdaten

  • Immobilientyp
    Gebraucht

Flächen

  • Grundstücksfläche
    1 132 m²

Base

  • Nutzung des Grundstücks
    Wohnimmobilien

Facilities

Aussichten:

Meeresblick

Statistik der Marktpreise für Terreno en Barrio Riviera del Sol

Karte

Malaga, Mijas, Riviera del Sol, Barrio Riviera del Sol Zu diesem Ort gehen
Eine Bewertung über Terreno en Barrio Riviera del Sol abgeben
0
0 Bewertungen
1
0% (0)
2
0% (0)
3
0% (0)
4
0% (0)
5
0% (0)
YUNI'S PROPERTIES SL.
669 000 €
Kontakt zum Inserenten

Für weitere Informationen kontaktieren Sie bitte die Plattform

REF: 242469

Bewertungen über Terreno en Barrio Riviera del Sol
Loading...

No reviews have been left for this object yet

Nächstgelegene Objekte

Entdecken Sie nahegelegene Immobilien, die wir in unmittelbarer Nähe zu diesem Standort entdeckt haben

Terreno en venta en Sitio de Calahonda

Malaga, Mijas, Sitio de Calahonda
192 000 €

¡Oportunidad Única! Terreno en Venta en la Urbanización El Hornillo, Mijas GolfS...

0
0 Bewertungen

Terreno en calle Reserva de Cala Golf, 35

Malaga, Mijas, La Cala Golf - Lagar Martell, Calle Reserva de Cala Golf, 35
1 475 586 €

Suelo URBANO consolidado en Sector SUP R-15, LA CALA RESORT. Para licencia direc...

0
0 Bewertungen

Terreno en calle Tenerife, 402

Malaga, Marbella, Elviria-Cabopino, Calle Tenerife, 402
1 650 000 €

Paraíso frente al mar: parcela privilegiada con pozo privado y potencial de desa...

0
0 Bewertungen

Terreno en Lugar Urbanizacion Cala Golf, 41 -c

Malaga, Mijas, La Cala Golf - Lagar Martell, Lugar Urbanizacion Cala Golf, 41 -C
180 000 €

¡Oportunidad única en La Cala Golf Resort! Presentamos una exclusiva parcela de...

0
0 Bewertungen

Terreno en Barrio Riviera del Sol

Malaga, Mijas, Riviera del Sol, Barrio Riviera del Sol
990 000 €

Restaurante y un piso con vistas al mar Restaurante recientemente y completament...

0
0 Bewertungen

Terreno en calle Notarios, 6

Malaga, Mijas, Riviera del Sol, Calle Notarios, 6
2 130 000 €

Oportunidad de inversión: Parcela urbana para construir 86 apartamentos con vist...

0
0 Bewertungen

Terreno en Barrio Santa María

Malaga, Marbella, Elviria-Cabopino, Barrio Santa María
490 000 €

Fantástico terreno urbano de 1076 m² en unas de las zonas más bonitas de Elviria...

0
0 Bewertungen

Terreno en calle Campo Europa de Cala Golf, 1

Malaga, Mijas, La Cala Golf - Lagar Martell, Calle Campo Europa de Cala Golf, 1
240 000 €

¡Oportunidad única en La Cala Golf Resort! Presentamos una exclusiva parcela de...

0
0 Bewertungen

Terreno en paseo de Austria s/n

Malaga, Marbella, Elviria-Cabopino, Paseo de Austria s/n
470 000 €

Unique Chance: Construye tu villa de ensueño en Elviria Bienvenido a esta hermos...

0
0 Bewertungen
Aufruf

Wir verwenden eigene und Drittanbieter-Cookies, um die Nutzung der Website zu analysieren und Ihnen Werbung zu zeigen, die auf der Grundlage eines aus Ihren Surfgewohnheiten erstellten Profils mit Ihren Vorlieben übereinstimmt (z. B. besuchte Seiten). Mehr Informationen. Akzeptieren Sie Cookies?