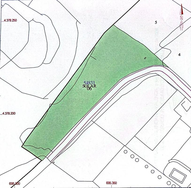
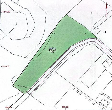
Terreno en calle Río Turia, 8

Valencia, Cheste, Calle Río Turia, 8
50 000 €
Bewertung hinterlassen
Städtisch Art der Immobilie
1 594 m² Grundstücksfläche
Tu refugio en plena naturaleza te espera en Los Visos, Cheste Imagina despertar cada mañana con estas vistas despejadas al horizonte, donde el verde de los pinares se funde con el azul del cielo y las montañas dibujan un paisaje que parece una postal. En este terreno de 1.594 m² ubicado en la urbanización Los Visos (Cheste), no solo compras suelo, compras la posibilidad de construir el hogar que siempre soñaste, rodeado de tranquilidad, naturaleza y privacidad. Aquí podrás levantar una vivienda con vistas espectaculares desde tu habitación, salón o incluso desde la piscina, sin miedo a perderlas: el terreno frente a ti no es urbanizable, lo que garantiza que esas vistas abiertas serán siempre tuyas. A solo 8 km del centro de Cheste, donde encontrarás todos los servicios que necesitas y a 30 km de Valencia, perfecta para quienes desean vivir rodeados de naturaleza sin renunciar a la cercanía de la ciudad. Ubicado en una de las zonas más altas de la urbanización, este terreno te ofrece una panorámica única del Parque Natural, donde se respira paz y desconexión. Ideal para construir una vivienda unifamiliar con jardín, piscina y todo lo que necesitas para una vida cómoda y en contacto con la naturaleza. Ya sea como primera residencia, refugio de fines de semana o inversión futura, esta parcela te da la base perfecta para empezar una nueva etapa en un entorno único. Contáctanos y ven a conocerla. Te enamorarás del paisaje y del potencial de este terreno. El precio anunciado NO INCLUYE los impuestos, ni los gastos como, Notario, Registro de la Propiedad, ni los honorarios de la agencia inmobiliaria. INTELHABITAT está inscrita en el Registro de agentes de intermediación inmobiliaria de la COMUNIDAD VALENCIANA RAICV Nº 4528, y en la Asociación de profesionales Inmobiliarios ASICVAL. NOTA IMPORTANTE: Por mandato expreso del propietario, comercializamos este inmueble en EXCLUSIVA COMPARTIDA, lo que le garantiza el acceso a toda la información, a un servicio de calidad, un trato fácil, sencillo y sin interferencias de terceros. Por este motivo, se ruega no molestar al propietario o a los vecinos. Muchas gracias por tu comprensión. Si eres agente inmobiliario y tienes un cliente para este inmueble, llámanos, estaremos encantados de que puedas llevar a tus compradores.

Merkmale der Immobilie

Complex information

  • Art der Immobilie
    Städtisch

Eigenschaftsdaten

  • Immobilientyp
    Gebraucht

Flächen

  • Grundstücksfläche
    1 594 m²

Base

Statistik der Marktpreise für Terreno en calle Río Turia, 8

Karte

Valencia, Cheste, Calle Río Turia, 8 Zu diesem Ort gehen
Eine Bewertung über Terreno en calle Río Turia, 8 abgeben
0
0 Bewertungen
1
0% (0)
2
0% (0)
3
0% (0)
4
0% (0)
5
0% (0)
Intelhabitat
50 000 €
Kontakt zum Inserenten

Für weitere Informationen kontaktieren Sie bitte die Plattform

REF: 380822

Bewertungen über Terreno en calle Río Turia, 8
Loading...

No reviews have been left for this object yet

Nächstgelegene Objekte

Entdecken Sie nahegelegene Immobilien, die wir in unmittelbarer Nähe zu diesem Standort entdeckt haben

Terreno en plaza Diseminados

Valencia, Vilamarxant, Plaza Diseminados
160 000 €

Suelo rustico a la venta con edificación de 2493 m² en Valencia. La edificación...

0
0 Bewertungen

Terreno en Vilamarxant

Valencia, Vilamarxant, Vilamarxant
1 439 800 €

4 Chalets independientes con sus parcelas más 4 fincas de naranjos. Complejo de...

0
0 Bewertungen

Terreno en Les Creuetes Poligon 38

Valencia, Vilamarxant, Les Creuetes Poligon 38
8 000 €

Parcela situada sobre suelo no urbanizable protegido, en el término de Vilamarxa...

0
0 Bewertungen

Terreno en camino de Horquera

Valencia, Vilamarxant, Camino de Horquera
7 000 €

Suelos en venta en Pj Horquera. Se trata de 8 parcelas rústicas en el término mu...

0
0 Bewertungen

Terreno en camino de Horquera

Valencia, Vilamarxant, Camino de Horquera
13 000 €

Suelos en venta en Pj Horquera. Se trata de 8 parcelas rústicas en el término mu...

0
0 Bewertungen

Terreno en camino de Horquera

Valencia, Vilamarxant, Camino de Horquera
15 000 €

Suelos en venta en Pj Horquera. Se trata de 8 parcelas rústicas en el término mu...

0
0 Bewertungen

Terreno en camino de Horquera

Valencia, Vilamarxant, Camino de Horquera
6 000 €

Suelos en venta en Pj Horquera. Se trata de 8 parcelas rústicas en el término mu...

0
0 Bewertungen

Terreno en camino de Horquera

Valencia, Vilamarxant, Camino de Horquera
26 000 €

Suelos en venta en Pj Horquera. Se trata de 8 parcelas rústicas en el término mu...

0
0 Bewertungen

Terreno en via sense nom

Valencia, Vilamarxant, Via sense nom
1 250 €

Os damos la bienvenida a esta parcela ubicada en Vilamarxant, Valencia. Localiza...

0
0 Bewertungen

Wir verwenden eigene und Drittanbieter-Cookies, um die Nutzung der Website zu analysieren und Ihnen Werbung zu zeigen, die auf der Grundlage eines aus Ihren Surfgewohnheiten erstellten Profils mit Ihren Vorlieben übereinstimmt (z. B. besuchte Seiten). Mehr Informationen. Akzeptieren Sie Cookies?