Neubau Jardines Del Turia in Riba-Roja de Túria

Valencia, Riba-Roja de Túria, Calle Holanda, 6
von 472 500 €
2 072 € / m2
Bewertung hinterlassen
2025 Übergabedatum
228 m² - 228 m² Grundstücksflächen
4 Anzahl der Schlafzimmer
4 Badezimmer

Immobilien in Jardines Del Turia

Im malerischen Riba-Roja de Túria, nahe Valencia, finden Sie Jardines Del Turia, eine exklusive Immobilienentwicklung, die 10 freistehende Einfamilienhäuser und 3 charmante Reihenhäuser umfasst. Diese Neubauten profitieren von ihrer Lage in einer etablierten Wohngegend mit hervorragender Anbindung an öffentliche Verkehrsmittel und in der Nähe renommierter Bildungseinrichtungen.

Vorteile eines Neubaus Jardines Del Turia

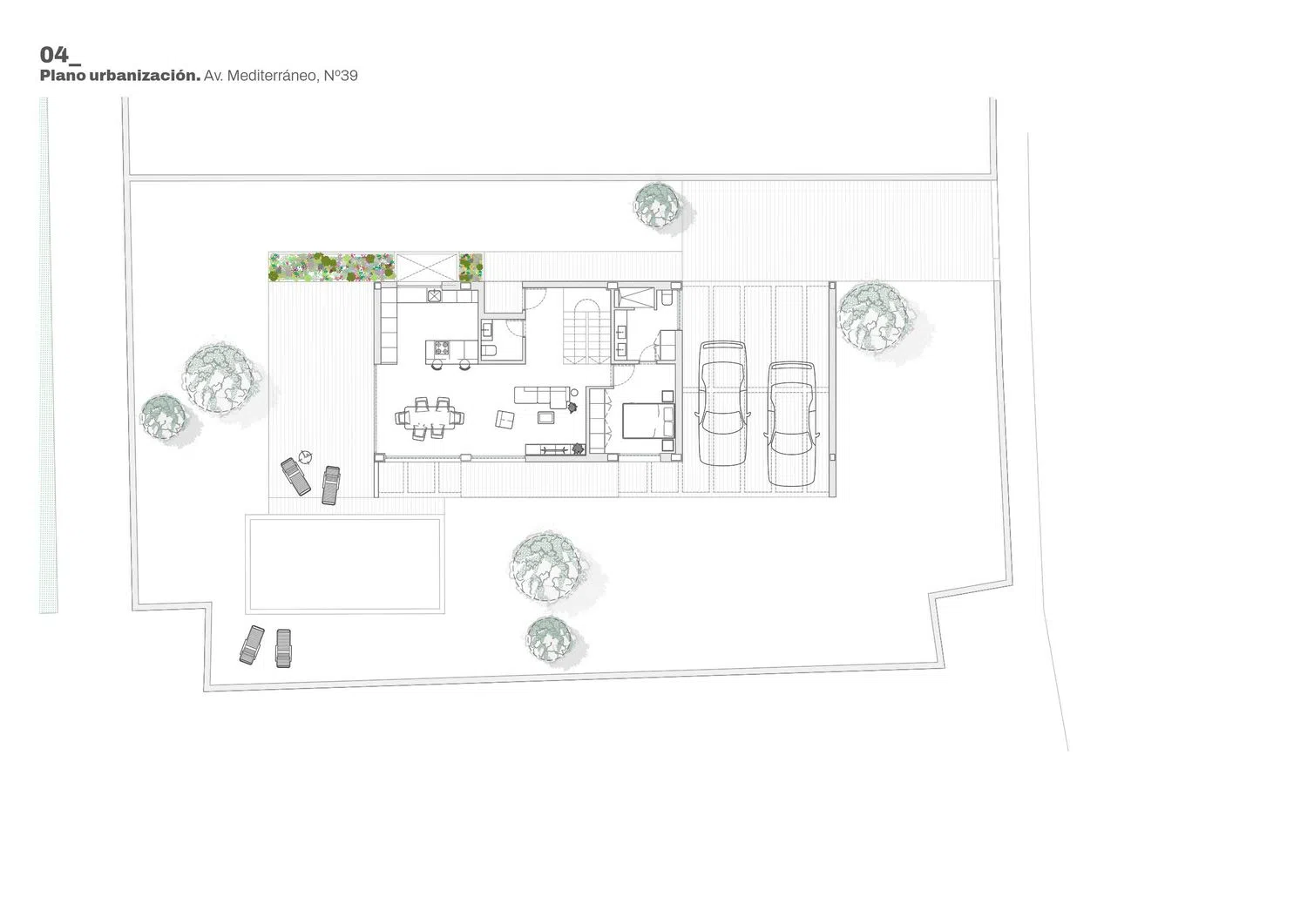
Die freistehenden Einheiten bieten vier Schlafzimmer, die sich auf Erdgeschoss und ersten Stock verteilen. Die Suite im Erdgeschoss ist mit einem eigenen Bad und Einbauschränken ausgestattet. Ein großzügiger Wohnbereich führt direkt in den Garten und die moderne, voll ausgestattete Küche mit einer praktischen Küchentheke rundet das Raumangebot im Erdgeschoss ab. Ein Gästebad für Besucher ist ebenfalls vorhanden.

Im ersten Stock befinden sich drei weitere Schlafzimmer, ein Badezimmer und zwei große Terrassen, die von zwei Zimmern und dem Flur aus zugänglich sind. Die Kellerräume bieten einen offenen Bereich und ein zusätzliches Bad, ideal für ein Fitnessstudio, einen Weinkeller, eine Bar oder einen Kinoraum.

Die Grundstücke der freistehenden Häuser beginnen bei einer Fläche von 500 m² und bieten exklusiven Zugang für Fußgänger und Fahrzeuge. Eine private Poollandschaft inmitten eines angelegten Gartens vervollständigt den Außenbereich. Alle Einheiten sind mit einer modernen Aerothermieanlage für Heißwasser und Klimatisierung ausgestattet, was sowohl hohen Komfort als auch niedrige Energiekosten sichert.

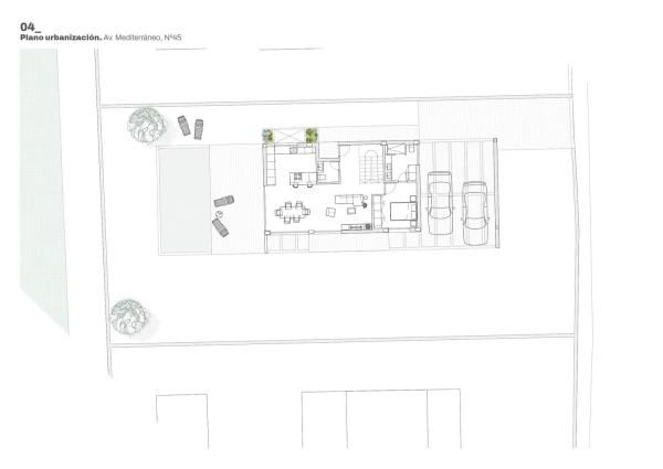
Die drei Reihenhäuser bieten drei Schlafzimmer, eines im Erdgeschoss und zwei im Obergeschoss. Ein geräumiges Wohnzimmer öffnet sich zum Garten, während die separate, voll ausgestattete Küche und ein englischer Innenhof für reichlich Tageslicht sorgen. Zusätzlich gibt es ein Gästebad. Im ersten Stock befindet sich eine Suite mit eigenem Bad, ein zweites, großes Schlafzimmer und ein weiteres Bad.

Der Keller dieser Einheiten bietet einen offenen Bereich und ein weiteres Bad, perfekt für vielfältige Nutzungsmöglichkeiten wie ein privates Fitnessstudio oder ein Heimkino. Die Reihenhäuser bieten Grundstücke ab 175 m² mit großzügigen Terrassen und Gartenbereich, sowie Zugang zu einem Gemeinschaftspool.

Leben in der Stadt Riba-Roja de Túria

Riba-Roja de Túria bietet eine perfekte Mischung aus urbanem Komfort und ländlicher Ruhe. Die ruhige Umgebung und das reiche kulturelle Erbe dieser Stadt machen sie zu einem idealen Ort für Familien und Einzelpersonen, die nach einem hochwertigen Wohnort suchen. Kontaktieren Sie uns, um weitere Informationen zu erhalten und Ihr neues Zuhause zu reservieren!

Hervorgehobene Aktionen in Spanien

10 Einheiten

Nature Views 2

Alicante, Torrevieja, Los Balcones - Los Altos del Edén, Denia s/n
310 000 € - 379 000 €
1 Einheiten

Hotel en venta en Benidorm centro

Alicante, Benidorm, Playa de Poniente
2 250 000 € - 2 250 000 €
32 Einheiten

Residencial Los Balcones De Calpe

Alicante, Kalpe, Calpe Pueblo, Avenida de Madrid, 1
299 000 € - 892 125 €
7 Einheiten

Nature Views

Alicante, Torrevieja, Lago Jardín II, Avenida Denia s/n
305 000 € - 330 000 €
10 Einheiten

ALONIS VILLAS

Alicante, La Villajoyosa / Vila Joiosa, Platja de Torres, Partida Torres s/n
675 000 € - 775 000 €
2 Einheiten

Residencial Royal Beach

Alicante, Guardamar del Segura, Dorf, Miguel Hernández 102
339 500 € - 345 500 €
8 Einheiten

Royal Star

Alicante, Guardamar del Segura
224 500 € - 264 500 €

Immobilien in diesem Komplex

Die Informationen über Preise, Spezifikationen und Details dieser Aktion können je nach Quelle variieren und geändert werden. Daher haben sie keinen kommerziellen Wert an sich, sondern sind rein informativ und indikativ. Diese Website dient nicht der Vermarktung dieses Projekts oder dieser Immobilie.

Name
Schlafräume
Bäder
Oberfläche quadratisch
Fußboden
Kategorie
Preis
4 4 228 m² 3 Einfamilienhaus 472 500 € Visit
4 4 228 m² 3 Einfamilienhaus 472 500 € Visit
4 4 228 m² 3 Einfamilienhaus 472 500 € Visit
4 4 228 m² 3 Einfamilienhaus 472 500 € Visit
4 4 228 m² 3 Einfamilienhaus 472 500 € Visit
4 4 228 m² 3 Einfamilienhaus 472 500 € Visit
Diese Informationen stammen aus öffentlichen Quellen und können veraltet sein. Sie stellen keine Verbindung zum Bauträger dar.

Merkmale der Immobilie

Complex information

  • Anzahl der Einheiten
    6
  • Preisspanne
    472 500 € - 472 500 €
  • Anzahl der Schlafzimmer
    4
  • Grundstücksflächen
    228 m² - 228 m²
  • Arten von Eigenschaften
    Einfamilienhaus

Projektinformationen / Bauzustand

  • Übergabedatum
    2025
  • Förmatted der Promotion
    In Genossenschaft

Eigenschaftsdaten

  • Küchenausstattung
    Ausstattung
  • M2 Mittel
    228 m²
  • Art der Immobilie
    Neubau

Energieausweis

  • Energieverbrauch
    En trámite

Facilities

Im Gebäude:

Schwimmbad
Garten
Souterrain

Statistik der Marktpreise für Jardines Del Turia

472 500 € (2 072 €/m2)
Durchschnittspreis im Komplex
472 500 € (2 072 €/m2)
Durchschnittspreis für 4+ Zimmer-
513 436 € (2 344 €/m2)
Durchschnittspreis für primäre Häuser in der Stadt Riba-Roja de Túria

Karte

Valencia, Riba-Roja de Túria, Calle Holanda, 6 Zu diesem Ort gehen
Eine Bewertung über Jardines Del Turia abgeben
0
0 Bewertungen
1
0% (0)
2
0% (0)
3
0% (0)
4
0% (0)
5
0% (0)
Feel Free Gestión
472 500 €
von 2 072 € / m2
Kontakt zum Inserenten

Für weitere Informationen kontaktieren Sie bitte die Plattform

REF: 190236

Bewertungen über Jardines Del Turia
Loading...

No reviews have been left for this object yet

Nächstgelegene Objekte

Entdecken Sie nahegelegene Immobilien, die wir in unmittelbarer Nähe zu diesem Standort entdeckt haben

2 Einheiten

5 Villas Independientes en Avenida de Riba- Roja de Túria

Valencia, L'Eliana, Montepilar, Avenida de Riba- Roja de Túria, 49
690 000 € - 690 000 €

Exclusiva Promoción de 5 Villas Independientes en L’Eliana Te presentamos una pr...

0
0 Bewertungen
6 Einheiten

Ribabella

Valencia, Riba-Roja de Túria, Avenida del Castaño, 25
395 000 € - 431 000 €

Valencia La Vella Vivirás rodeado de naturaleza, tranquilidad y luz. Despierta c...

0
0 Bewertungen
4 Einheiten

La Eliana

Valencia, L'Eliana, Montealegre, Avenida de Ribarroja de Túria
660 000 € - 660 000 €

Esta vivienda se plantea desde la vista contemporánea de la calidez del mediterr...

0
0 Bewertungen
14 Einheiten

Jardines del Turia

Valencia, Riba-Roja de Túria, Calle Holanda, 8
472 500 € - 575 750 €

Chalet Independiente en Jardines del Turia — Exclusividad, Diseño y Confort en u...

0
0 Bewertungen
4 Einheiten

Residencial Atalaya de San Antonio

Valencia, San Antonio de Benagéber
250 574 € - 250 963 €

Immobilien in Residencial Atalaya de San Antonio In Valencia, San Antonio de Ben...

0
0 Bewertungen
1 Einheiten

Mansión de lujo en L'Eliana

Valencia, L'Eliana, El Carme-Sant Agustí-Bonavista, Concepción Arenal esq Martí L'humà s/n
1 390 000 € - 1 390 000 €

Immobilien in Mansión de lujo en L'Eliana Entdecken Sie exklusiv eine bee...

0
0 Bewertungen

Residencial Unifamiliar Pareado En Maravisa

Valencia, La Pobla de Vallbona, Maravisa, Calle Plutó, 14
-

Tilers gimenez slu os presenta una maravillosa oportunidad de pareados unifamili...

0
0 Bewertungen

Eliana Urban Villas

Valencia, L'Eliana, Zona Pueblo, Calle Verge del Pilar, 46
-

- Moderno hogar de alta calidad en el centro urbano de La Eliana, rodeado de nat...

0
0 Bewertungen
5 Einheiten

Residencial Báltico

Valencia, L'Eliana, El Paraíso-Los Almendros, Avenida Constitución s/n
315 000 € - 350 000 €

Immobilien in Residencial Báltico Willkommen zu einer exklusiven Gelegenheit in...

0
0 Bewertungen

Wir verwenden eigene und Drittanbieter-Cookies, um die Nutzung der Website zu analysieren und Ihnen Werbung zu zeigen, die auf der Grundlage eines aus Ihren Surfgewohnheiten erstellten Profils mit Ihren Vorlieben übereinstimmt (z. B. besuchte Seiten). Mehr Informationen. Akzeptieren Sie Cookies?