New construction Residencial Torreira-Avío in Santiago de Compostela

A Coruña, Santiago de Compostela, North Campus - S.Caetano, Calle da Torreira de Arriba, 5
from 369 000 €
Leave review
Property surfaces
Number of bedrooms
Bathrooms
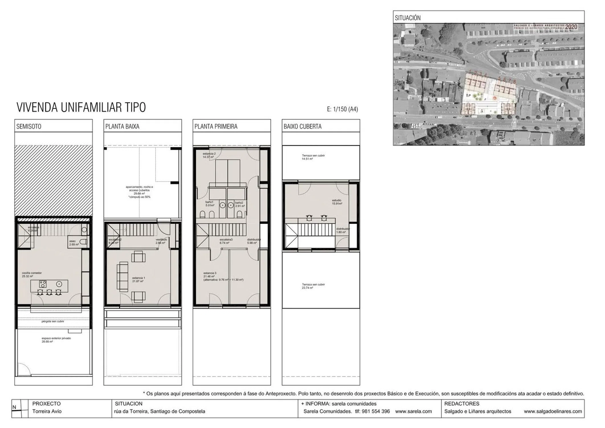
Exclusivos chalets de obra nueva en Vista Alegre (Santiago de Compostela) Descubre un nuevo concepto de hogar en una de las zonas más exclusivas y tranquilas de Santiago. Vive rodeado de naturaleza, a solo unos minutos del centro histórico, en un entorno residencial pensado para disfrutar de la calma sin renunciar a la ciudad. Desde 369.000€ sin IVA. (10%) La promoción consta de 8 viviendas, quedando 5 libres. Contando de izquierda a derecha quedan libres los chalets: 1, 2, 5, 7 y 8. Tu chalet, tu espacio, tu estilo de vida Cada vivienda combina diseño contemporáneo, amplitud y luminosidad, con detalles que marcan la diferencia: •3 dormitorios amplios y 1 estudio versátil (ideal para teletrabajo o sala de ocio). •Garaje privado con acceso directo a la vivienda. •Terraza y jardín privado para disfrutar. •Viviendas independientes, confortables y sostenibles. Ventajas del régimen de cooperativa Forma parte de un proyecto exclusivo en régimen de cooperativa, que te permite: •Ahorrar costes frente a la promoción tradicional. •Participar en la toma de decisiones. •Personalizar detalles de tu futuro hogar. Ubicación privilegiada: Vista Alegre, Santiago de Compostela Un entorno residencial consolidado, tranquilo y con encanto, a tan solo unos minutos del corazón de la ciudad. La zona cuenta con todos los servicios que necesitas para tu día a día: •Supermercados. •Colegios y centros educativos. •Transporte público. •Zonas verdes y parques. •Centro de salud. •Farmacias. •Ocio. Perfecta conexión con el centro de Santiago, pero con la serenidad de vivir en un entorno natural y familiar.

Featured promotions in Spain

10 units

Nature Views 2

Alicante, Torrevieja, Los Balcones - The Heights of Eden, Denia s/n
310 000 € - 379 000 €
1 units

Hotel en venta en Benidorm centro

Alicante, Benidorm, Poniente Beach
2 250 000 € - 2 250 000 €
28 units

Residencial Los Balcones De Calpe

Alicante, Calpe, Calpe Town, Avenida de Madrid, 1
299 000 € - 892 125 €
4 units

Nature Views

Alicante, Torrevieja, Lago Jardín II, Avenida Denia s/n
309 000 € - 330 000 €
5 units

ALONIS VILLAS

Alicante, La Villajoyosa / Vila Joiosa, Torres Beach, Partida Torres s/n
675 000 € - 775 000 €
1 units

Residencial Royal Beach

Alicante, Guardamar del Segura, town, Miguel Hernández 102
349 500 € - 349 500 €
7 units

Royal Star

Alicante, Guardamar del Segura
229 500 € - 269 500 €
This information has been obtained from public sources and may not be up to date. It does not represent a link with the developer.

Property characteristics

Complex information

Property data

  • Property type
    New construction

Market price statistics for Residencial Torreira-Avío

382 771 € (1 341 €/m2)
Average price of primary Houses in city Santiago de Compostela
321 616 € (2 930 €/m2)
Average price of primary Apartments in city Santiago de Compostela

Map

A Coruña, Santiago de Compostela, North Campus - S.Caetano, Calle da Torreira de Arriba, 5 Going to this location!
Leave a review about Residencial Torreira-Avío
0
0 reviews
1
0% (0)
2
0% (0)
3
0% (0)
4
0% (0)
5
0% (0)
Sarela comunidades
369 000 €
Contact advertiser

For more information contact the platform

REF: 445465

Reviews about Residencial Torreira-Avío
Loading...

No reviews have been left for this object yet

Nearest properties

Explore nearby properties we've discovered in close proximity to this location

1 units

Luxury property featuring an innovative and super-luxe design in Santiago de Compostela.

A Coruña, Santiago de Compostela, Campus Sur - Santa Marta, Calle Lugar de Portela de Villestro, 64
715 720 € - 715 720 €

Real Estate in Roxos Dise\u00f1o Super Luxury Experience the pinnacle of modern...

0
0 reviews

Newly constructed luxury design project in Santiago de Compostela.

A Coruña, Santiago de Compostela, Campus Sur - Santa Marta, Calle Lugar de Portela de Villestro , 39
-

Real Estate in Roxos Diseño Luxury Discover an exquisite opportunity with this...

0
0 reviews
1 units

Newly constructed residential development in Santiago de Compostela.

A Coruña, Santiago de Compostela, San Lazaro - Meixonfrio, Calle de Paulo Coelho, 1
372 000 € - 372 000 €

Real estate in Residencial San Marcos We are excited to introduce a new real est...

0
0 reviews

New Development in Ames, Sol Naciente Project.

A Coruña, Ames, The Milladoiro, Travesía Do porto s/n
-

Real estate in Sol Naciente We are excited to announce the launch of sales for a...

0
0 reviews

Obra nueva El Mirador de Pontepedriña en Santiago de Compostela

A Coruña, Santiago de Compostela, Conxo, Avenida Antón Fraguas s/n
-

es una construcción aterrazada que dispone de 64 viviendas totalmente exteriore...

0
0 reviews
4 units

A new construction located in the vibrant area of Horta-Santiago in Santiago de Compostela.

A Coruña, Santiago de Compostela, Conxo, Rúa de José Pastor Horta
14 500 € - 17 700 €

Real estate in A Coruña, Santiago de Compostela, Conxo Discover brand-new apartm...

0
0 reviews

New Development Project in Santiago de Compostela

A Coruña, Santiago de Compostela, San Lazaro - Meixonfrio, Calle Avelino Antelo s/n
-

Welcome to our latest residential development located in the vibrant city of San...

0
0 reviews
1 units

Estrada 32

A Coruña, Santiago de Compostela, Castiñeiriño - Cruceiro do Sar, Calle Da Estrada, 32
220 000 € - 220 000 €

Real estate in Estrada 32 Located in the vibrant area of A Coruña, at Calle Da ,...

0
0 reviews

Residencial Os Castaños

A Coruña, Santiago de Compostela, Castiñeiriño - Cruceiro do Sar, Calle Federica Montseny, 45
-

, parcelas A1 (18 viviendas) – A2 (6 viviendas) es un proyecto de obra nueva for...

0
0 reviews

We use our own and third-party cookies to analyze website usage and show you advertisements related to your preferences based on a profile created from your browsing habits (e.g., pages visited). More information. Do you accept cookies?