New construction VILLAS casica don manuel in Almansa

Albacete, Almansa, Calle ESCRITORA ALICIA JIMENEZ BARLETT ESQUINA C/ARAGON s/n
from 227 000 €
1 633 € / m2
Leave review
2024 Year of delivery
139 m² - 139 m² Property surfaces
3 Number of bedrooms
2 Bathrooms

Real estate in VILLAS casica don manuel

The properties in are a newly constructed collection of semi-detached houses located in one of the most well-equipped areas of Almansa. Residents enjoy access to numerous green spaces, educational institutions, sports facilities, and medical services. With private commercial outlets, restaurants, and fitness centers nearby, this location offers a desirable lifestyle. The historic town center is within walking distance, and it's only seven minutes to the city's traditional commercial and financial district.

Advantages of a new building

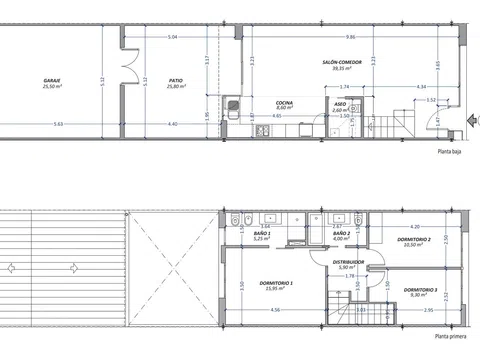
The homes are designed in a duplex style. The ground floor features an open-plan living, dining, and kitchen area, along with a small restroom. This level benefits from dual orientations, with windows facing both the street and a private courtyard, which also includes garage access, ensuring a bright and comfortable environment with cross-ventilation. Upstairs, the layout comprises three bedrooms and two bathrooms. The master bedroom features an ensuite bathroom with a sink, shower, toilet, and naturally lit bidet. Meanwhile, the family bathroom includes a sink, toilet, and bathtub, suitable for families with young children.

Particular attention has been given to both the aesthetic and functional aspects of these homes, with a significant emphasis on energy efficiency to reduce electricity and gas bills, enhancing overall comfort. The properties boast 14 cm of high-density roof insulation, 12 cm vapor-barrier insulation in the vertical walls, and 60 mm thermal break aluminum joinery with Climalit and laminated glazing within one meter of the ground. Additionally, the houses feature underfloor heating powered by a gas boiler, thermal plates, an accumulator tank, and immediate access to hot water. As an optional feature, residents can install an Aerothermal system, providing radiant cooling without condensation issues due to the strategic location of the homes.

Life in the city Almansa

Living in Almansa offers a blend of modern convenience and traditional charm. The city is well-regarded for its community spirit and accessibility to essential services and leisure options. Its rich cultural heritage and contemporary amenities make Almansa one of the best places to call home.

Featured promotions in Spain

10 units

Nature Views 2

Alicante, Torrevieja, Los Balcones - The Heights of Eden, Denia s/n
310 000 € - 379 000 €
1 units

Hotel en venta en Benidorm centro

Alicante, Benidorm, Poniente Beach
2 250 000 € - 2 250 000 €
32 units

Residencial Los Balcones De Calpe

Alicante, Calpe, Calpe Town, Avenida de Madrid, 1
299 000 € - 892 125 €
7 units

Nature Views

Alicante, Torrevieja, Lago Jardín II, Avenida Denia s/n
305 000 € - 330 000 €
5 units

ALONIS VILLAS

Alicante, La Villajoyosa / Vila Joiosa, Torres Beach, Partida Torres s/n
675 000 € - 775 000 €
2 units

Residencial Royal Beach

Alicante, Guardamar del Segura, town, Miguel Hernández 102
339 500 € - 345 500 €
8 units

Royal Star

Alicante, Guardamar del Segura
224 500 € - 264 500 €

Properties in this complex

The information provided about prices, specifications, and details of this promotion is subject to possible variations and changes depending on the source. Therefore, it does not have commercial value in itself but is purely informative and indicative. This website does not market this project or property.

Name
Bedrooms
Bathrooms
Surface square
Floor
Category
Price
3 2 139 m² 2 Terraced houses 227 000 € Visit
This information has been obtained from public sources and may not be up to date. It does not represent a link with the developer.

Property characteristics

Complex information

  • Number of units
    1
  • Price range
    227 000 € - 227 000 €
  • Number of bedrooms
    3
  • Property surfaces
    139 m² - 139 m²
  • Types of properties
    Terraced houses

Project information / Work status

  • Delivery year
    2024
  • Promotion format
    Free

Quality Report

  • Heating
    Radiant Floor

Property data

  • Medium square meters
    139 m²
  • Property type
    New construction

Energy certification

  • Energy certificate
    A
  • CEE Issuance
    A

Plans

Market price statistics for VILLAS casica don manuel

227 000 € (1 633 €/m2)
Average price in complex
227 000 € (1 633 €/m2)
Average price of 3-bedroom

Map

Albacete, Almansa, Calle ESCRITORA ALICIA JIMENEZ BARLETT ESQUINA C/ARAGON s/n Going to this location!
Leave a review about VILLAS casica don manuel
0
0 reviews
1
0% (0)
2
0% (0)
3
0% (0)
4
0% (0)
5
0% (0)
227 000 €
from 1 633 € / m2
Contact advertiser

For more information contact the platform

REF: 216475

Reviews about VILLAS casica don manuel
Loading...

No reviews have been left for this object yet

Nearest properties

Explore nearby properties we've discovered in close proximity to this location

1 units

VILLAS casica don manuel

Albacete, Almansa, Calle ESCRITORA ALICIA JIMENEZ BARLETT ESQUINA C/ARAGON s/n
227 000 € - 227 000 €

Real estate in VILLAS casica don manuel The properties in are a newly construc...

0
0 reviews

We use our own and third-party cookies to analyze website usage and show you advertisements related to your preferences based on a profile created from your browsing habits (e.g., pages visited). More information. Do you accept cookies?