New construction Villa San Jaime in Benissa

Alicante, Benissa, La Viña - Montemar - San Jaime, La Viña - Montemar - San Jaime
from 1 890 000 €
Leave review
Property surfaces
Number of bedrooms
Bathrooms
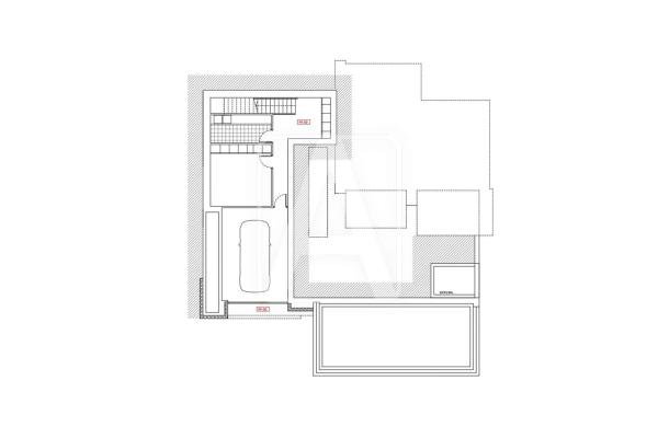
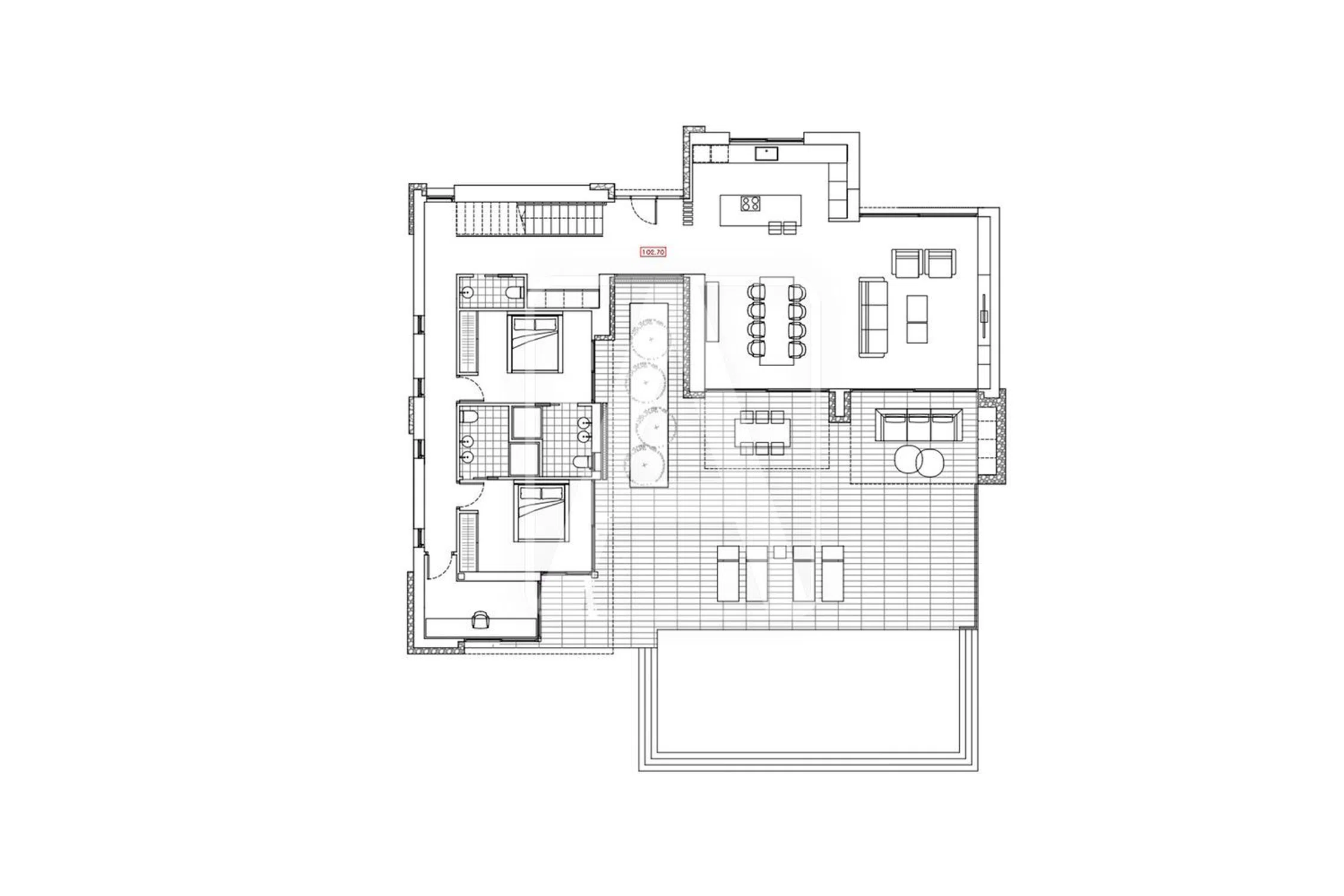
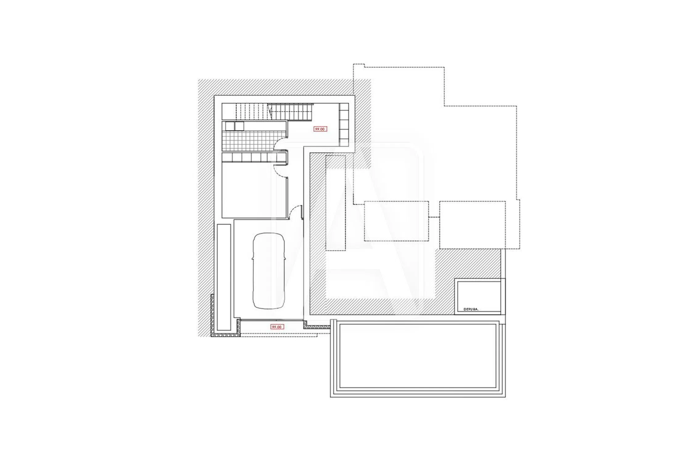
Villa de nueva construcción en venta en Benissa en la exclusiva Urbanización San Jaime (junto a Moraira), situada en una zona residencial consolidada a poca distancia del campo de Golf de San Jaime, a 2,1 Km de centro comercial Pepe La Sal, a 2,4 Km de Cala Baladrar (Benissa), a 2,5 Km de Playa Andragó (Moraira), a 3,2 Km de Cala Advocat (Benissa) y a 4 Km del centro urbano de Moraira que ofrece todo tipo de servicios, magnífico Club Náutico y estupenda playa de arena. Esta villa de lujo disfruta de estupendas vistas al mar y puestas de sol (orientación Suroeste) y de mucha tranquilidad y privacidad (calle sin salida). Está ubicada en una parcela de 1.020 m2 y tiene una superficie total construida de 350 m2 (+ 400 m2 de elementos auxiliares), que se distribuyen en tres elegantes niveles, con un equilibrio perfecto entre estilo, comodidad y funcionalidad, de la siguiente manera: en la planta principal tenemos el amplio hall de entrada, 3 dormitorios (uno de ellos diseñado como zona de oficina o trabajo), 2 baños en suite, 1 aseo de cortesía, magnífico salón comedor cocina (concepto todo abierto, muy espacioso, con isla) y estupendo porche de 30 m2 con barbacoa integrada que conecta con una amplia terraza exterior de 80 m2 donde tenemos una piscina de 40 m2 de forma rectangular con efecto sin fin. Se accede a la planta alta y a la planta sótano a través de una bonita escalera interior. En la planta alta tenemos 1 dormitorio principal con baño en suite con bañera flotante y terraza panorámica privada de 45 m2. En la planta sótano tenemos un amplio vestíbulo con armarios empotrados, lavadero, amplio trastero (posible dormitorio auxiliar) y garaje de 32 m2. Esta villa de diseño vanguardista destaca por sus grandes ventanales, por su luminosidad y por sus calidades y acabados, destacando en la fachada sus detalles en piedra natural trabajada de manera artesanal. Está equipada con suelo radiante y climatización por conductos (sistema aerotermia, mínimo consumo, máxima eficiencia), carpintería exterior de alta gama con cristales inteligentes, cocina de diseño moderno totalmente equipada, baños de diseño, barandillas en cristal, suelos porcelánicos, alarma… Disfruta de amplia zona de aparcamiento exterior ubicada estratégicamente junto a la entrada principal de la propiedad. Esto es más que una simple casa, es un remanso de paz que combina la arquitectura moderna con el encanto atemporal de la Costa Blanca. Para recibir más información sobre esta propiedad, póngase en contacto con AREA Costa Blanca. AREA Costa Blanca - su agente para propiedades en venta en Benissa - Costa Blanca - España. AREA Costa Blanca está orgullosa de ser una de las mejores agencias inmobiliarias en la Costa Blanca. En AREA Costa Blanca trabajamos para ofrecer el mejor servicio asesorando a nuestros clientes en la compraventa de propiedades inmobiliarias. Contamos con un equipo profesional de larga experiencia en el sector inmobiliario. Nuestro principio fundamental es la calidad del servicio prestado y la satisfacción del cliente. Nuestra experiencia y actitud, su garantía de éxito.

Featured promotions in Spain

10 units

Nature Views 2

Alicante, Torrevieja, Los Balcones - The Heights of Eden, Denia s/n
310 000 € - 379 000 €
1 units

Hotel en venta en Benidorm centro

Alicante, Benidorm, Poniente Beach
2 250 000 € - 2 250 000 €
32 units

Residencial Los Balcones De Calpe

Alicante, Calpe, Calpe Town, Avenida de Madrid, 1
299 000 € - 892 125 €
7 units

Nature Views

Alicante, Torrevieja, Lago Jardín II, Avenida Denia s/n
305 000 € - 330 000 €
5 units

ALONIS VILLAS

Alicante, La Villajoyosa / Vila Joiosa, Torres Beach, Partida Torres s/n
675 000 € - 775 000 €
1 units

Residencial Royal Beach

Alicante, Guardamar del Segura, town, Miguel Hernández 102
349 500 € - 349 500 €
7 units

Royal Star

Alicante, Guardamar del Segura
229 500 € - 269 500 €
This information has been obtained from public sources and may not be up to date. It does not represent a link with the developer.

Property characteristics

Complex information

Property data

  • Property type
    New construction

Base

Facilities

In building:

Basement

Market price statistics for Villa San Jaime

2 171 000 € (4 015 €/m2)
Average price of primary Houses in city Benissa
255 289 € (2 537 €/m2)
Average price of primary Apartments in city Benissa
1 279 530 € (3 736 €/m2)
Average price of primary Houses in district La Viña - Montemar - San Jaime
239 500 € (2 257 €/m2)
Average price of primary Apartments in district La Viña - Montemar - San Jaime

Map

Alicante, Benissa, La Viña - Montemar - San Jaime, La Viña - Montemar - San Jaime Going to this location!
Leave a review about Villa San Jaime
0
0 reviews
1
0% (0)
2
0% (0)
3
0% (0)
4
0% (0)
5
0% (0)
AREA Costa Blanca
1 890 000 €
Contact advertiser

For more information contact the platform

REF: 408778

Reviews about Villa San Jaime
Loading...

No reviews have been left for this object yet

Nearest properties

Explore nearby properties we've discovered in close proximity to this location

1 units

New residential development in the peaceful and picturesque town of Calpe.

Alicante, Calpe, Cometa-Carrió, Calle Enchinent s/n
755 000 € - 755 000 €

Real estate in Residencial El Paraíso Discover an exclusive development of 17 s...

0
0 reviews

New construction Jade in Calpe.

Alicante, Calpe, Arenal-Bol Beach, Avenida de los Ejércitos Españoles s/n
-

Real estate in Jade Welcome to a true oasis of tranquility, where your dreams of...

0
0 reviews
6 units

New construction project in Benitachell.

Alicante, Benitachell, Les Fonts, Calle Los molinos, 98
97 656 € - 106 823 €

Real estate in Los Molinos A brand-new, exclusive four-bedroom villa with a high...

0
0 reviews
6 units

Introducing the new Seaway Tower development in the stunning coastal town of Calpe.

Alicante, Calpe, Arenal-Bol Beach, Calle Alemania , 27
524 000 € - 1 390 000 €

## Real estateDiscover a modern complex of luxury apartments in one of the most...

0
0 reviews
8 units

New luxury villas available in a prestigious residential area of Benitachell.

Alicante, Benitachell, Summit of the Sun, Pozo Urb Cumbre del Sol- Benitachell s/n
1 403 700 € - 1 403 700 €

Real estate in Villas de lujo en Residencial Cumbres del Sol Nestled within the...

0
0 reviews
6 units

New development, Moraira Natura, located in the beautiful coastal town of Moraira.

Alicante, Moraira, Advocat-Cometa Pine Grove, Camino dels Tossals, 48
1 690 000 € - 1 750 000 €

Real estate in Moraira Natura Discover an exquisite new residential enclave nest...

0
0 reviews
5 units

Newly developed Magnolias Design in Benitachell.

Alicante, Benitachell, Summit of the Sun, Calle Residencial Magnolias, 30
1 297 000 € - 2 073 000 €

Real estate in Magnolias Design In a well-established area tailored for custom-d...

0
0 reviews
4 units

New residential development Montecala Gardens located in the picturesque area of Benitachell.

Alicante, Benitachell, Summit of the Sun, Calle Pinazo s/n
473 000 € - 599 000 €

Real estate in Montecala Gardens Explore the modern apartments set within exclus...

0
0 reviews
2 units

New development in Vall del Portet, Benitachell.

Alicante, Benitachell, Alcassar, Urbanizacion Valle del Portet, 21
850 000 € - 990 000 €

Real Estate in Vall del Portet Discover a distinctive living experience in Vall...

0
0 reviews
Call

We use our own and third-party cookies to analyze website usage and show you advertisements related to your preferences based on a profile created from your browsing habits (e.g., pages visited). More information. Do you accept cookies?